Скачать Типовой проект 409-14-63.87 Главный корпус специализированного завода по ремонту экскаваторов с ковшом емкостью 1,6 куб. м включительно и их агрегатовДата актуализации: 01.01.2021 Типовой проект 409-14-63.87
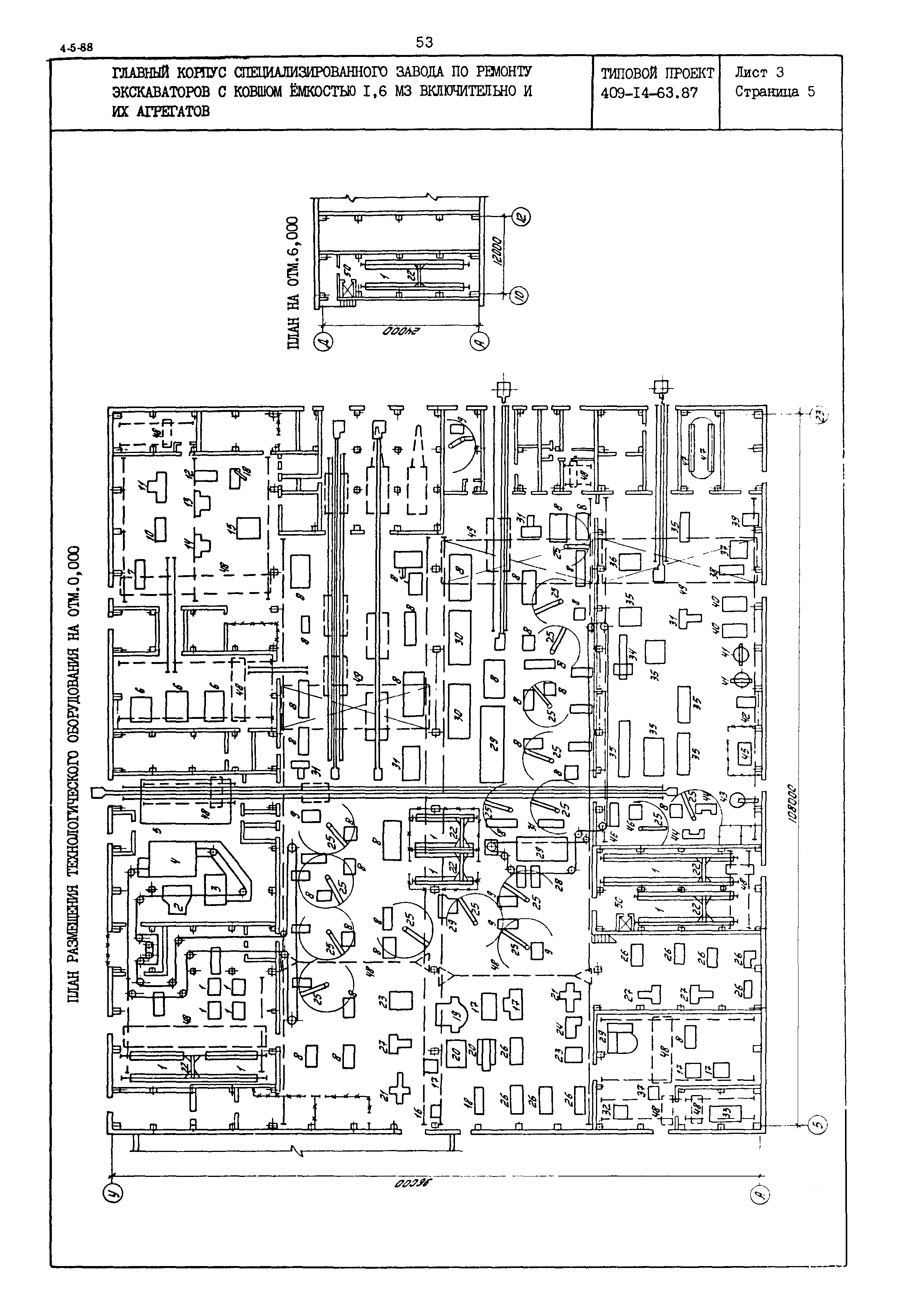
Главный корпус специализированного завода по ремонту экскаваторов с ковшом емкостью 1,6 куб. м включительно и их агрегатов| Обозначение: | Типовой проект 409-14-63.87 | | Обозначение англ: | 409-14-63.87 | | Статус: | действует | | Название рус.: | Главный корпус специализированного завода по ремонту экскаваторов с ковшом емкостью 1,6 куб. м включительно и их агрегатов | | Дата добавления в базу: | 01.09.2013 | | Дата актуализации: | 01.01.2021 | | Дата введения: | 22.04.1987 |
         
|