Скачать Типовой проект 902-3-65.87 Станция биологической очистки сточных вод с биофильтрами производительностью 200 куб. м/сутДата актуализации: 01.01.2021
|
| Обозначение: | Типовой проект 902-3-65.87 |
| Обозначение англ: | 902-3-65.87 |
| Статус: | не определен законодательством |
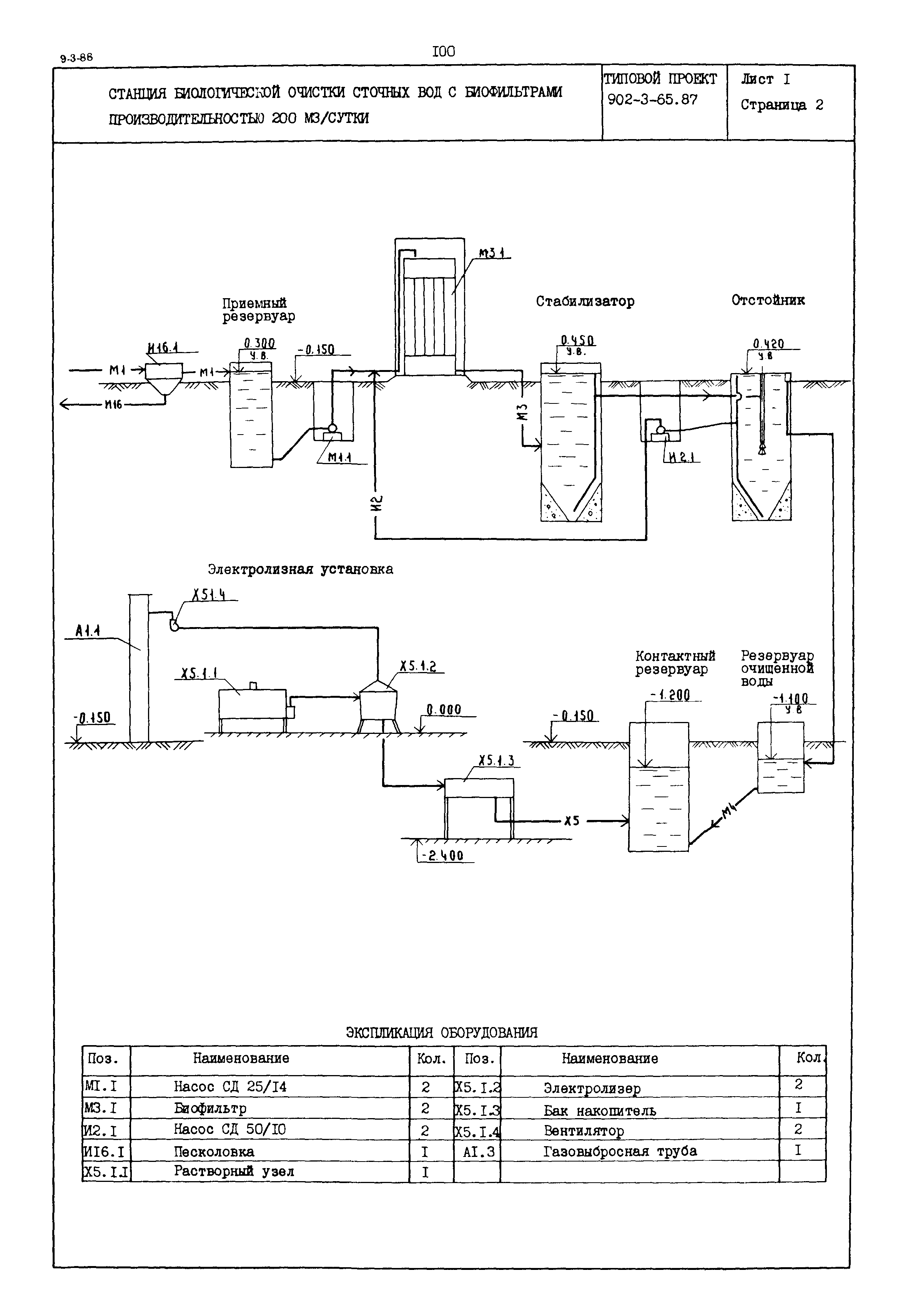
| Название рус.: | Станция биологической очистки сточных вод с биофильтрами производительностью 200 куб. м/сут |
| Дата добавления в базу: | 01.09.2013 |
| Дата актуализации: | 01.01.2021 |
| Дата введения: | 23.04.1986 |
| Дата окончания срока действия: | 30.06.2003 |
| Список изменений: |
|





Текстовое изменение № 1 от 01.01.1990