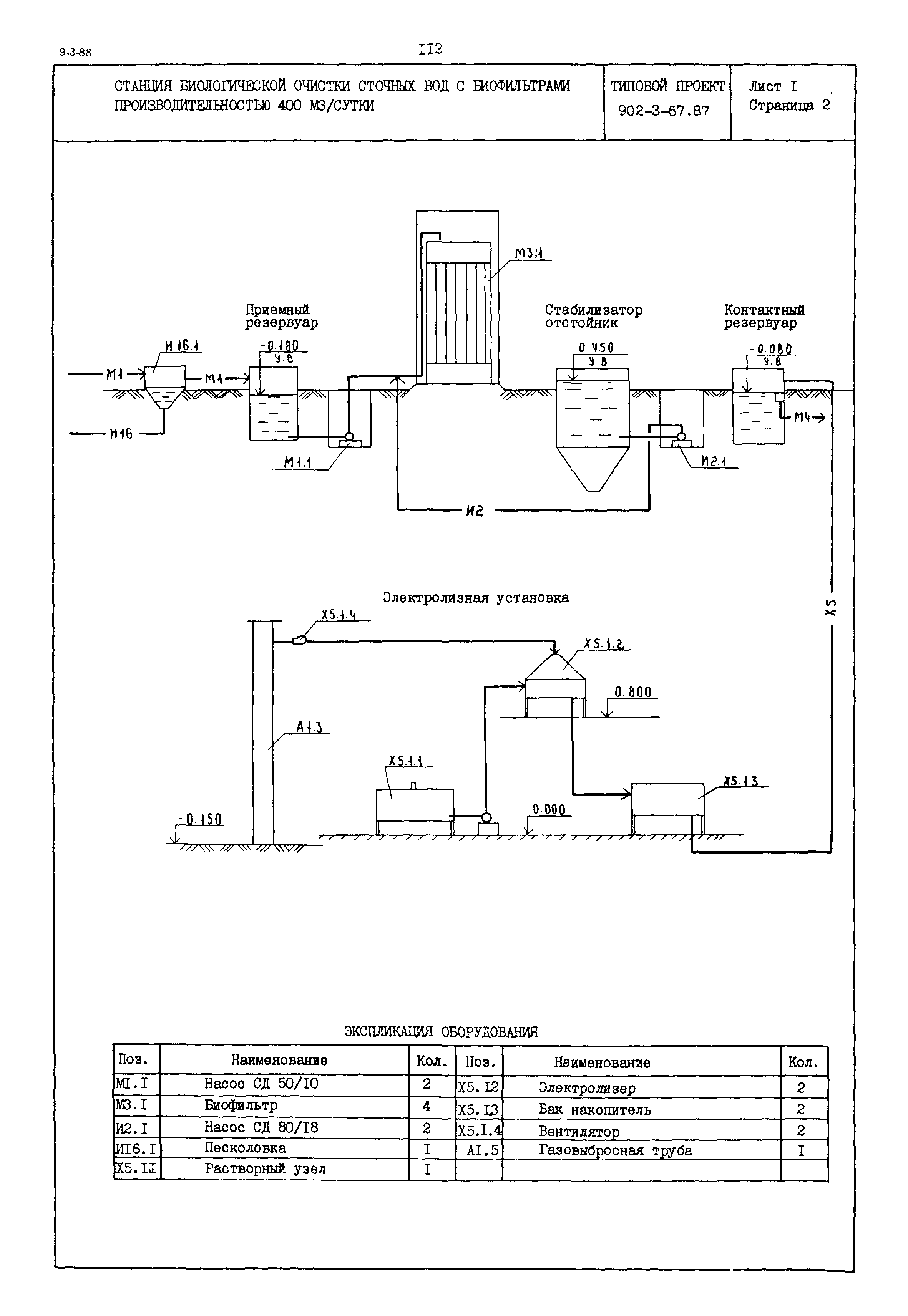
Скачать Типовой проект 902-3-67.87 Станция биологической очистки сточных вод с биофильтрами производительностью 400 куб. м/сутДата актуализации: 01.01.2021 Типовой проект 902-3-67.87
Станция биологической очистки сточных вод с биофильтрами производительностью 400 куб. м/сут| Обозначение: | Типовой проект 902-3-67.87 | | Обозначение англ: | 902-3-67.87 | | Статус: | не определен законодательством | | Название рус.: | Станция биологической очистки сточных вод с биофильтрами производительностью 400 куб. м/сут | | Дата добавления в базу: | 01.09.2013 | | Дата актуализации: | 01.01.2021 | | Дата введения: | 23.04.1986 | | Дата окончания срока действия: | 30.06.2003 |
   
|