Скачать Типовой проект 902-3-69.87 Станция биологической очистки сточных вод с биофильтрами производительностью 700 куб. м/сут

Дата актуализации: 01.01.2021

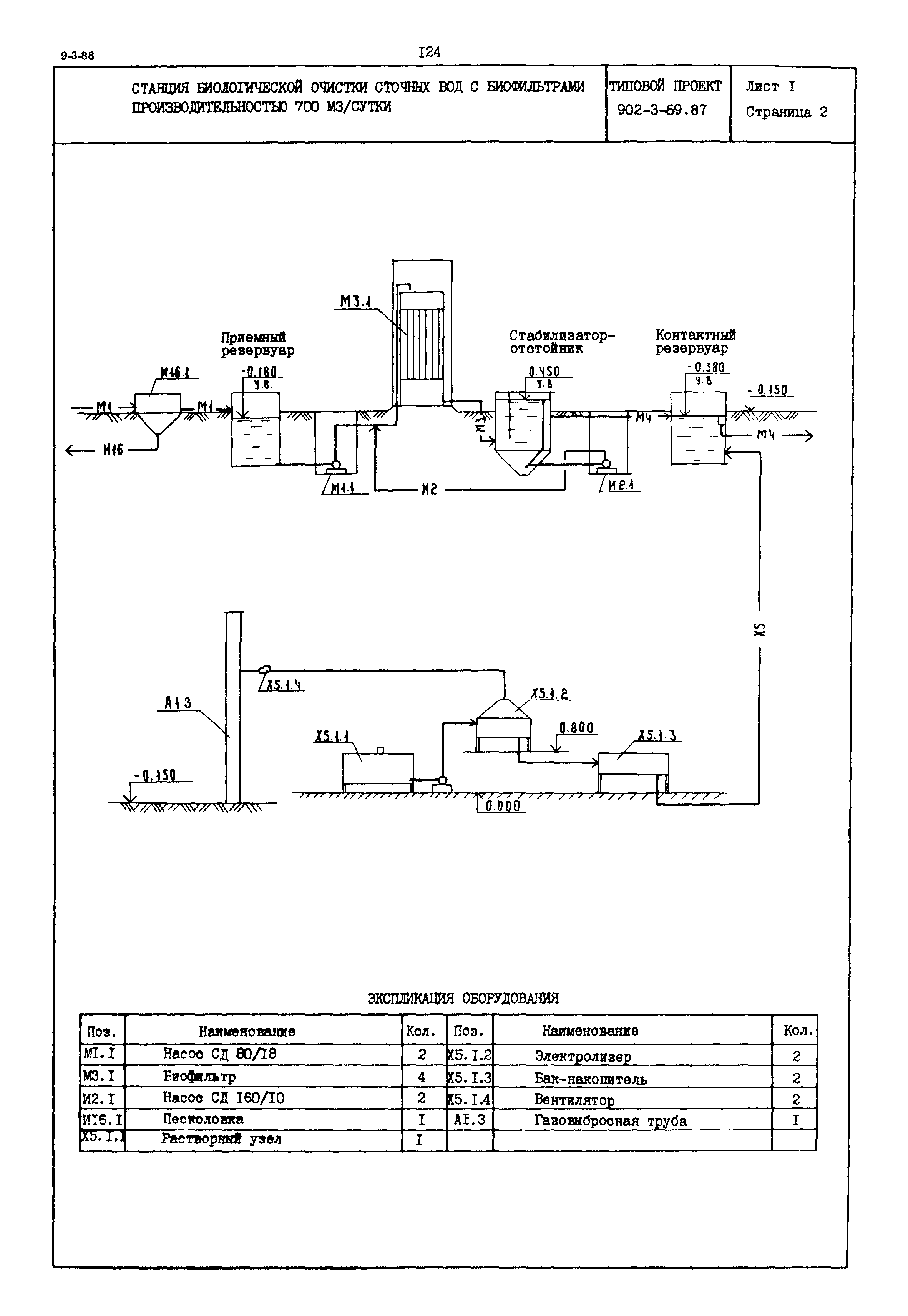
Типовой проект 902-3-69.87

Станция биологической очистки сточных вод с биофильтрами производительностью 700 куб. м/сут

Обозначение: Типовой проект 902-3-69.87
Обозначение англ: 902-3-69.87
Статус:не определен законодательством
Название рус.:Станция биологической очистки сточных вод с биофильтрами производительностью 700 куб. м/сут
Дата добавления в базу:01.09.2013
Дата актуализации:01.01.2021
Дата введения:23.04.1986
Дата окончания срока действия:30.06.2003
Область применения:Станция предназначена для полной биологической очистки бытовых и близких к ним по составу производственных сточных вод. Полная биологическая очистка осуществляется на биофильтрах с пластмассовой загрузкой, самоокисление избыточной пленки в стабилизаторах. Доочистка сточных вод происходит на биопрудах
Типовой проект 902-3-69.87Типовой проект 902-3-69.87Типовой проект 902-3-69.87Типовой проект 902-3-69.87Типовой проект 902-3-69.87