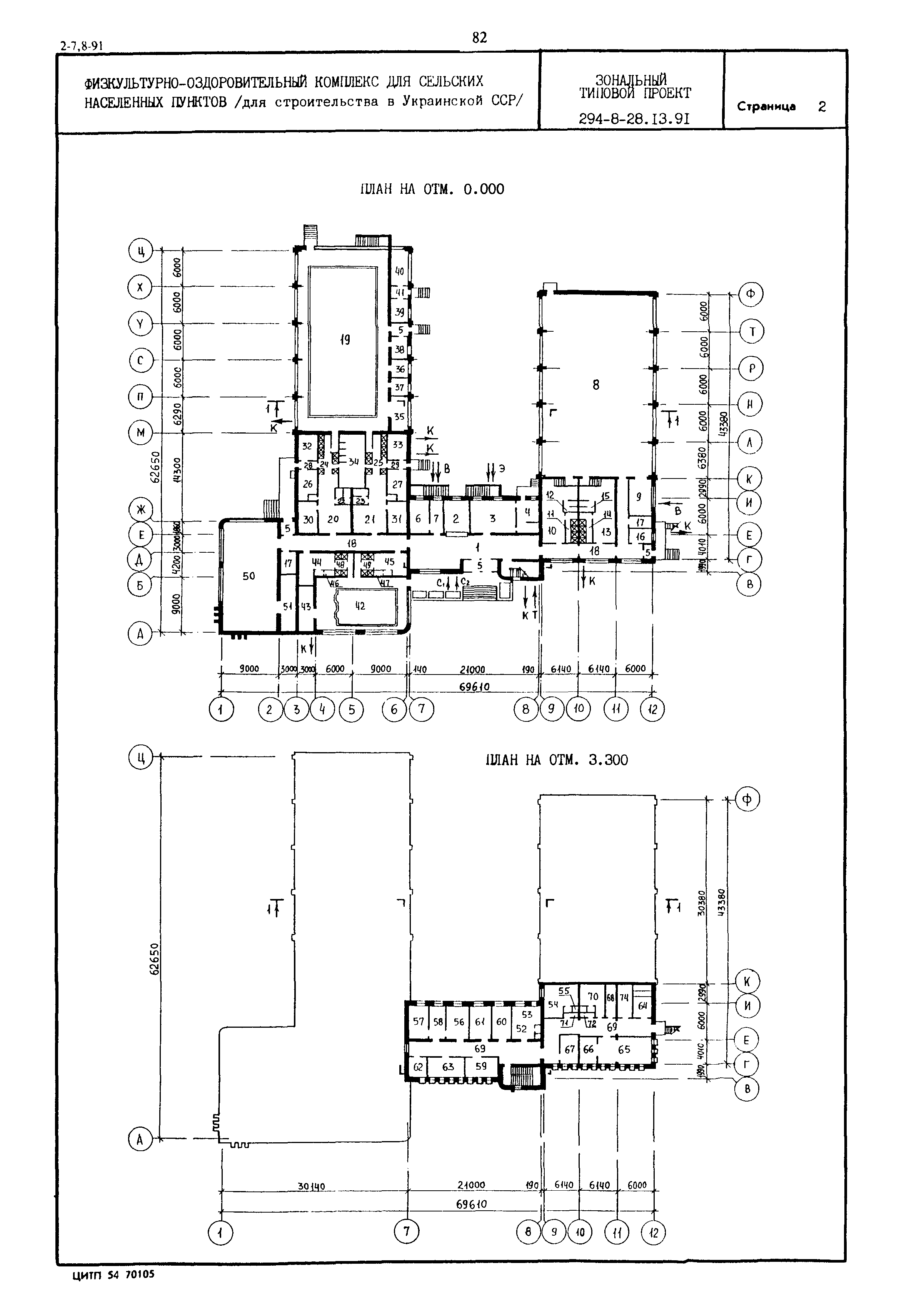
Скачать Типовой проект 294-8-28.13.91 Физкультурно-оздоровительный комплекс для сельских населенных пунктов (для строительства в Украинской ССР)Дата актуализации: 01.01.2021 Типовой проект 294-8-28.13.91
Физкультурно-оздоровительный комплекс для сельских населенных пунктов (для строительства в Украинской ССР)| Обозначение: | Типовой проект 294-8-28.13.91 | | Обозначение англ: | 294-8-28.13.91 | | Статус: | действует | | Название рус.: | Физкультурно-оздоровительный комплекс для сельских населенных пунктов (для строительства в Украинской ССР) | | Дата добавления в базу: | 01.10.2014 | | Дата актуализации: | 01.01.2021 | | Дата введения: | 29.03.1991 |
     
|