Скачать Типовой проект 801-2-115.13.90 Коровник на 25 коров привязного содержания с законченным производственным циклом стены панельные на деревянном каркасе (для подсобных хозяйств предприятий). Для центрального, центрально-черноземного, северо-западного районов РСФСРДата актуализации: 01.01.2021 Типовой проект 801-2-115.13.90
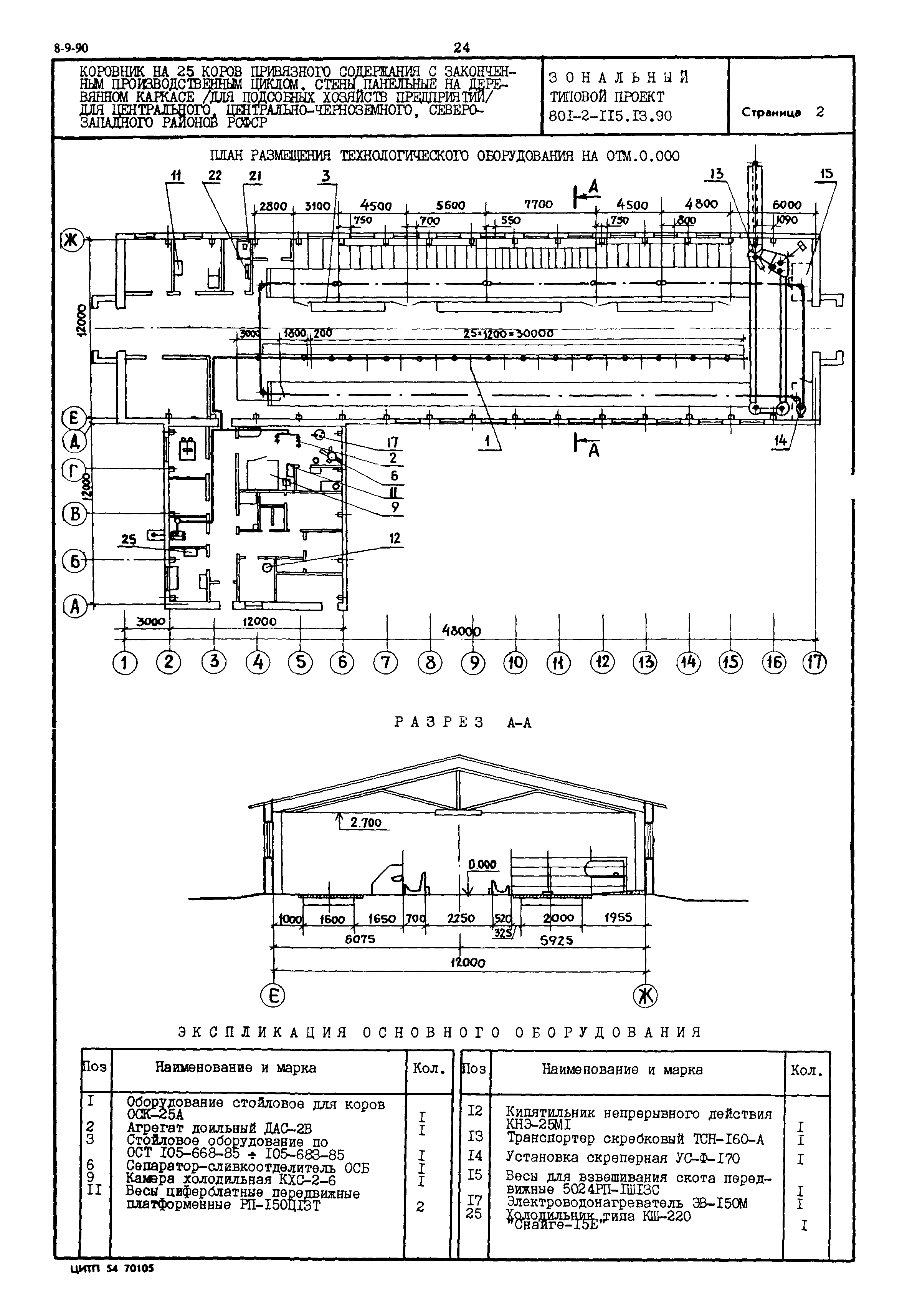
Коровник на 25 коров привязного содержания с законченным производственным циклом стены панельные на деревянном каркасе (для подсобных хозяйств предприятий). Для центрального, центрально-черноземного, северо-западного районов РСФСР| Обозначение: | Типовой проект 801-2-115.13.90 | | Обозначение англ: | 801-2-115.13.90 | | Статус: | не определен законодательством | | Название рус.: | Коровник на 25 коров привязного содержания с законченным производственным циклом стены панельные на деревянном каркасе (для подсобных хозяйств предприятий). Для центрального, центрально-черноземного, северо-западного районов РСФСР | | Дата добавления в базу: | 01.10.2014 | | Дата актуализации: | 01.01.2021 | | Дата введения: | 12.04.1990 | | Дата окончания срока действия: | 30.06.2003 |
     
|