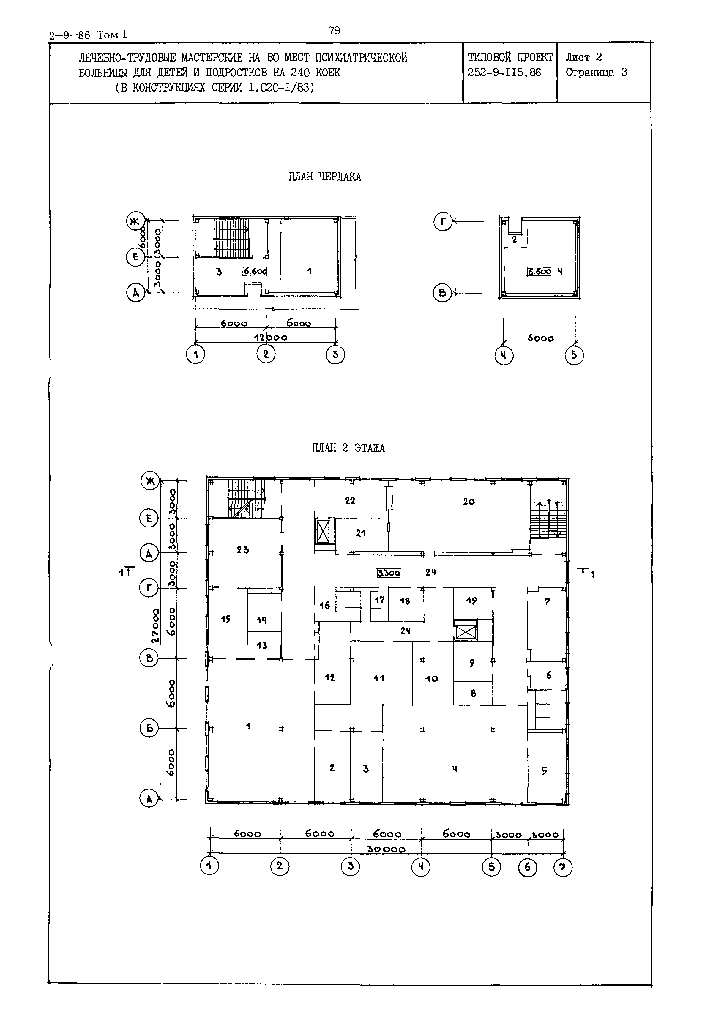
Скачать Типовой проект 252-9-115.86 Лечебно-трудовые мастерские на 80 мест психиатрической больницы для детей и подростков на 240 коек (в конструкциях серии 1.020-1/83)Дата актуализации: 01.01.2021 Типовой проект 252-9-115.86
Лечебно-трудовые мастерские на 80 мест психиатрической больницы для детей и подростков на 240 коек (в конструкциях серии 1.020-1/83)| Обозначение: | Типовой проект 252-9-115.86 | | Обозначение англ: | 252-9-115.86 | | Статус: | не определен законодательством | | Название рус.: | Лечебно-трудовые мастерские на 80 мест психиатрической больницы для детей и подростков на 240 коек (в конструкциях серии 1.020-1/83) | | Дата добавления в базу: | 01.10.2014 | | Дата актуализации: | 01.01.2021 | | Дата введения: | 28.03.1986 | | Дата окончания срока действия: | 30.06.2003 |
     
|