Скачать Типовой проект 264-12-262.85 Общественный центр сельского населенного пункта тип II (из зданий-блоков) со стенами из кирпича. Блок А. Клуб на 200 посетителей с залом на 154 места. Контора на 5 раб. мест. Отделение связи СОС-2. Медпункт. Комплексный приемный пункт бытового обслуживания на 3 рабочих местаДата актуализации: 01.01.2021 Типовой проект 264-12-262.85
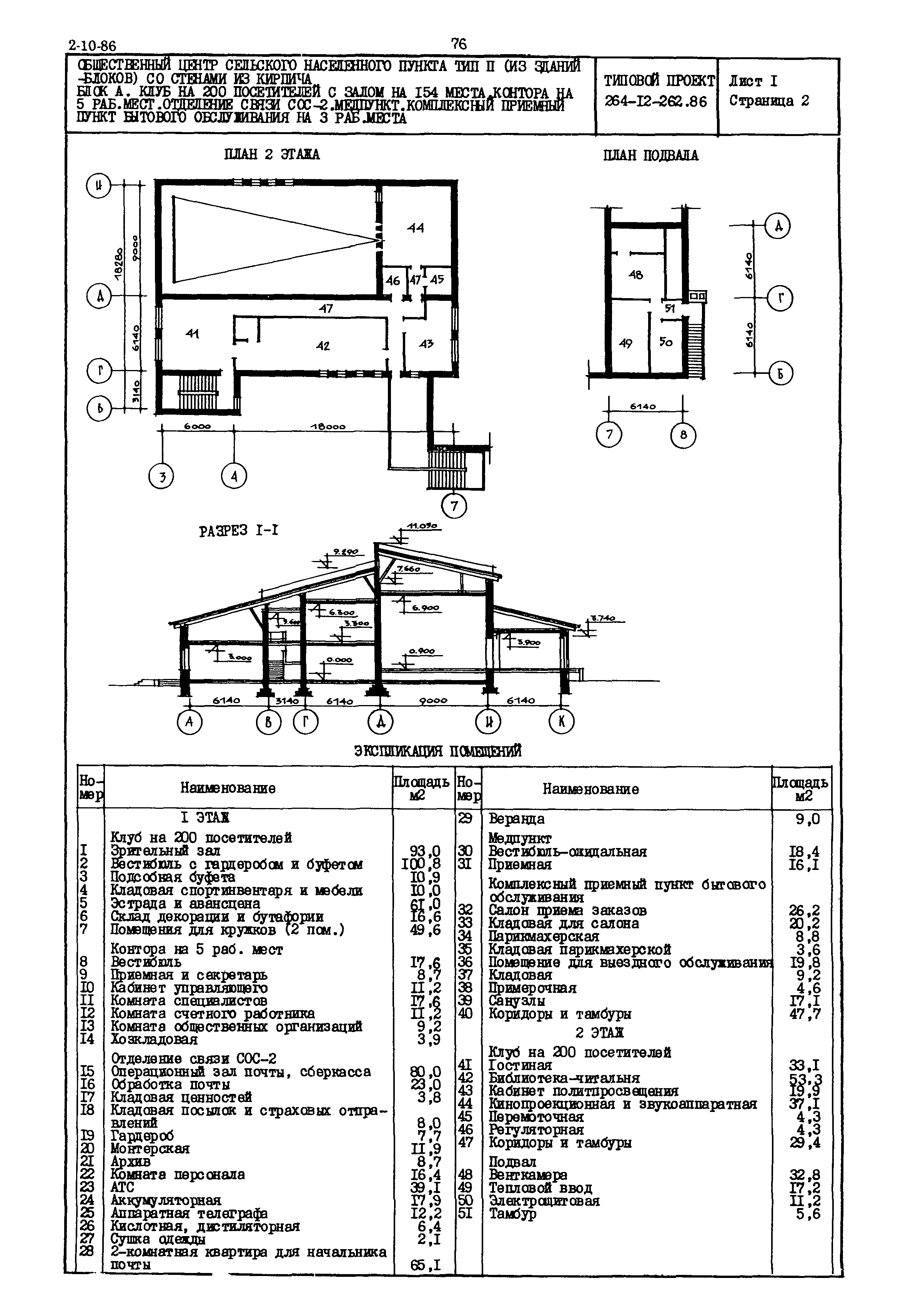
Общественный центр сельского населенного пункта тип II (из зданий-блоков) со стенами из кирпича. Блок А. Клуб на 200 посетителей с залом на 154 места. Контора на 5 раб. мест. Отделение связи СОС-2. Медпункт. Комплексный приемный пункт бытового обслуживания на 3 рабочих места| Обозначение: | Типовой проект 264-12-262.85 | | Обозначение англ: | 264-12-262.85 | | Статус: | действует | | Название рус.: | Общественный центр сельского населенного пункта тип II (из зданий-блоков) со стенами из кирпича. Блок А. Клуб на 200 посетителей с залом на 154 места. Контора на 5 раб. мест. Отделение связи СОС-2. Медпункт. Комплексный приемный пункт бытового обслуживания на 3 рабочих места | | Дата добавления в базу: | 01.10.2014 | | Дата актуализации: | 01.01.2021 | | Дата введения: | 18.06.1986 |
  
|