Скачать Типовой проект 284-1-206.86 Комплексное предприятие бытового обслуживания по ремонту бытовых машин и приборов, радиотелеаппаратуры, химической чистке одежды с салоном по стирке белья для сельских райцентров с численностью населения 20 тысяч жителейДата актуализации: 01.01.2021 Типовой проект 284-1-206.86
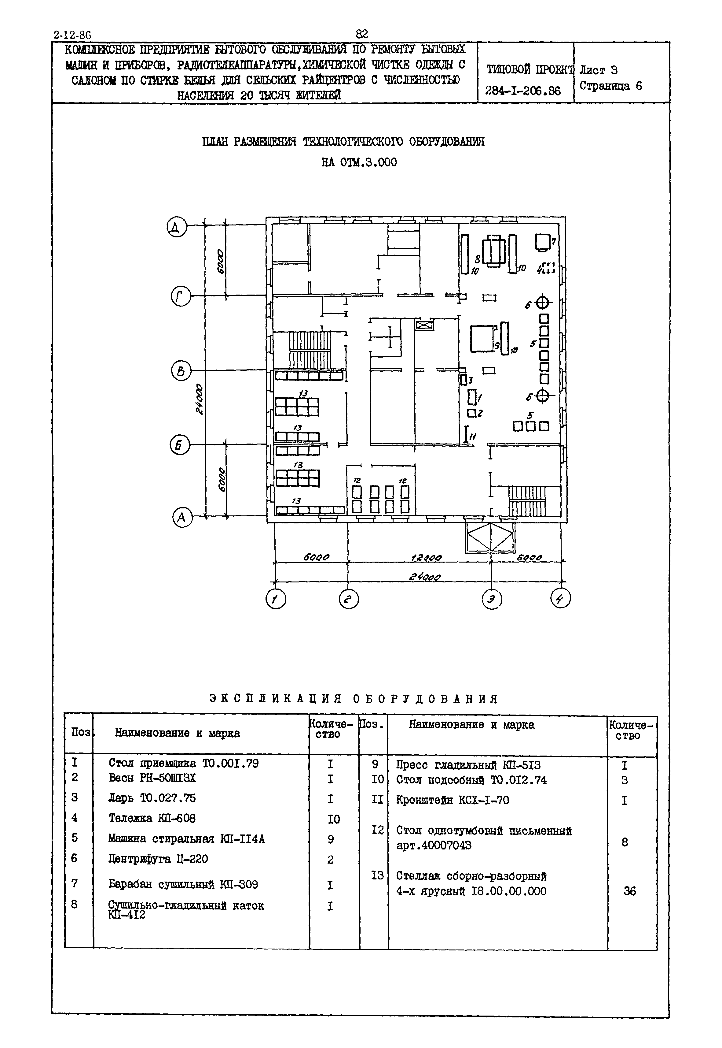
Комплексное предприятие бытового обслуживания по ремонту бытовых машин и приборов, радиотелеаппаратуры, химической чистке одежды с салоном по стирке белья для сельских райцентров с численностью населения 20 тысяч жителей| Обозначение: | Типовой проект 284-1-206.86 | | Обозначение англ: | 284-1-206.86 | | Статус: | не определен законодательством | | Название рус.: | Комплексное предприятие бытового обслуживания по ремонту бытовых машин и приборов, радиотелеаппаратуры, химической чистке одежды с салоном по стирке белья для сельских райцентров с численностью населения 20 тысяч жителей | | Дата добавления в базу: | 01.10.2014 | | Дата актуализации: | 01.01.2021 | | Дата введения: | 19.06.1986 | | Дата окончания срока действия: | 30.06.2003 |
     
|