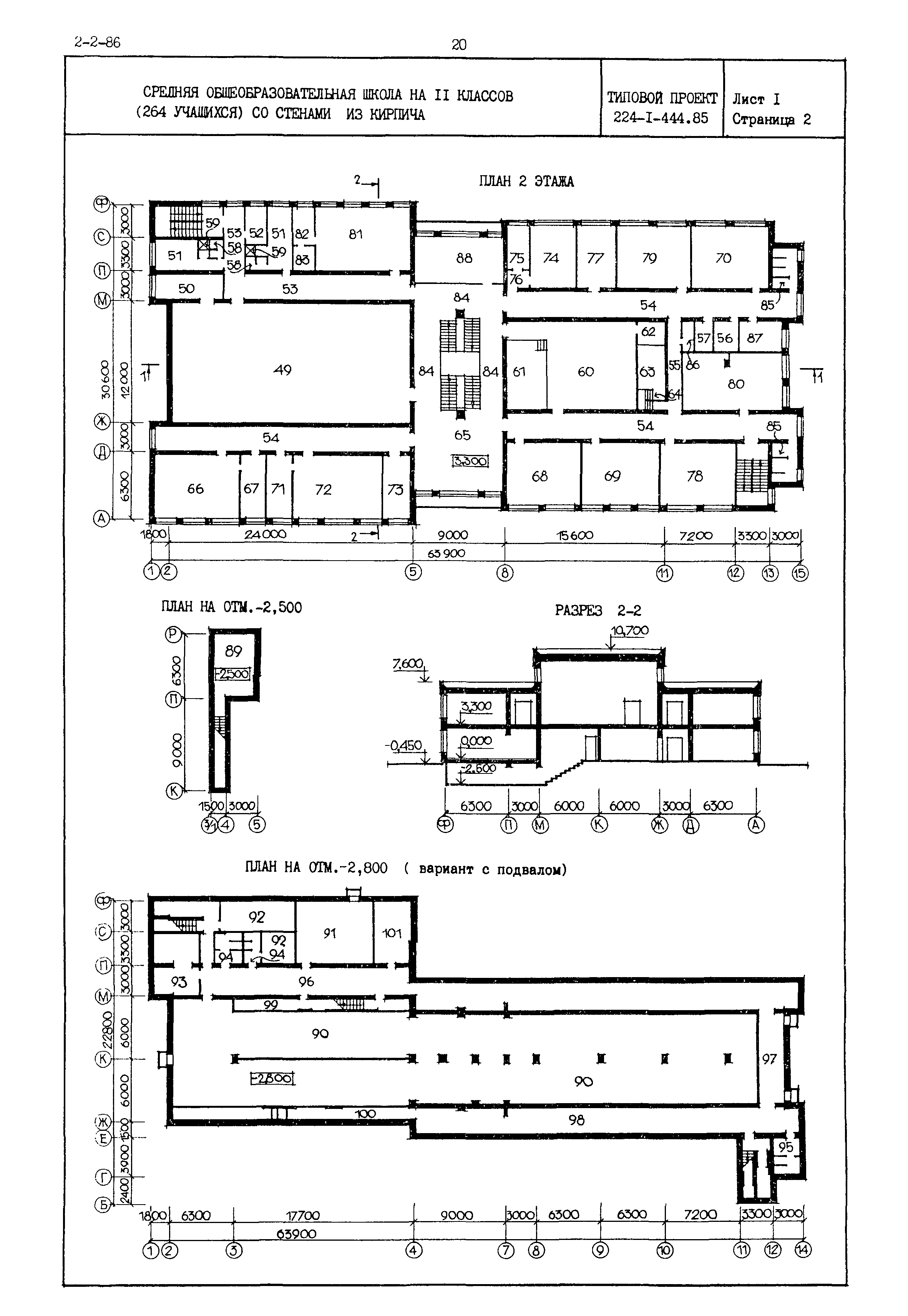
Скачать Типовой проект 224-1-444.85 Средняя общеобразовательная школа на 11 классов (264 учащихся) со стенами из кирпичаДата актуализации: 01.01.2021 Типовой проект 224-1-444.85
Средняя общеобразовательная школа на 11 классов (264 учащихся) со стенами из кирпича| Обозначение: | Типовой проект 224-1-444.85 | | Обозначение англ: | 224-1-444.85 | | Статус: | действует | | Название рус.: | Средняя общеобразовательная школа на 11 классов (264 учащихся) со стенами из кирпича | | Дата добавления в базу: | 01.10.2014 | | Дата актуализации: | 01.01.2021 | | Дата введения: | 02.08.1985 |
     
|