Скачать Типовой проект 264-22-27.85 Здание городского отделения госбанка (стены кирпичные) на 100 сотрудниковДата актуализации: 01.01.2021
|
| Обозначение: | Типовой проект 264-22-27.85 |
| Обозначение англ: | 264-22-27.85 |
| Статус: | действует |
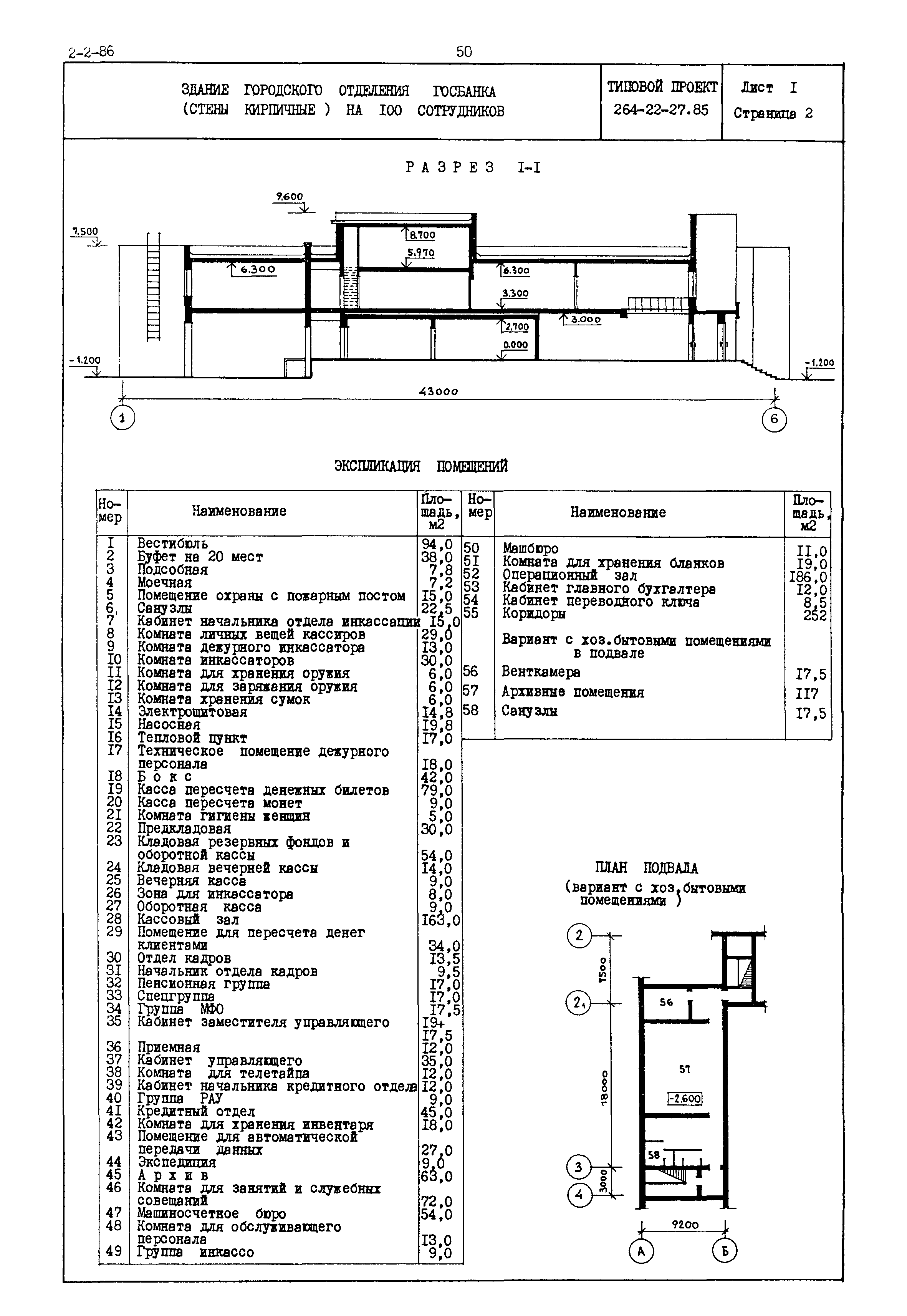
| Название рус.: | Здание городского отделения госбанка (стены кирпичные) на 100 сотрудников |
| Дата добавления в базу: | 01.10.2014 |
| Дата актуализации: | 01.01.2021 |
| Дата введения: | 01.11.1985 |





