Скачать Типовой проект 407-3-388.86 Транспортные подстанции 110/10 кВ без выключателей на стороне высшего напряжения с трансформаторами мощностью от 40 до 63 мВА для промышленных предприятий, подстанция 110-3(У)-2х63-10-2(Б-20)Дата актуализации: 01.01.2021 Типовой проект 407-3-388.86
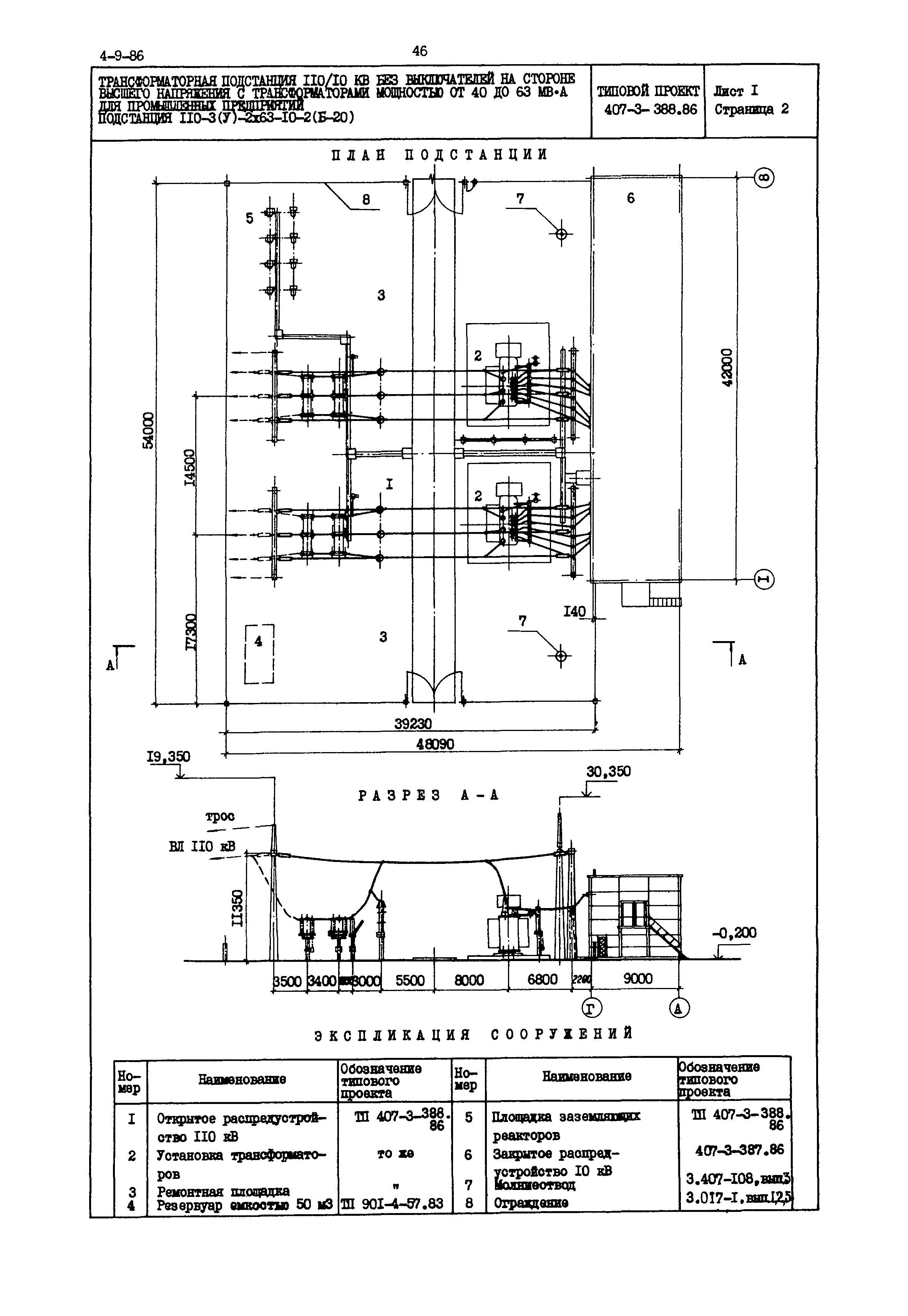
Транспортные подстанции 110/10 кВ без выключателей на стороне высшего напряжения с трансформаторами мощностью от 40 до 63 мВА для промышленных предприятий, подстанция 110-3(У)-2х63-10-2(Б-20)| Обозначение: | Типовой проект 407-3-388.86 | | Обозначение англ: | 407-3-388.86 | | Статус: | отменен | | Название рус.: | Транспортные подстанции 110/10 кВ без выключателей на стороне высшего напряжения с трансформаторами мощностью от 40 до 63 мВА для промышленных предприятий, подстанция 110-3(У)-2х63-10-2(Б-20) | | Дата добавления в базу: | 01.01.2019 | | Дата актуализации: | 01.01.2021 | | Дата введения: | 21.12.1984 | | Дата окончания срока действия: | 01.01.1989 | | Область применения: | Подстанция 110-3(У)-2х63-10-2(Б-20) предназначена для электроснабжения промышленных предприятий с загрязненной атмосферой. На подстанции могут быть установлены трансформаторы 110/10 кВ мощностью 40, 63 мВА. Эксплуатация подстанции без постоянного дежурства персонала РУ-10 кВ комплектуется шкафами КМ-IФ-10-20-У3. Компоновка ЗРУ-10 кВ предполагает выход кабелей 10 кВ на кабельные галереи или эстакады. Типовой проект разработан применительно к подстанциям без стационарной аккумуляторной батареи. Схемы вторичных соединений в объем типового проекта не входят |
    
|