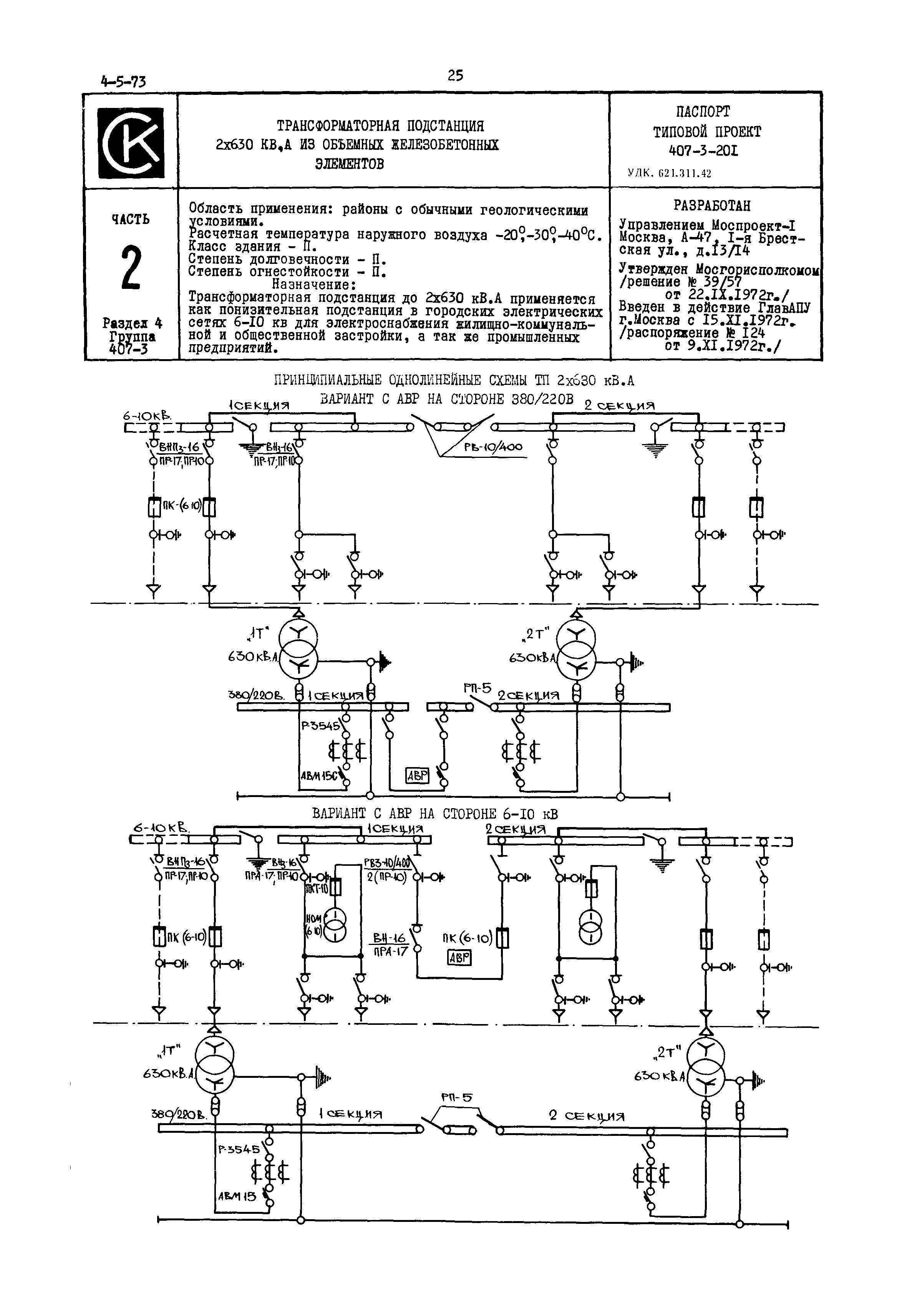
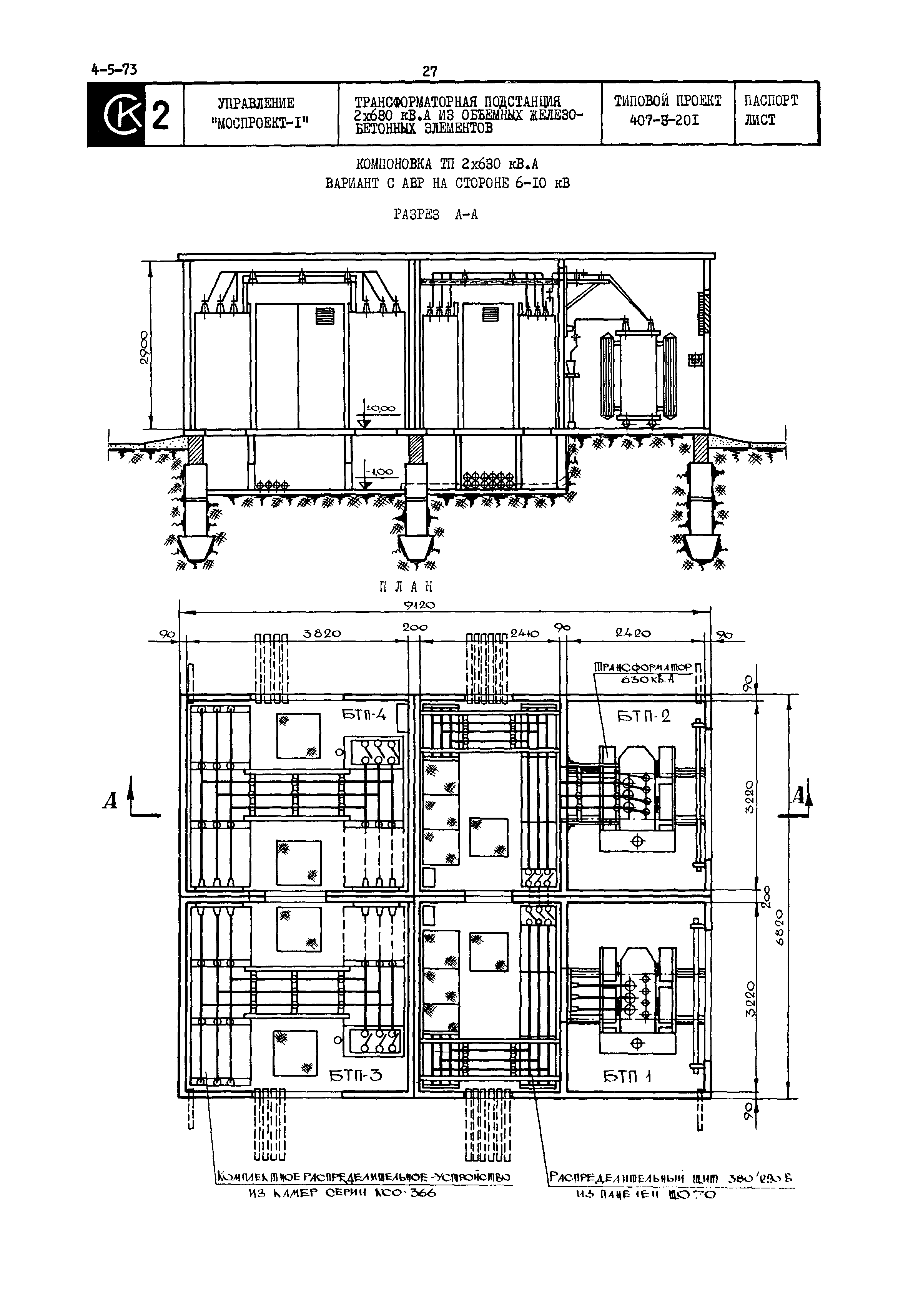
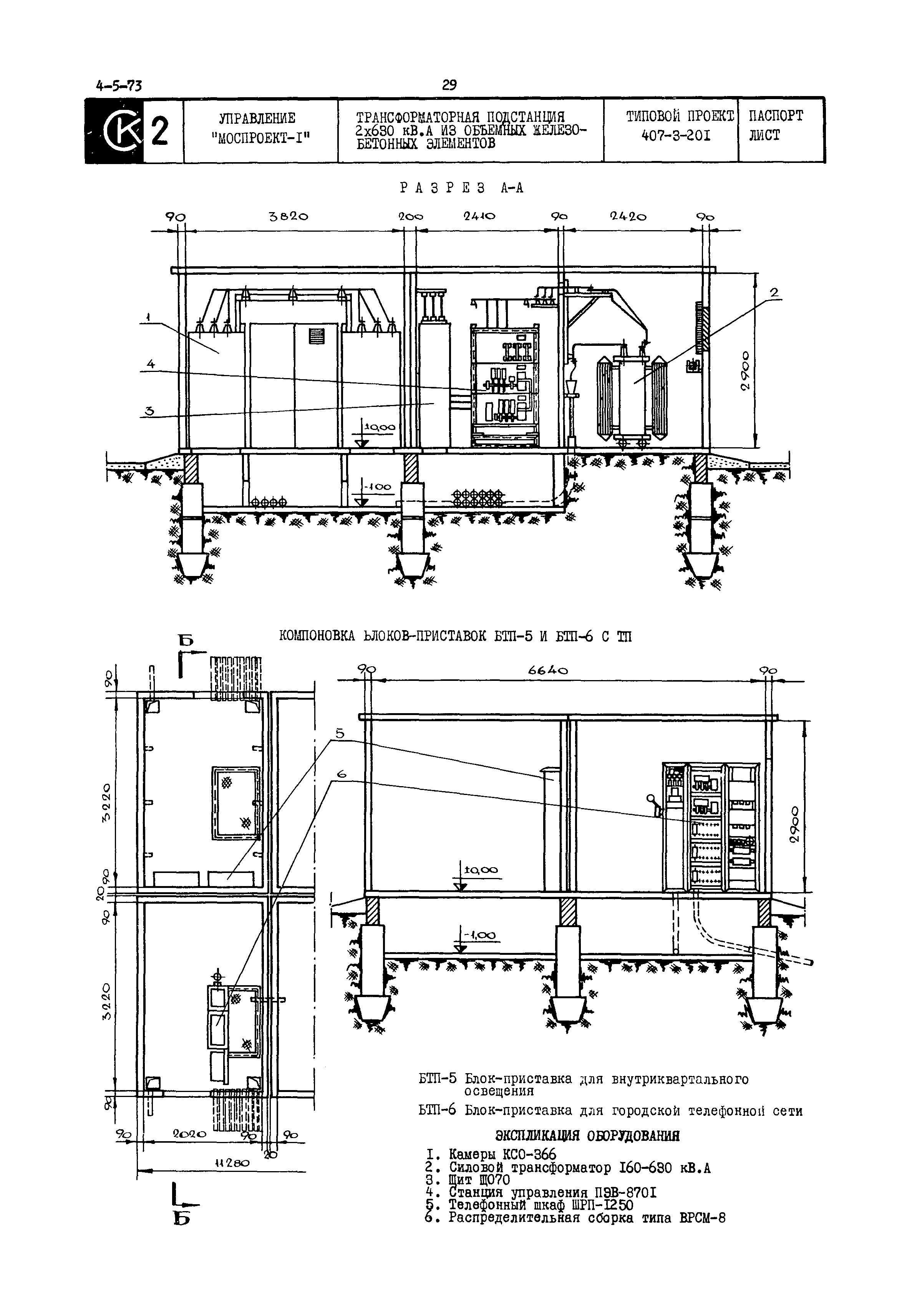
Скачать Типовой проект 407-3-201 Трансформаторная подстанция 2х630 кВА из объемных железобетонных элементовДата актуализации: 01.01.2021
|
| Обозначение: | Типовой проект 407-3-201 |
| Обозначение англ: | 407-3-201 |
| Статус: | действует |
| Название рус.: | Трансформаторная подстанция 2х630 кВА из объемных железобетонных элементов |
| Дата добавления в базу: | 01.10.2014 |
| Дата актуализации: | 01.01.2021 |
| Дата введения: | 15.11.1972 |






