Скачать Типовой проект 901-3-138 Станция обезжелезивания воды подземных источников с содержанием железа до 10 мг/л производительностью 40 тыс. куб. м/сутки

Дата актуализации: 01.01.2021

Типовой проект 901-3-138

Станция обезжелезивания воды подземных источников с содержанием железа до 10 мг/л производительностью 40 тыс. куб. м/сутки

Обозначение: Типовой проект 901-3-138
Обозначение англ: 901-3-138
Статус:заменен
Название рус.:Станция обезжелезивания воды подземных источников с содержанием железа до 10 мг/л производительностью 40 тыс. куб. м/сутки
Дата добавления в базу:01.02.2017
Дата актуализации:01.01.2021
Дата введения:05.06.1980
Дата окончания срока действия:01.09.1989
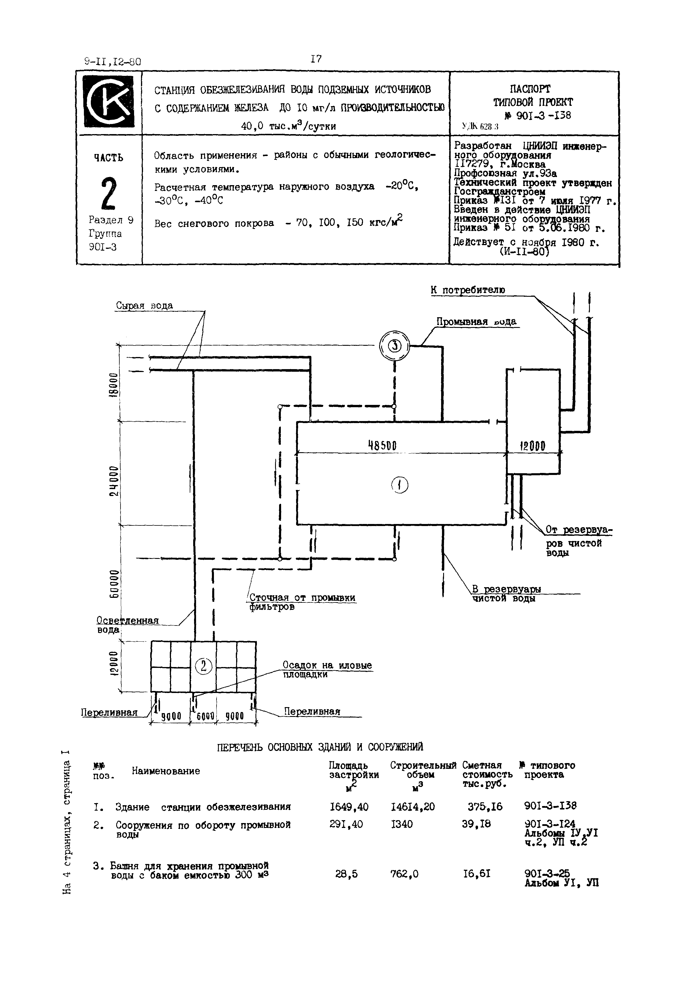
Область применения:Станция обезжелезивания воды подземных источников производительностью 40 тыс. куб. м/сутки предназначается для удаления из воды железа методом фильтрования на скорых фильтрах с упрощенной системой аэрации при содержании железа (общего) в исходной воде до 10 мг/л. Промывка фильтров предусмотрена от специальной водонапорной башни
Типовой проект 901-3-138Типовой проект 901-3-138Типовой проект 901-3-138Типовой проект 901-3-138Типовой проект 901-3-138Типовой проект 901-3-138