Скачать Типовые проектные решения 820-02-1с Напорные трубопроводы из асбестоцементных труб диаметром до 500 мм для оросительных систем с широкозахватной дождевальной техникой (секции)Дата актуализации: 01.01.2021 Типовые проектные решения 820-02-1с
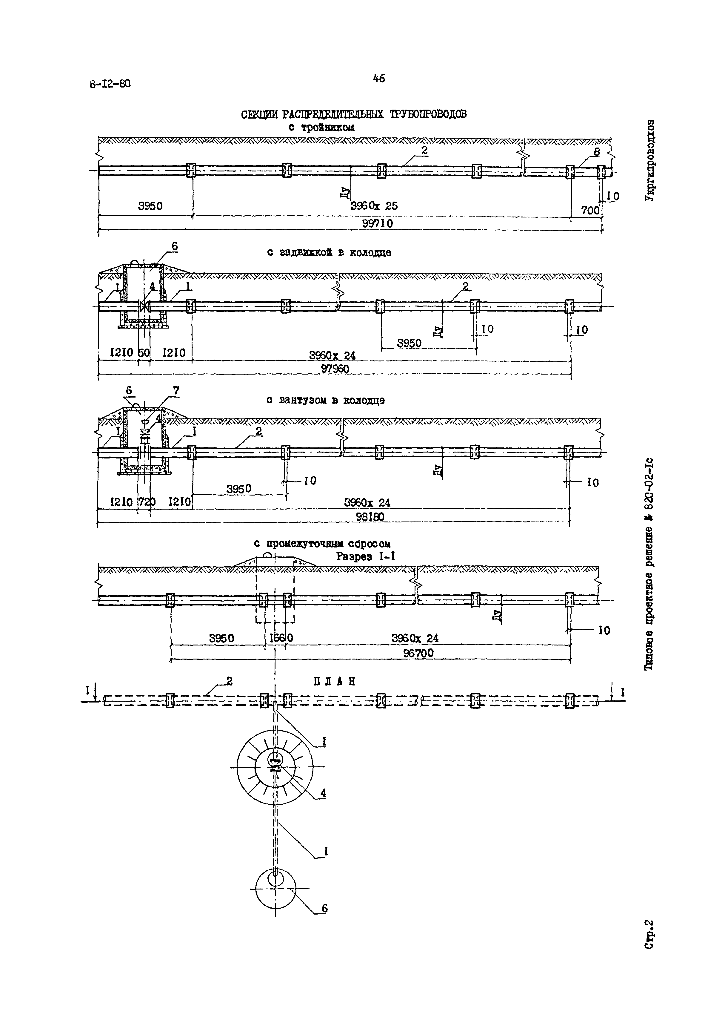
Напорные трубопроводы из асбестоцементных труб диаметром до 500 мм для оросительных систем с широкозахватной дождевальной техникой (секции)| Обозначение: | Типовые проектные решения 820-02-1с | | Обозначение англ: | 820-02-1с | | Статус: | не действует | | Название рус.: | Напорные трубопроводы из асбестоцементных труб диаметром до 500 мм для оросительных систем с широкозахватной дождевальной техникой (секции) | | Дата добавления в базу: | 12.02.2016 | | Дата актуализации: | 01.01.2021 | | Дата окончания срока действия: | 01.01.1984 |
 
|