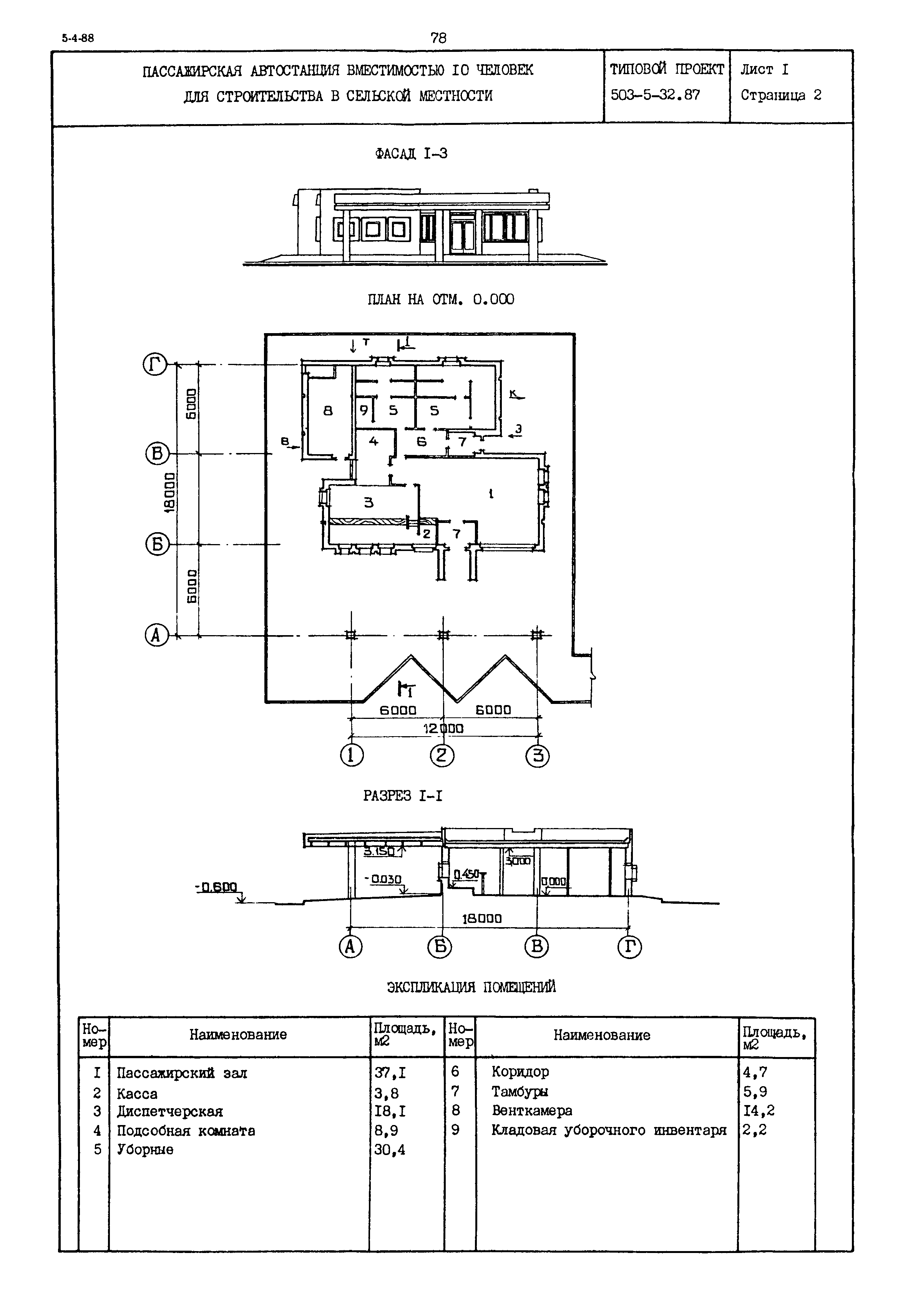
Скачать Типовой проект 503-5-32.87 Пассажирская автостанция вместимостью 10 человек для строительства в сельской местностиДата актуализации: 01.01.2021 Типовой проект 503-5-32.87
Пассажирская автостанция вместимостью 10 человек для строительства в сельской местности| Обозначение: | Типовой проект 503-5-32.87 | | Обозначение англ: | 503-5-32.87 | | Статус: | не определен законодательством | | Название рус.: | Пассажирская автостанция вместимостью 10 человек для строительства в сельской местности | | Дата добавления в базу: | 01.02.2017 | | Дата актуализации: | 01.01.2021 | | Дата введения: | 24.09.1987 | | Дата окончания срока действия: | 30.06.2003 |
   
|