Скачать Типовой проект 503-5-33.87 Пассажирская автостанция вместимостью 15 человек для строительства в сельской местности

Дата актуализации: 01.01.2021

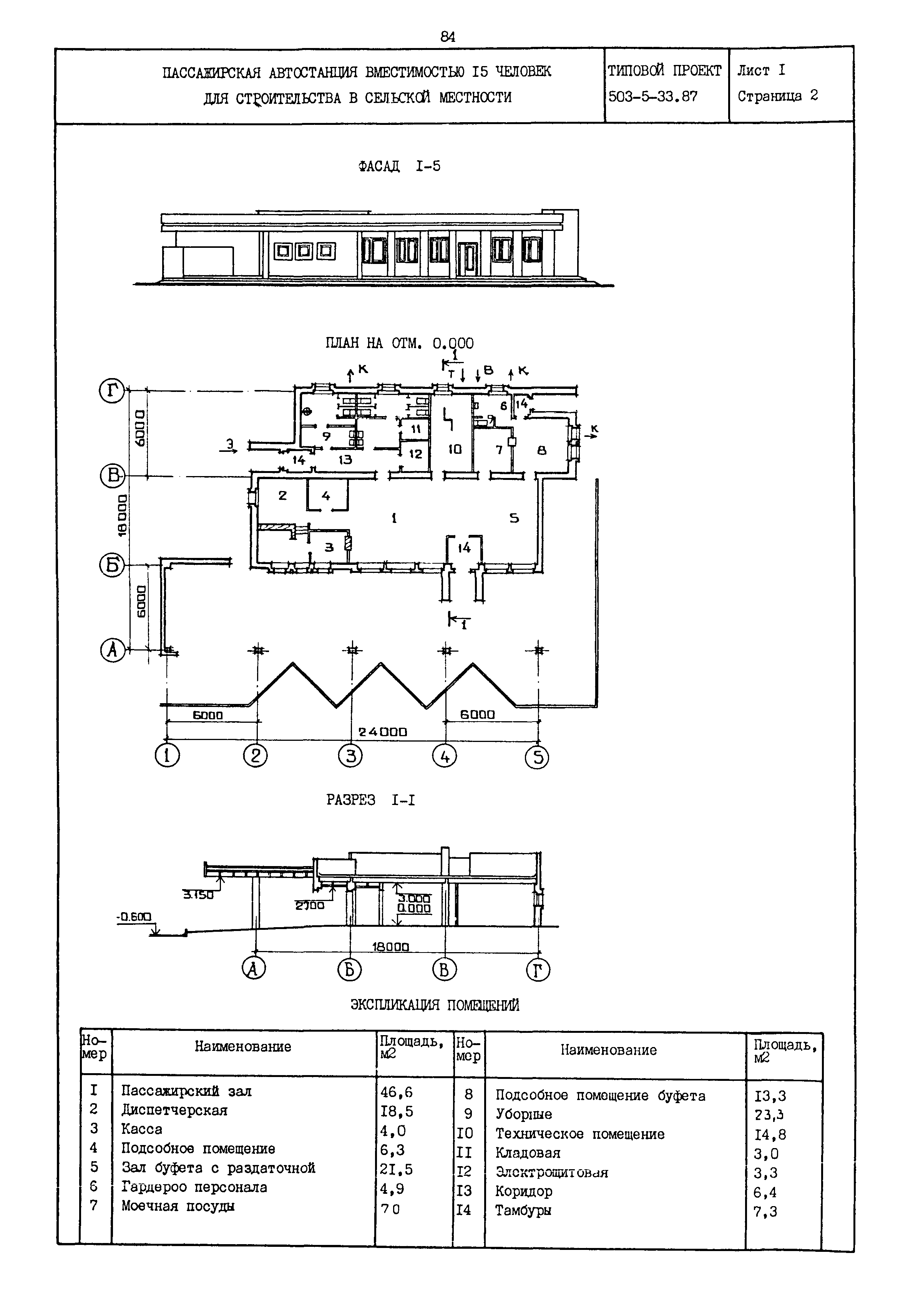
Типовой проект 503-5-33.87

Пассажирская автостанция вместимостью 15 человек для строительства в сельской местности

Обозначение: Типовой проект 503-5-33.87
Обозначение англ: 503-5-33.87
Статус:не определен законодательством
Название рус.:Пассажирская автостанция вместимостью 15 человек для строительства в сельской местности
Дата добавления в базу:01.02.2017
Дата актуализации:01.01.2021
Дата введения:24.09.1987
Дата окончания срока действия:30.06.2003
Область применения:Пассажирская автостанция предназначена для обслуживания пассажиров в сельской местности на начальных, конечных и транзитных пунктах междугородных и пригородных автобусных маршрутов
Типовой проект 503-5-33.87Типовой проект 503-5-33.87Типовой проект 503-5-33.87Типовой проект 503-5-33.87Типовой проект 503-5-33.87