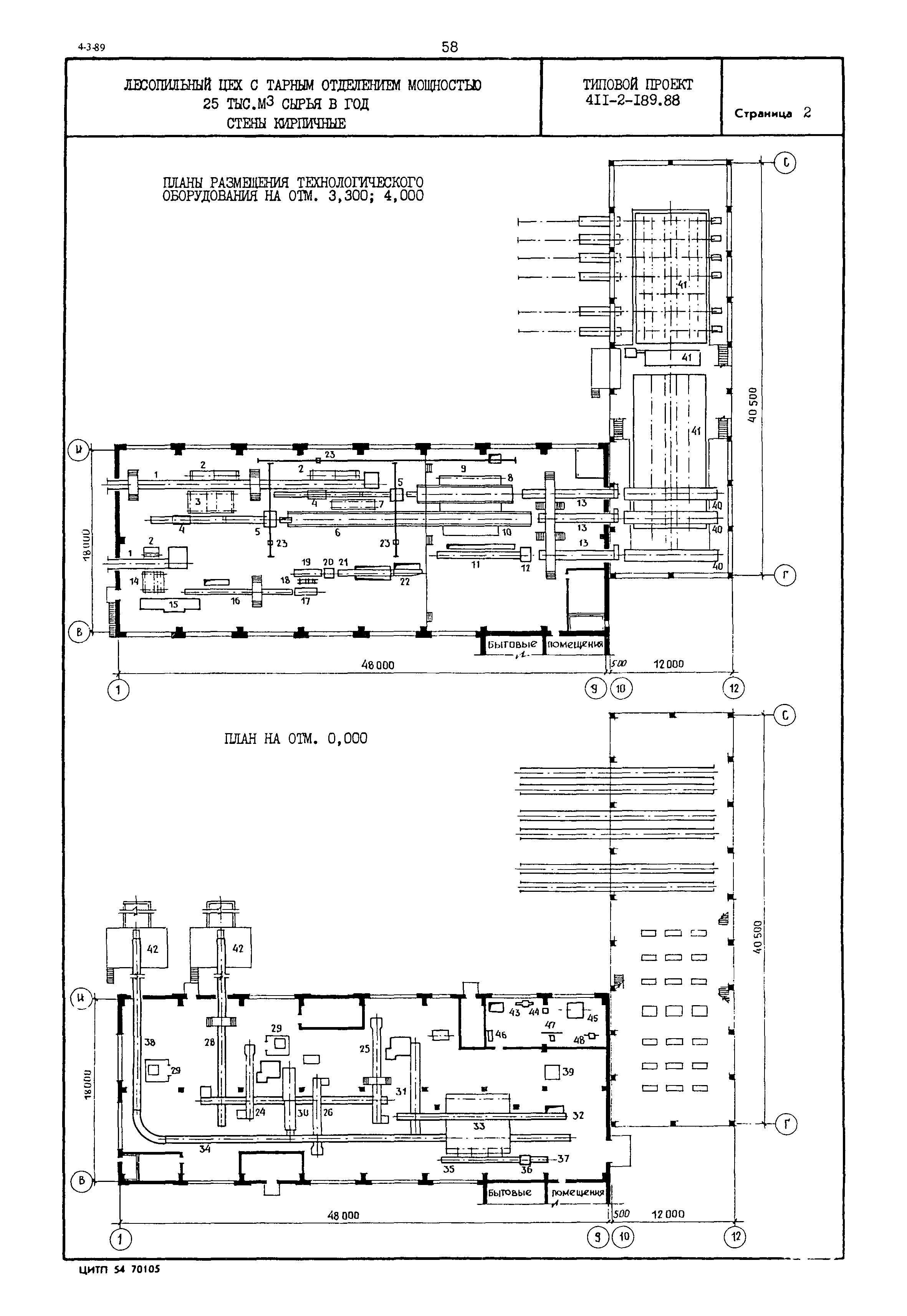
Скачать Типовой проект 411-2-189.88 Лесопильный цех с тарным отделением мощностью 25 тыс. куб. м сырья в год (стены кирпичные)Дата актуализации: 01.01.2021
|
| Обозначение: | Типовой проект 411-2-189.88 |
| Обозначение англ: | 411-2-189.88 |
| Статус: | не определен законодательством |
| Название рус.: | Лесопильный цех с тарным отделением мощностью 25 тыс. куб. м сырья в год (стены кирпичные) |
| Дата добавления в базу: | 01.01.2021 |
| Дата актуализации: | 01.01.2021 |
| Дата введения: | 18.10.1988 |
| Дата окончания срока действия: | 30.06.2003 |
| Область применения: | Цех предназначен для переработки круглых лесоматериалов на пиломатериалы и комплекты деталей ящичной тары |








