Скачать Типовые проектные решения 820-1-0116с.94 Переезды с ребристыми железобетонными трубами диаметром от 600 до 1400 мм на расход воды до 10 куб. м/с для оросительных системДата актуализации: 01.01.2021 Типовые проектные решения 820-1-0116с.94
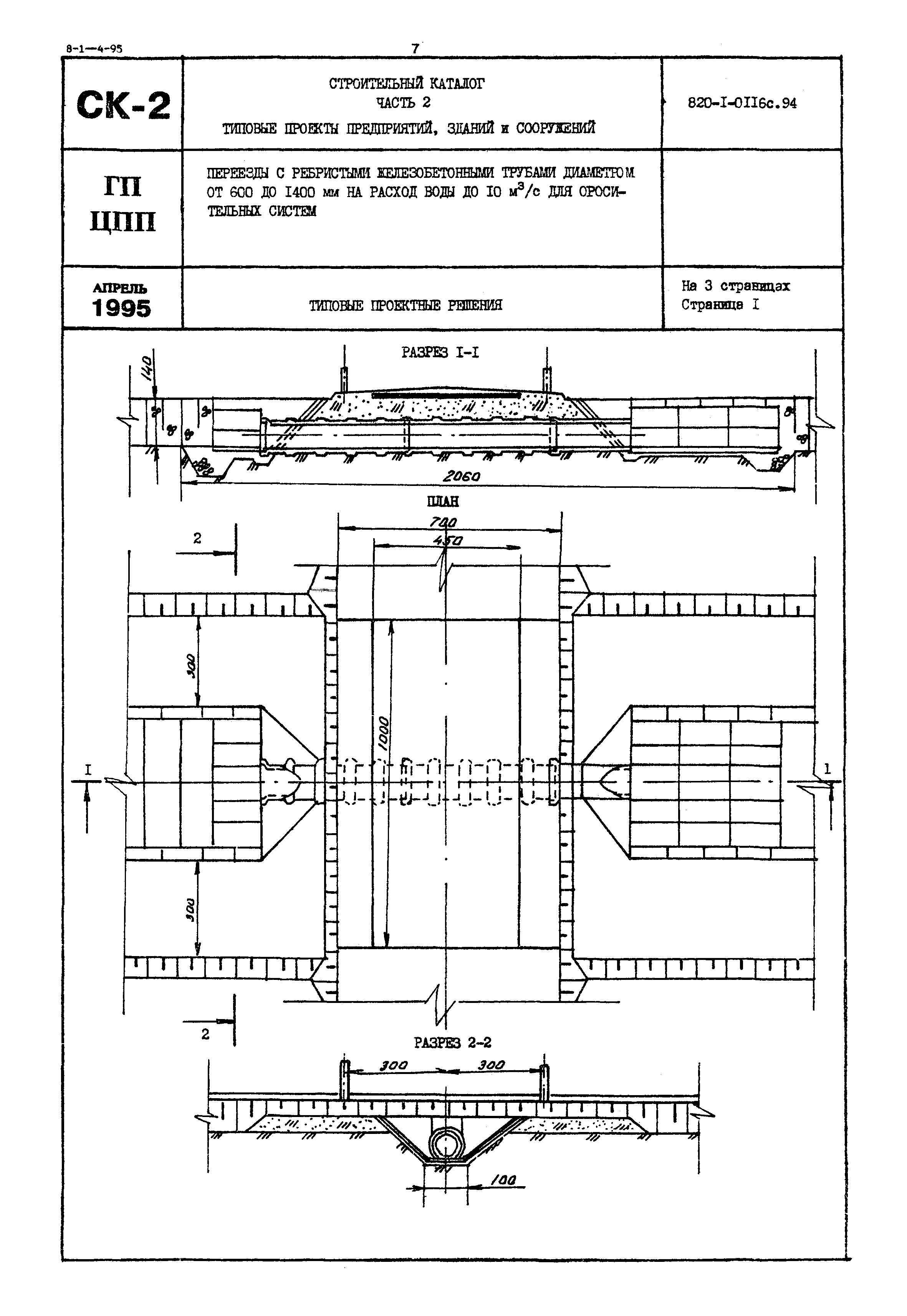
Переезды с ребристыми железобетонными трубами диаметром от 600 до 1400 мм на расход воды до 10 куб. м/с для оросительных систем| Обозначение: | Типовые проектные решения 820-1-0116с.94 | | Обозначение англ: | 820-1-0116с.94 | | Статус: | справочные материалы, мп, тпр | | Название рус.: | Переезды с ребристыми железобетонными трубами диаметром от 600 до 1400 мм на расход воды до 10 куб. м/с для оросительных систем | | Дата добавления в базу: | 01.02.2020 | | Дата актуализации: | 01.01.2021 | | Дата введения: | 16.01.1995 | | Область применения: | Переезды предназначены для пропуска воды на каналах оросительных систем в местах пересечения их дорогами (полевыми, внутрихозяйственными, межхозяйственными). |
 
|