Скачать ВСН 139-80 Инструкция по строительству цементобетонных покрытий автомобильных дорогДата актуализации: 01.01.2021
|
| Обозначение: | ВСН 139-80 |
| Обозначение англ: | VSN 139-80 |
| Статус: | заменен в части |
| Название рус.: | Инструкция по строительству цементобетонных покрытий автомобильных дорог |
| Название англ.: | Construction Guidelines for Cement Concrete Road Pavements |
| Дата добавления в базу: | 01.09.2013 |
| Дата актуализации: | 01.01.2021 |
| Дата введения: | 01.01.1981 |
| Дата окончания срока действия: | 01.10.1983 |
| Область применения: | Инструкция распространяется на конструирование и строительство цементобетонных покрытий и оснований из монолитного бетона на автомобильных дорогах общей сети СССР. |
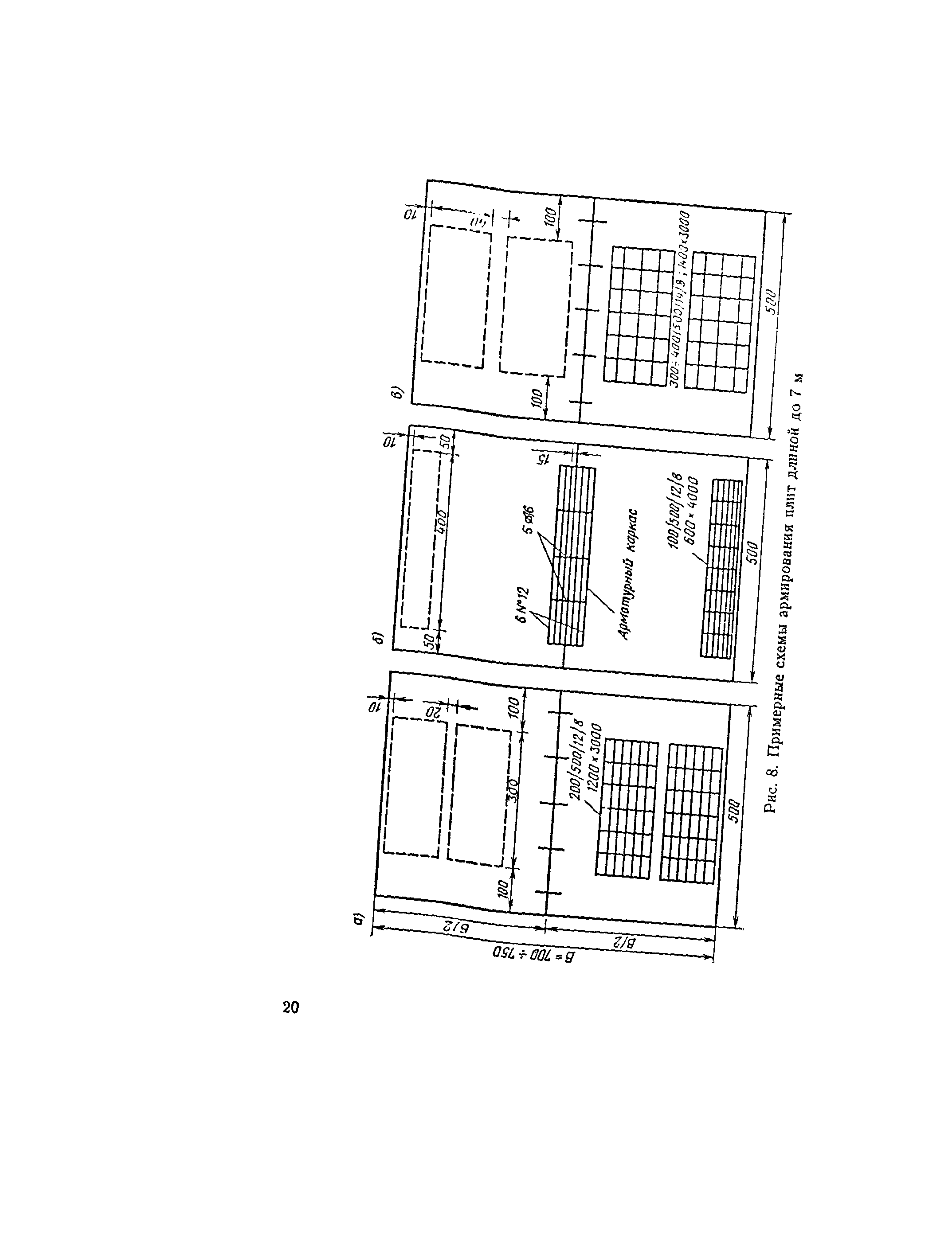
| Оглавление: | 1 Общие положения 2 Конструкция дорожной одежды с бетонными покрытиями и основаниями 3 Требования к материалам для бетонных покрытий и оснований 4 Подбор состава дорожного бетона 5 Правила производства работ 6 Контроль качества бетонной смеси, бетона и строительства бетонного покрытия (основания) 7 Приемка работ 8 Техника безопасности и охрана труда при строительстве бетонных покрытий и оснований Приложение 1 Указания по применению воздухововлекающих и пластифицирующих добавок поверхностно-активных веществ в дорожном бетоне Приложение 2 Указания по применению кремнийорганических полимеров при строительстве бетонных покрытий Приложение 3 Методические указания по определению содержания воздуха в бетонной смеси воздухомером конструкции ЦНИИСа Приложение 4 Указания по методике испытания кернов, взятых из покрытий |
| Разработан: | Союздорнии Минтрансстроя |
| Утверждён: | 07.02.1980 Минтрансстрой СССР (USSR Mintransstroy Л-210) |
| Принят: | 30.11.1978 Госстрой СССР (Государственный комитет Совета Министров СССР по делам строительства) (USSR Gosstroy 1-4565) |
| Издан: | ВПТИтрансстрой (1980 г. ) |
| Список изменений: |
|
| Заменяет собой: |
|
| Нормативные ссылки: |
|













































































































