Скачать ГОСТ 17508-85 Рельсы остряковые ОР50. Размеры

Дата актуализации: 01.01.2021

ГОСТ 17508-85

Рельсы остряковые ОР50. Размеры

Обозначение: ГОСТ 17508-85
Обозначение англ: GOST 17508-85
Статус:отменен в рф
Название рус.:Рельсы остряковые ОР50. Размеры
Название англ.:Switch point rails OP50. Dimensions
Дата добавления в базу:01.09.2013
Дата актуализации:01.01.2021
Дата введения:01.07.1986
Дата окончания срока действия:01.07.2014
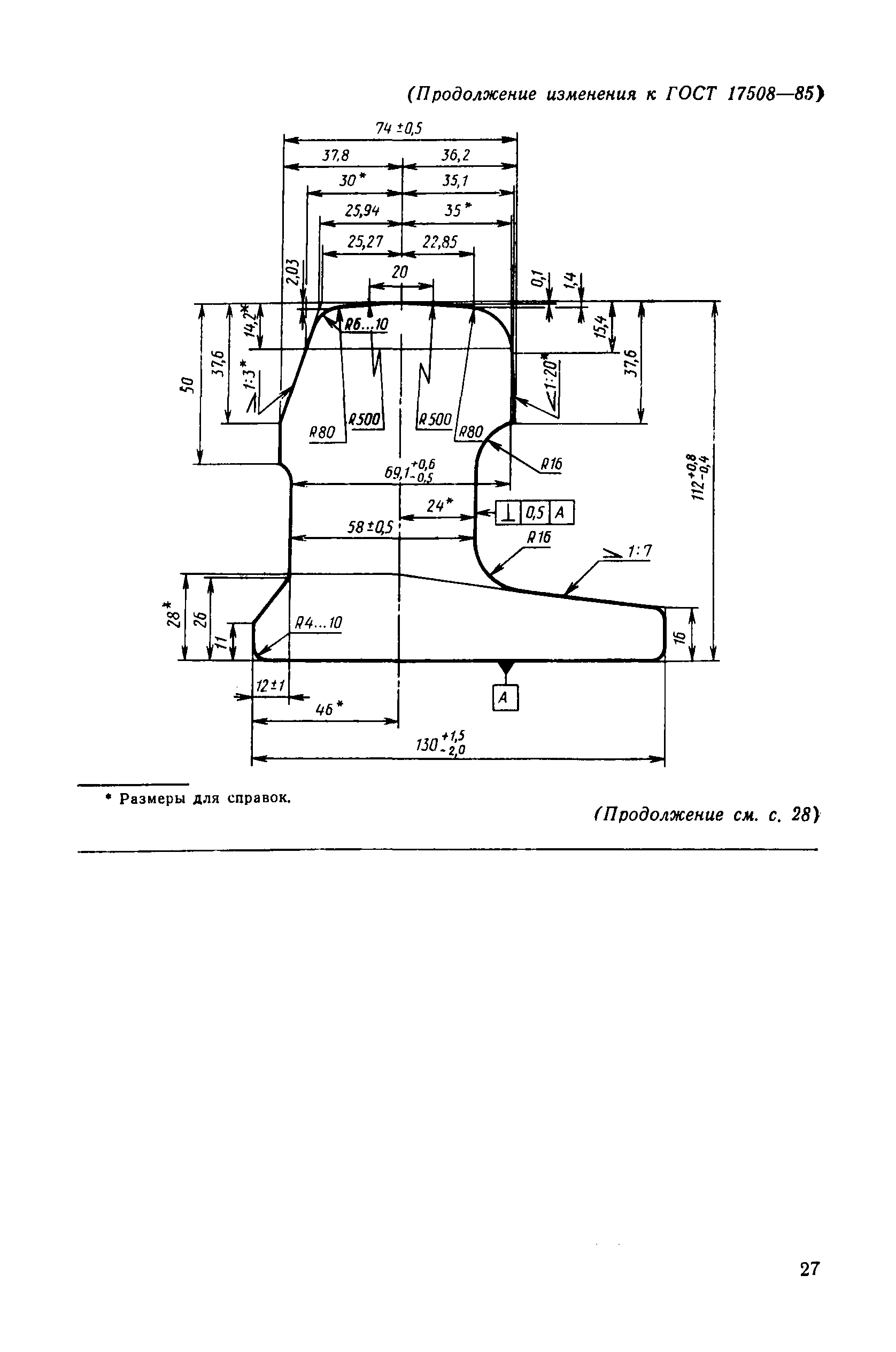
Область применения:Стандарт распространяется на остряковые рельсы ОР50, применяемые в конструкциях верхнего строения железнодорожного пути.
Оглавление:Приложение (справочное) Расчетные данные рельсов
Разработан: Министерство путей сообщения
Утверждён:26.09.1985 Государственный комитет СССР по стандартам (USSR National Committee on Standards 3051)
Издан: Издательство стандартов (1986 г. )
Список изменений:
Заменяет собой:
  • ГОСТ 17508-80 «Рельсы остряковые ОР50. Размеры»
Нормативные ссылки:
ГОСТ 17508-85ГОСТ 17508-85ГОСТ 17508-85ГОСТ 17508-85ГОСТ 17508-85ГОСТ 17508-85ГОСТ 17508-85ГОСТ 17508-85ГОСТ 17508-85ГОСТ 17508-85

Текстовое изменение № 1 от 01.07.1991

№ 1№ 1№ 1