Скачать ГОСТ 20157-74 Плиты модельные со сменными глубокими деревянными вкладышами для опоки размерами в свету 600х500 мм на формовочные литейные машины с поворотом полуформы с допрессовкой. Конструкция и размеры

Дата актуализации: 01.01.2021

ГОСТ 20157-74

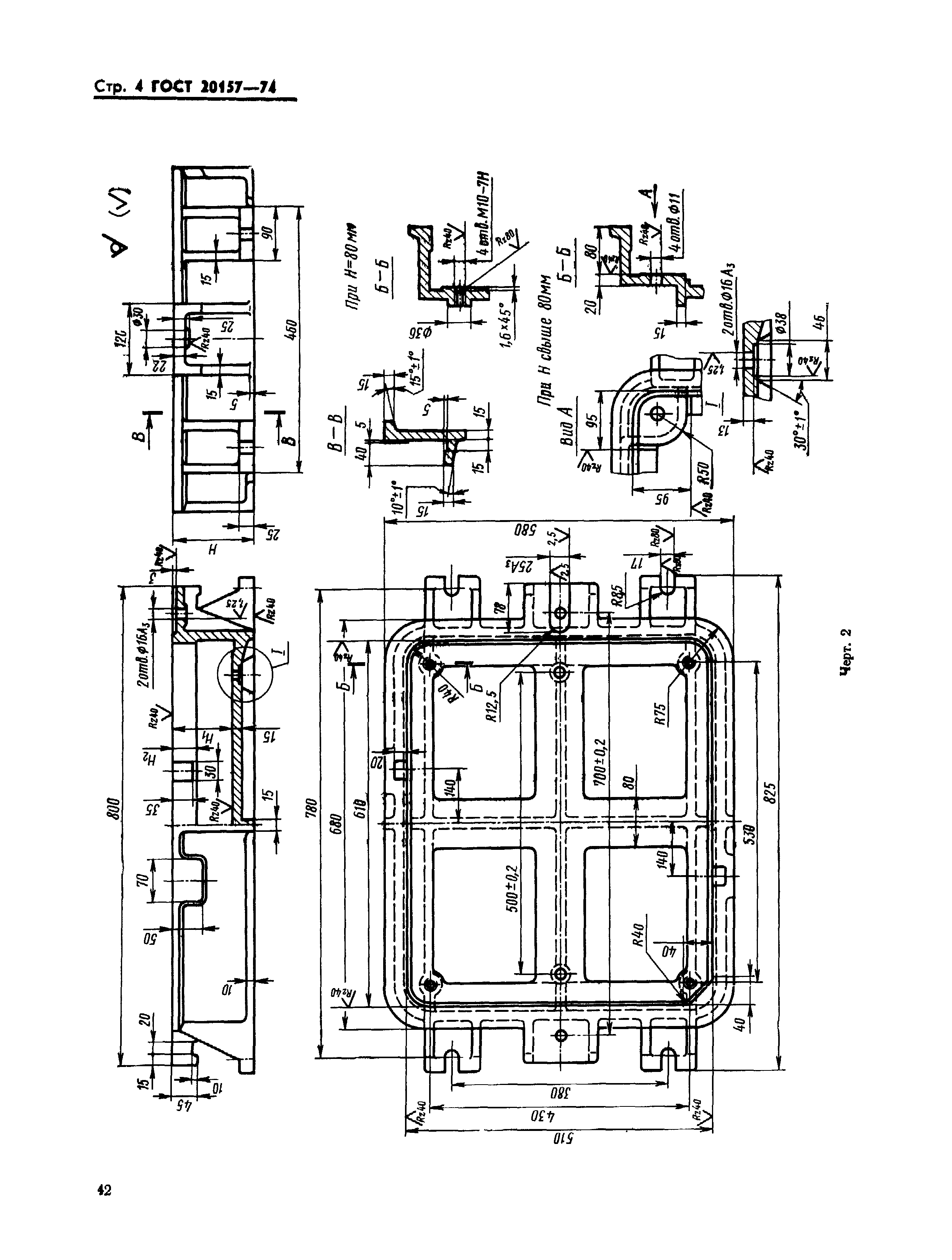
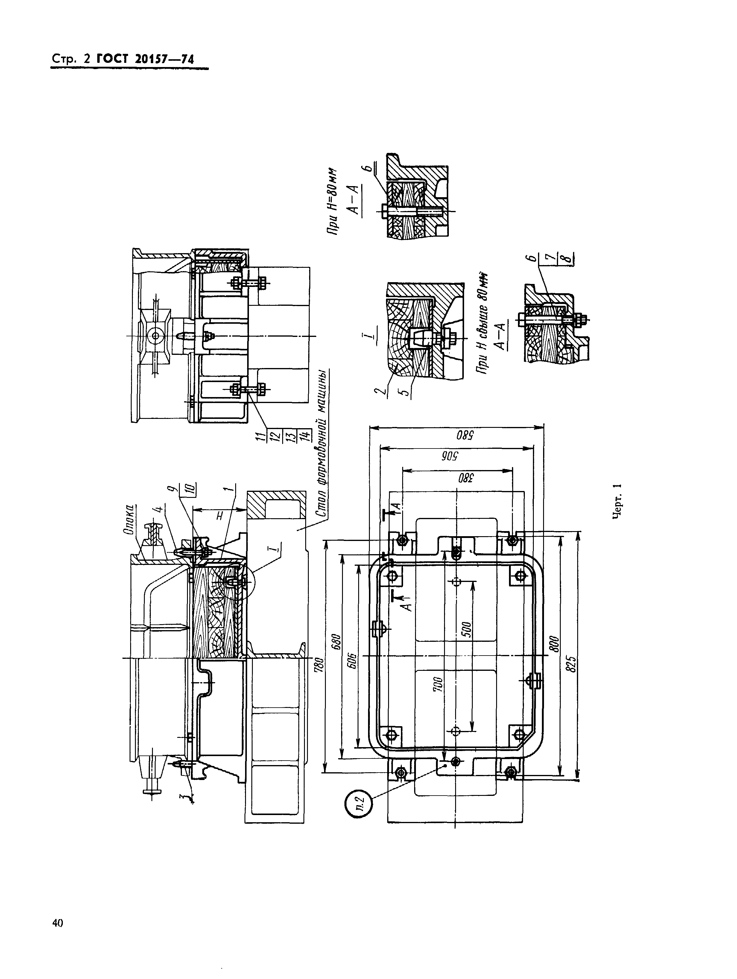
Плиты модельные со сменными глубокими деревянными вкладышами для опоки размерами в свету 600х500 мм на формовочные литейные машины с поворотом полуформы с допрессовкой. Конструкция и размеры

Обозначение: ГОСТ 20157-74
Обозначение англ: GOST 20157-74
Статус:действует
Название рус.:Плиты модельные со сменными глубокими деревянными вкладышами для опоки размерами в свету 600х500 мм на формовочные литейные машины с поворотом полуформы с допрессовкой. Конструкция и размеры
Название англ.:Pattern plates with deep changeable wooden inserts for moulding box having inside dimensions 600x500 mm for moulding foundry machines with turn of half mould with squeezing. Design and dimensions
Дата добавления в базу:01.09.2013
Дата актуализации:01.01.2021
Дата введения:01.07.1975
Утверждён:27.08.1974 Госстандарт СССР (USSR Gosstandart 2067)
Заменяет собой:
  • МН 1894-61 (Сведения из перечня "Указатель государственных стандартов СССР 1980 г.", Издательство стандартов 1980)
ГОСТ 20157-74ГОСТ 20157-74ГОСТ 20157-74ГОСТ 20157-74ГОСТ 20157-74ГОСТ 20157-74ГОСТ 20157-74ГОСТ 20157-74ГОСТ 20157-74