Скачать Технологическая карта 7.01.01.58 Типовая технологическая карта на монтаж строительных конструкций. Дуговая механизированная сварка порошковой проволокой в инвентарных формах выпусков арматуры в узлах сопряжения ригель-колонна и колонна-колоннаДата актуализации: 01.01.2021
|
| Обозначение: | Технологическая карта 7.01.01.58 |
| Обозначение англ: | 7.01.01.58 |
| Статус: | не установлен срок действия |
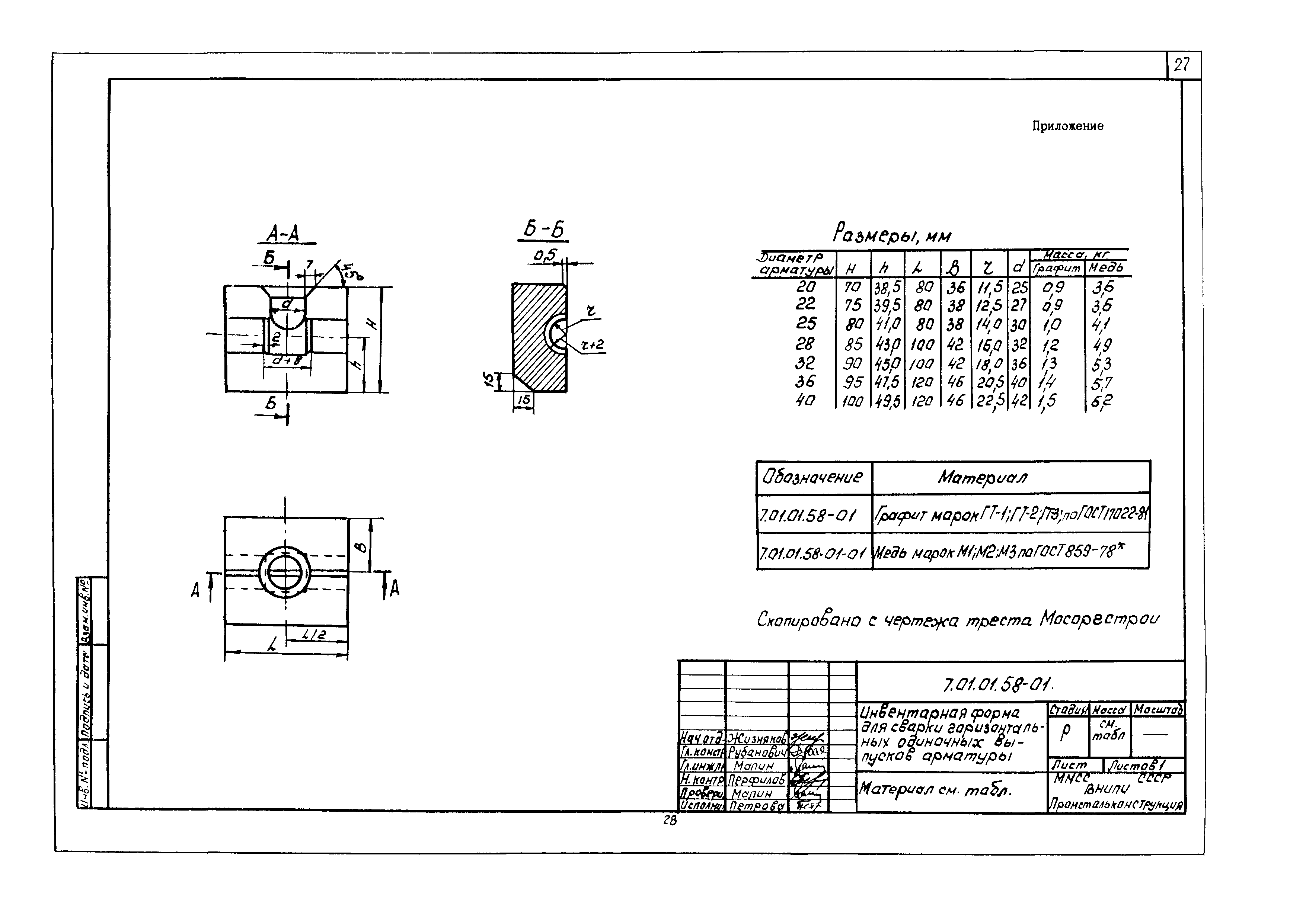
| Название рус.: | Типовая технологическая карта на монтаж строительных конструкций. Дуговая механизированная сварка порошковой проволокой в инвентарных формах выпусков арматуры в узлах сопряжения ригель-колонна и колонна-колонна |
| Дата добавления в базу: | 01.09.2013 |
| Дата актуализации: | 01.01.2021 |
| Дата введения: | 01.02.1989 |
| Оглавление: | 1. Область применения 2. Организация и технология выполнения работ 3. Требования к качеству и приемке работ 4. Калькуляция затрат труда и заработной платы на 100 стыков 5. График производства работ на 1 узел 6. Материально-технические ресурсы 7. Техника безопасности 8. Технико-экономические показатели на 100 стыков |
| Разработан: | ВНИПИ Промстальконструкция |
| Утверждён: | 14.12.1988 ВНИПИ Промстальконструкция Минмонтажспецстроя СССР |
| Принят: | 14.12.1988 Госстрой СССР (Государственный комитет Совета Министров СССР по делам строительства) (USSR Gosstroy 23-711) |
| Издан: | ЦИТП Госстроя СССР (CITP, Gosstroy (USSR) 1989 г. ) |





























