Скачать КО 01.05.13-01 КотлыДата актуализации: 01.01.2021
|
| Обозначение: | КО 01.05.13-01 |
| Обозначение англ: | KO 01.05.13-01 |
| Статус: | справочные материалы, мп, тпр |
| Название рус.: | Котлы |
| Дата добавления в базу: | 01.09.2013 |
| Дата актуализации: | 01.01.2021 |
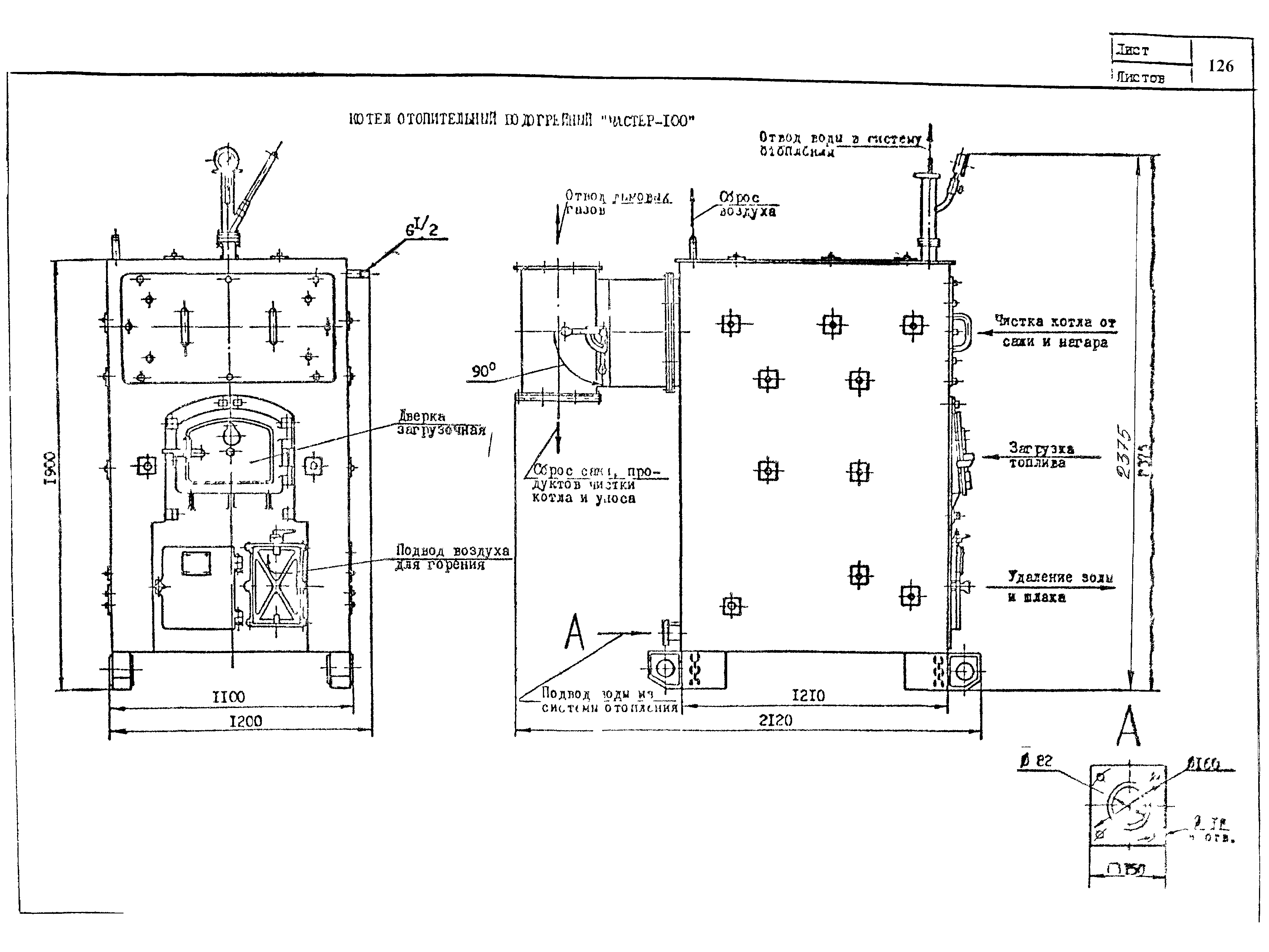
| Оглавление: | 1 Котлы водогрейные стальные 2 Котлы паровые 3 Котлы пароводогрейные типа КПВ; АВ; КПа; КВа 4 Отопители газовые водогрейные типа ОГВК-"Май" 5 Аппараты для магнитной обработки воды типа "АМО" и аппарат АЭА-Т 6 Котельные передвижные 7 Котлы бытовые 8 Адреса и телефоны заводов-изготовителей |
| Разработан: | 31 ГПИ специального строительства Минобороны Координационный центр по ценообразованию и сметному нормированию в строительстве |
| Утверждён: | 01.01.2001 31 ГПИ СС Минобороны России |
| Заменяет собой: |
|






























































































































