Скачать Серия 2.440-1 Выпуск 2. Узлы покрытийДата актуализации: 01.01.2021
|
| Обозначение: | Серия 2.440-1 |
| Обозначение англ: | Series 2.440-1 |
| Статус: | действует |
| Название рус.: | Выпуск 2. Узлы покрытий |
| Дата добавления в базу: | 01.09.2013 |
| Дата актуализации: | 01.01.2021 |
| Дата введения: | 01.07.1984 |
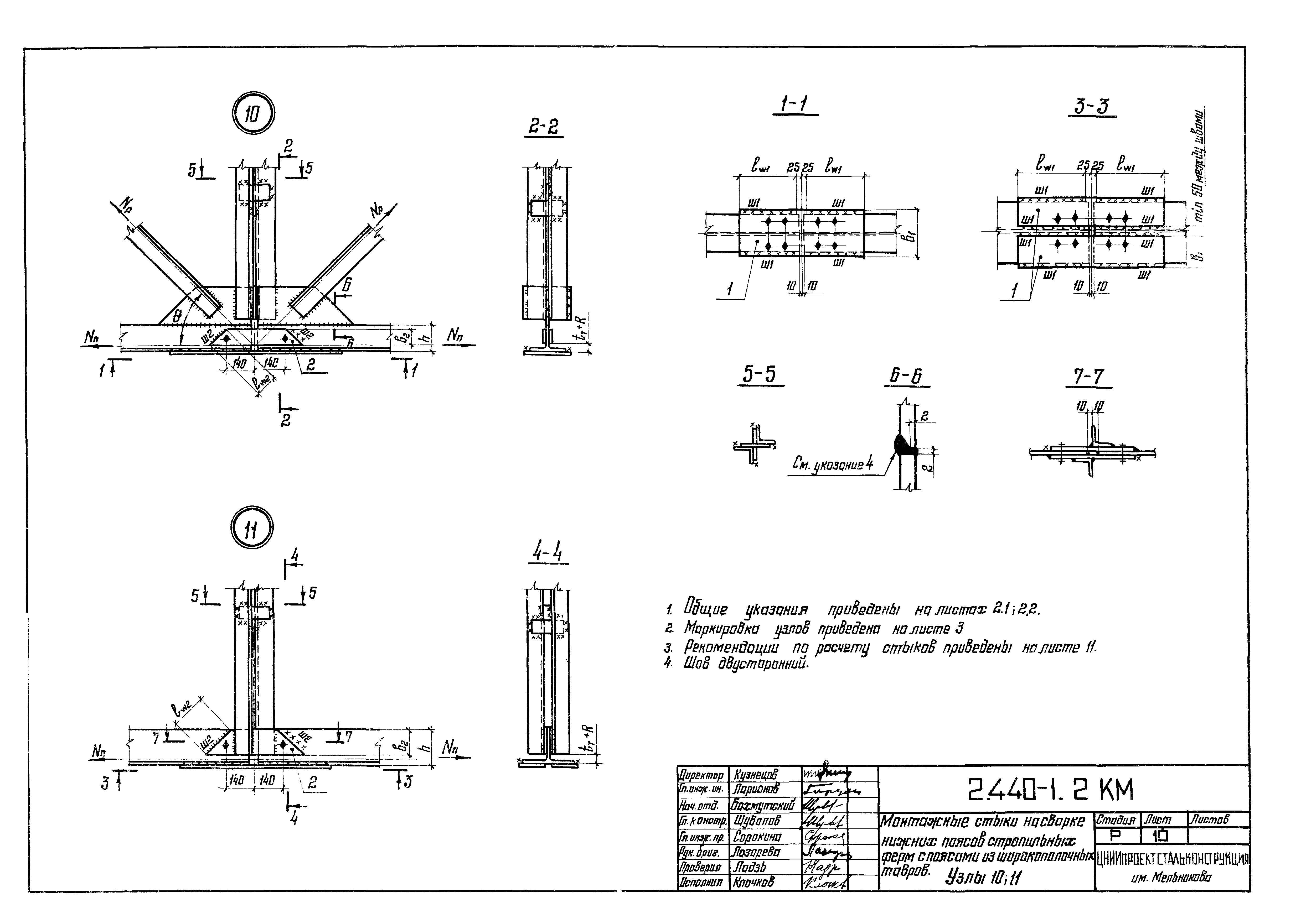
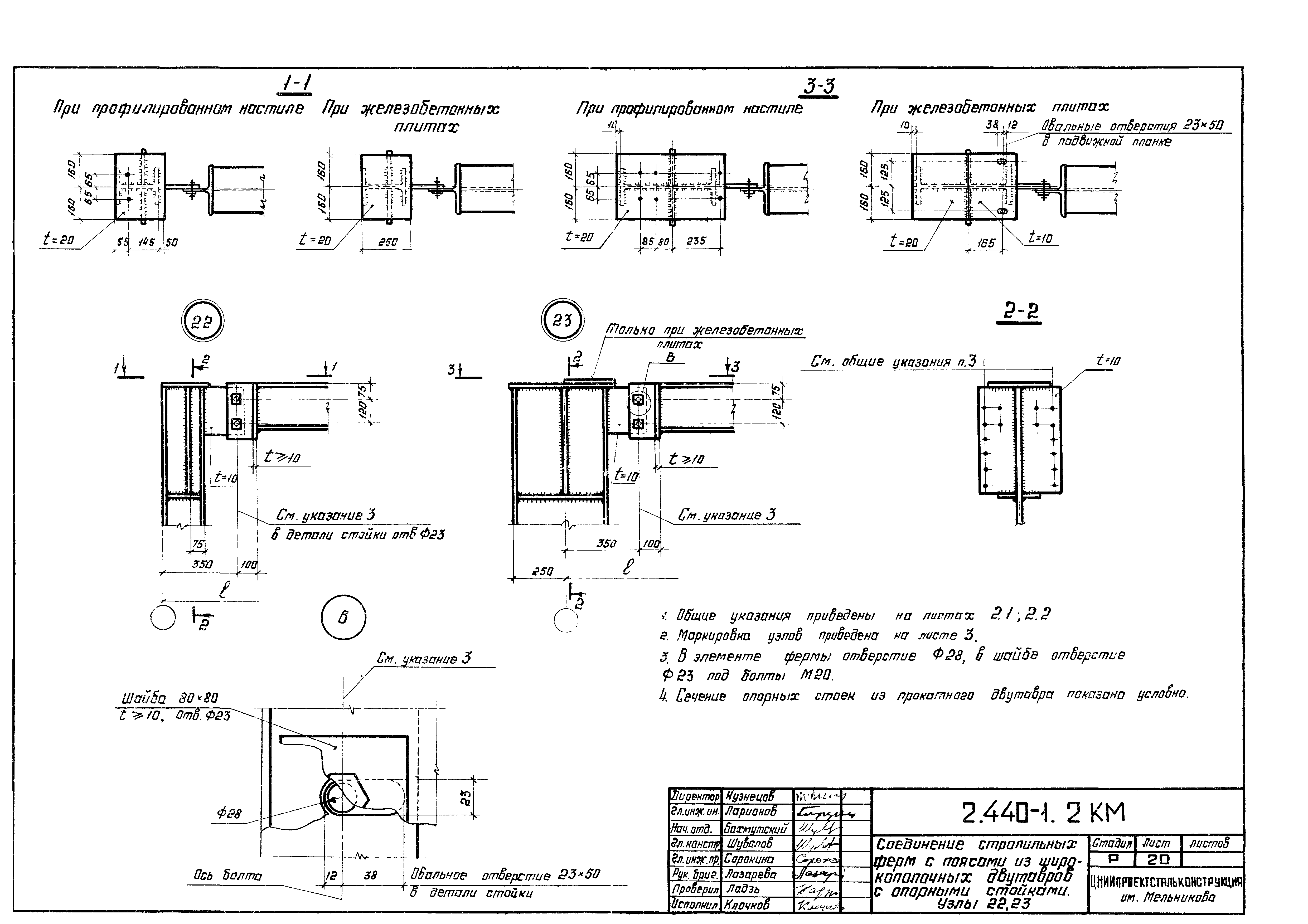
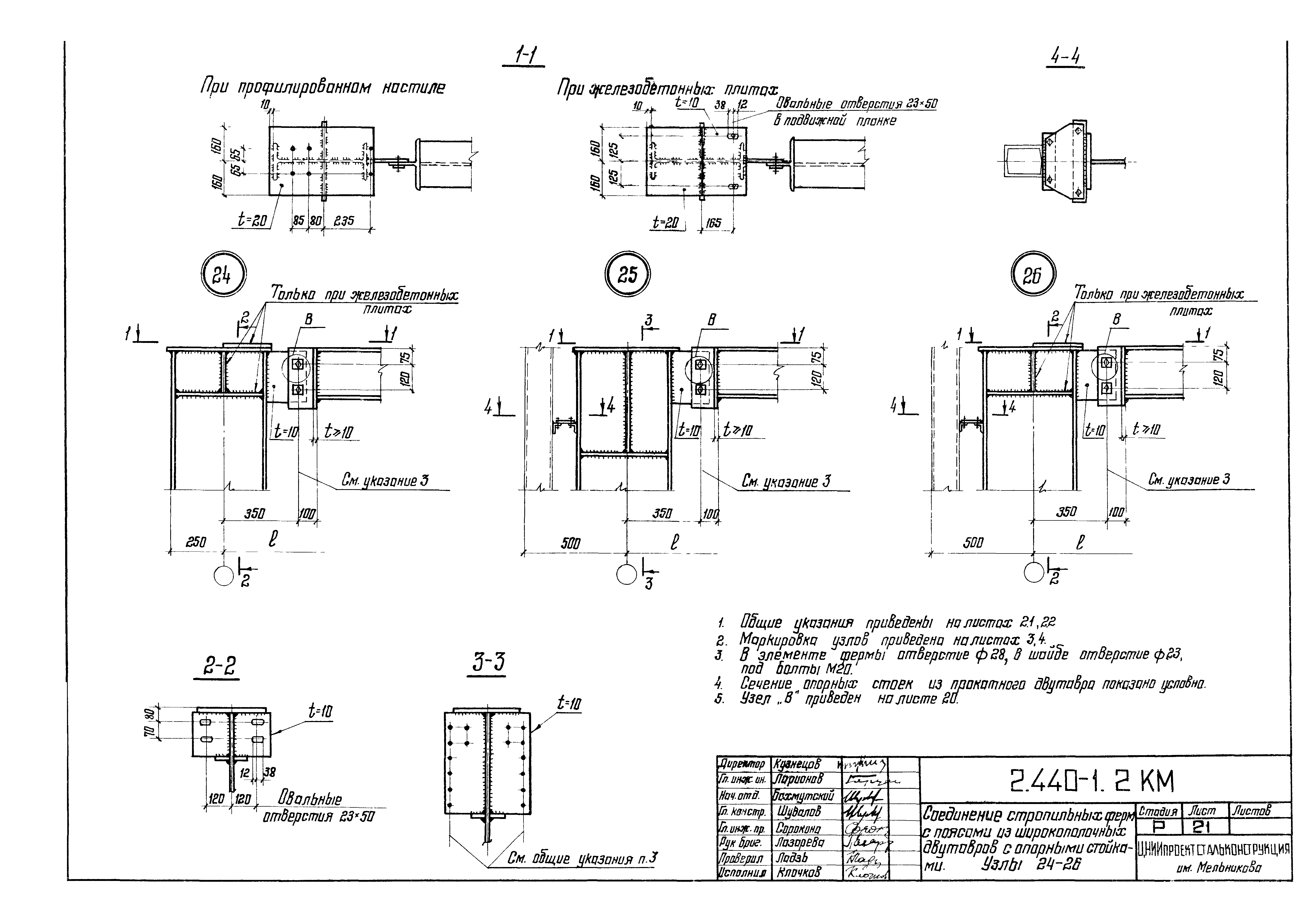
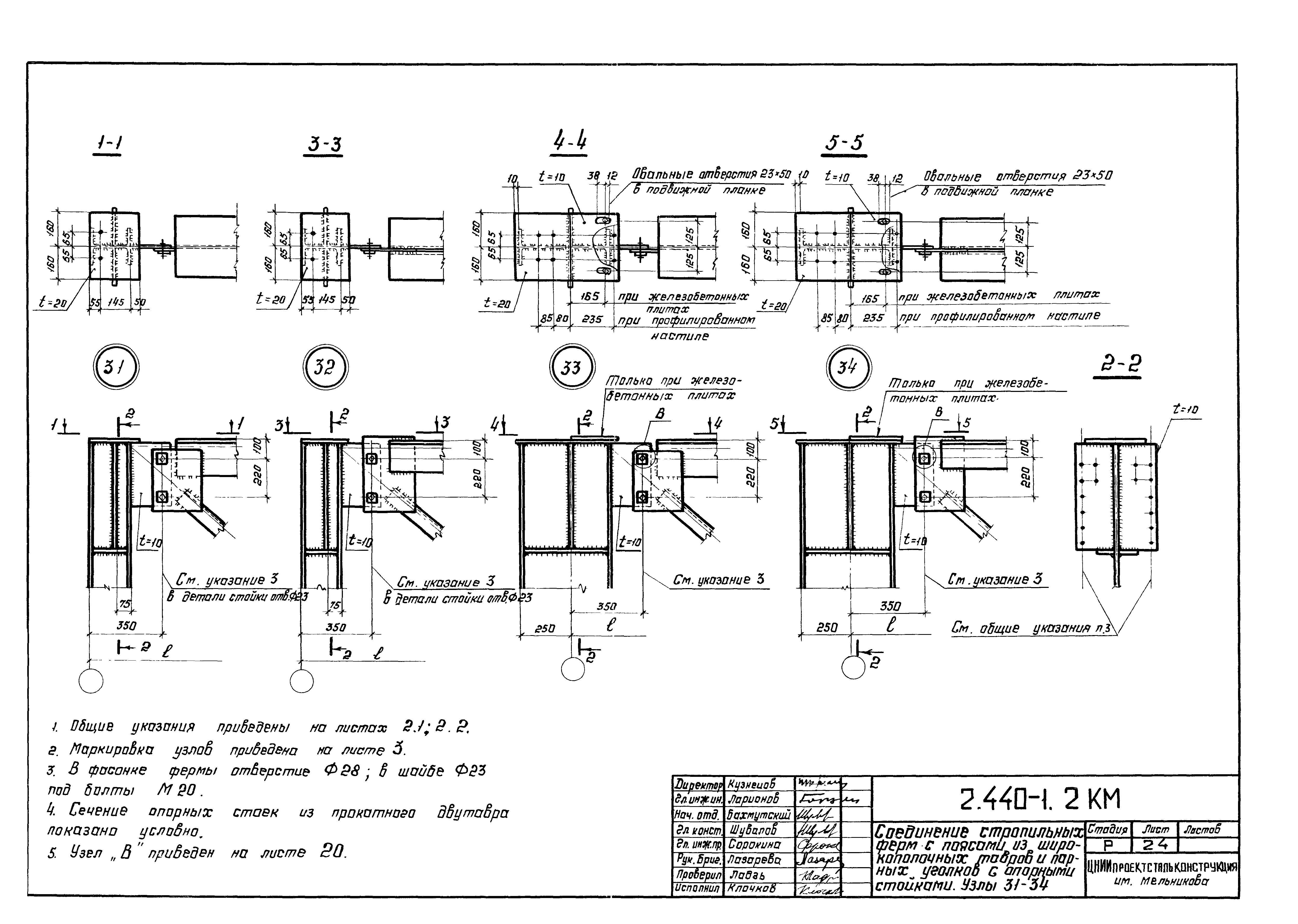
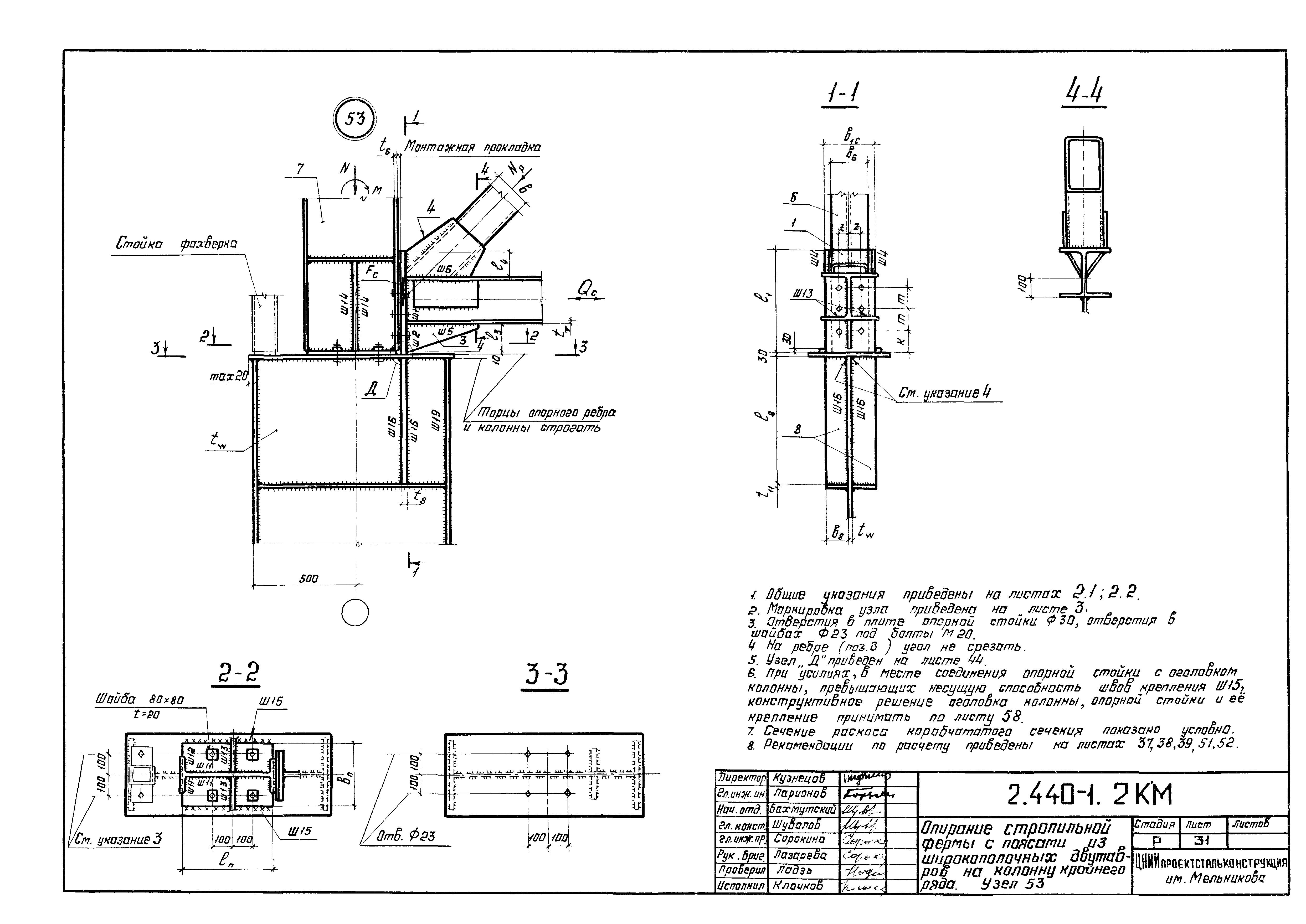
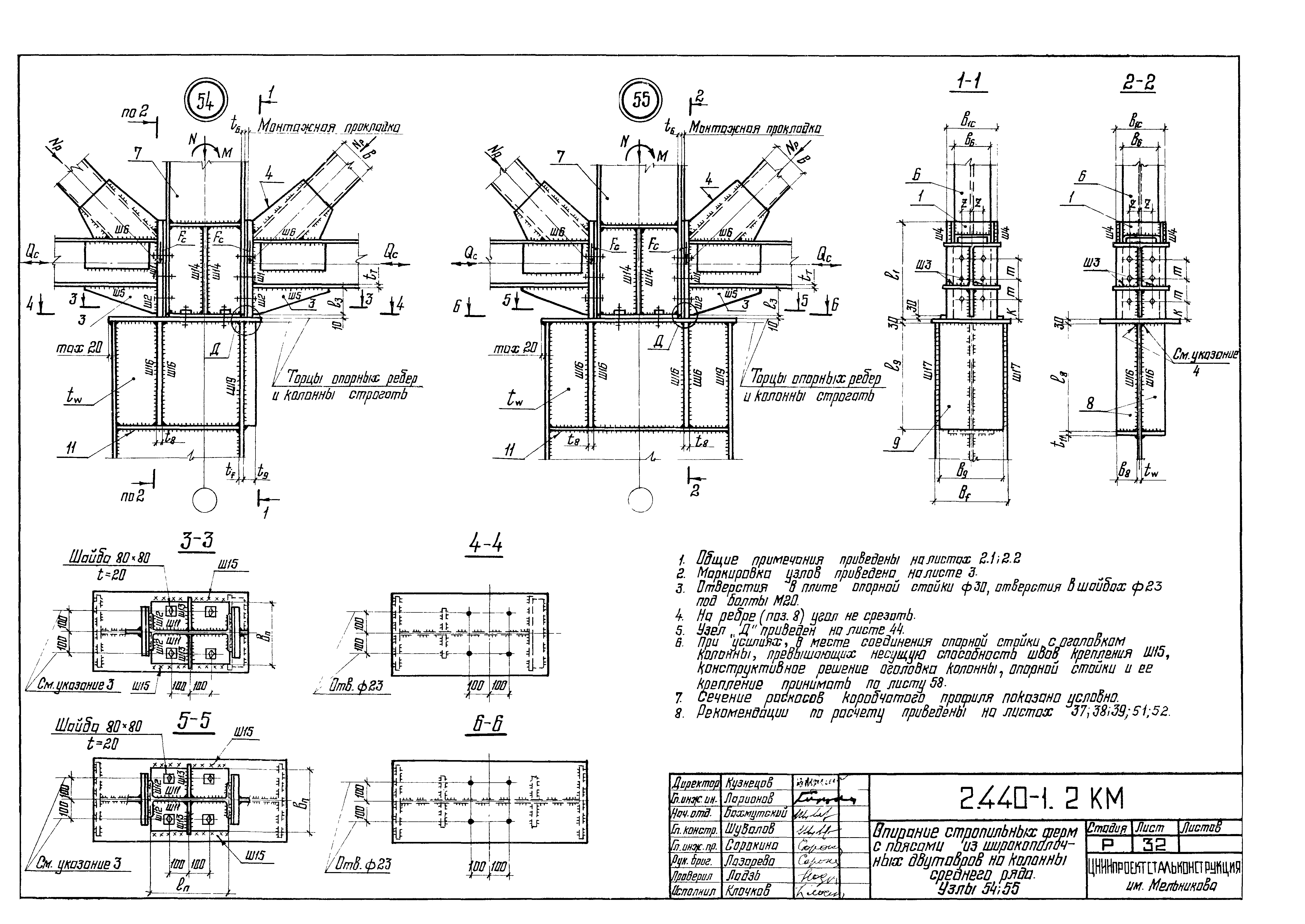
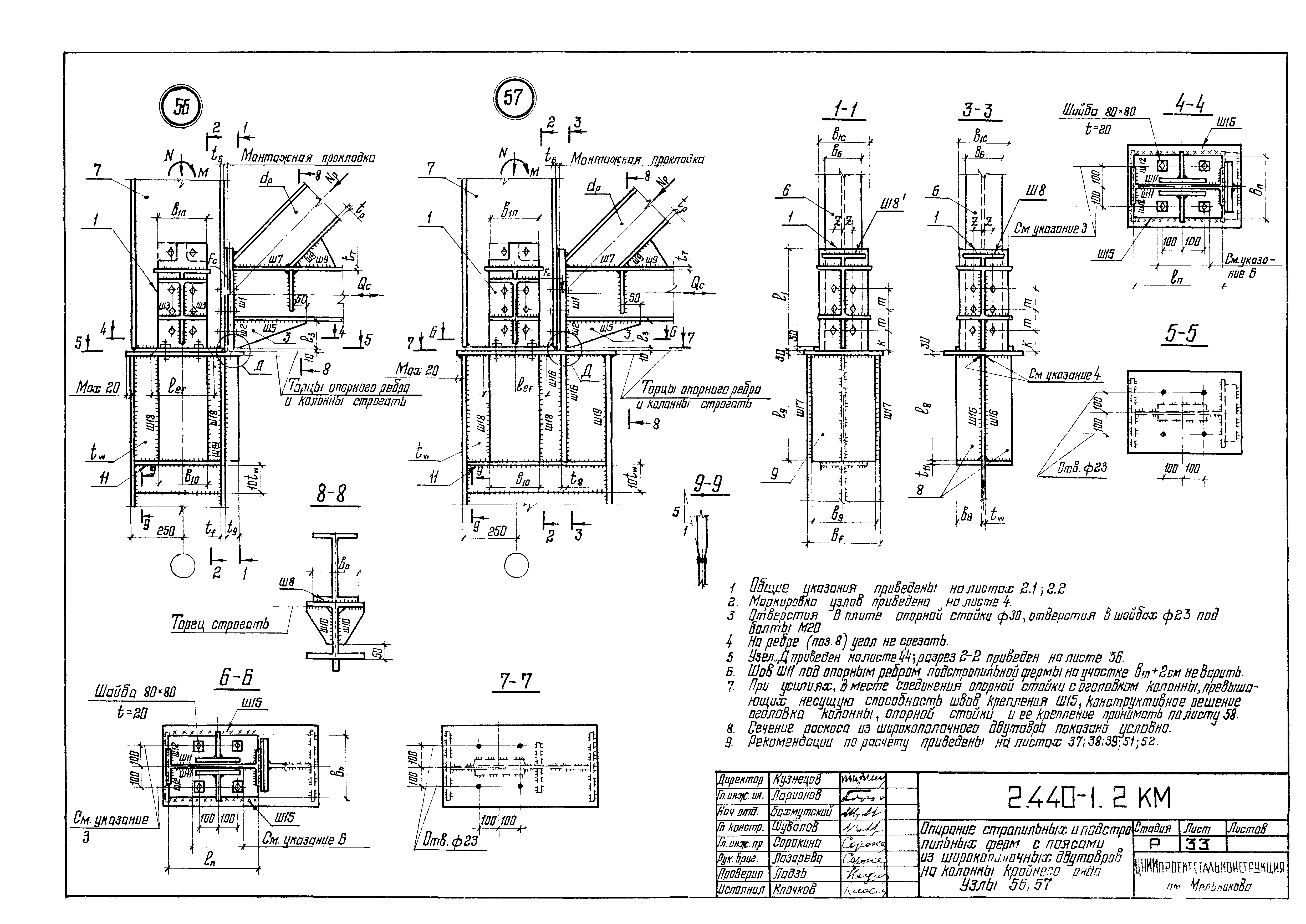
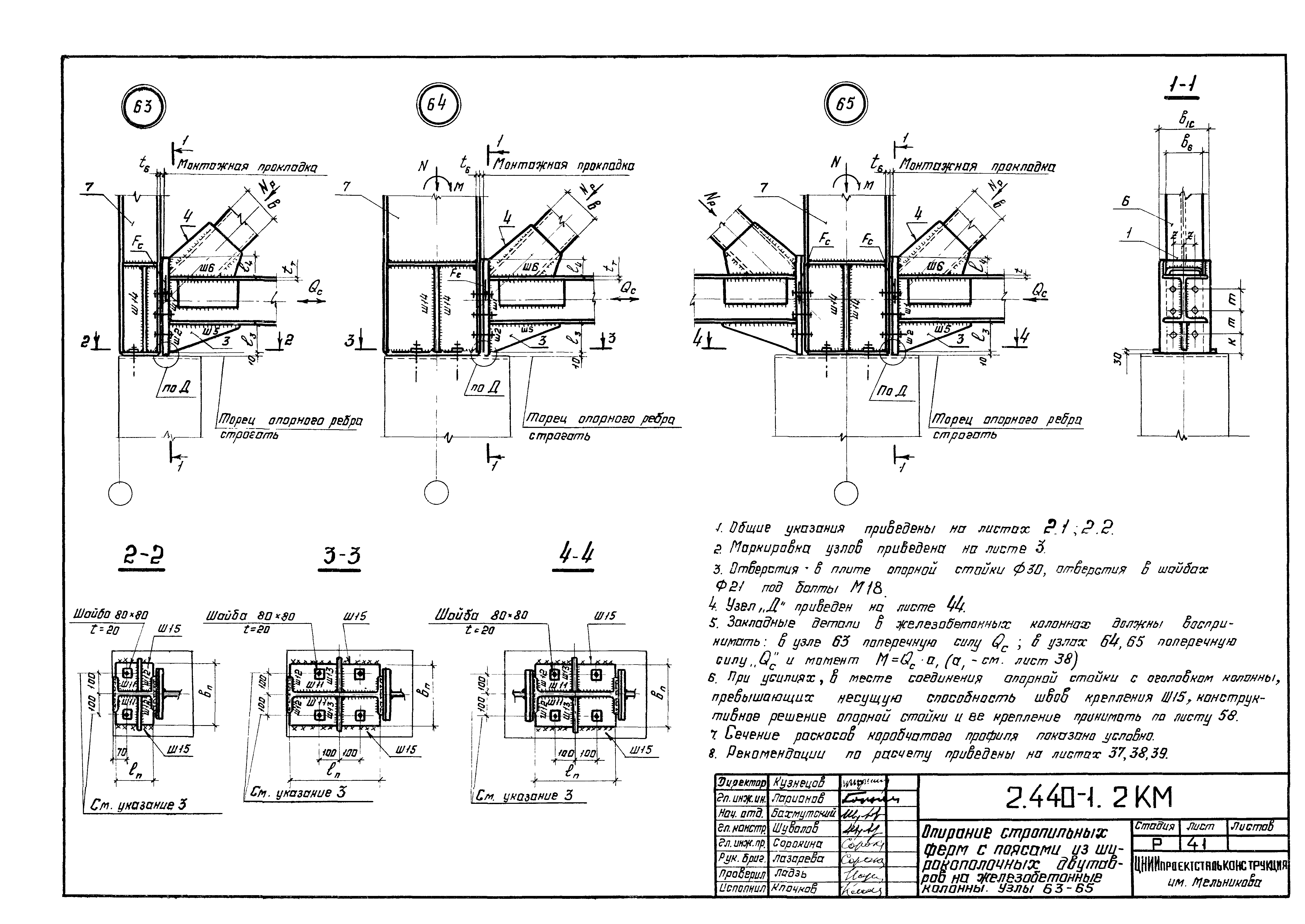
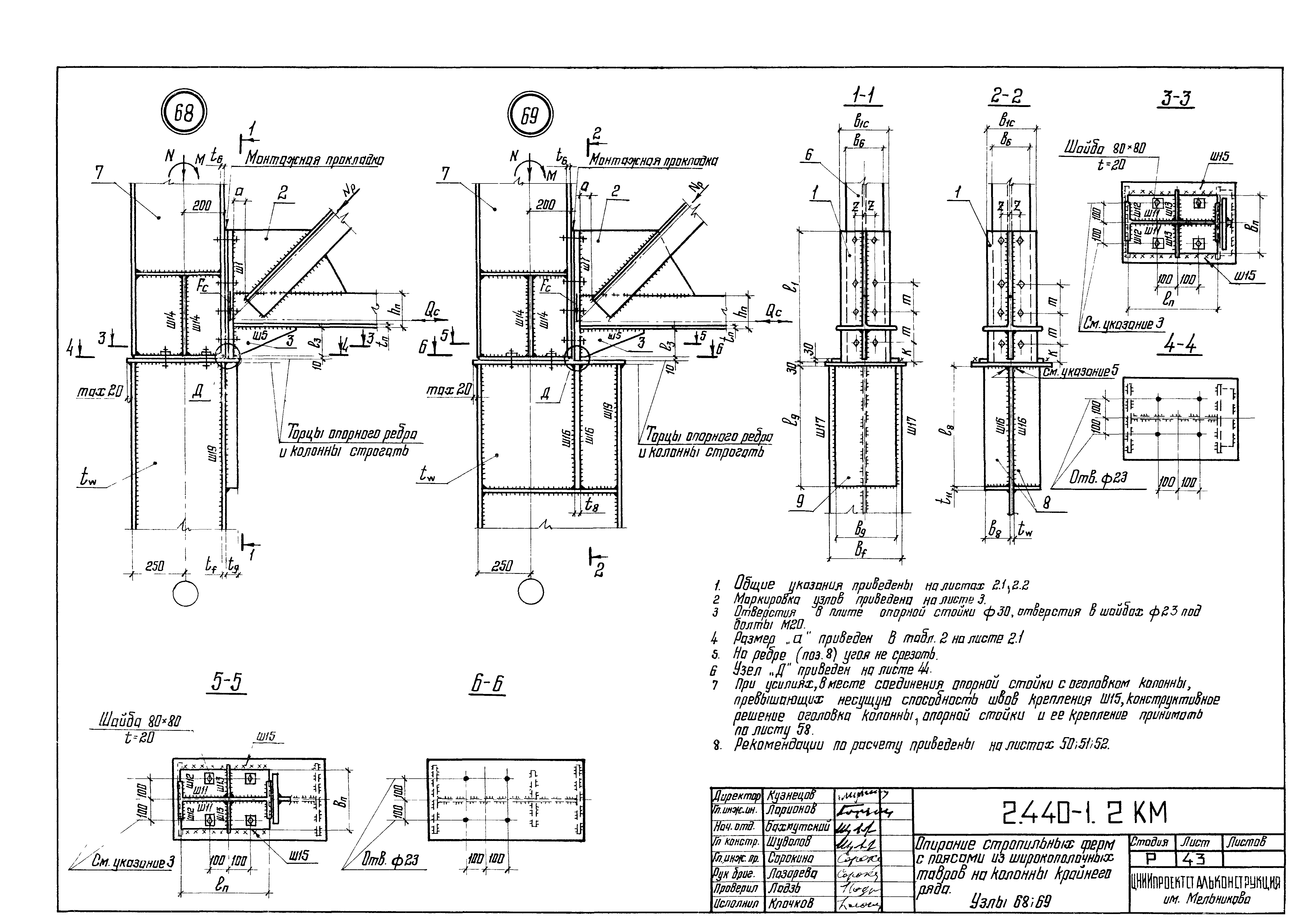
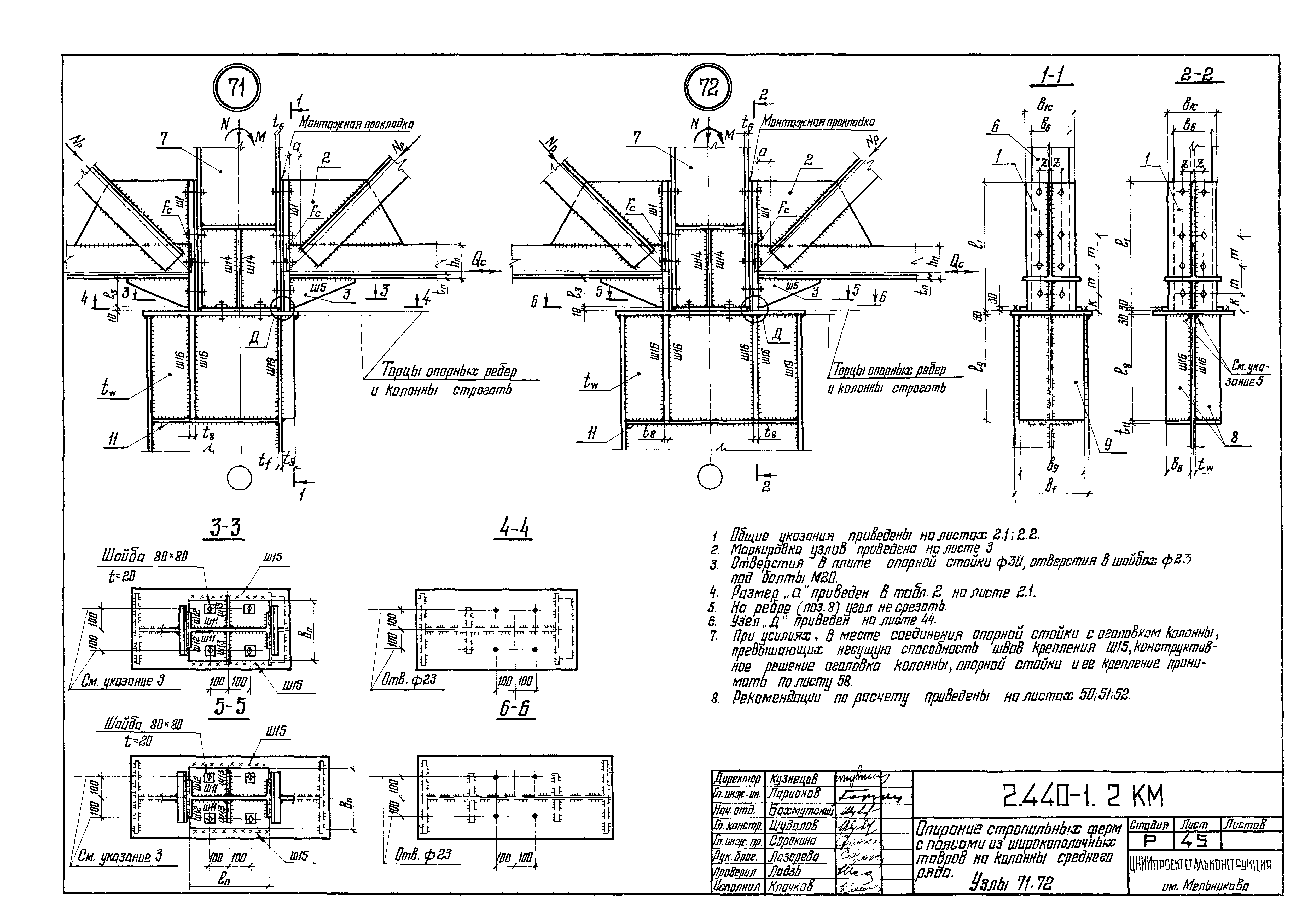
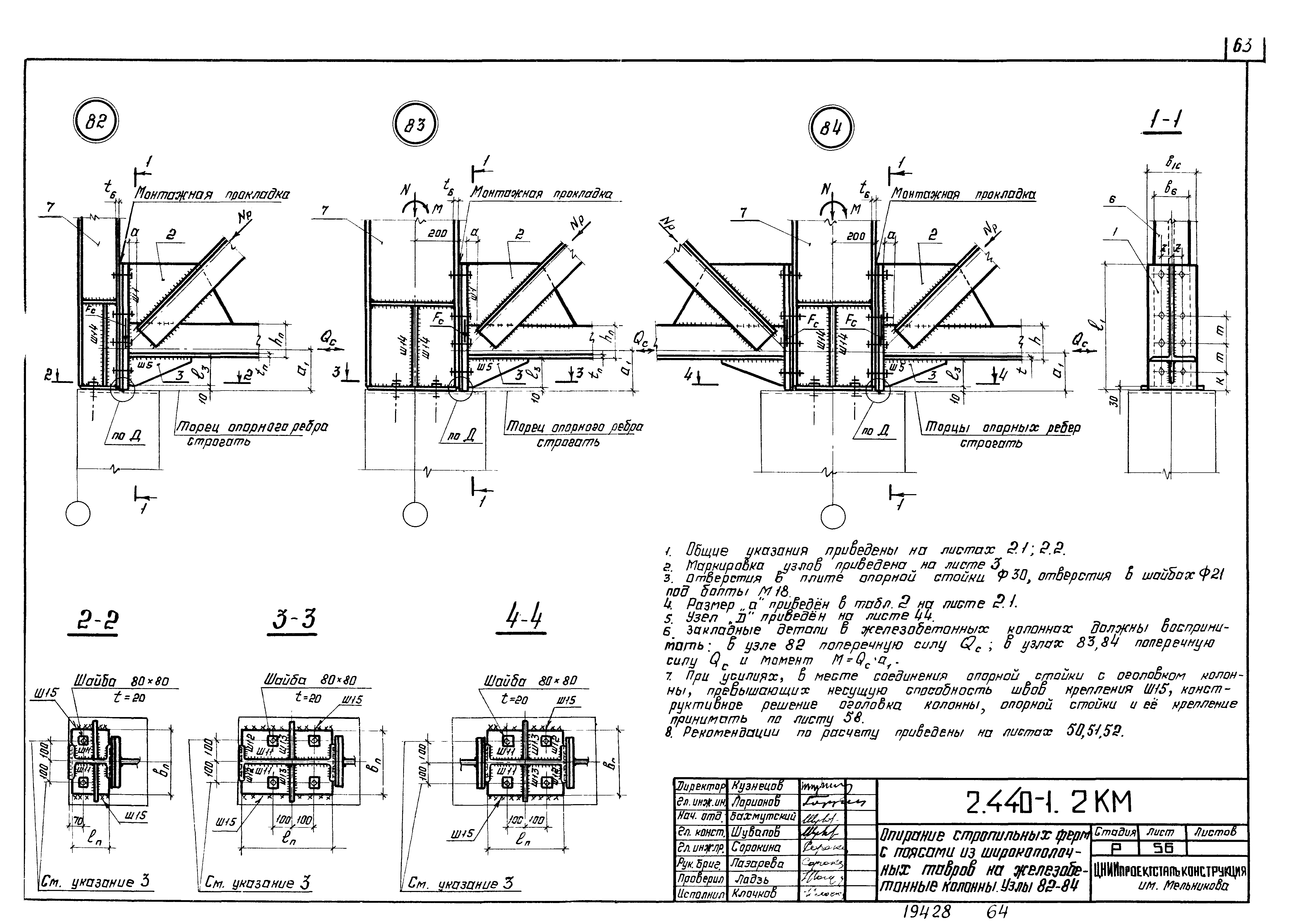
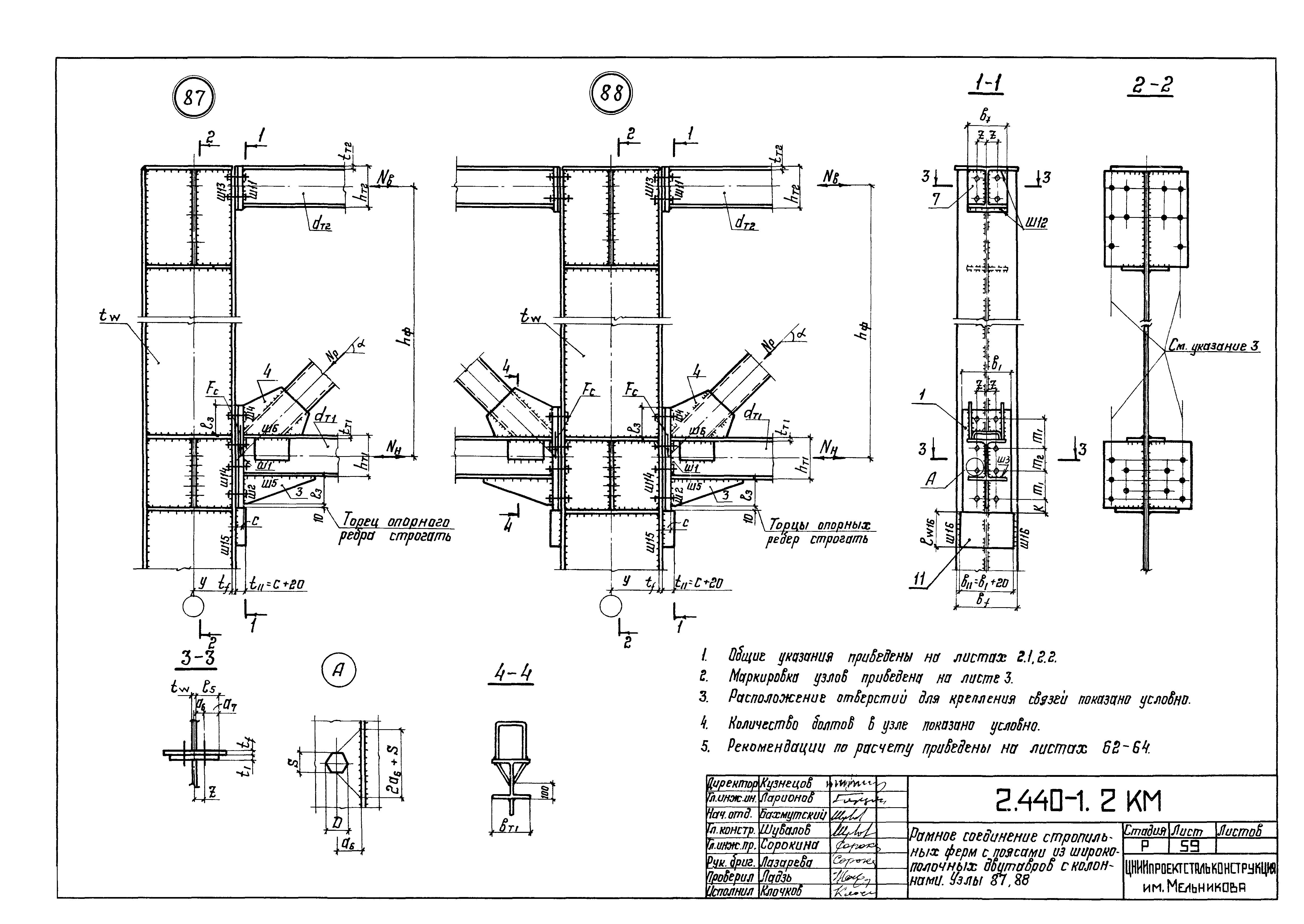
| Оглавление: | 2.440-1.2 КМ л.2.2-1.3 Пояснительная записка 2.440-1.2 КМ л. 2.1; 2.2 Общие указания 2.440-1.2 КМ л. 3 Маркировка узлов стропильных ферм 2.440-1.2 КМ л. 4 Маркировка узлов стропильных и подстропильных ферм 2.440-1.2 КМ л. 5 Монтажные стыки верхних поясов стропильных ферм с поясами из широкополочных двутавров. Узлы 1-3 2.440-1.2 КМ л. 6 Монтажный стык на высокопрочных болтах нижних поясов стропильных ферм с поясами из широкополочных двутавров. Узлы 4; 5 2.440-1.2 КМ л. 7 Монтажные стыки верхних поясов стропильных ферм с поясами из широкополочных тавров. Узлы 6, 7 2.440-1.2 КМ л. 8 Монтажные стыки на высокопрочных болтах нижних поясов стропильных ферм с поясами из широкополочных тавров. Узлы 8; 9 2.440-1.2 КМ л. 9 Рекомендации по расчету узлов 8; 9 2.440-1.2 КМ л. 10 Монтажные стыки на сварке нижних поясов стропильных ферм с поясами из широкополочных тавров. Узлы 10; 11 2.440-1.2 КМ л. 11 Рекомендации по расчету узлов 10; 11 2.440-1.2 КМ л. 12 Заводские узлы верхних поясов стропильных ферм из парных уголков. Узлы 12; 13 2.440-1.2 КМ л. 13 Рекомендации по расчету узлов 12; 13 2.440-1.2 КМ л. 14 Монтажные стыки на высокопрочных болтах стропильных ферм из парных уголков. Узлы 14; 15 2.440-1.2 КМ л. 15 Монтажные стыки на высокопрочных болтах стропильных ферм из парных уголков. Узлы 16; 17 2.440-1.2 КМ л. 16 Рекомендации по расчету узлов 14-17 2.440-1.2 КМ л. 17 Монтажные стыки на сварке стропильных ферм из парных уголков. Узлы 18; 19 2.440-1.2 КМ л. 18 Монтажные стыки на сварке стропильных ферм из парных уголков. Узлы 20; 21 2.440-1.2 КМ л. 19 Рекомендации по расчету узлов 18-21 2.440-1.2 КМ л. 20 Соединение стропильных ферм с поясами из широкополочных двутавров с опорными стойками. Узлы 22; 23 2.440-1.2 КМ л. 21 Соединение стропильных ферм с поясами из широкополочных двутавров с опорными стойками. Узлы 24-26 2.440-1.2 КМ л. 22 Соединение стропильных ферм с поясами из широкополочных двутавров с опорными стойками. Узлы 27; 28 2.440-1.2 КМ л. 23 Соединение стропильных ферм с поясами из широкополочных двутавров с подстропильными фермами. Узлы 29; 30 2.440-1.2 КМ л. 24 Соединение стропильных ферм с поясами из широкополочных тавров и парных уголков с опорными стойками. Узлы 31-34 2.440-1.2 КМ л. 25 Соединение стропильных ферм с поясами из широкополочных тавров и парных уголков с опорными стойками. Узлы 35-39 2.440-1.2 КМ л. 26 Соединение стропильных ферм с поясами из широкополочных тавров и парных уголков с опорными стойками. Узлы 40; 41 2.440-1.2 КМ л. 27 Соединение стропильных ферм с поясами из широкополочных тавров и парных уголков с опорными стойками. Узлы 42-44 2.440-1.2 КМ л. 28 Соединение стропильных ферм с поясами из широкополочных тавров и парных уголков с опорными стойками. Узлы 45; 46 2.440-1.2 КМ л. 29 Соединение стропильных ферм с поясами из широкополочных тавров и парных уголков с подстропильными фермами. Узлы 47-50 2.440-1.2 КМ л. 30 Опирание стропильных ферм с поясами из широкополочных двутавров на колонны крайнего ряда. Узлы 51; 52 2.440-1.2 КМ л. 31 Опирание стропильной фермы с поясами из широкополочных двутавров на колонну крайнего ряда. Узел 53 2.440-1.2 КМ л. 32 Опирание стропильных ферм с поясами из широкополочных двутавров на колонны среднего ряда. Узлы 54; 55 2.440-1.2 КМ л. 33 Опирание стропильных и подстропильных ферм с поясами из широкополочных двутавров на колонны крайнего ряда. Узлы 56; 57 2.440-1.2 КМ л. 34 Опирание стропильной и подстропильной ферм с поясами из широкополочных двутавров на колонну крайнего ряда. Узел 58 2.440-1.2 КМ л. 35 Опирание стропильной и подстропильной ферм с поясами из широкополочных двутавров на колонну среднего ряда. Узел 59 2.440-1.2 КМ л. 36 Опирание стропильной и подстропильной ферм с поясами из широкополочных двутавров на колонну крайнего ряда. Узел 60 2.440-1.2 КМ л. 37 Рекомендации по расчету узлов 51-60 (начало) 2.440-1.2 КМ л. 38 Рекомендации по расчету узлов 51-60 (продолжение) 2.440-1.2 КМ л. 39 Рекомендации по расчету узлов 51-60 (окончание) 2.440-1.2 КМ л. 40 Опирание стропильных ферм с поясами из широкополочных двутавров на подстропильные фермы. Узлы 61; 62 2.440-1.2 КМ л. 41 Опирание стропильных ферм с поясами из широкополочных двутавров на железобетонные колонны. Узлы 63-65 2.440-1.2 КМ л. 42 Опирание стропильных и подстропильных ферм с поясами из широкополочных двутавров на железобетонные колонны. Узлы 66; 67 2.440-1.2 КМ л. 43 Опирание стропильных ферм с поясами из широкополочных тавров на колонны крайнего ряда. Узлы 68; 69 2.440-1.2 КМ л. 44 Опирание стропильной фермы с поясами из широкополочных тавров на колонну крайнего ряда. Узел 70 2.440-1.2 КМ л. 45 Опирание стропильных ферм с поясами из широкополочных тавров на колонны среднего ряда. Узлы 71; 72 2.440-1.2 КМ л. 46 Опирание стропильных и подстропильных ферм с поясами из широкополочных тавров на колонны крайнего ряда. Узлы 73; 74 2.440-1.2 КМ л. 47 Опирание стропильной и подстропильной ферм с поясами из широкополочных тавров на колонну крайнего ряда. Узел 75 2.440-1.2 КМ л. 48 Опирание стропильных и подстропильных ферм с поясами из широкополочных тавров на колонну среднего ряда. Узел 76 2.440-1.2 КМ л. 49 Опирание стропильных и подстропильных ферм с поясами из широкополочных тавров на колонну среднего ряда. Узел 77 2.440-1.2 КМ л. 50 Рекомендации по расчету узлов 68-77 (начало) 2.440-1.2 КМ л. 51 Рекомендации по расчету узлов 68-77 (продолжение) 2.440-1.2 КМ л. 52 Рекомендации по расчету узлов 68-77 (окончание) 2.440-1.2 КМ л. 53 Опирание стропильных ферм с поясами из широкополочных тавров на подстропильные фермы. Узлы 78; 79 2.440-1.2 КМ л. 54 Опирание стропильных ферм из парных уголков на подстропильные фермы. Узлы 80; 81 2.440-1.2 КМ л. 55 Рекомендации по расчету узлов 61; 62; 78-81 и болтов для крепления опорной стойки к колонне 2.440-1.2 КМ л. 56 Опирание стропильных ферм с поясами из широкополочных тавров на железобетонные колонны. Узлы 82-84 2.440-1.2 КМ л. 57 Опирание стропильных и подстропильных ферм с поясами из широкополочных тавров на железобетонные колонны. Узлы 85; 86 2.440-1.2 КМ л. 58 Узел опирания стропильных и подстропильных ферм на колонну - вариант 2 2.440-1.2 КМ л. 59 Рамное соединение стропильных ферм с поясами из широкополочных двутавров с колоннами. Узлы 87; 88 2.440-1.2 КМ л. 60 Рамное соединение стропильных ферм с поясами из широкополочных двутавров с колоннами. Узлы 89; 90 2.440-1.2 КМ л. 61 Рамное соединение стропильных ферм с поясами из широкополочных тавров с колоннами. Узлы 91; 92 2.440-1.2 КМ л. 62 Рекомендации по расчету узлов 87-92 (начало) 2.440-1.2 КМ л. 63 Рекомендации по расчету узлов 87-92 (продолжение) 2.440-1.2 КМ л. 64 Рекомендации по расчету узлов 87-92 (окончание) 2.440-1.2 КМ л. 65 Рамное соединение стропильных ферм из парных уголков с колоннами. Узлы 93; 94 2.440-1.2 КМ л. 66 Рекомендации по расчету узлов 93; 94 |
| Разработан: | ЦНИИпроектстальконструкция |
| Утверждён: | 22.12.1983 Госстрой СССР (Государственный комитет Совета Министров СССР по делам строительства) (USSR Gosstroy 324) |
| Издан: | ЦИТП Госстроя СССР (CITP, Gosstroy (USSR) 1984 г. ) |










































































