Скачать Серия 2.440-1 Выпуск 3. Узлы колонн и подкрановых балокДата актуализации: 01.01.2021
|
| Обозначение: | Серия 2.440-1 |
| Обозначение англ: | Series 2.440-1 |
| Статус: | действует |
| Название рус.: | Выпуск 3. Узлы колонн и подкрановых балок |
| Дата добавления в базу: | 01.09.2013 |
| Дата актуализации: | 01.01.2021 |
| Дата введения: | 01.07.1984 |
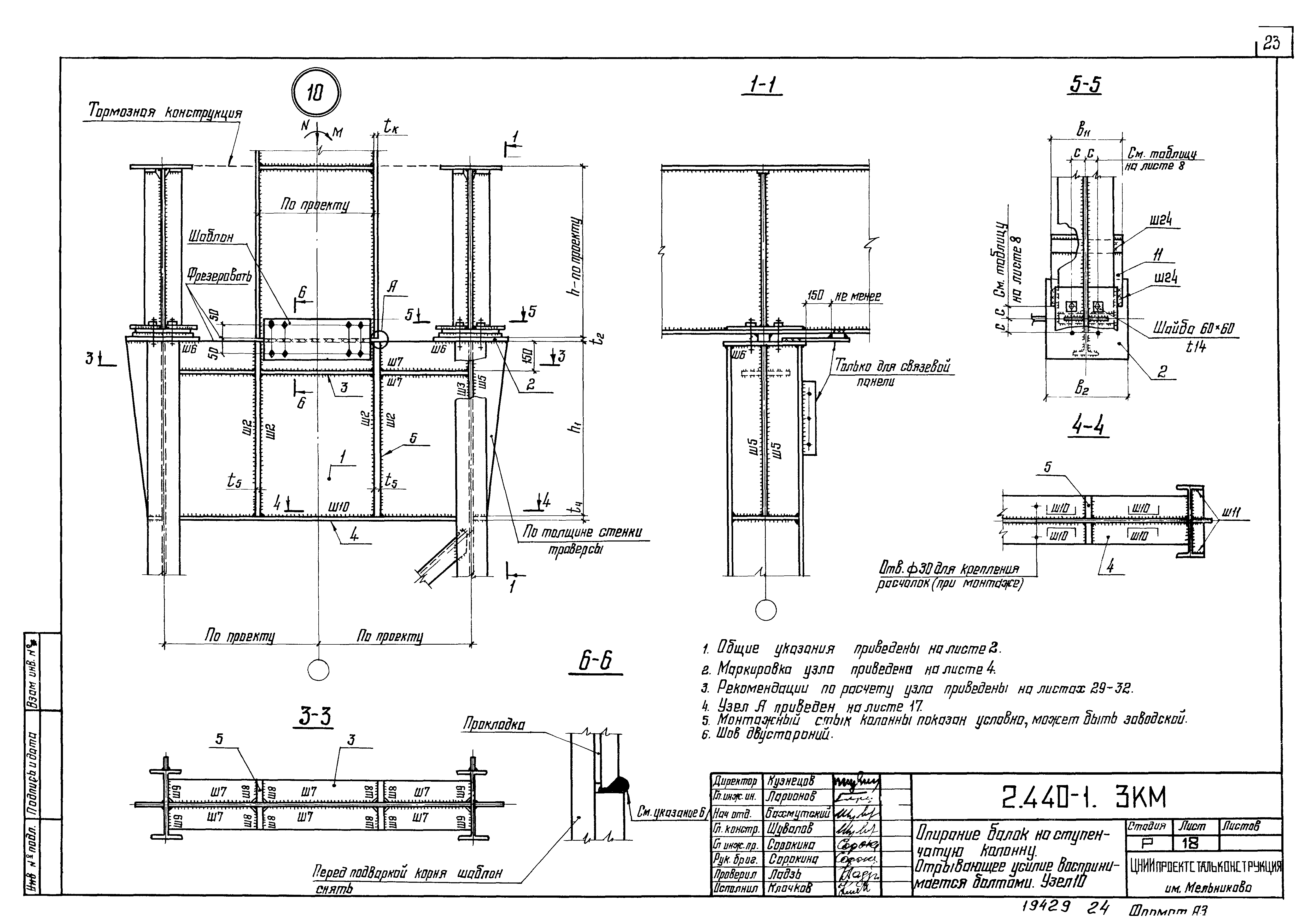
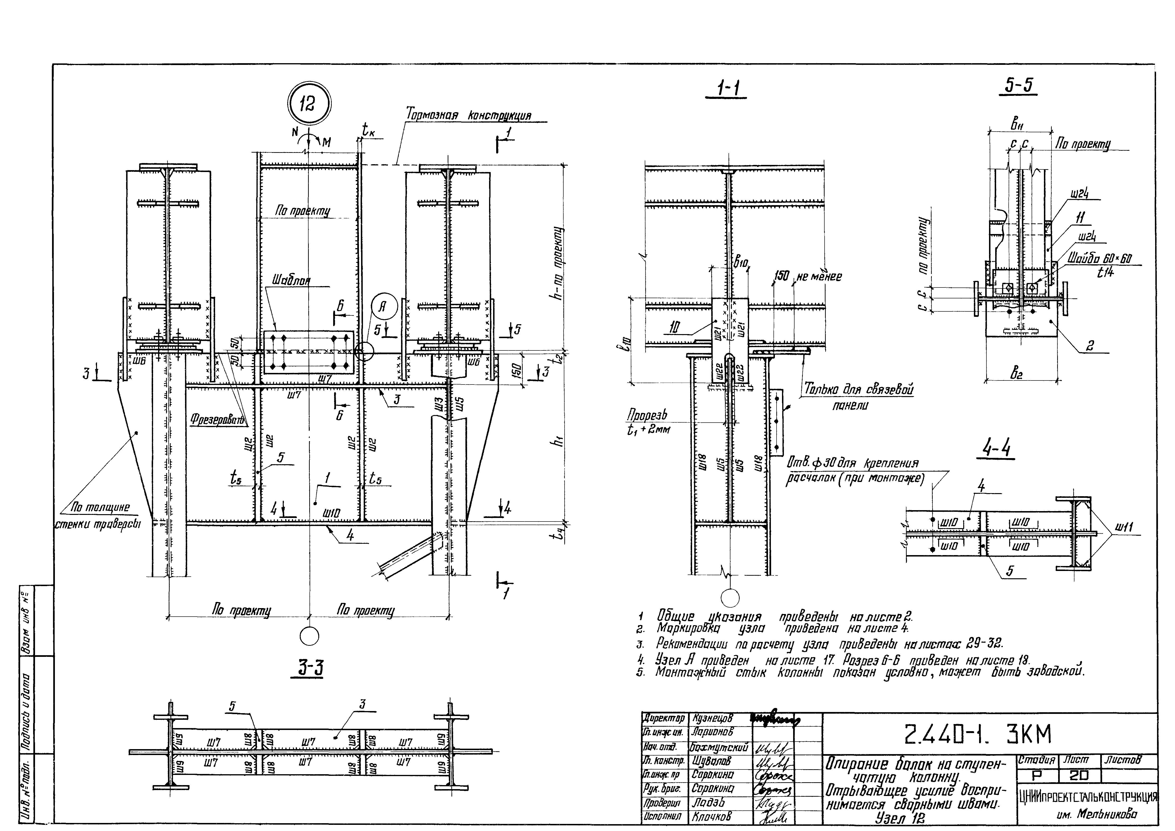
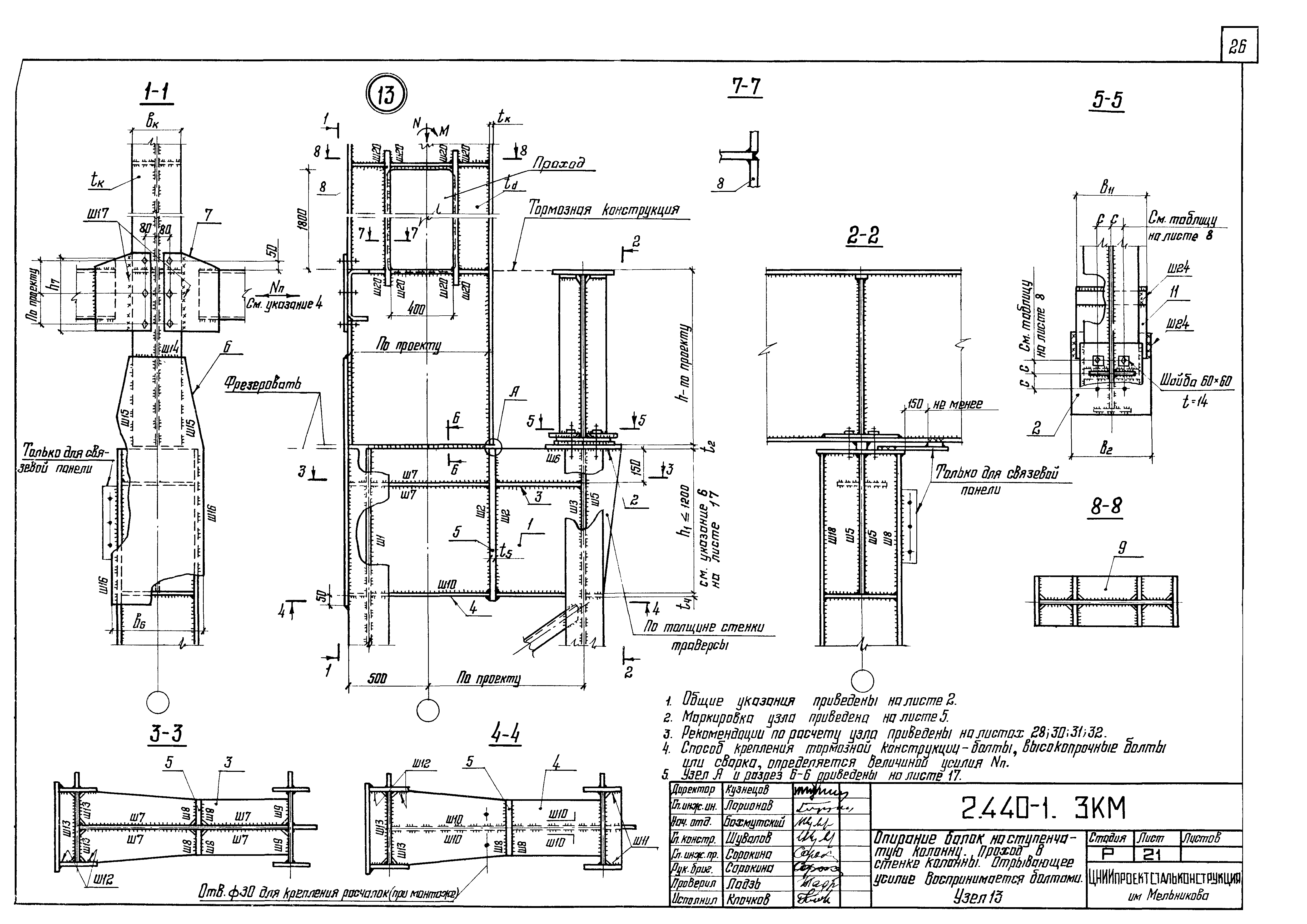
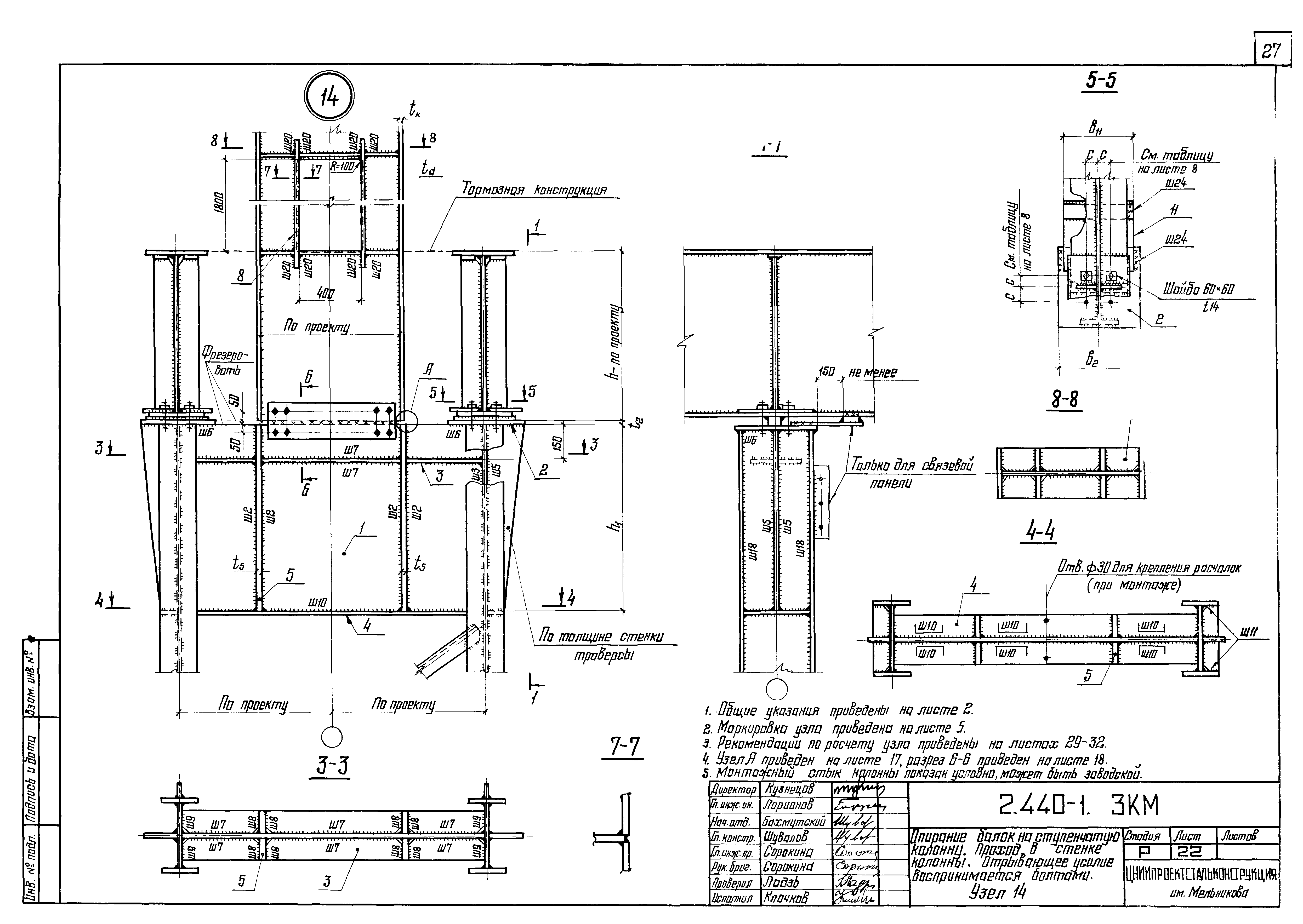
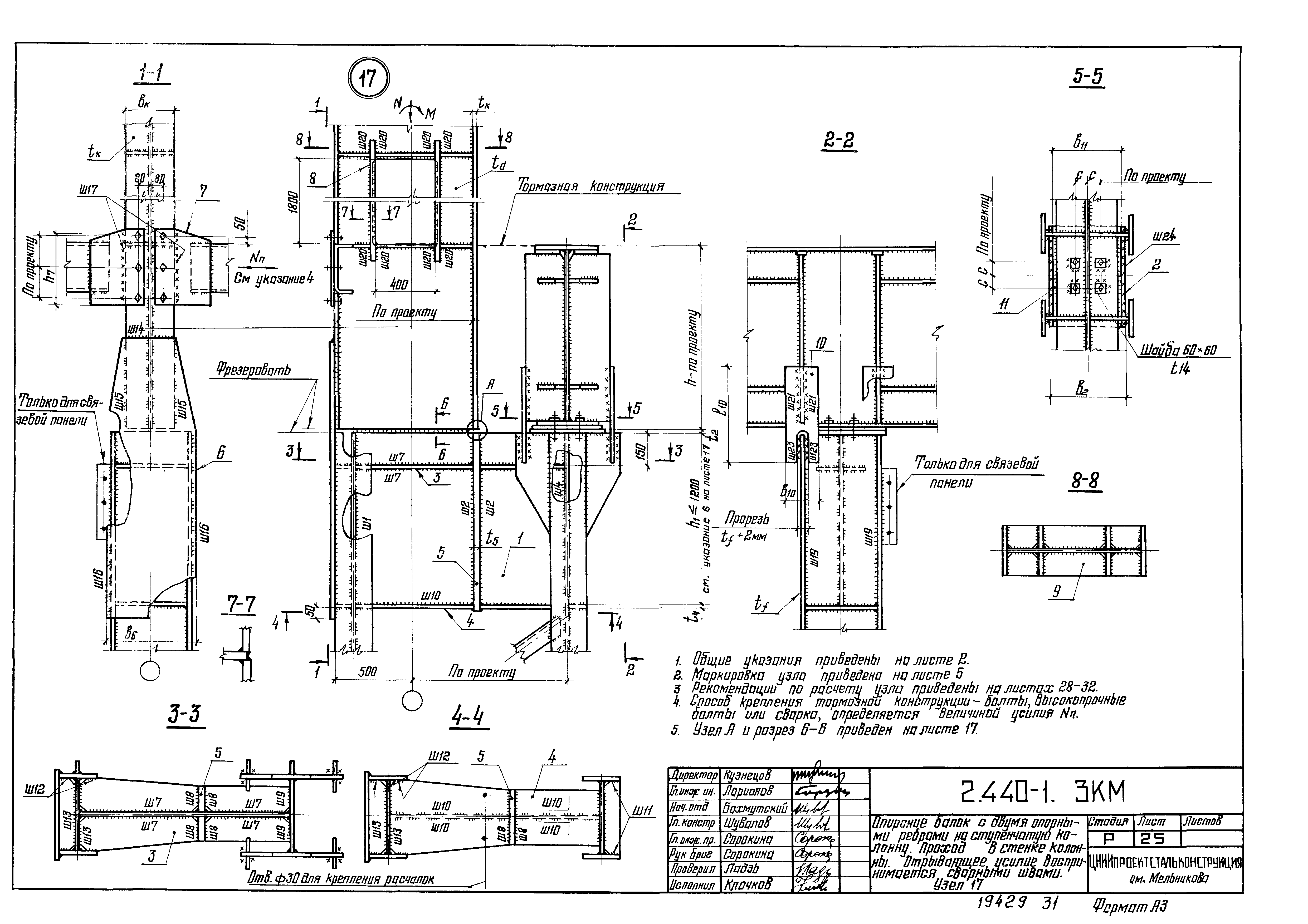
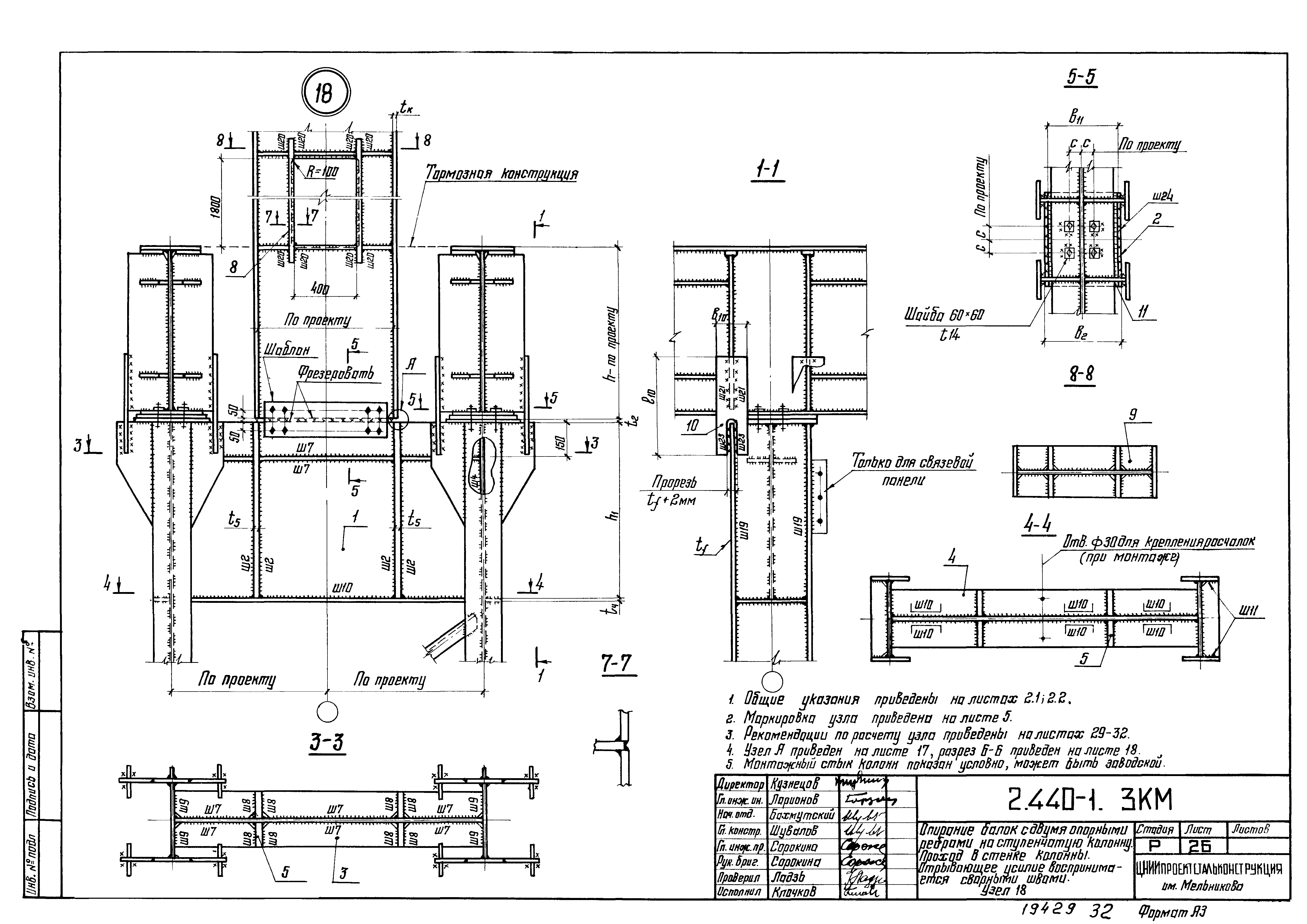
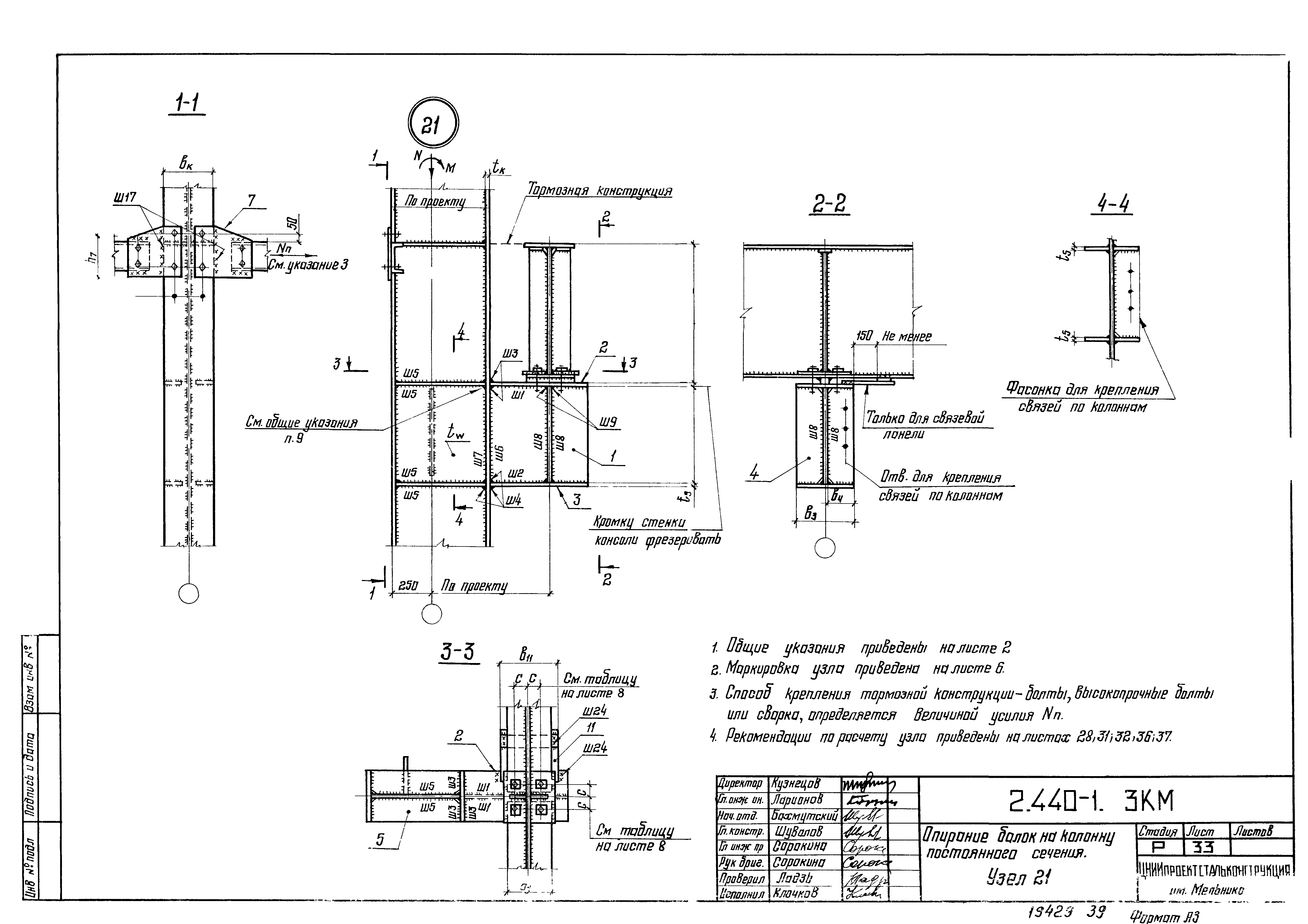
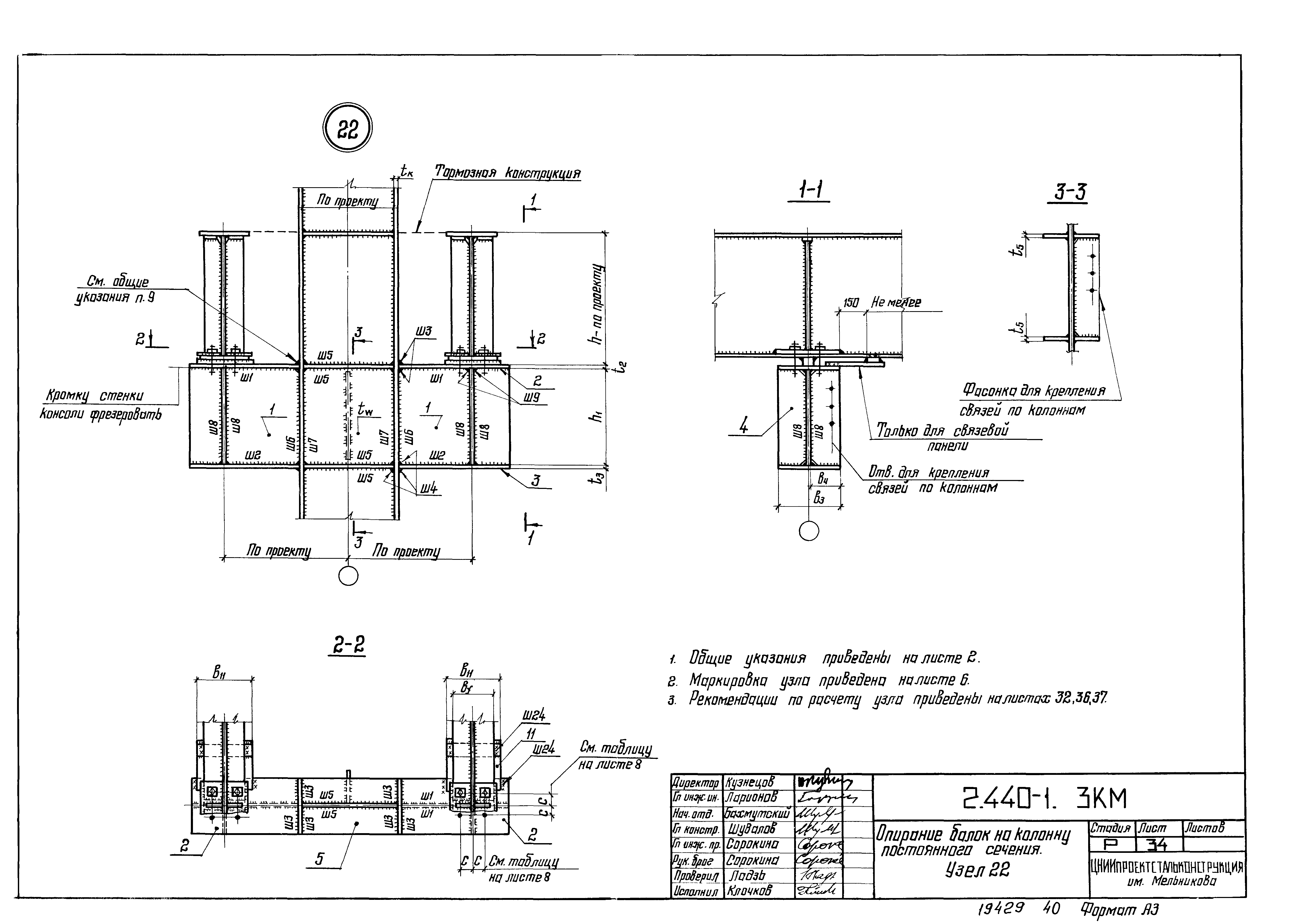
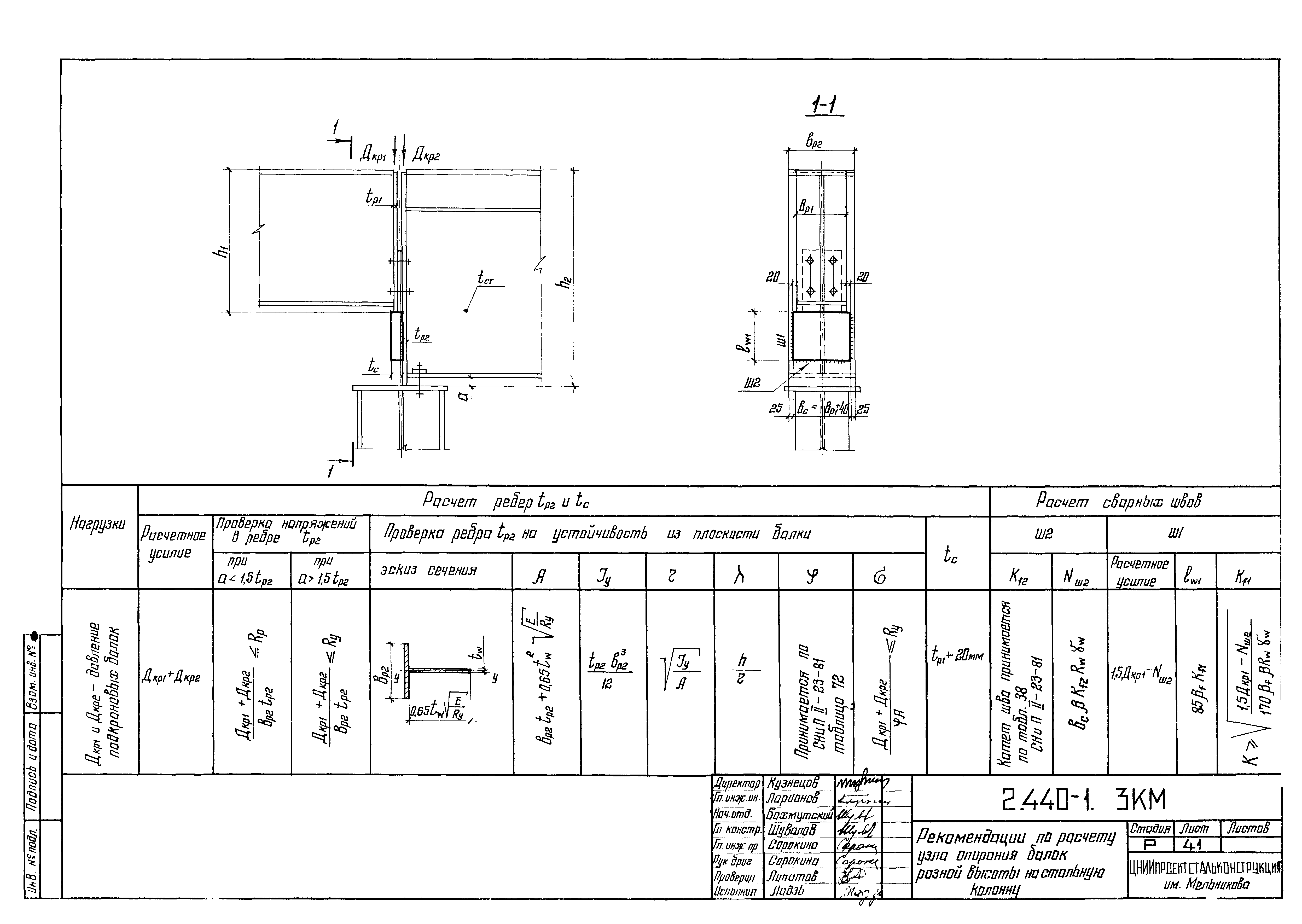
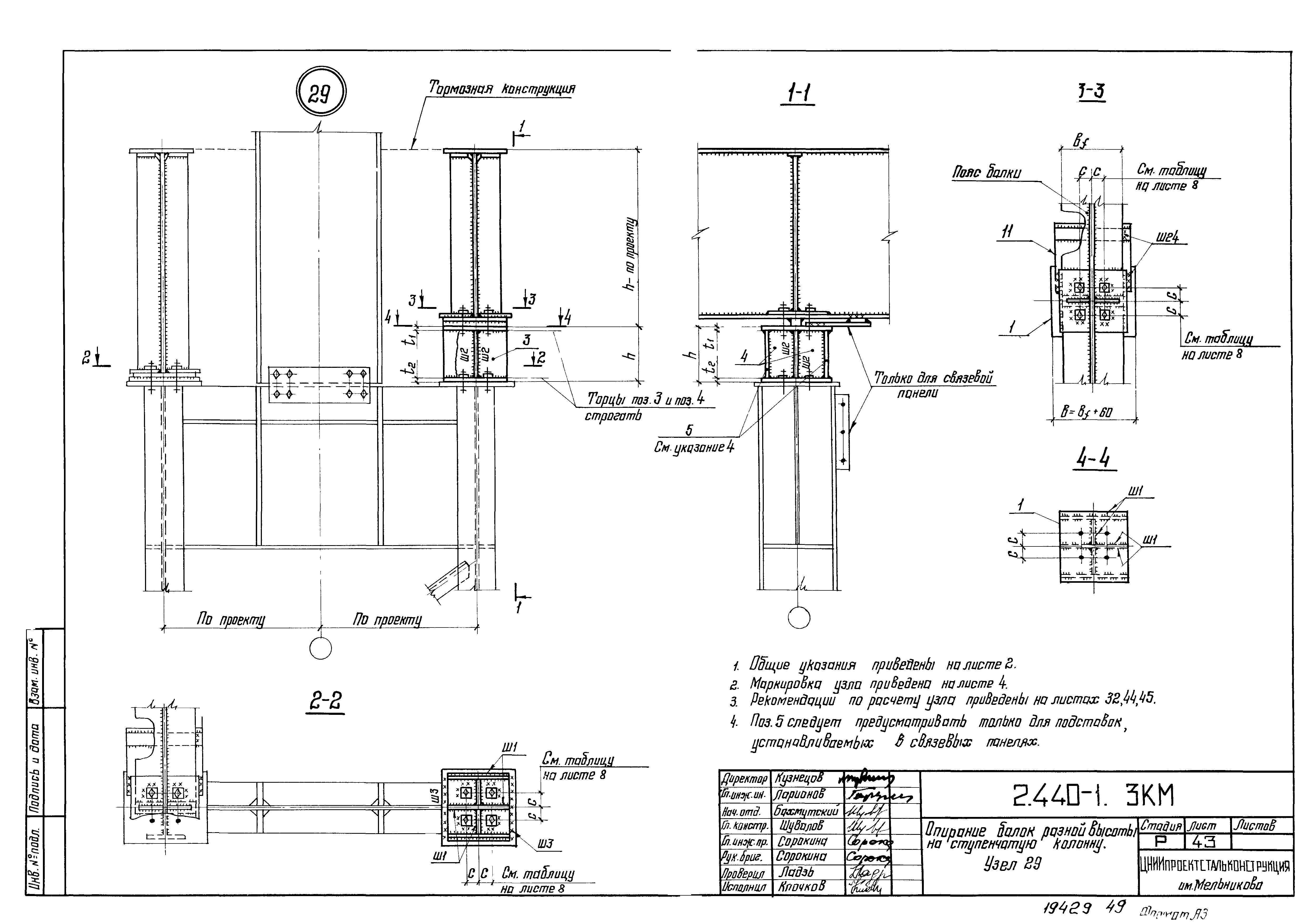
| Оглавление: | 2.440-1.3 КМ л.1.1- 1.3 Пояснительная записка 2.440-1.3 КМ л.2 Общие указания 2.440-1.3 КМ л.3 Маркировка узлов неразрезных подкрановых балок 2.440-1.3 КМ л.4 Маркировка узлов ступенчатых колонн без прохода вдоль крановых путей и узлов колонн у температурного шва 2.440-1.3 КМ л.5 Маркировка узлов ступенчатых колонн с проходом вдоль крановых путей и упора 2.440-1.3 КМ л.6 Маркировка узлов колонн постоянного сечения 2.440-1.3 КМ л.7 Маркировка узлов опирания подкрановых балок на железобетонные колонны 2.440-1.3 КМ л.8 Детали неразрезных подкрановых балок. Отрывающее усилие воспринимается болтами. Узлы 1; 2 2.440-1.3 КМ л.9 Детали неразрезных подкрановых балок. Отрывающее усилие воспринимается сварными швами. Узлы 3-5 2.440-1.3 КМ л.10 Монтажные стыки неразрезных подкрановых балок на высокопрочных болтах. Узлы 6; 7 2.440-1.3 КМ л.11 Монтажные стыки верхних поясов неразрезных подкрановых балок на высокопрочных болтах. Разрезы 1-1 2.440-1.3 КМ л.12 Монтажные стыки нижних поясов неразрезных подкрановых балок на высокопрочных болтах. Разрезы 2-2 2.440-1.3 КМ л.13 Рекомендации по расчету монтажных стыков неразрезных подкрановых балок на высокопрочных болтах 2.440-1.3 КМ л.14 Расположение отверстий в верхних поясах подкрановых балок и в ж.д. рельсах 2.440-1.3 КМ л.15 Указания по изготовлению сварных подкрановых балок 2.440-1.3 КМ л.16 Упор. Узел 8. Рекомендации по расчету упоров 2.440-1.3 КМ л.17 Опирание балок на ступенчатую колонну. Отрывающее усилие воспринимается болтами. Узел 9 2.440-1.3 КМ л.18 Опирание балок на ступенчатую колонну. Отрывающее усилие воспринимается болтами. Узел 10 2.440-1.3 КМ л.19 Опирание балок на ступенчатую колонну. Отрывающее усилие воспринимается сварными швами. Узел 11 2.440-1.3 КМ л.20 Опирание балок на ступенчатую колонну. Отрывающее усилие воспринимается сварными швами. Узел 12 2.440-1.3 КМ л.21 Опирание балок на ступенчатую колонну. Проход в стенке колонны. Отрывающее усилие воспринимается болтами. Узел 13 2.440-1.3 КМ л.22 Опирание балок на ступенчатую колонну. Проход в стенке колонны. Отрывающее усилие воспринимается болтами. Узел 14 2.440-1.3 КМ л.23 Опирание балок на ступенчатую колонну. Проход в стенке колонны. Отрывающее усилие воспринимается сварными швами. Узел 15 2.440-1.3 КМ л.24 Опирание балок на ступенчатую колонну. Проход в стенке колонны. Отрывающее усилие воспринимается сварными швами. Узел 16 2.440-1.3 КМ л.25 Опирание балок с двумя опорными ребрами на ступенчатую колонну. Проход в стенке колонны. Отрывающее усилие воспринимается сварными швами. Узел 17 2.440-1.3 КМ л.26 Опирание балок с двумя опорными ребрами на ступенчатую колонну. Проход в стенке колонны. Отрывающее усилие воспринимается сварными швами. Узел 18 2.440-1.3 КМ л.27 Монтажный стык надкрановой и подкрановой части колонны. Узлы 19; 20 2.440-1.3 КМ л.28 Рекомендации по расчету траверсы ступенчатой колонны правого ряда 2.440-1.3 КМ л.29 Рекомендации по расчету траверсы и прохода в стенке ступенчатой колонны среднего ряда 2.440-1.3 КМ л.30 Рекомендации по расчету ребер жесткости траверсы ступенчатой колонны 2.440-1.3 КМ л.31 Рекомендации по расчету сварных швов траверсы колонны и стыковой накладки 2.440-1.3 КМ л.32 Рекомендации по расчету креплений подкрановых балок к колоннам 2.440-1.3 КМ л.33 Опирание балок на колонну постоянного сечения. Узел 21 2.440-1.3 КМ л.34 Опирание балок на колонну постоянного сечения. Узел 22 2.440-1.3 КМ л.35 Опирание балок на колонну постоянного сечения с проходом в стенке колонны. Узел 23 2.440-1.3 КМ л.36 Рекомендации по расчету консоли и стенки колонны постоянного сечения 2.440-1.3 КМ л.37 Рекомендации по расчету сварных подкрановых консолей колонн постоянного сечения 2.440-1.3 КМ л.38 Опирание балок на железобетонную колонну. Узлы 24; 25 2.440-1.3 КМ л.39 Опирание балок разной высоты на ступенчатую на колонну. Узел 26 2.440-1.3 КМ л.40 Опирание балок разной высоты на ступенчатую на колонну. Узел 27 2.440-1.3 КМ л.41 Рекомендации по расчету узла опирания балок разной высоты на стальную колонну 2.440-1.3 КМ л.42 Опирание балок разной высоты на железобетонную на колонну. Узел 28 2.440-1.3 КМ л.43 Опирание балок разной высоты на ступенчатую на колонну. Узел 29 2.440-1.3 КМ л.44 Рекомендации по расчету подставки под неразрезные подкрановые балки 2.440-1.3 КМ л.45 Рекомендации по расчету подставки под неразрезные подкрановые балки устанавливаемые в связевой панели 2.440-1.3 КМ л.46 Базы ступенчатых колонн. Узел 30 2.440-1.3 КМ л.47 Базы колонн постоянного сечения. Узлы 31; 32. Базы ступенчатых колонн у температурного шва , Узел 33 2.440-1.3 КМ л.48 Рекомендации по расчету баз ступенчатых колонн (начало) 2.440-1.3 КМ л.49 Рекомендации по расчету баз ступенчатых колонн (окончание) 2.440-1.3 КМ л.50 Рекомендации по расчету баз колонн постоянного сечения (начало) 2.440-1.3 КМ л.51 Рекомендации по расчету баз колонн постоянного сечения (окончание) 2.440-1.3 КМ л.52 Рекомендации по расчету фундаментальных болтов колонн постоянного сечения и анкерных плиток |
| Разработан: | ЦНИИпроектстальконструкция |
| Утверждён: | 22.12.1983 Госстрой СССР (Государственный комитет Совета Министров СССР по делам строительства) (USSR Gosstroy 326) |
| Издан: | ЦИТП Госстроя СССР (CITP, Gosstroy (USSR) 1984 г. ) |


























































