Скачать Серия 2.440-2 Выпуск 2. Узлы покрытийДата актуализации: 01.01.2021
|
| Обозначение: | Серия 2.440-2 |
| Обозначение англ: | Series 2.440-2 |
| Статус: | справочные материалы, мп, тпр |
| Название рус.: | Выпуск 2. Узлы покрытий |
| Дата добавления в базу: | 01.09.2013 |
| Дата актуализации: | 01.01.2021 |
| Дата введения: | 01.08.1989 |
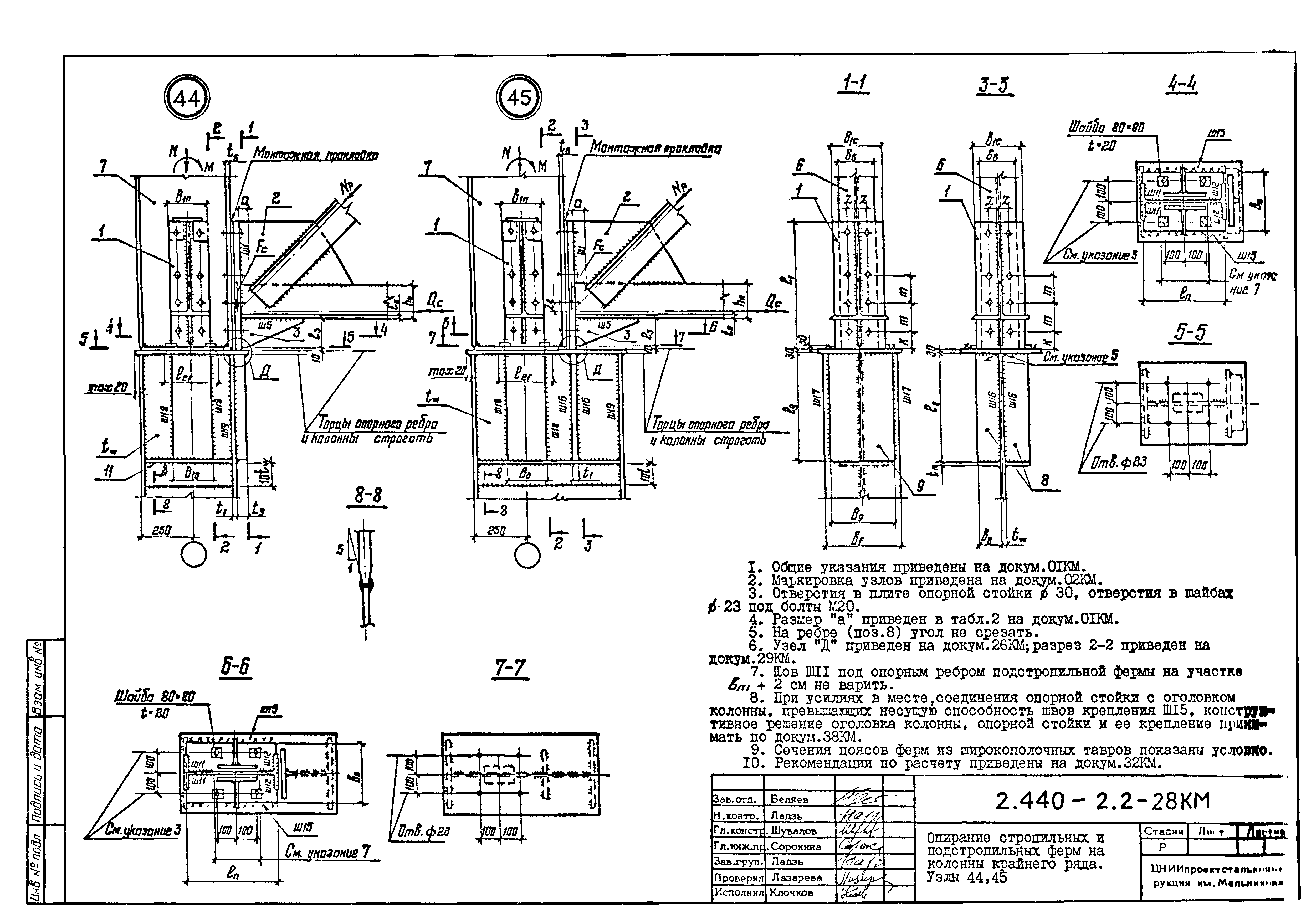
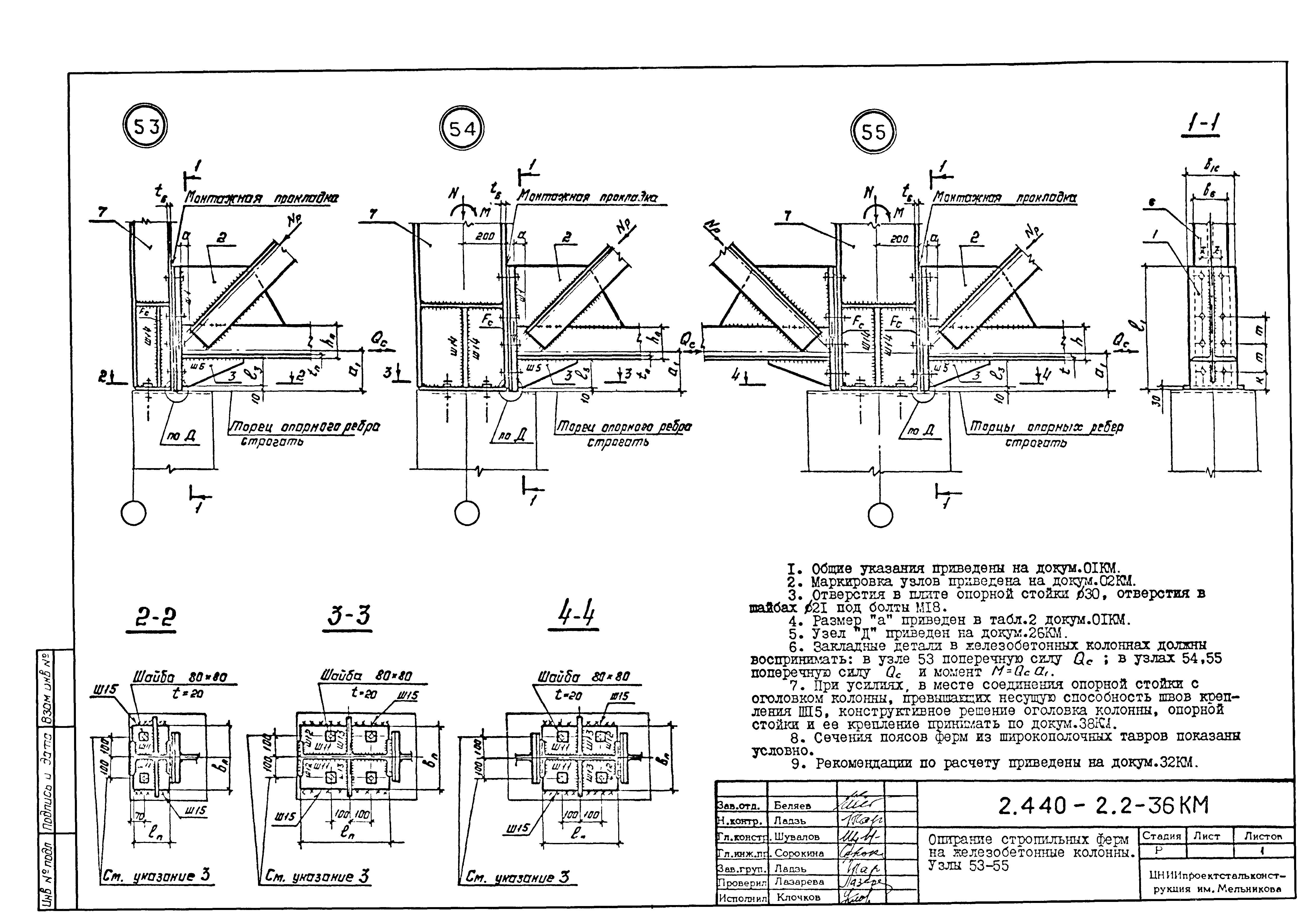
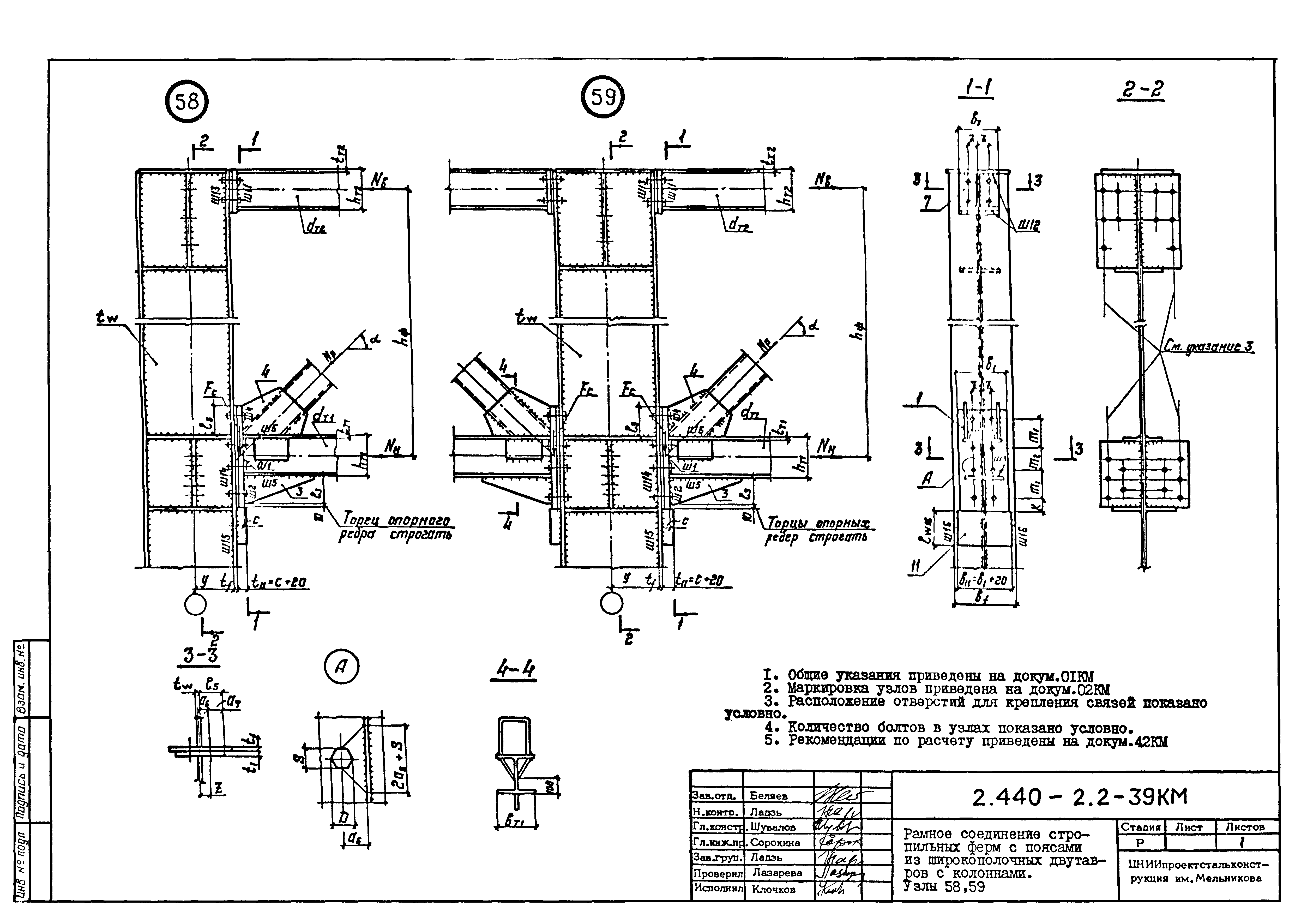
| Оглавление: | 2.440-2.2-00П3КМ Пояснительная записка 2.440-2.2-01КМ Общие указания 2.440-2.2-02КМ Маркировка узлов стропильных и подстропильных ферм 2.440-2.2-03КМ Заводские узлы верхних поясов стропильных ферм из парных уголков. Узлы 1, 2 2.440-2.2-04КМ Рекомендации по расчету узлов 1, 2 2.440-2.2-05КМ Монтажные стыки на сварке стропильных ферм из парных уголков. Узлы 3, 4 2.440-2.2-06КМ Монтажные стыки на сварке стропильных ферм из парных уголков. Узлы 5, 6 2.440-2.2-07КМ Рекомендации по расчету узлов 3-6 2.440-2.2-08КМ Монтажные стыки на высокопрочных болтах стропильных ферм из парных уголков. Узлы 7, 8 2.440-2.2-09КМ Монтажные стыки на высокопрочных болтах стропильных ферм из парных уголков. Узлы 9, 10 2.440-2.2-10КМ Рекомендации по расчету узлов 7-10 2.440-2.2-11КМ Монтажные стыки на фланцах верхних поясов стропильных ферм из парных уголков. Узлы 11, 12 2.440-2.2-12КМ Монтажные стыки на фланцах нижних поясов стропильных ферм из парных уголков. Узлы 13, 14 2.440-2.2-13КМ Монтажные стыки на фланцах верхних поясов стропильных ферм с поясами из тавров. Узлы 15, 16 2.440-2.2-14КМ Монтажные стыки на фланцах нижних поясов стропильных ферм с поясами из тавров. Узлы 17, 18 2.440-2.2-15КМ Монтажные стыки на высокопрочных болтах нижних поясов стропильных ферм с поясами из тавров. Узлы 19, 20 2.440-2.2-16КМ Рекомендации по расчету узлов 19, 20 2.440-2.2-17КМ Монтажные стыки на сварке нижних поясов стропильных ферм с поясами из тавров. Узлы 21, 22 2.440-2.2-18КМ Рекомендации по расчету узлов 21, 22 2.440-2.2-19КМ Крепление связей по нижним поясам стропильных ферм. Узел 23 2.440-2.2-20КМ Соединение стропильных ферм с опорными стойками. Узлы 24, 25 2.440-2.2-21КМ Соединение стропильных ферм с опорными стойками и узлы стропильных ферм. Узлы 26-28 2.440-2.2-22КМ Соединение стропильных и подстропильных ферм с опорными стойками. Узлы 29-31 2.440-2.2-23КМ Соединение стропильных и подстропильных ферм с опорными стойками. Узлы 32-34 2.440-2.2-24КМ Соединение стропильных ферм с подстропильными. Узлы 35-38 2.440-2.2-25КМ Опирание стропильных ферм на колонны крайнего ряда. Узлы 39, 40 2.440-2.2-26КМ Опирание стропильной фермы на колонну крайнего ряда. Узел 41 2.440-2.2-27КМ Опирание стропильных ферм на колонны среднего ряда. Узлы 42, 43 2.440-2.2-28КМ Опирание стропильных и подстропильных ферм на колонны крайнего ряда. Узлы 44, 45 2.440-2.2-29КМ Опирание стропильных и подстропильных ферм на колонну крайнего ряда. Узел 46 2.440-2.2-30КМ Опирание стропильных и подстропильных ферм на колонну среднего ряда. Узел 47 2.440-2.2-31КМ Опирание стропильных и подстропильных ферм на колонну среднего ряда. Узел 48 2.440-2.2-32КМ Рекомендации по расчету узлов 39-48 2.440-2.2-33КМ Опирание стропильных ферм с поясами из широкополочных тавров на подстропильные фермы Узлы 49, 50 2.440-2.2-34КМ Опирание стропильных ферм из парных уголков на подстропильные фермы Узлы 51, 52 2.440-2.2-35КМ Рекомендации по расчету узлов 49-52 и болтов для крепления опорной стойки к колонне 2.440-2.2-36КМ Опирание стропильных ферм на железобетонные колонны. Узлы 53-55 2.440-2.2-37КМ Опирание стропильных ферм на железобетонные колонны. Узлы 56, 57 2.440-2.2-38КМ Узел опирания стропильных и подстропильных ферм на колонну - вариант 2 2.440-2.2-39КМ Рамное соединение стропильных ферм с поясами из широкополочных двутавров с колоннами. Узлы 58, 59 2.440-2.2-40КМ Рамное соединение стропильных ферм с поясами из широкополочных двутавров с колоннами. Узлы 60, 61 2.440-2.2-41КМ Рамное соединение стропильных ферм с поясами из широкополочных тавров с колоннами. Узлы 62, 63 2.440-2.2-42КМ Рекомендации по расчету узлов 58-63 2.440-2.2-43КМ Рамное соединение стропильных ферм из парных уголков с колоннами. Узлы 64, 65 2.440-2.2-44КМ Рекомендации по расчету узлов 64, 65 |
| Разработан: | ЦНИИпроектстальконструкция |
| Утверждён: | 14.12.1988 Госстрой СССР (Государственный комитет Совета Министров СССР по делам строительства) (USSR Gosstroy 6/6-2862) |
| Издан: | ЦИТП Госстроя СССР (CITP, Gosstroy (USSR) 1989 г. ) |

























































