Скачать Серия 2.440-2 Выпуск 4. Узлы тормозных конструкций и вертикальных связейДата актуализации: 01.01.2021
|
| Обозначение: | Серия 2.440-2 |
| Обозначение англ: | Series 2.440-2 |
| Статус: | справочные материалы, мп, тпр |
| Название рус.: | Выпуск 4. Узлы тормозных конструкций и вертикальных связей |
| Дата добавления в базу: | 01.09.2013 |
| Дата актуализации: | 01.01.2021 |
| Дата введения: | 01.09.1989 |
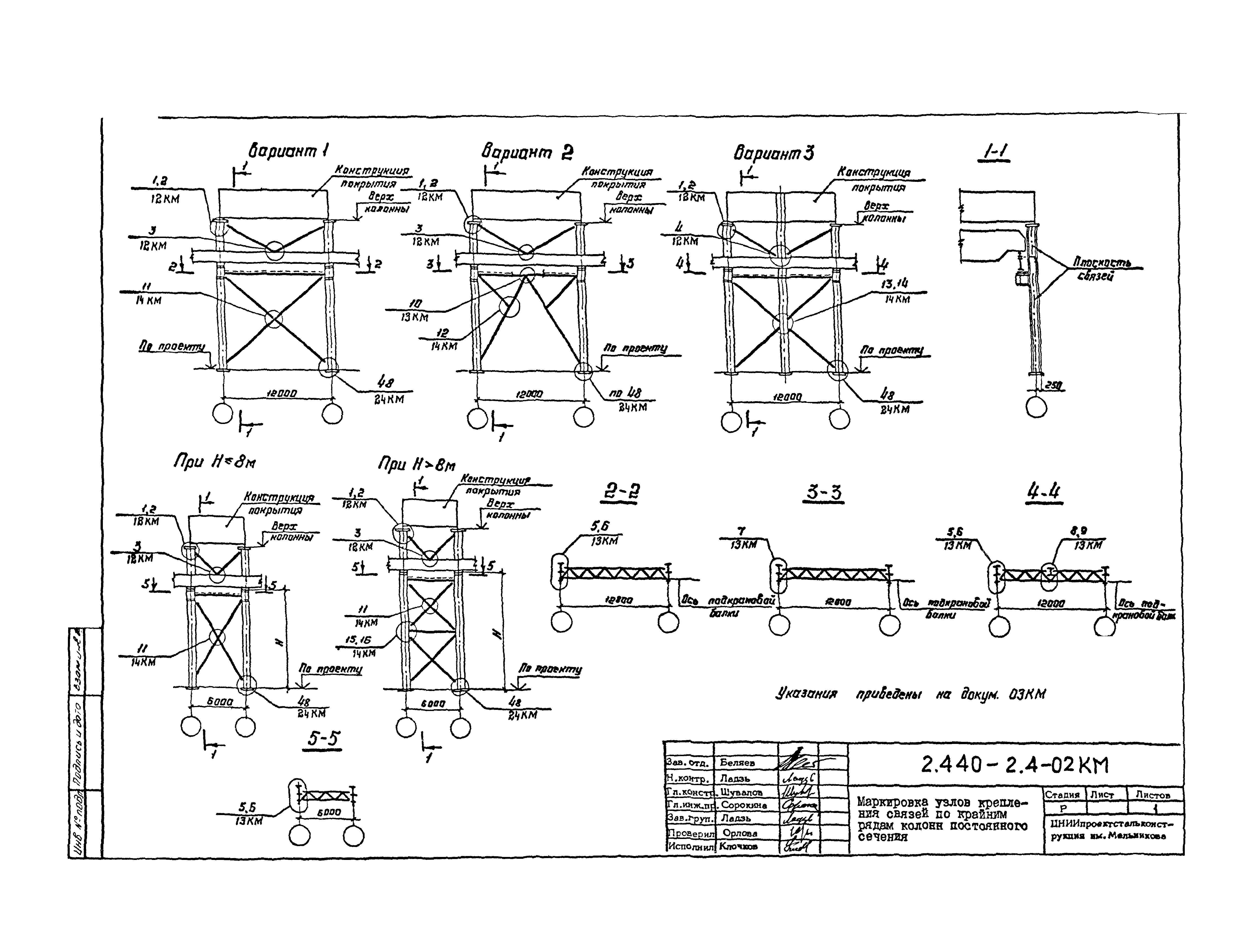
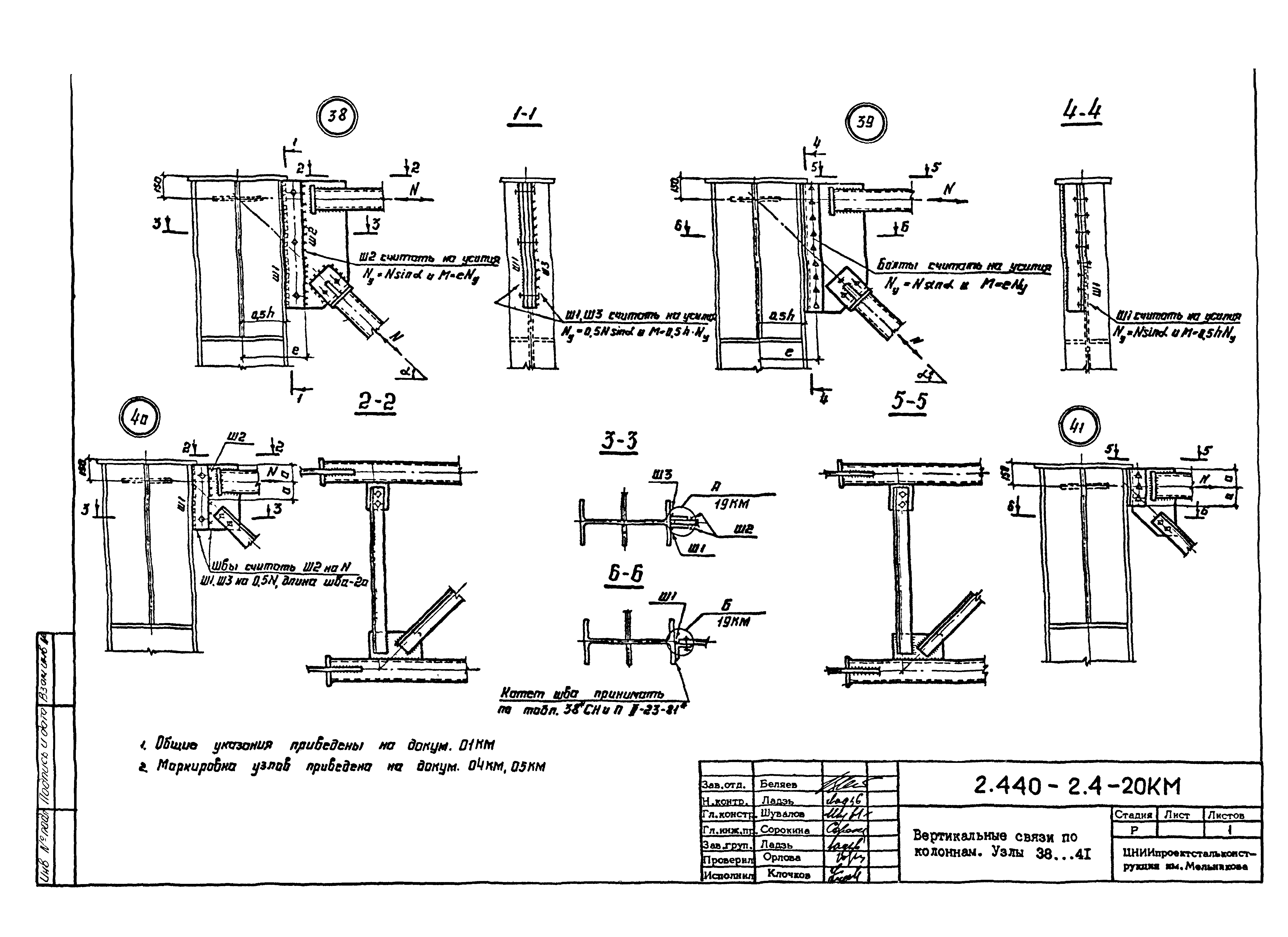
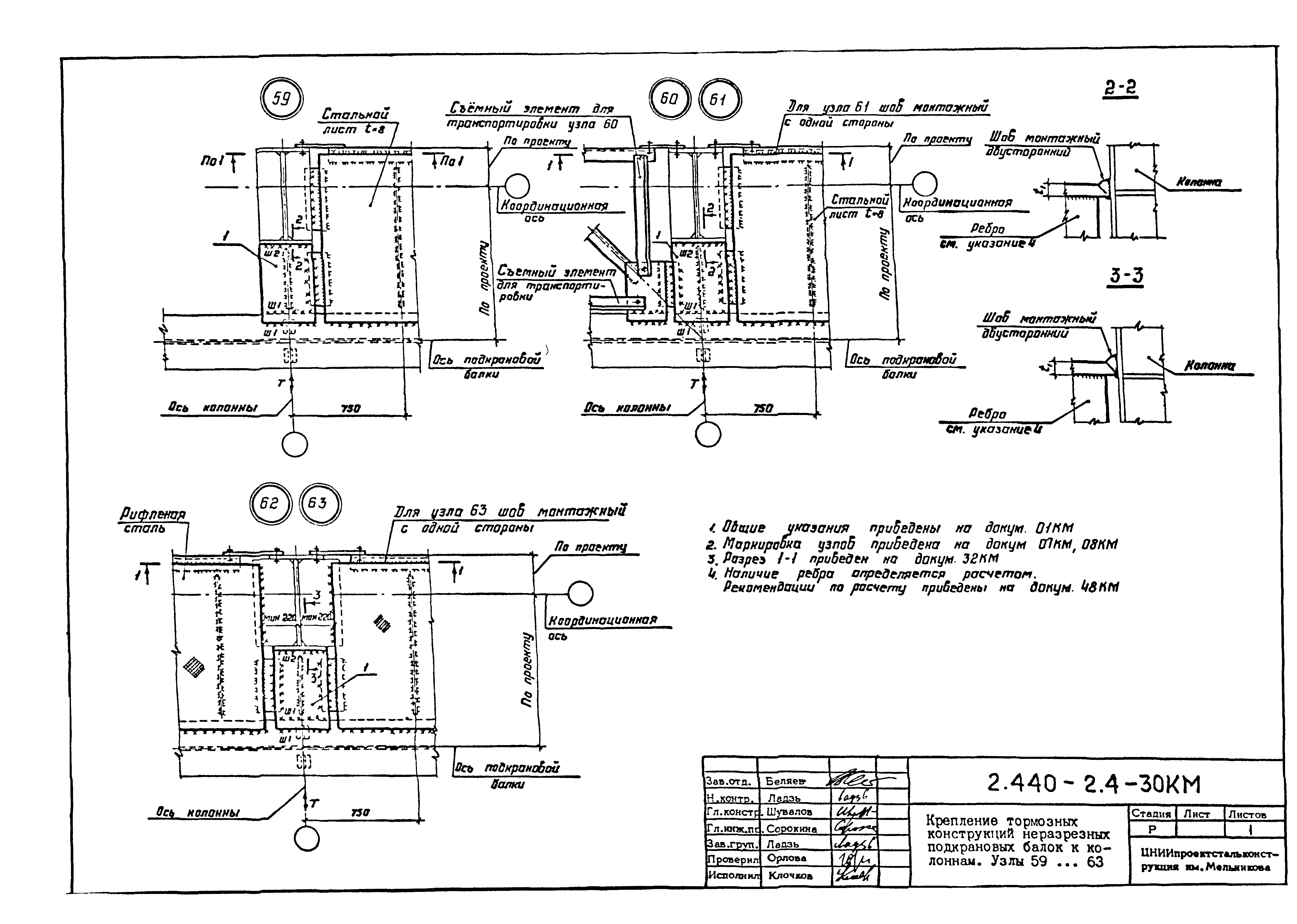
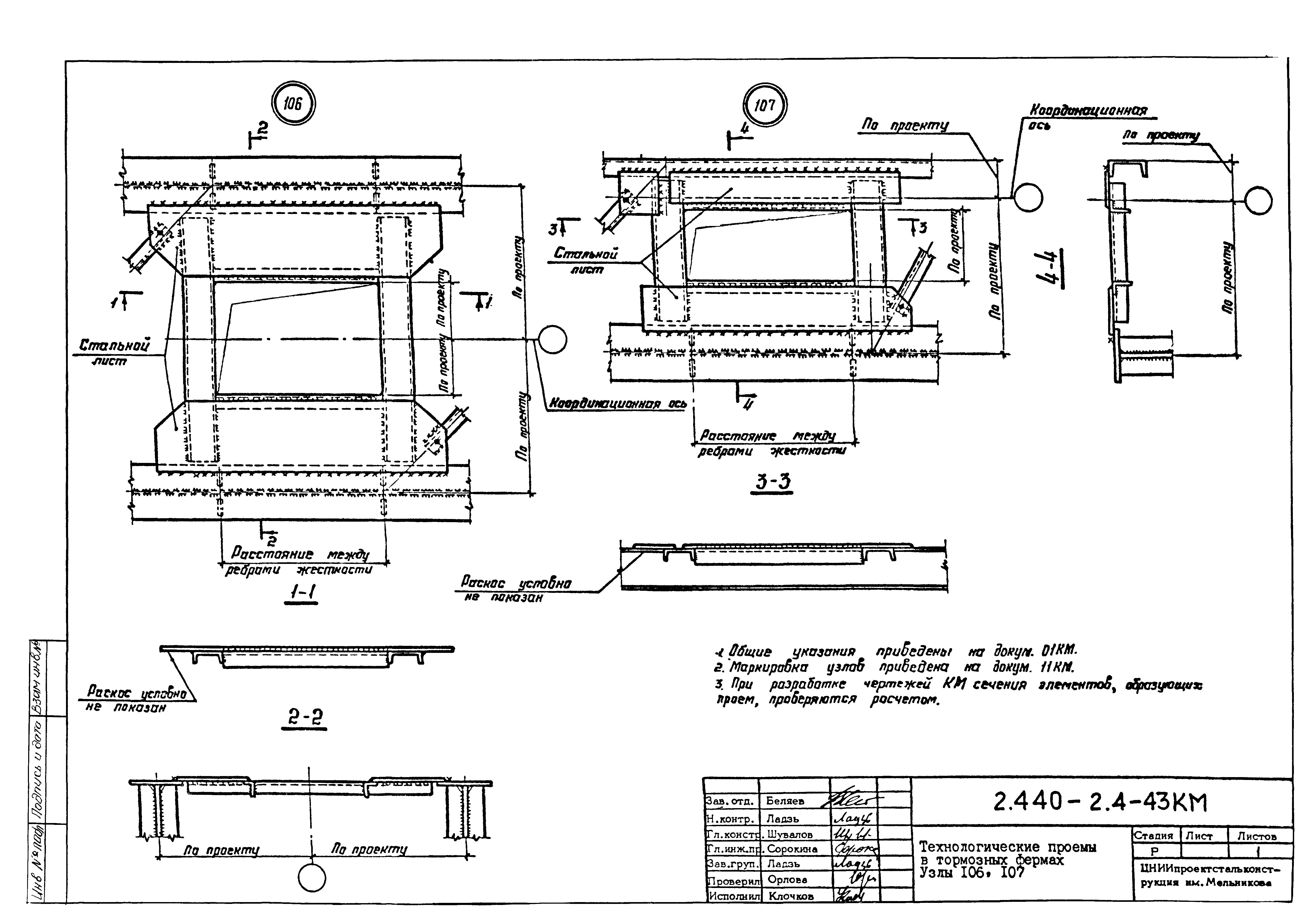
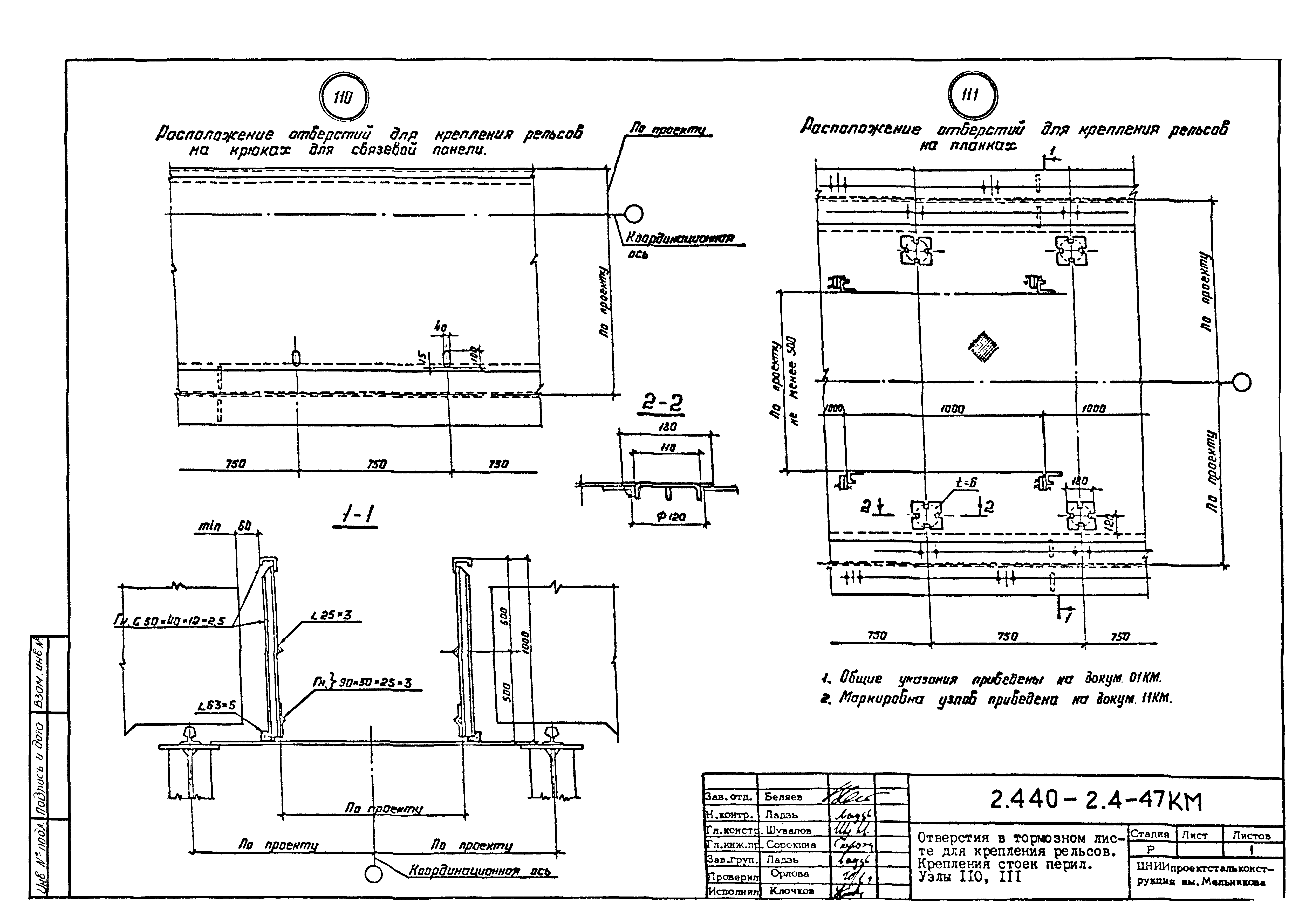
| Оглавление: | 2.440-2.4-00П3КМ Пояснительная записка 2.440-2.4-01КМ Общие указания 2.440-2.4-02КМ Маркировка узлов крепления связей по крайним рядам колонн постоянного сечения 2.440-2.4-03КМ Маркировка узлов крепления связей по средним рядам колонн постоянного сечения 2.440-2.4-04КМ Маркировка узлов крепления связей по крайним рядам ступенчатых колонн 2.440-2.4-05КМ Маркировка узлов крепления связей по средним рядам ступенчатых колонн 2.440-2.4-06КМ Маркировка узлов крепления связей колонн бескрановых зданий 2.440-2.4-07КМ Маркировка узлов крепления тормозных балок к колоннам крайнего ряда 2.440-2.4-08КМ Маркировка узлов крепления тормозных ферм к колоннам крайнего ряда 2.440-2.4-09КМ Маркировка узлов крепления тормозных ферм и балок к колоннам среднего ряда 2.440-2.4-10КМ Маркировка узлов связей по нижним поясам подкрановых балок и вспомогательных ферм 2.440-2.4-11КМ Маркировка узлов проемов и технологических отверстий в тормозных конструкциях 2.440-2.4-12КМ Вертикальные связи по колоннам. Узлы 1…4 2.440-2.4-13КМ Вертикальные связи по колоннам. Узлы 5…10 2.440-2.4-14КМ Вертикальные связи по колоннам.. Узлы 11…16 2.440-2.4-15КМ Вертикальные связи по колоннам. Узлы 18…24 2.440-2.4-16КМ Вертикальные связи по колоннам. Узлы 25…28 2.440-2.4-17КМ Вертикальные связи по колоннам. Узлы 29…32 2.440-2.4-18КМ Вертикальные связи по колоннам. Узлы 33…35 2.440-2.4-19КМ Вертикальные связи по колоннам. Узлы 36, 37 2.440-2.4-20КМ Вертикальные связи по колоннам. Узлы 38…41 2.440-2.4-21КМ Вертикальные связи по колоннам. Узлы 42, 43 2.440-2.4-22КМ Вертикальные связи по колоннам. Узлы 44, 45 2.440-2.4-23КМ Вертикальные связи по колоннам. Узлы 46, 47 2.440-2.4-24КМ Вертикальные связи по колоннам. Узлы 48, 49 2.440-2.4-25КМ Вертикальные связи по колоннам. Узлы 50, 51 2.440-2.4-26КМ Вертикальные связи по колоннам. Узлы 52, 53 2.440-2.4-27КМ Вертикальные связи по колоннам. Узлы 54, 55 2.440-2.4-28КМ Вертикальные связи по колоннам. Узлы 56, 57 2.440-2.4-29КМ Вертикальные связи, по колоннам. Узел 58 2.440-2.4-30КМ Крепление тормозных конструкций неразрезных подкрановых балок к колоннам. Узлы 59…63 2.440-2.4-31КМ Крепление тормозных конструкций неразрезных подкрановых балок к колоннам. Узлы 64…66 2.440-2.4-32КМ Крепление тормозных конструкций неразрезных подкрановых балок к колоннам с проходом в теле колонны. Узлы 67…69 2.440-2.4-33КМ Крепление тормозных конструкций неразрезных подкрановых балок к колоннам. Узлы 70…75 2.440-2.4-34КМ Крепление тормозных конструкций неразрезных подкрановых балок к колоннам. Узлы 76…78 2.440-2.4-35КМ Крепление тормозных конструкций разрезных подкрановых балок к колоннам. Узлы 79…85 2.440-2.4-36КМ Крепление тормозных конструкций разрезных подкрановых балок к колоннам. Узлы 86, 87 2.440-2.4-37КМ Крепление тормозных конструкций к стойкам фахверка и промежуточные узлы. Узлы 88, 89 2.440-2.4-38КМ Крепление тормозных конструкций к стойкам фахверка и промежуточные узлы. Узлы 90, 91 2.440-2.4-39КМ Крепление тормозных конструкций к стойкам фахверка. Узлы 92, 93 2.440-2.4-40КМ Промежуточные узлы тормозных конструкций и технологические отверстия в тормозной балке. Узлы 94…96 2.440-2.4-41КМ Узлы горизонтальных связей по нижним поясам подкрановых балок и вспомогательных ферм. Узлы 97…101 2.440-2.4-42КМ Узлы горизонтальных связей по нижним поясам подкрановых балок и вспомогательных ферм. Узлы 102…105 2.440-2.4-43КМ Технологические проемы в тормозных фермах. Узлы 106, 107 2.440-2.4-44КМ Выход на подкрановые пути крайнего ряда колонн. Тормозная конструкция-балка. Узел 108 2.440-2.4-45КМ Выход на подкрановые пути среднего ряда колонн. Тормозная конструкция-балка. Узел 109 2.440-2.4-46КМ Крышка люка 2.440-2.4-47КМ Отверстия в тормозном листе для крепления рельсов. Крепления стоек перил. Узлы 110, 111 2.440-2.4-48КМ Рекомендации по расчету крепления неразрезных подкрановых балок к стальным колоннам в горизонтальной плоскости 2.440-2.4-49КМ Рекомендации по расчету крепления разрезных подкрановых балок к стальным колоннам в горизонтальной плоскости |
| Разработан: | ЦНИИпроектстальконструкция |
| Утверждён: | 06.01.1989 Госстрой СССР (Государственный комитет Совета Министров СССР по делам строительства) (USSR Gosstroy 4/6-20) |
| Издан: | ЦИТП Госстроя СССР (CITP, Gosstroy (USSR) 1989 г. ) |























































