Скачать Серия 5.903-13 Выпуск 7-95. Опоры трубопроводов неподвижныеДата актуализации: 01.01.2021
|
| Обозначение: | Серия 5.903-13 |
| Обозначение англ: | Series 5.903-13 |
| Статус: | не определен законодательством |
| Название рус.: | Выпуск 7-95. Опоры трубопроводов неподвижные |
| Дата добавления в базу: | 01.09.2013 |
| Дата актуализации: | 01.01.2021 |
| Дата введения: | 17.02.1997 |
| Дата окончания срока действия: | 30.06.2003 |
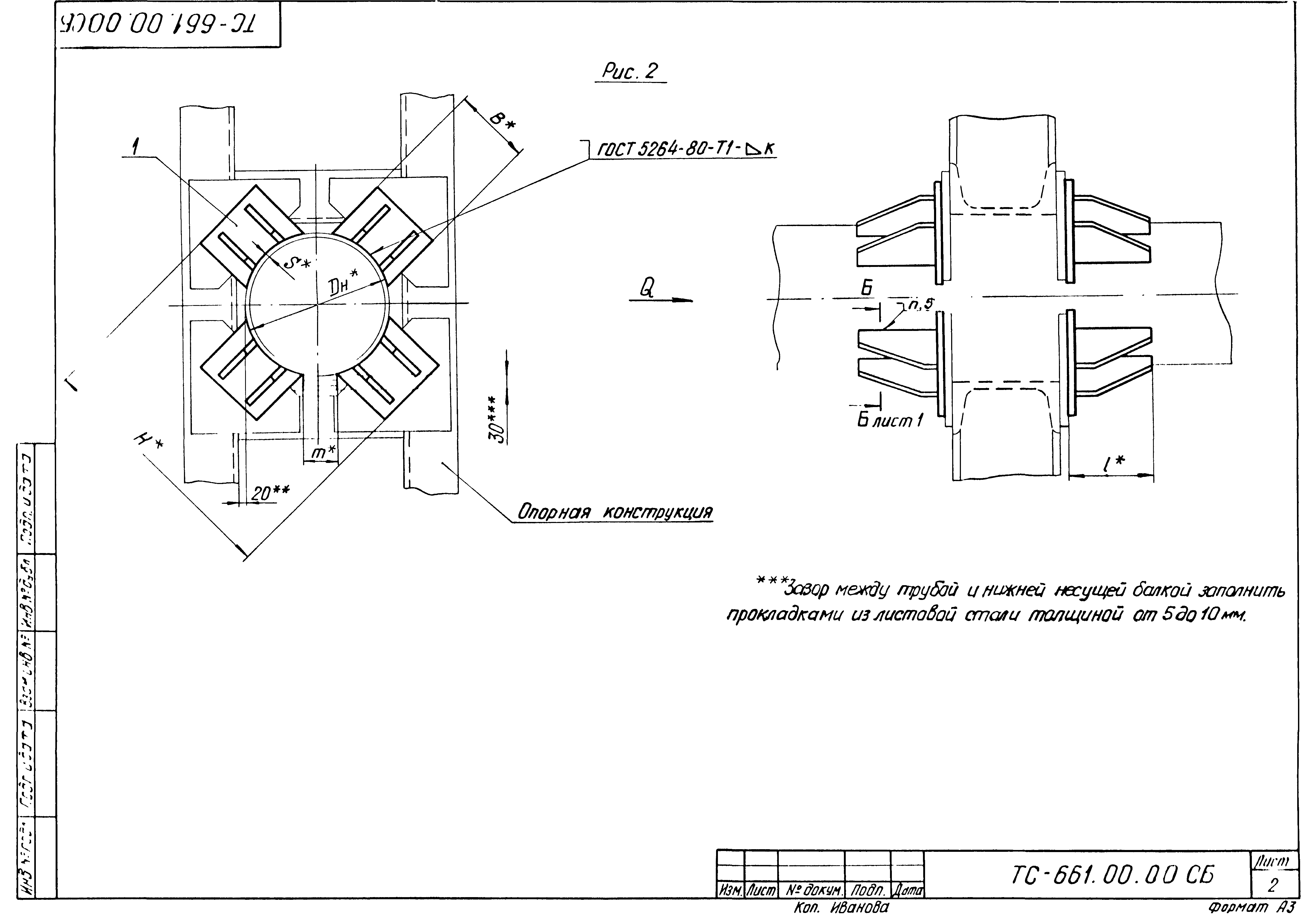
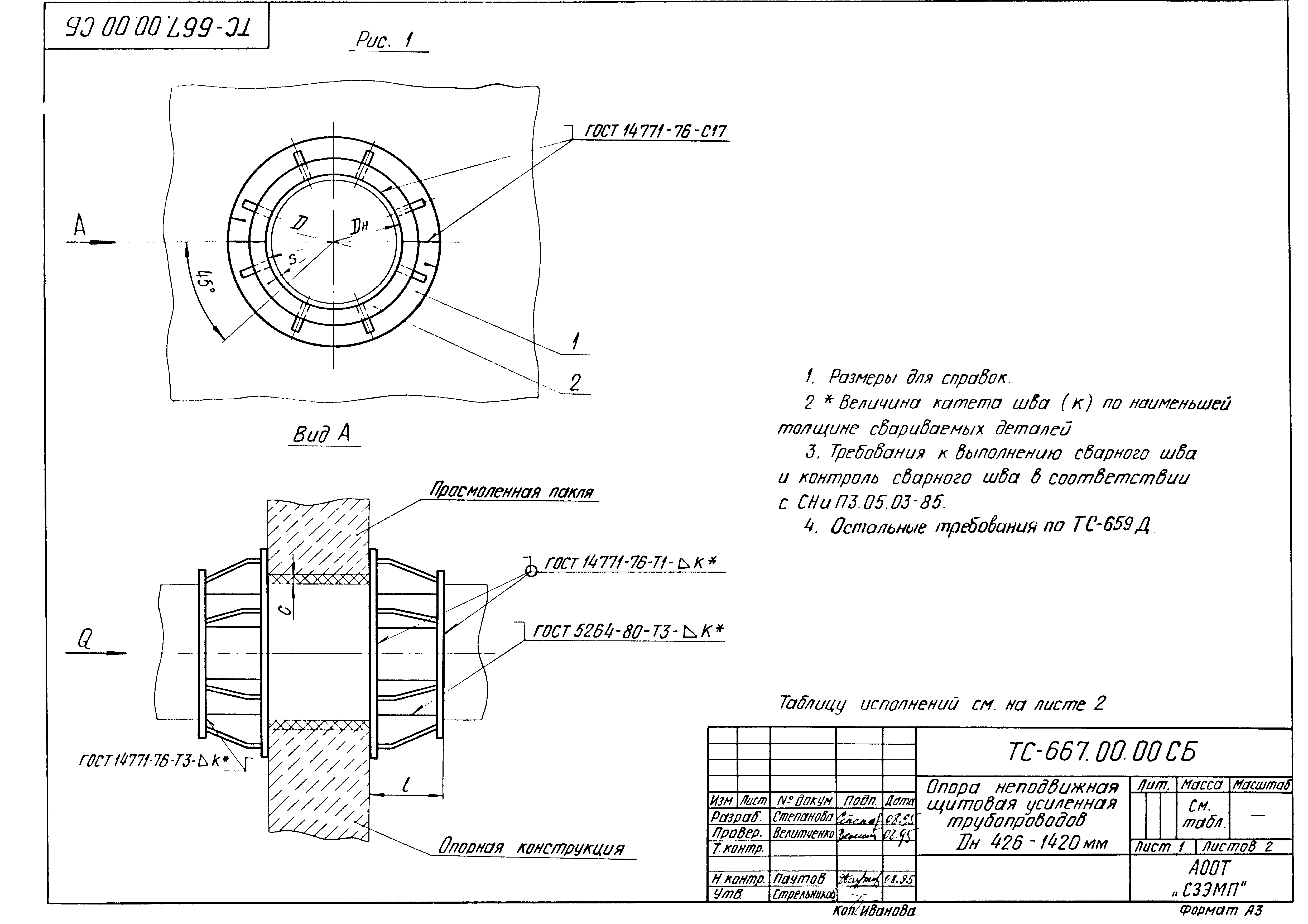
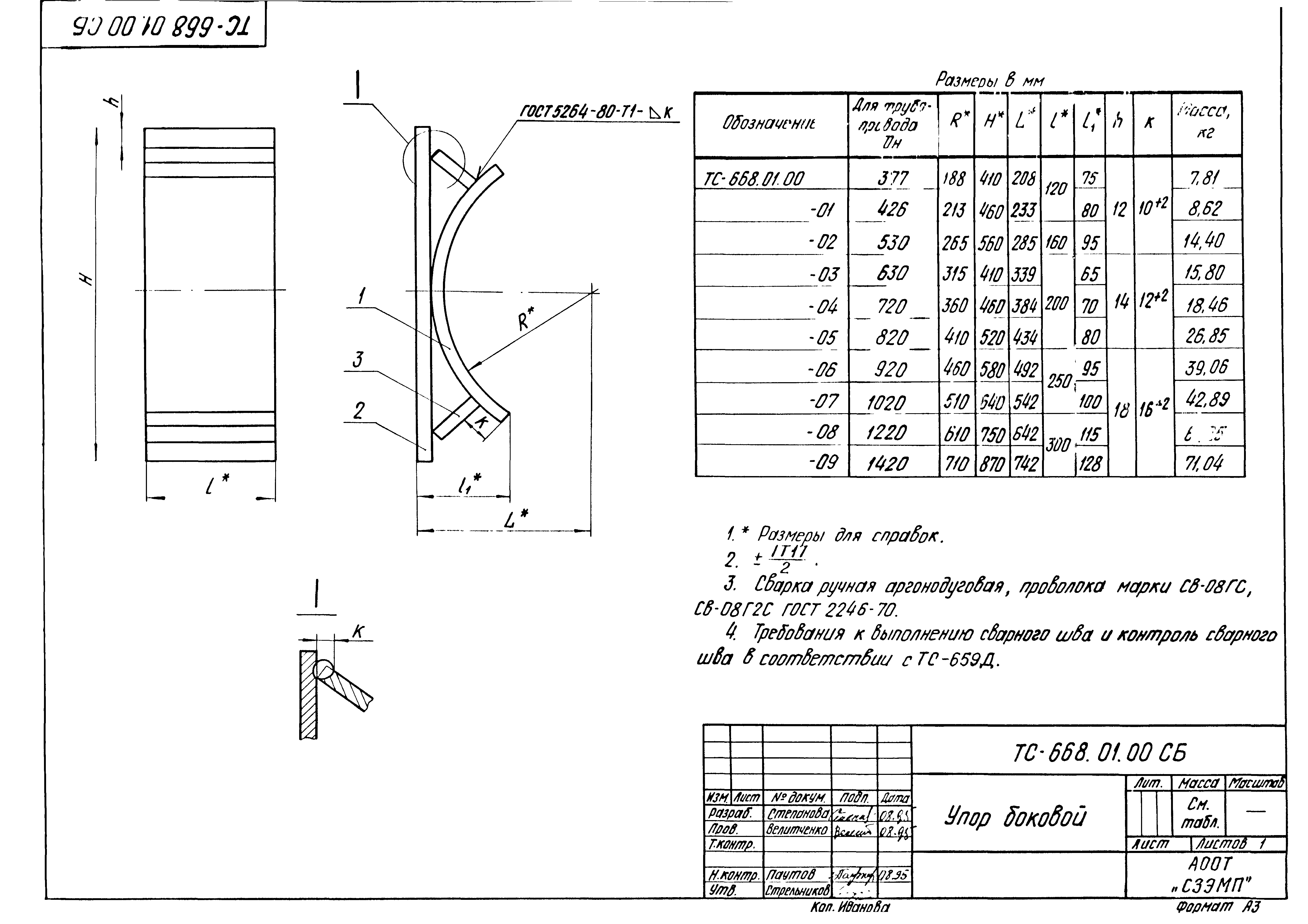
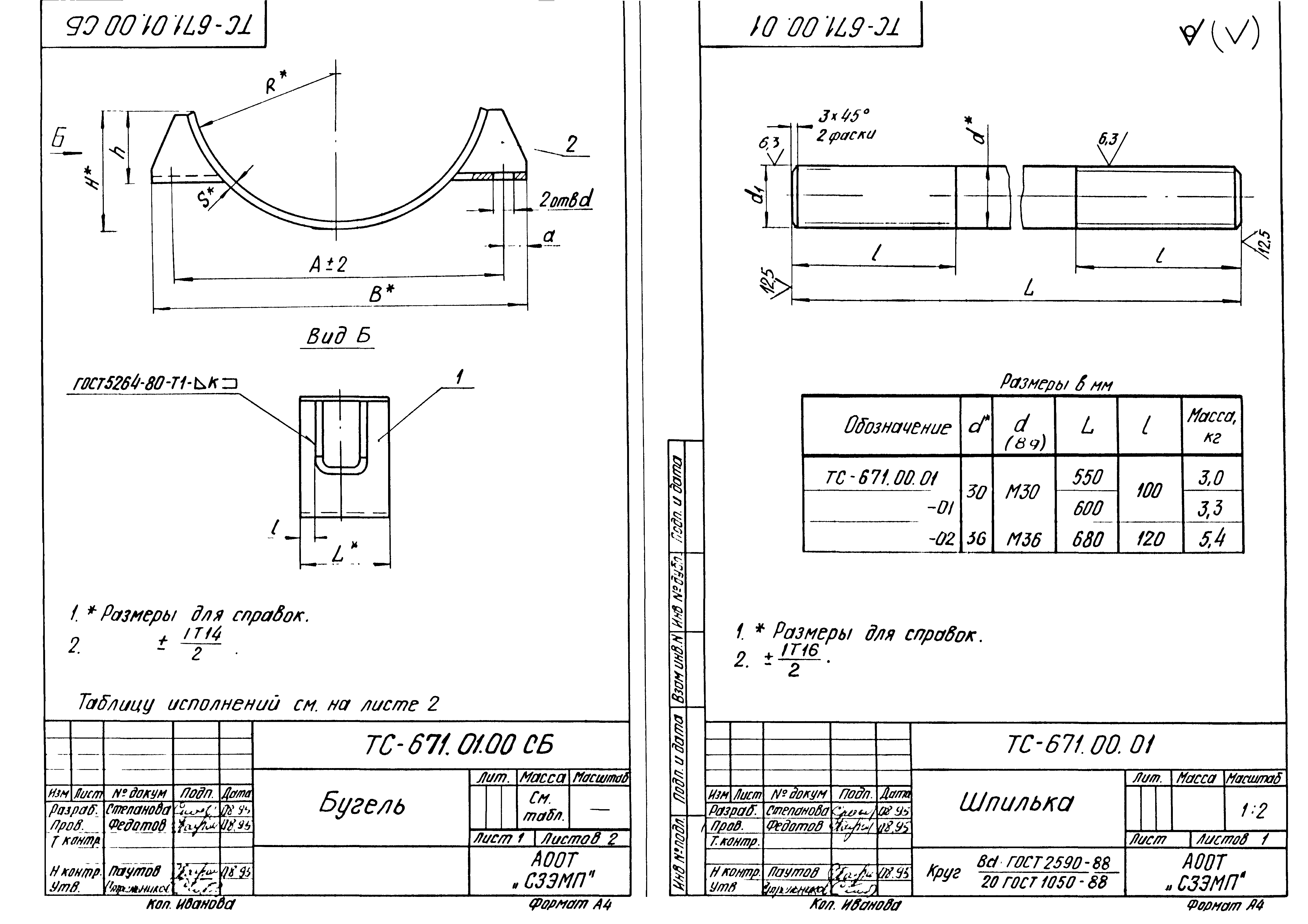
| Оглавление: | ТС-659 Д Технические требования ТС-659.00.00 Опора неподвижная хомутовая трубопроводов Dн 32-219 мм. Спецификация ТС-659.00.00СБ Опора неподвижная хомутовая трубопроводов Dн 32-219 мм ТС-659.00.01 Упор ТС-659.00.02 Хомут ТС-660.00.00 Опора неподвижная двухупорная трубопроводов Dн 32-1420 мм. Спецификация ТС-660.00.00СБ Опора неподвижная двухупорная трубопроводов Dн 32-1420 мм ТС-660.01.00 Упор. Спецификация ТС-660.01.00СБ Упор ТС-660.01.01 Плита ТС-660.01.02 Ребро ТС-661.00.00 Опора неподвижная четырехупорная трубопроводов Dн 133-1420 мм. Спецификация ТС-661.00.00СБ Опора неподвижная четырехупорная трубопроводов Dн 133-1420 мм ТС-662.00.00 Опора неподвижная двухупорная усиленная трубопроводов Dн 108-1420 мм. Спецификация ТС-662.00.00СБ Опора неподвижная двухупорная усиленная трубопроводов Dн 108-1420 мм ТС-662.01.00 Упор усиленный. Спецификация ТС-662.01.00СБ Упор усиленный ТС-662.01.01 Подушка ТС-663.00.00 Опора неподвижная двухупорная усиленная трубопроводов Dн 219-1420 мм. Спецификация ТС-663.00.00СБ Опора неподвижная двухупорная усиленная трубопроводов Dн 219-1420 мм ТС-664.00.00 Опора неподвижная четырехупорная усиленная трубопроводов Dн 426-1420 мм. Спецификация ТС-664.00.00СБ Опора неподвижная четырехупорная усиленная трубопроводов Dн 426-1420 мм ТС-665.00.00 Опора неподвижная двухупорная сальниковых компенсаторов Dн 530-820. Спецификация ТС-665.00.00СБ Опора неподвижная двухупорная сальниковых компенсаторов Dн 530-820 ТС-665.01.00 Упор. Спецификация ТС-665.01.00СБ Упор ТС-665.01.01 Плита ТС-666.00.00 Опора неподвижная щитовая трубопроводов Dн 108-1420 мм. Спецификация ТС-666.00.00СБ Опора неподвижная щитовая трубопроводов Dн 108-1420 мм. Спецификация ТС-666.01.00 Щит. Спецификация ТС-666.01.00СБ Щит ТС-666.01.01 Полукольцо ТС-667.00.00 Опора неподвижная щитовая усиленная трубопроводов Dн 426-1420 мм. Спецификация ТС-667.00.00СБ Опора неподвижная щитовая усиленная трубопроводов Dн 426-1420 мм ТС-667.01.00 Щит. Спецификация ТС-667.01.00СБ Щит ТС-667.00.01 Полукольцо ТС-667.01.01 Ребро ТС-668.00.00 Опора неподвижная боковая трубопроводов Dн 219-1420. Спецификация ТС-668.00.00СБ Опора неподвижная боковая трубопроводов Dн 219-1420 ТС-668.01.00 Упор боковой. Спецификация ТС-668.01.00 Упор боковой ТС-668.01.01 Плита ТС-668.01.02 Планка ТС-668.00.01 Подушка ТС-669.00.00 Опора неподвижная хомутовая трубопроводов Dн 108-1020 мм. Спецификация ТС-669.00.00СБ Опора неподвижная хомутовая трубопроводов Dн 108-1020 мм ТС-669.00.01 Хомут ТС-670.00.00 Опора неподвижная хомутовая с корпусом трубопроводов Dн 57-377 мм. Спецификация ТС-670.00.00СБ Опора неподвижная хомутовая с корпусом трубопроводов Dн 57-377 мм ТС-670.01.00 Корпус. Спецификация ТС-670.01.00СБ Корпус ТС-670.01.01 Подушка ТС-670.01.02 Скобы ТС-670.01.03 Ребро ТС-670.01.04 Ушко ТС-670.00.01 Хомут ТС-670.00.02 Упор ТС-671.00.00 Опора неподвижная бугельная с корпусом трубопроводов Dн 377-1420 мм. Спецификация ТС-671.00.00СБ Опора неподвижная бугельная с корпусом трубопроводов Dн 377-1420 мм ТС-671.01.00 Бугель. Спецификация ТС-671.01.00СБ Бугель ТС-671.00.01 Шпилька |
| Разработан: | АООТ Севзапэнергомонтажпроект |
| Утверждён: | АООТ Энергомонтажпроект |
| Принят: | 17.02.1997 АООТ Объединение ВНИПИЭНЕРГОПРОМ (07020/33) |
| Заменяет собой: |






























































































































