Скачать ОСТ 1 12402-82 Стекла-компенсаторы. Конструкция и размерыДата актуализации: 01.01.2021 ОСТ 1 12402-82
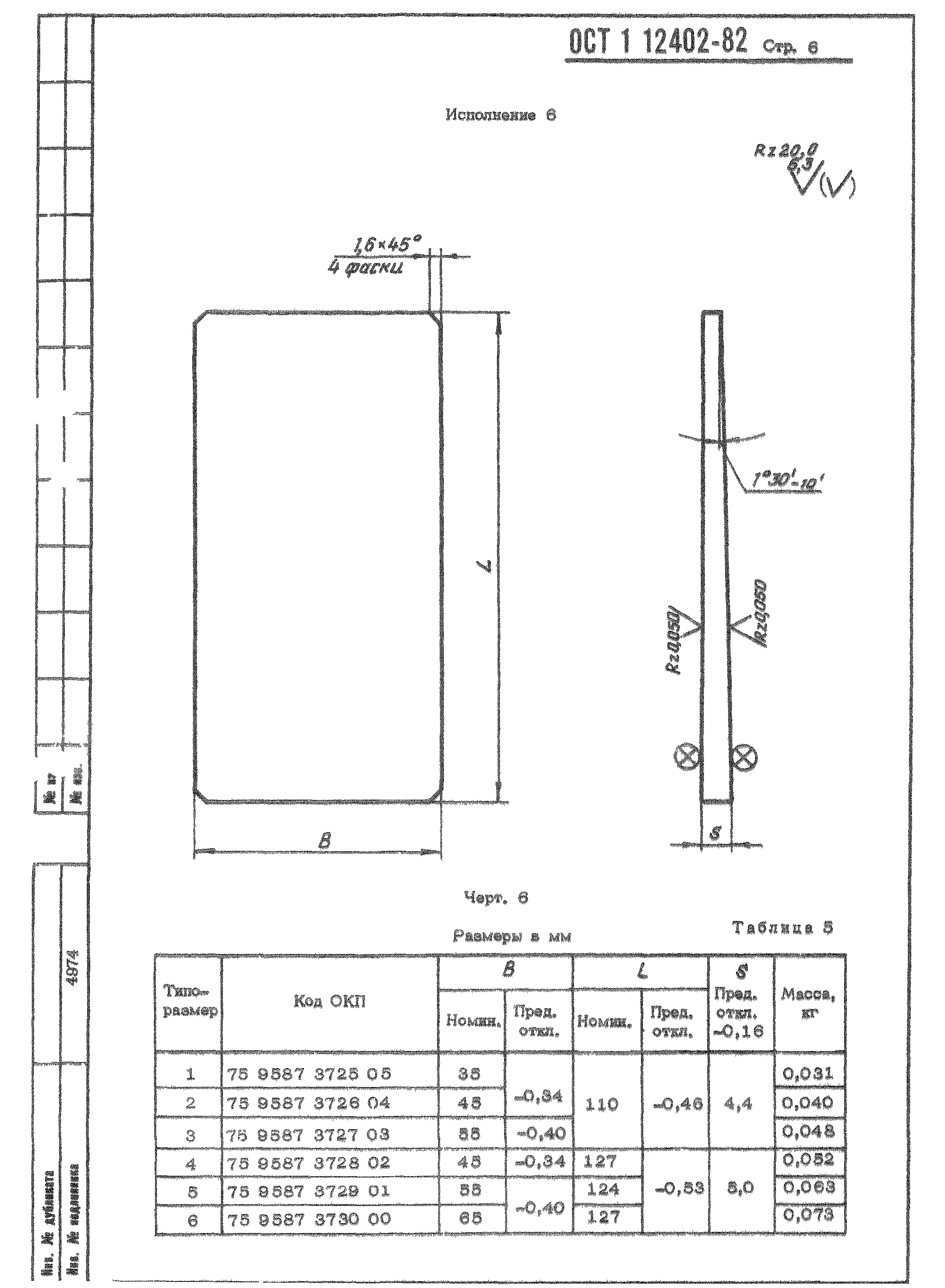
Стекла-компенсаторы. Конструкция и размеры| Обозначение: | ОСТ 1 12402-82 | | Обозначение англ: | 12402-82 | | Статус: | действует | | Название рус.: | Стекла-компенсаторы. Конструкция и размеры | | Дата добавления в базу: | 01.09.2013 | | Дата актуализации: | 01.01.2021 | | Дата введения: | 01.01.1984 | | Область применения: | Стандарт распространяется на стекла-компенсаторы, применяемые в устройствах встроенного освещения приборов и индикаторов в корпусах по ГОСТ 20261-74. | | Утверждён: | 31.12.1982 Министерство (Ministry 298-89)
| | Заменяет собой: | |
      
|