Скачать Серия 1.423.3-8 Выпуск 3. Колонны для зданий с применением несущих конструкций покрытий типа Молодечно и ЦНИИСК высотой от 4,8 до 8,4 м бескрановых и с подвесными электрическими кранами общего назначения грузоподъемностью до 5 т. Чертежи КМДата актуализации: 01.01.2021
|
| Обозначение: | Серия 1.423.3-8 |
| Обозначение англ: | Series 1.423.3-8 |
| Статус: | не определен законодательством |
| Название рус.: | Выпуск 3. Колонны для зданий с применением несущих конструкций покрытий типа "Молодечно" и "ЦНИИСК" высотой от 4,8 до 8,4 м бескрановых и с подвесными электрическими кранами общего назначения грузоподъемностью до 5 т. Чертежи КМ |
| Дата добавления в базу: | 01.09.2013 |
| Дата актуализации: | 01.01.2021 |
| Дата введения: | 01.05.1986 |
| Дата окончания срока действия: | 30.06.2003 |
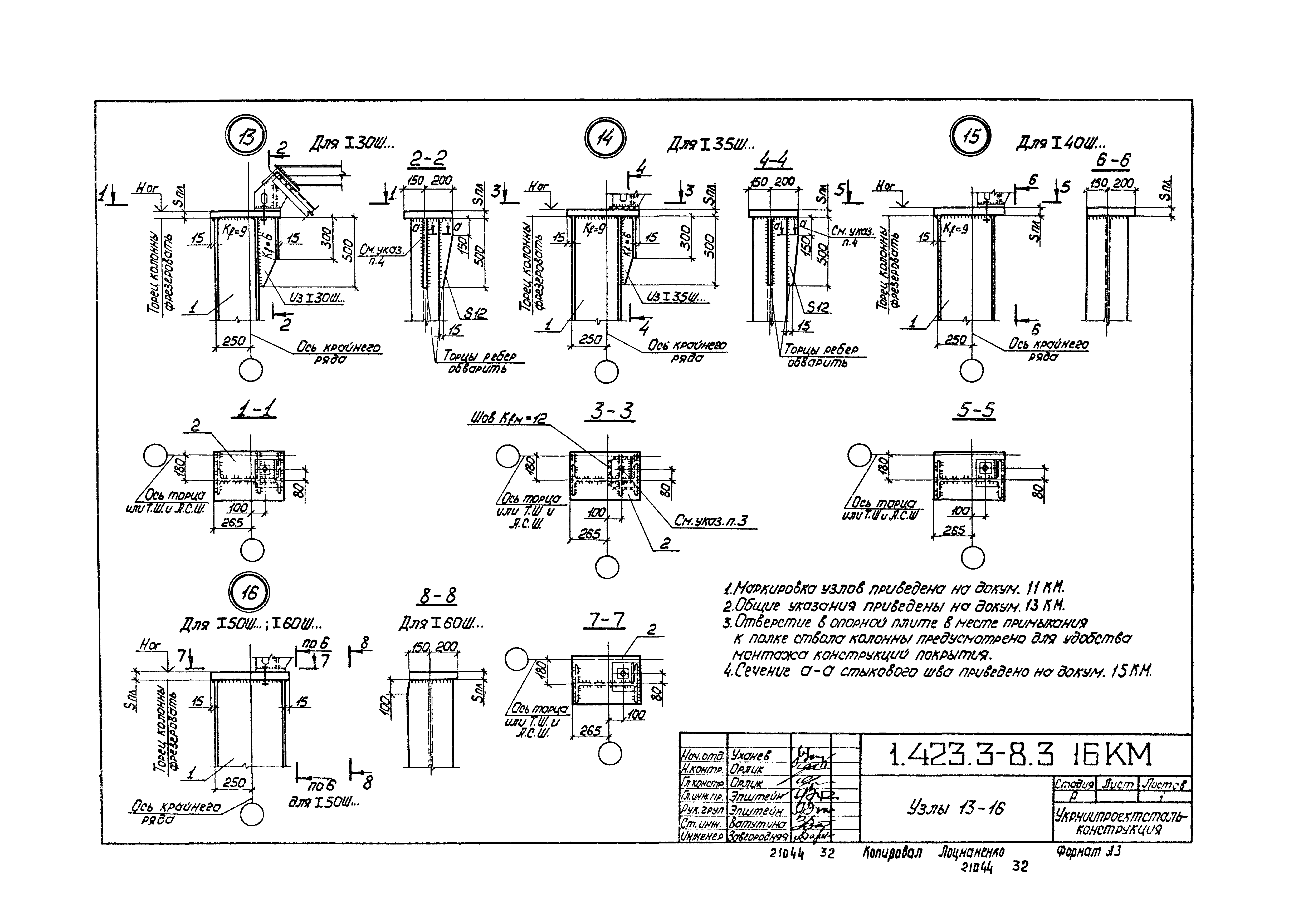
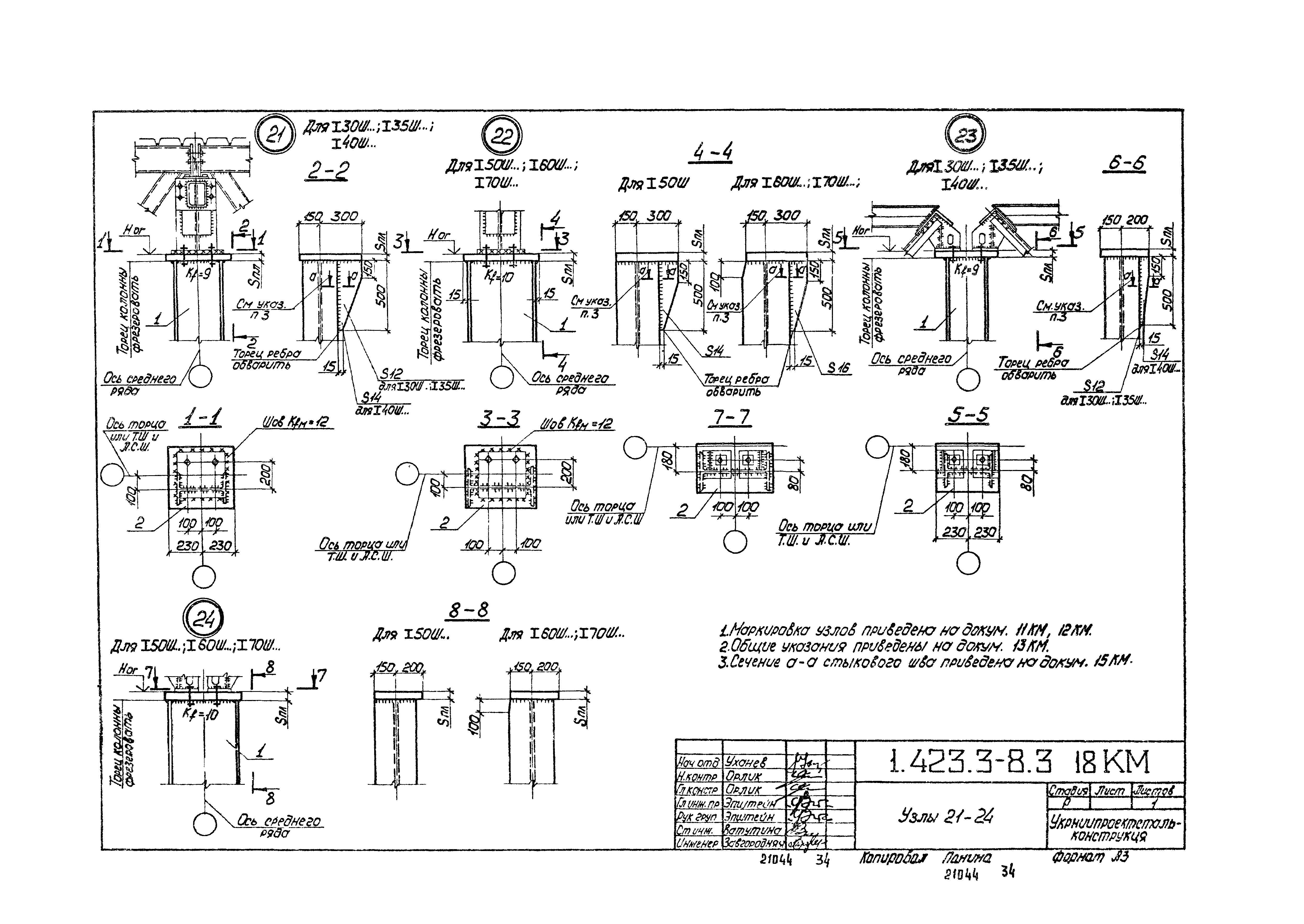
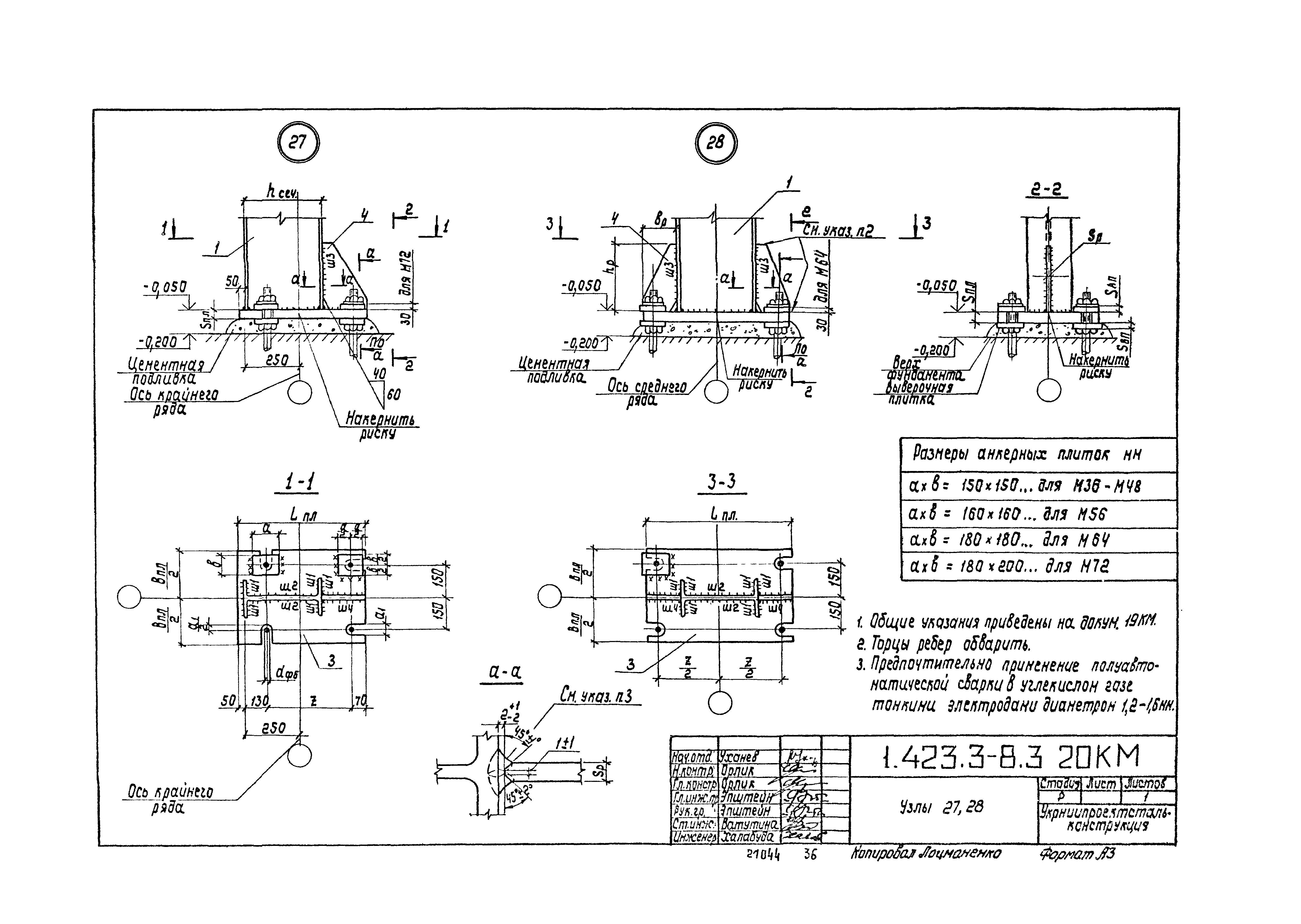
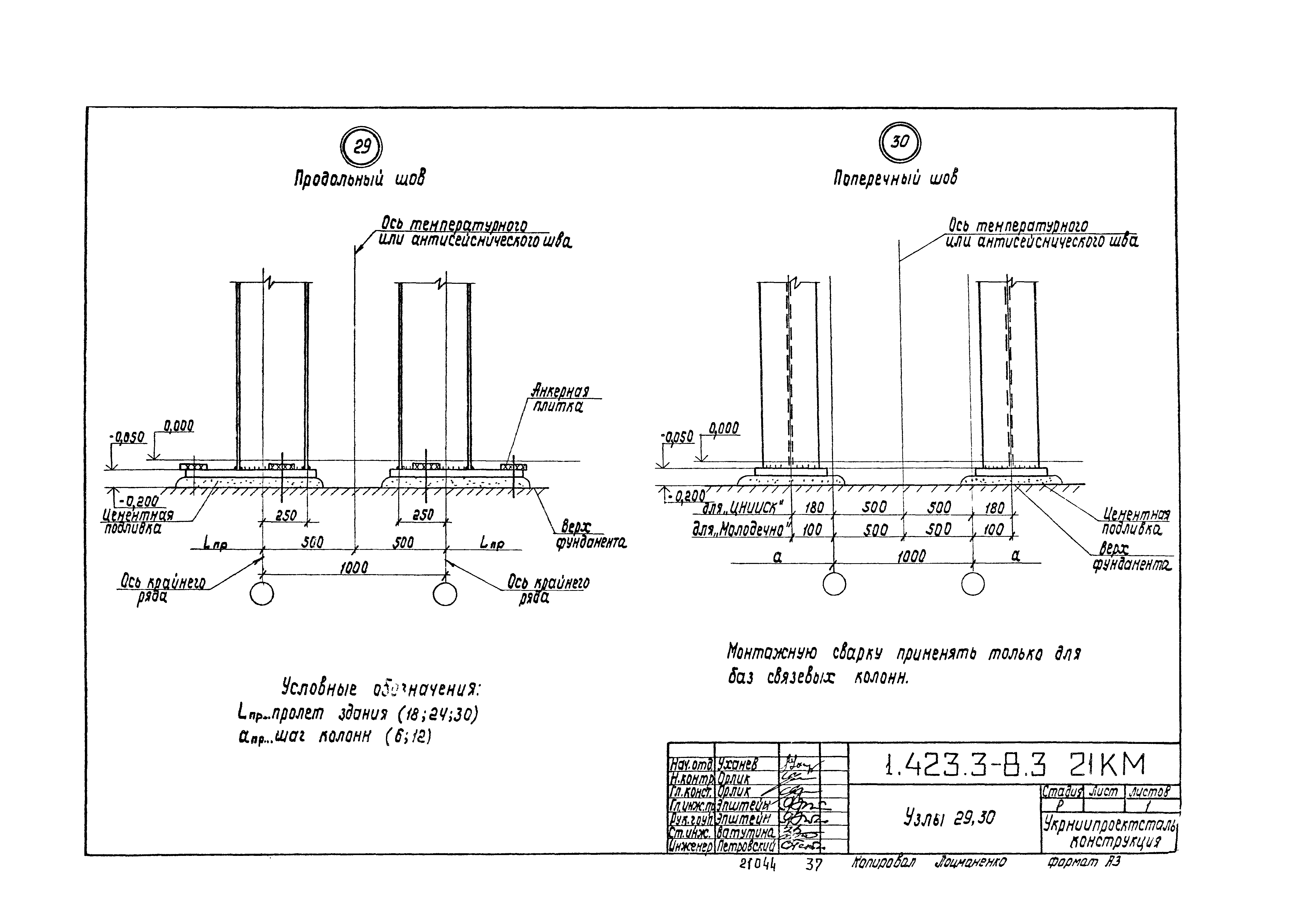
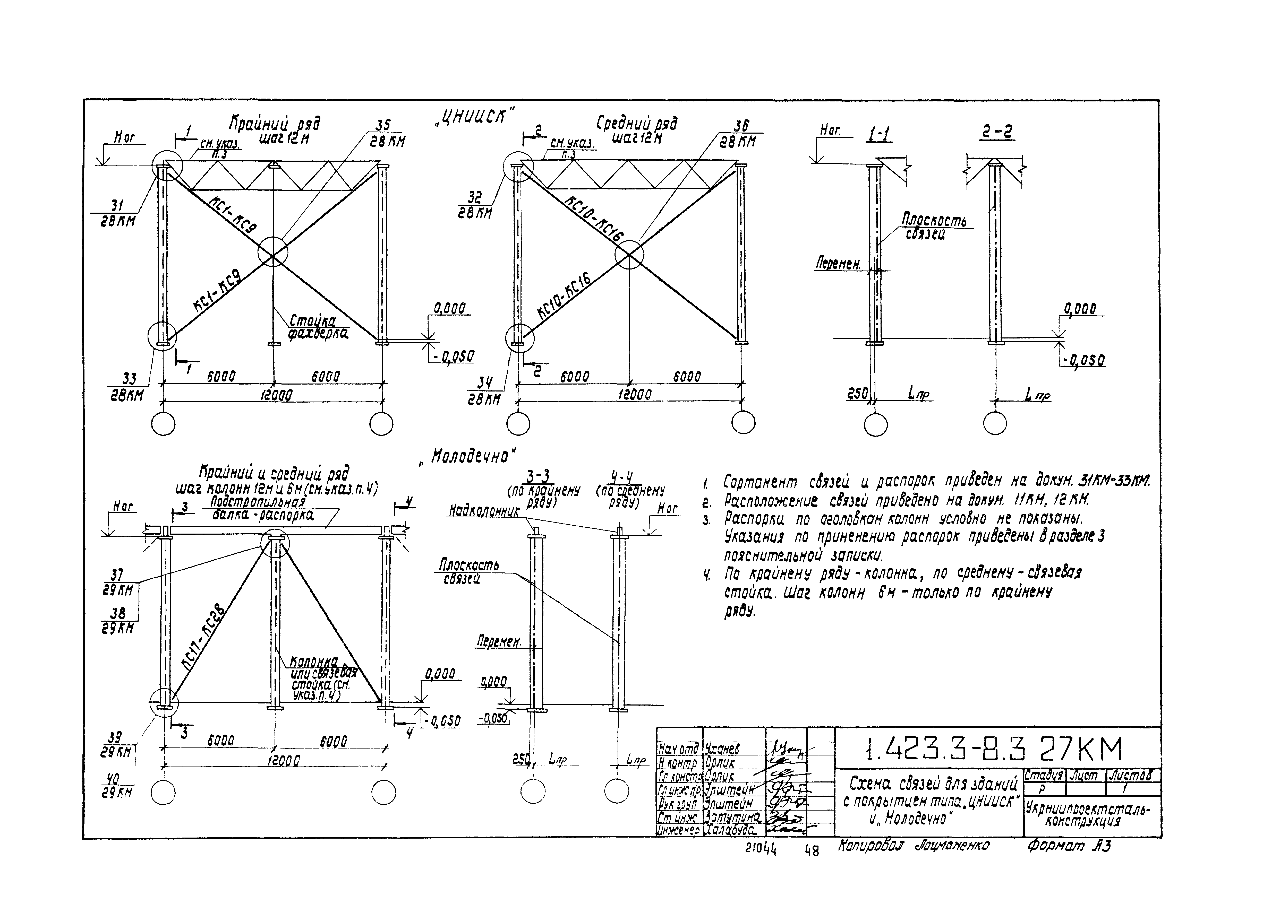
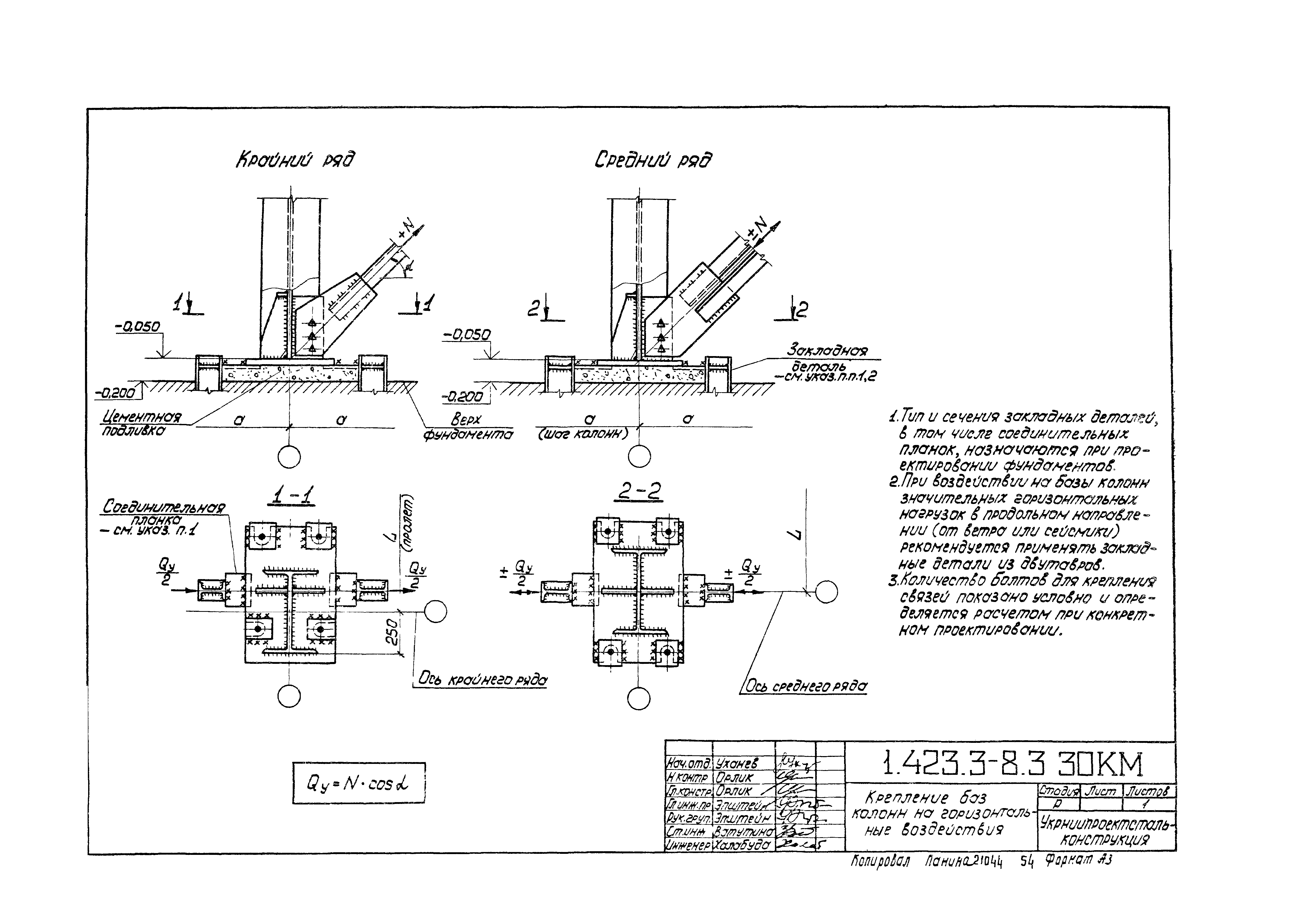
| Оглавление: | 1.423.3-8.3 00ПЗКМ Пояснительная записка 1.423.3-8.3 01КМ Таблицы расчета поперечной рамы для определения усилий в колоннах 1.423.3-8.3 02КМ Нагрузки на фундаменты связевых колонн продольных рам 1.423.3-8.3 03КМ Пример подбора марок рядовых колонн 1.423.3-8.3 04КМ Номенклатура колонн 1.423.3-8.3 05КМ Сортамент и геометрические характеристики сечений стволов колонн 1.423.3-8.3 06КМ Ключ подбора марок колонн зданий высотой 4,8 м 1.423.3-8.3 07КМ Ключ подбора марок колонн зданий высотой 6,0 м 1.423.3-8.3 08КМ Ключ подбора марок колонн зданий высотой 7,2 м 1.423.3-8.3 09КМ Ключ подбора марок колонн зданий высотой 8,4 м 1.423.3-8.3 10КМ Габаритная схема колонн 1.423.3-8.3 11КМ Схема расположения колонн и связей для зданий с покрытием типа "ЦНИИСК" 1.423.3-8.3 12КМ Схема расположения колонн и связей для зданий с покрытием типа "Молодечно" 1.423.3-8.3 13КМ Узлы 1-3 1.423.3-8.3 14КМ Узлы 4-8 1.423.3-8.3 15КМ Узлы 9-12 1.423.3-8.3 16КМ Узлы 13-16 1.423.3-8.3 17КМ Узлы 17-20 1.423.3-8.3 18КМ Узлы 21-24 1.423.3-8.3 19КМ Узлы 25, 26 1.423.3-8.3 20КМ Узлы 27, 28 1.423.3-8.3 21КМ Узлы 29, 30 1.423.3-8.3 22КМ Размеры деталей и сварных швов баз колонн крайнего ряда 1.423.3-8.3 23КМ Размеры деталей и сварных швов баз колонн среднего ряда 1.423.3-8.3 24КМ Колонна крайняя рядовая и торцевая 1.423.3-8.3 25КМ Колонна средняя рядовая и торцевая 1.423.3-8.3 26КМ Размеры деталей и сварных швов колонн 1.423.3-8.3 27КМ Схема связей для зданий с покрытием типа "ЦНИИСК" и "Молодечно" 1.423.3-8.3 28КМ Крепление связей для зданий с покрытием типа "ЦНИИСК". Узлы 29-37 1.423.3-8.3 29КМ Крепление связей для зданий с покрытием типа "Молодечно" Узлы 37-40 1.423.3-8.3 30КМ Крепление баз колонн на горизонтальные воздействия 1.423.3-8.3 31КМ Сортамент связей для зданий с покрытием типа "ЦНИИСК". Шаг колонн 12 м 1.423.3-8.3 32КМ Сортамент связей для зданий с покрытием типа "Молодечно" Шаг колонн 12 и 6 м 1.423.3-8.3 33КМ Сортамент распорок для зданий с покрытием типа "ЦНИИСК". Шаг колонн 12 м 1.423.3-8.3 34КМ Сортамент подстропильных балок-распорок для зданий с покрытием типа "Молодечно" 1.423.3-8.3 35КМ Подстропильная балка-распорка для зданий с покрытием типа "Молодечно" 1.423.3-8.3 36КМ Размеры деталей и сварных швов подстропильных балок-распорок 1.423.3-8.3 37КМ Сортамент связевых стоек для зданий с покрытием типа "Молодечно" 1.423.3-8.3 38КМ Связевая стойка для зданий с покрытием типа "Молодечно" 1.423.3-8.3 39КМ Размеры деталей и сварных швов связевых стоек для зданий с покрытием типа "Молодечно" 1.423.3-8.3 40КМ Спецификация стали колонн 1.423.3-8.3 41КМ Спецификация стали связей для зданий с покрытием типа "ЦНИИСК". Шаг колонн 12 м 1.423.3-8.3 42КМ Спецификация стали связей для зданий с покрытием типа "Молодечно" Шаг колонн 12 и 6 м 1.423.3-8.3 43КМ Спецификация стали распорок для зданий с покрытием типа "ЦНИИСК". Шаг колонн 12 м 1.423.3-8.3 44КМ Спецификация стали подстропильных балок-связей для зданий с покрытием типа "Молодечно" 1.423.3-8.3 45КМ Спецификация стали связевых стоек для зданий с покрытием типа "Молодечно" 1.423.3-8.3 46КМ Блок фундаментных болтов |
| Разработан: | Укрниипроектстальконструкция Гипроспецлегконструкция |
| Утверждён: | 27.12.1985 Госстрой СССР (Государственный комитет Совета Министров СССР по делам строительства) (USSR Gosstroy АЧ-66) |
| Издан: | ЦИТП Госстроя СССР (CITP, Gosstroy (USSR) 1986 г. ) |
| Заменяет собой: |


























































































