Скачать Серия 3.501.2-139 Выпуск 2-6. Часть 1. Пролетные строения пролетами 88,0 - 110,0 м. Конструкции металлические. Изделия. Чертежи КМДата актуализации: 01.01.2021
|
| Обозначение: | Серия 3.501.2-139 |
| Обозначение англ: | Series 3.501.2-139 |
| Статус: | не действует |
| Название рус.: | Выпуск 2-6. Часть 1. Пролетные строения пролетами 88,0 - 110,0 м. Конструкции металлические. Изделия. Чертежи КМ |
| Дата добавления в базу: | 01.09.2013 |
| Дата актуализации: | 01.01.2021 |
| Дата введения: | 01.07.1987 |
| Дата окончания срока действия: | 01.01.2006 |
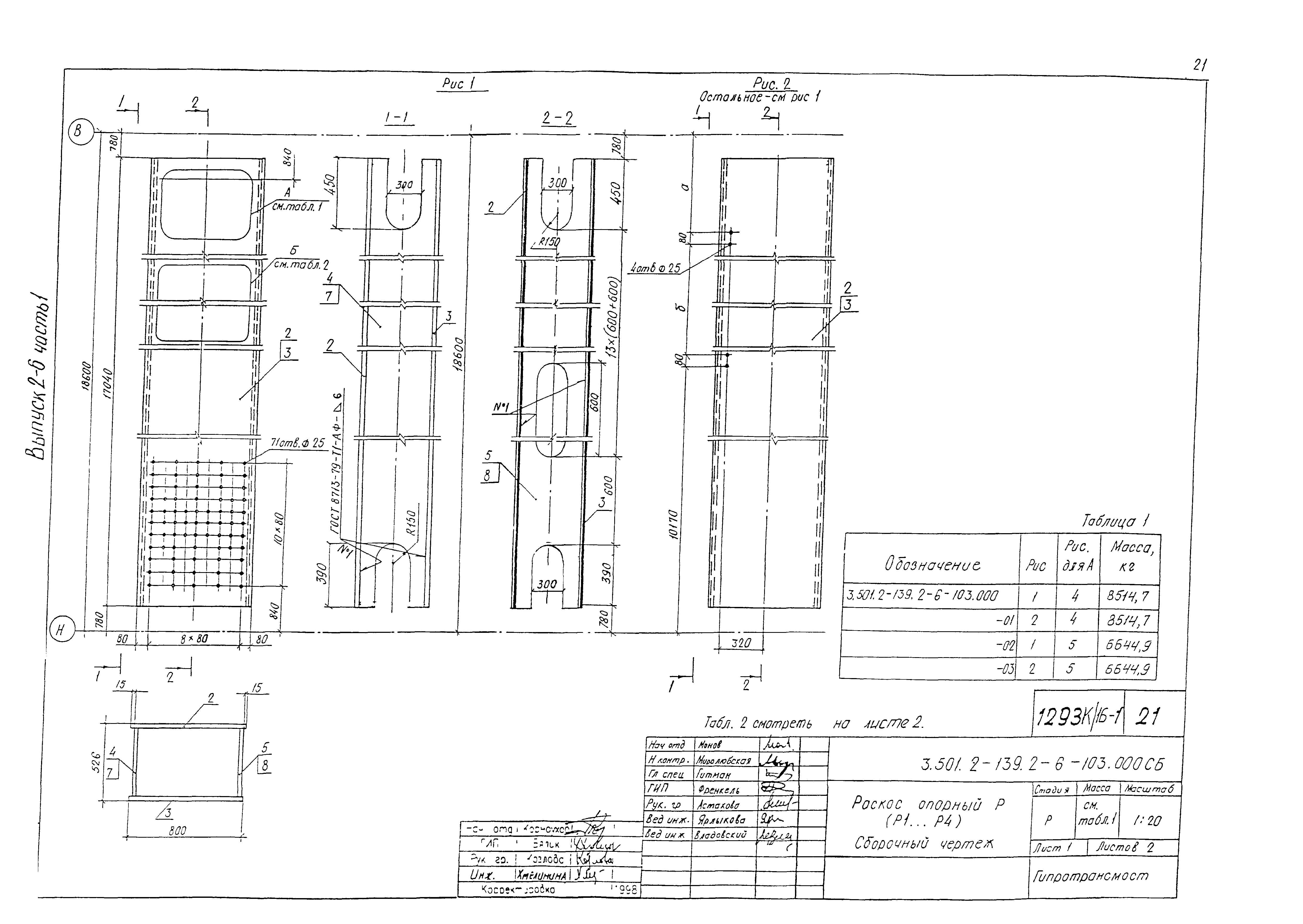
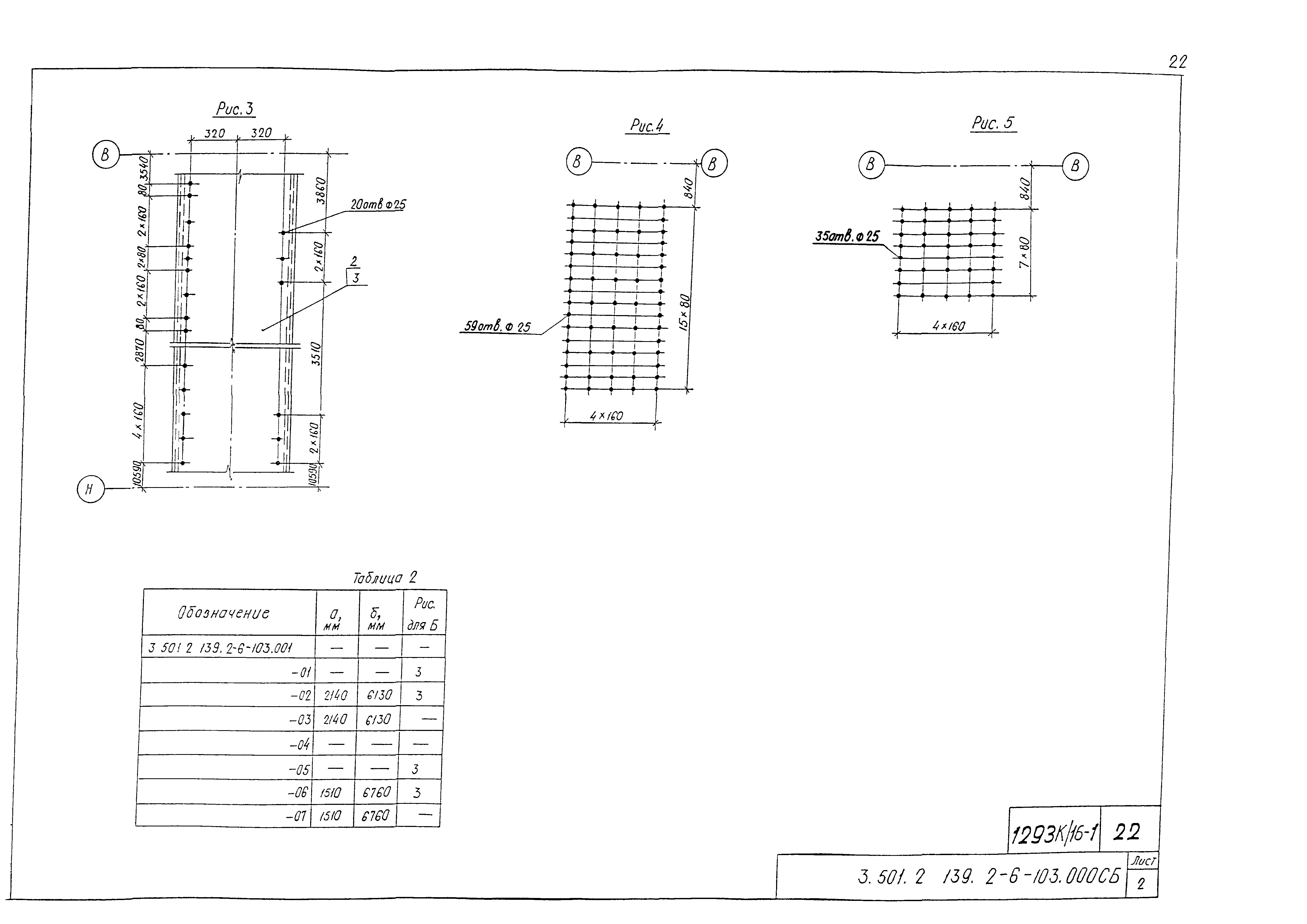
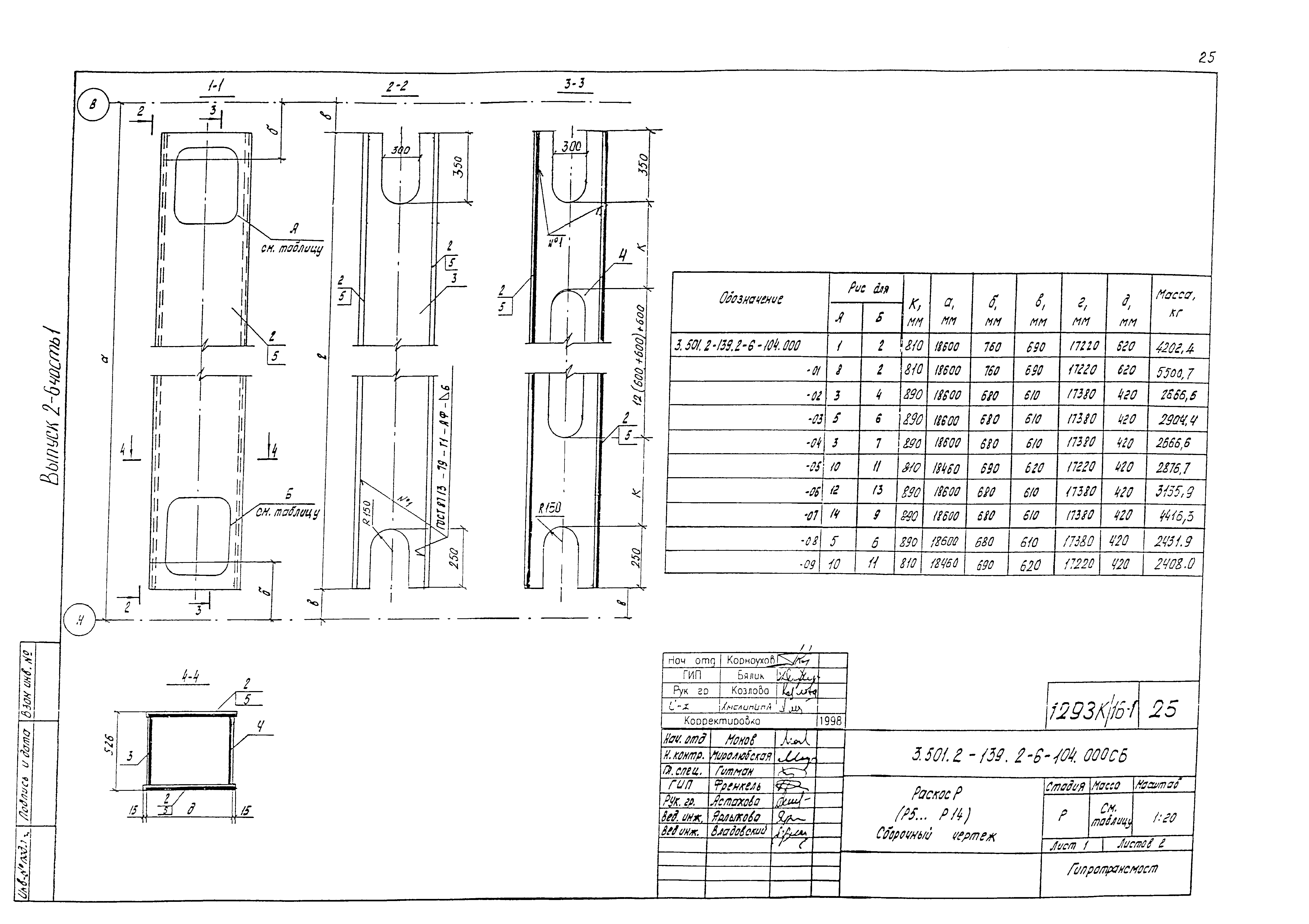
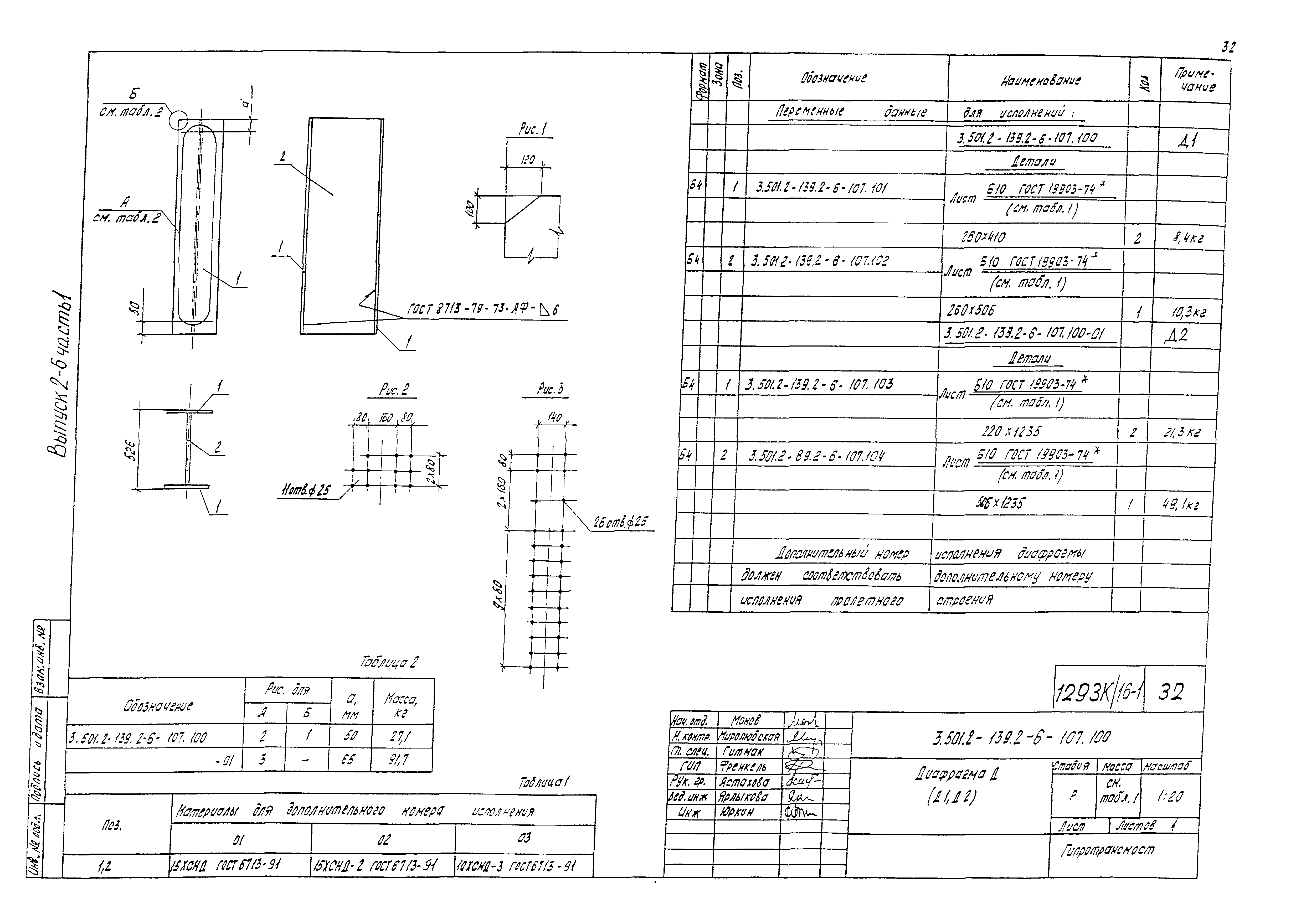
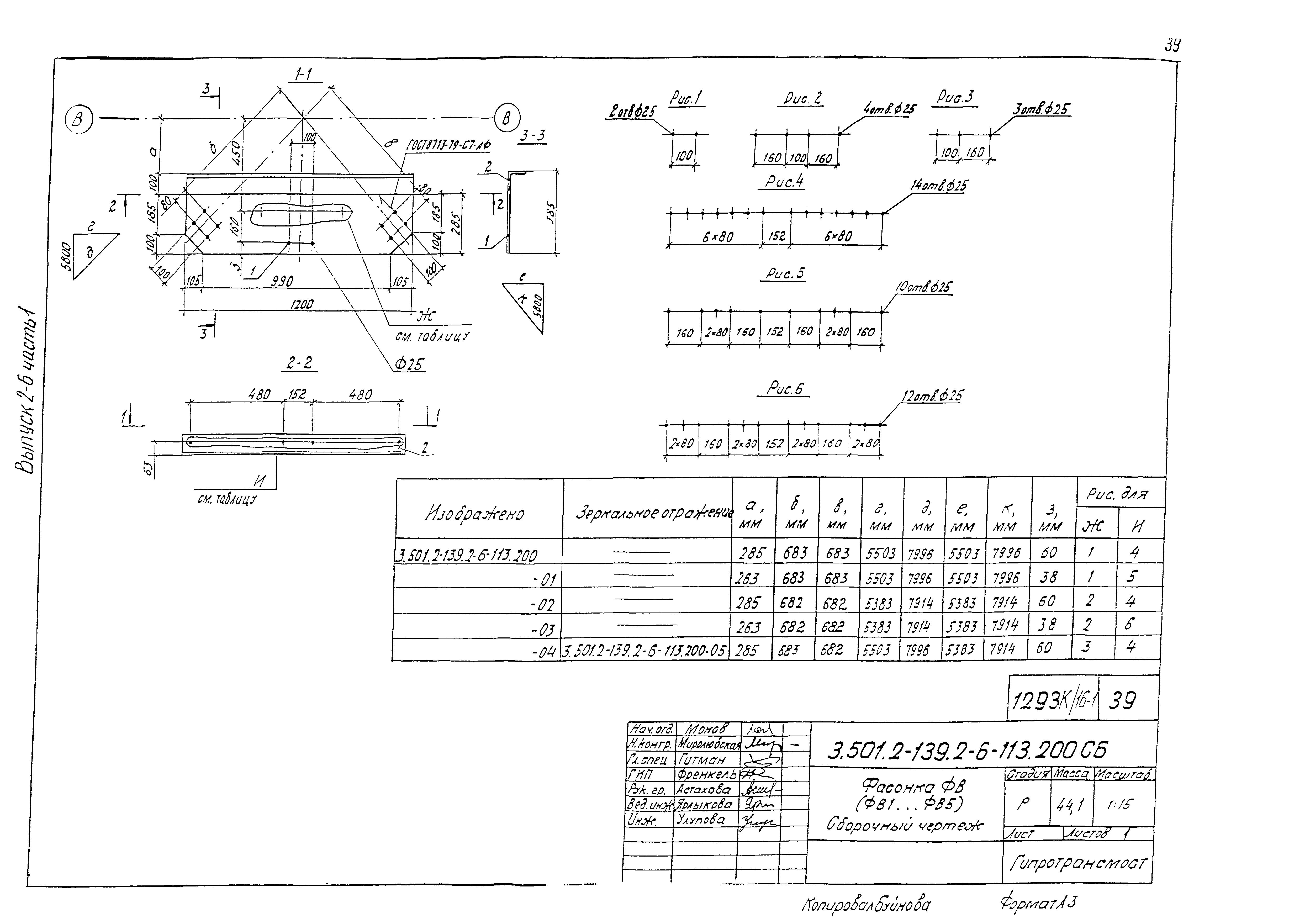
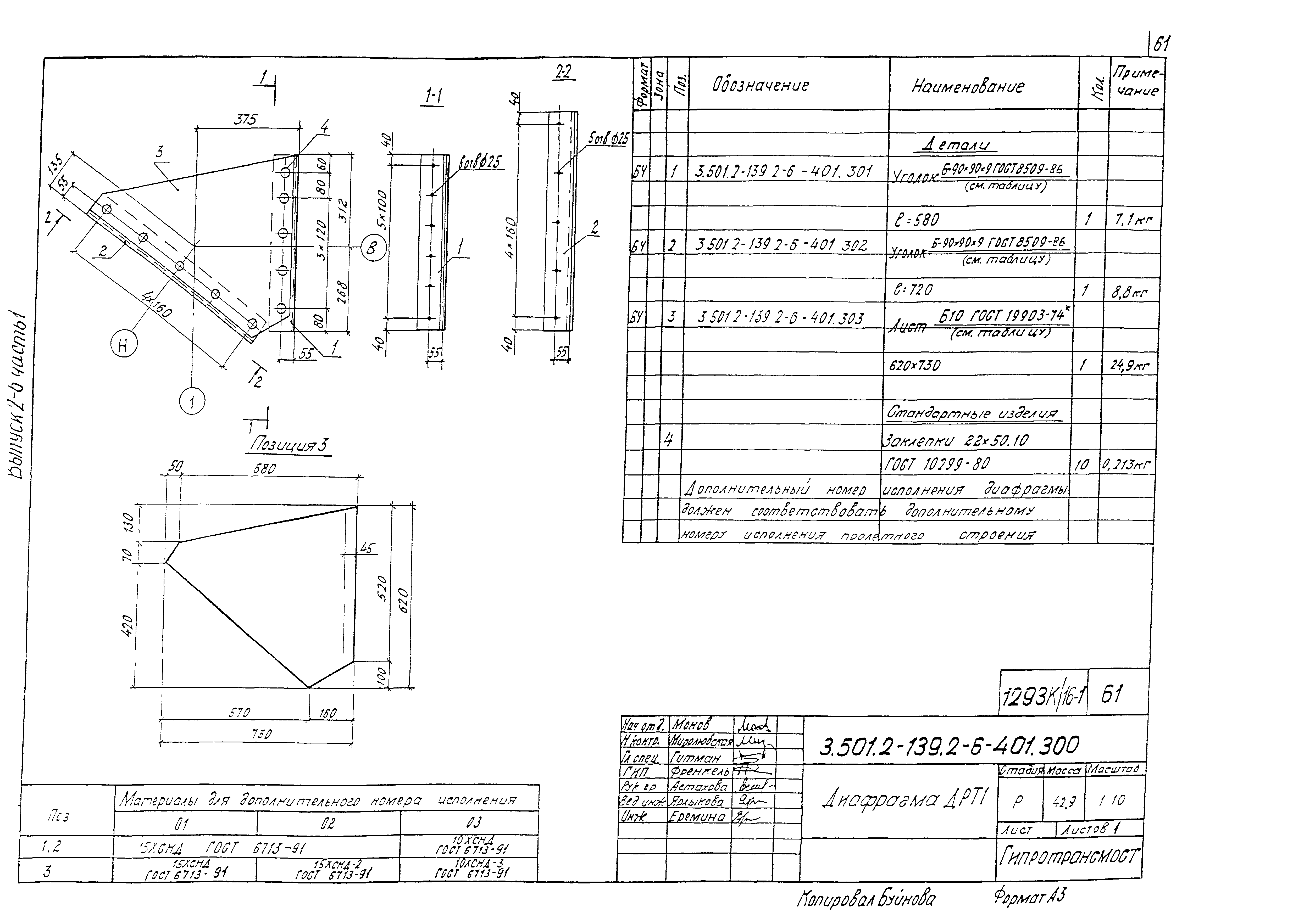
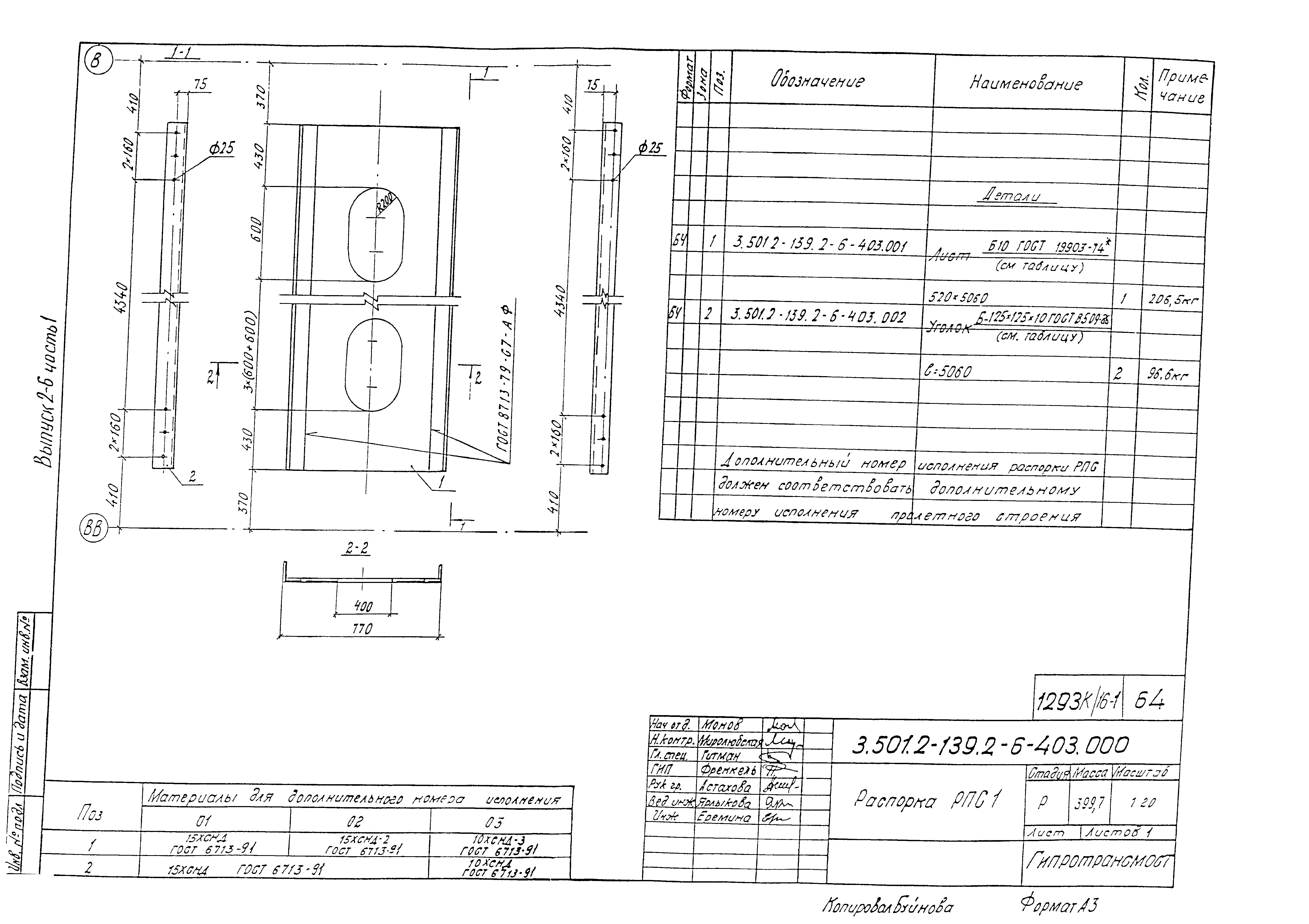
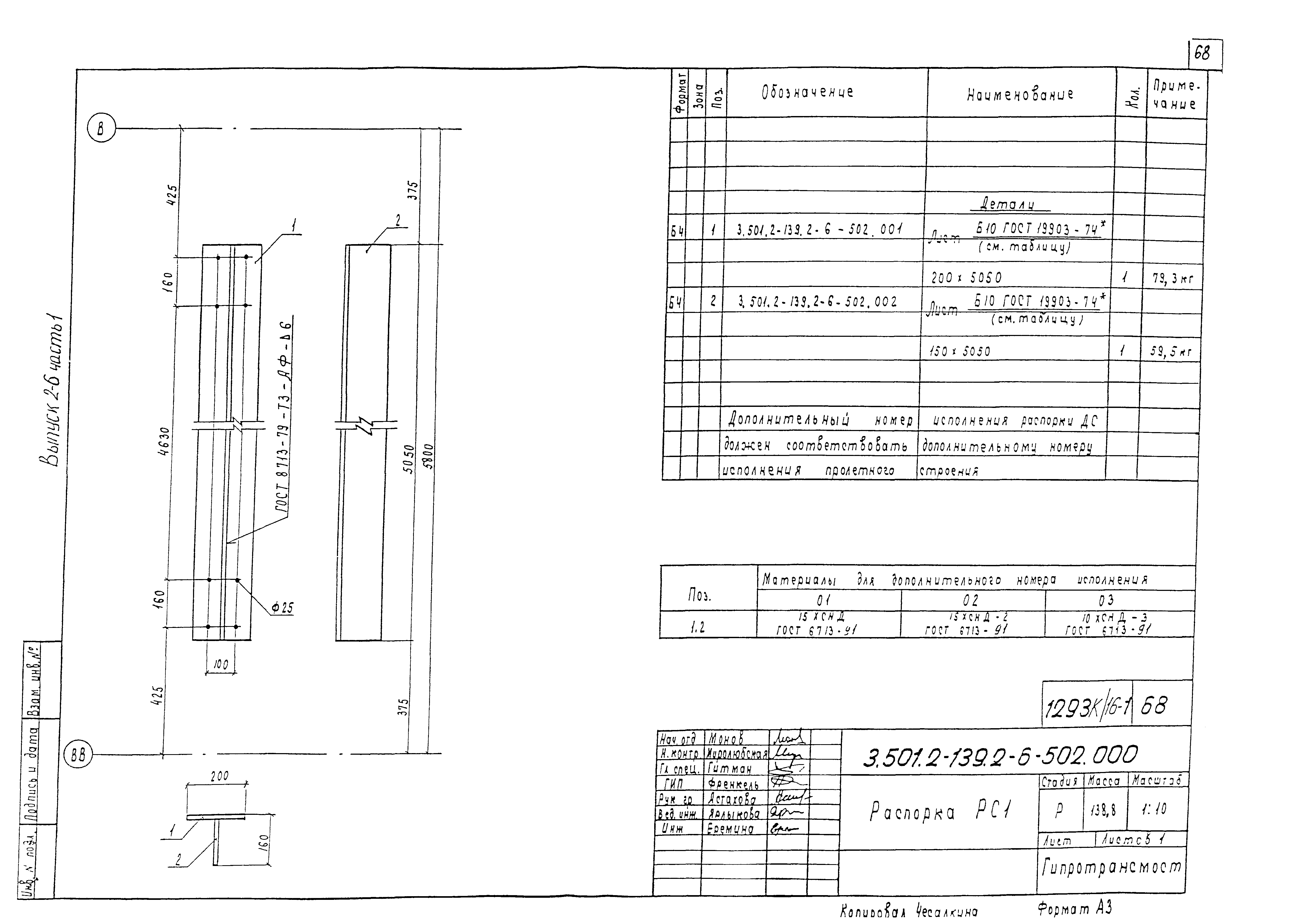
| Оглавление: | 3.501.2-139.2-6-000.000 Содержание выпуска 3.501.2-139.2-6-000.000ТО Техническое описание 3.501.2-139.2-6-101.000 Пояс верхний ВП(ВП1…ВП8) 3.501.2-139.2-6-101.000СБ Пояс верхний ВП(ВП1…ВП8). Сборный чертеж 3.501.2-139.2-6-102.000 Пояс нижний НП (НП1…НП11) 3.501.2-139.2-6-102.000СБ Пояс нижний НП (НП1…НП11). Сборный чертеж 3.501.2-139.2-6-103.000 Раскос опорный Р (Р1…Р4) 3.501.2-139.2-6-103.000СБ Раскос опорный Р (Р1…Р4). Сборный чертеж 3.501.2-139.2-6-104.000 Раскос Р(Р5…Р14) 3.501.2-139.2-6-104.000СБ Раскос Р(Р5…Р14). Сборный чертеж 3.501.2-139.2-6-105.000 Подвеска П(П1…П5) 3.501.2-139.2-6-105.000СБ Подвеска П(П1…П5). Сборочный чертеж 3.501.2-139.2-6-106.000 Стойка С (С1…С4) 3.501.2-139.2-6-106.000СБ Стойка С (С1…С4). Сборочный чертеж 3.501.2-139.2-6-107.100 Диафрагма Д (Д1, Д2) 3.501.2-139.2-6-107.200 Диафрагма Д (Д3, Д4) 3.501.2-139.2-6-112.100 Вставка В (В1, В2) 3.501.2-139.2-6-112.100СБ Вставка В (В1, В2). Сборочный чертеж 3.501.2-139.2-6-113.001 Фасонка Ф (Ф1, Ф2) 3.501.2-139.2-6-113.002 Накладка Н (Н1, Н2) 3.501.2-139.2-6-113.100 Столик (СТ1, СТ2) 3.501.2-139.2-6-113.200 Фасонка ФВ (ФВ1…ФВ5) 3.501.2-139.2-6-113.200СБ Фасонка ФВ (ФВ1…ФВ5). Сборочный чертеж 3.501.2-139.2-6-201.000 Распорка РВС1 3.501.2-139.2-6-202.000 Диагональ ДВС (ДВС1…ДВСС3) 3.501.2-139.2-6-202.000СБ Диагональ ДВС (ДВС1…ДВСС3). Сборочный чертеж 3.501.2-139.2-6-203.000 Полудиагональ ПВС (ПВС1…ПВС3) 3.501.2-139.2-6-203.000СБ Полудиагональ ПВС (ПВС1…ПВС3). Сборочный чертеж 3.501.2-139.2-6-301.000 Диагональ ДНС (ДНС1…ДНС10) 3.501.2-139.2-6-301.000СБ Диагональ ДНС (ДНС1…ДНС10). Сборочный чертеж 3.501.2-139.2-6-302.000 Диагональ ДНС (ДНС11…ДНС12) 3.501.2-139.2-6-303.000 Полудиагональ ПНС (ПНС1…ПНС13) 3.501.2-139.2-6-303.000СБ Полудиагональ ПНС (ПНС1…ПНС13). Сборочный чертеж 3.501.2-139.2-6-304.000 Полудиагональ ПНС (ПНС14, ПНС15) 3.501.2-139.2-6-305.000 Распорка РНС (РНС1, РНС2) 3.501.2-139.2-6-306.000 Распорка РД1 3.501.2-139.2-6-307.000 Крышка КД (КД1, КД2) 3.501.2-139.2-6-401.000 Распорка трубчатая РТ1 3.501.2-139.2-6-401.000СБ Распорка трубчатая РТ1. Сборочный чертеж 3.501.2-139.2-6-401.100 Ветвь распорки трубчатой ВРТ1 3.501.2-139.2-6-401.200 Ветвь распорки трубчатой ВРТ2 3.501.2-139.2-6-401.300 Диафрагма ДРТ1 3.501.2-139.2-6-402.000 Диагональ ДПС(ДПС1…ДПС4) 3.501.2-139.2-6-402.000СБ Диагональ ДПС(ДПС1…ДПС4). Сборочный чертеж 3.501.2-139.2-6-403.000 Распорка РПС1 3.501.2-139.2-6-404.100 Фасонка ФП31 3.501.2-139.2-6-404.200 Фасонка ФП32 3.501.2-139.2-6-405.100 Фасонка ФП33 3.501.2-139.2-6-501.000 Диагональ ДПС1 3.501.2-139.2-6-502.000 Распорка РС1 3.501.2-139.2-6-505.100 Фасонка ФП1 3.501.2-139.2-66501.000 Балка поперечная ПБ (ПБ1, ПБ2) 3.501.2-139.2-6-601.000СБ Балка поперечная ПБ (ПБ1, ПБ2). Сборочный чертеж 3.501.2-139.2-6-602.000 Балка продольная ПРБ1 3.501.2-139.2-6-603.000 Балка продольная ПРБ (ПРБ2…ПРБ13) 3.501.2-139.2-6-603.000СБ Балка продольная ПРБ (ПРБ2…ПРБ7). Сборочный чертеж 3.501.2-139.2-6-603.000-08СБ Балка продольная ПРБ (ПРБ8…ПРБ13). Сборочный чертеж 3.501.2-139.2-6-604.000 Балка продольная ПРБ (ПРБ14…ПРБ17) 3.501.2-139.2-6-604.000СБ Балка продольная ПРБ (ПРБ14, ПРБ15). Сборочный чертеж 3.501.2-139.2-6-604.000-02СБ Балка продольная ПРБ (ПРБ16, ПРБ17). Сборочный чертеж 3.501.2-139.2-6-605.000 Распорка РПБ1 3.501.2-139.2-6-606.000 Диагональ ДС (ДС1…ДС3) |
| Разработан: | Гипротрансмост |
| Утверждён: | 06.05.1987 МПС СССР (USSR Ministry of Railroads А-2593у) |
| Заменяет собой: |























































































