Скачать Серия 1.073.9-2.00 Выпуск 1. Облицовки. Рабочие чертежиДата актуализации: 01.01.2021
|
| Обозначение: | Серия 1.073.9-2.00 |
| Обозначение англ: | Series 1.073.9-2.00 |
| Статус: | действует |
| Название рус.: | Выпуск 1. Облицовки. Рабочие чертежи |
| Дата добавления в базу: | 01.09.2013 |
| Дата актуализации: | 01.01.2021 |
| Дата введения: | 04.10.2000 |
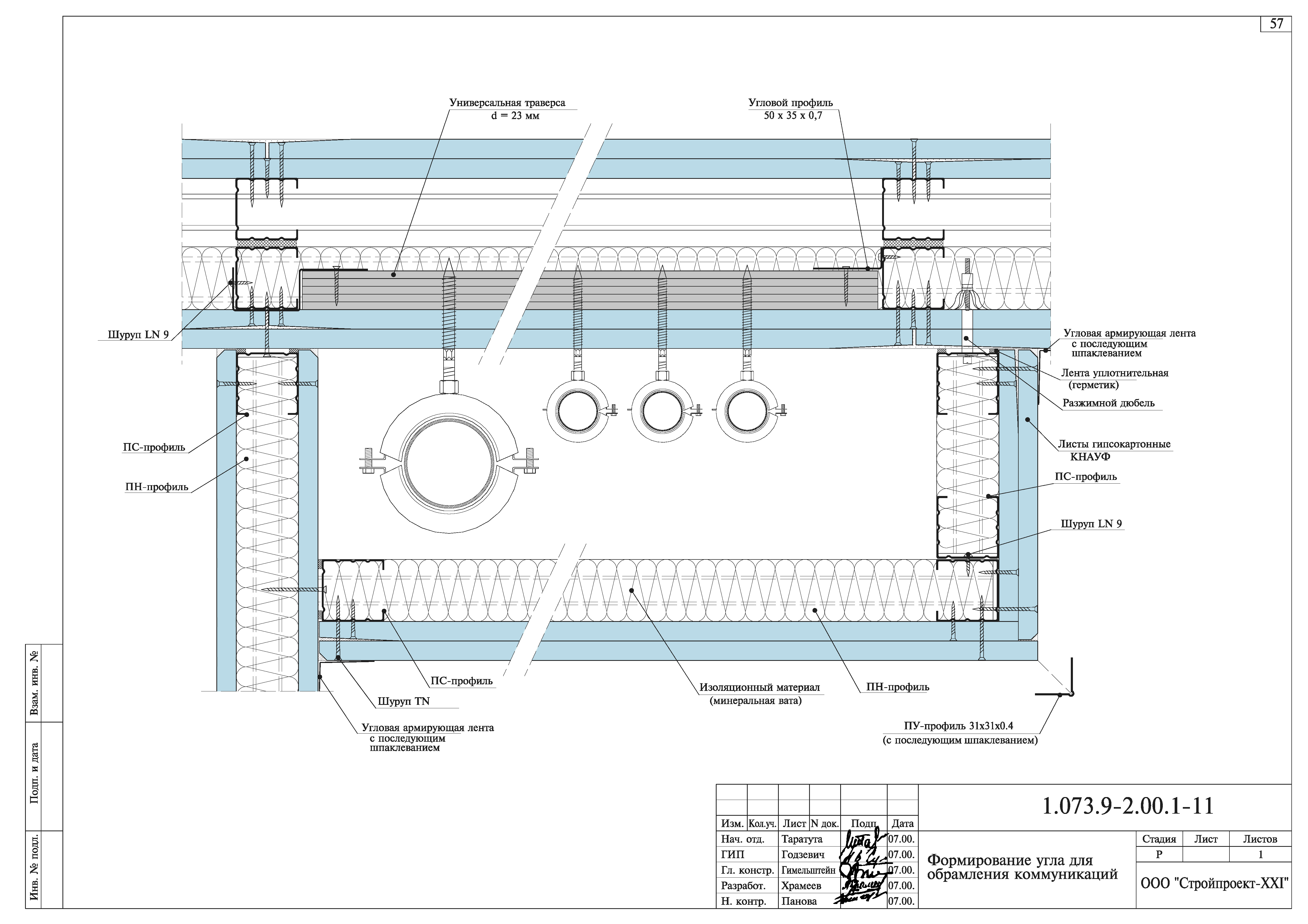
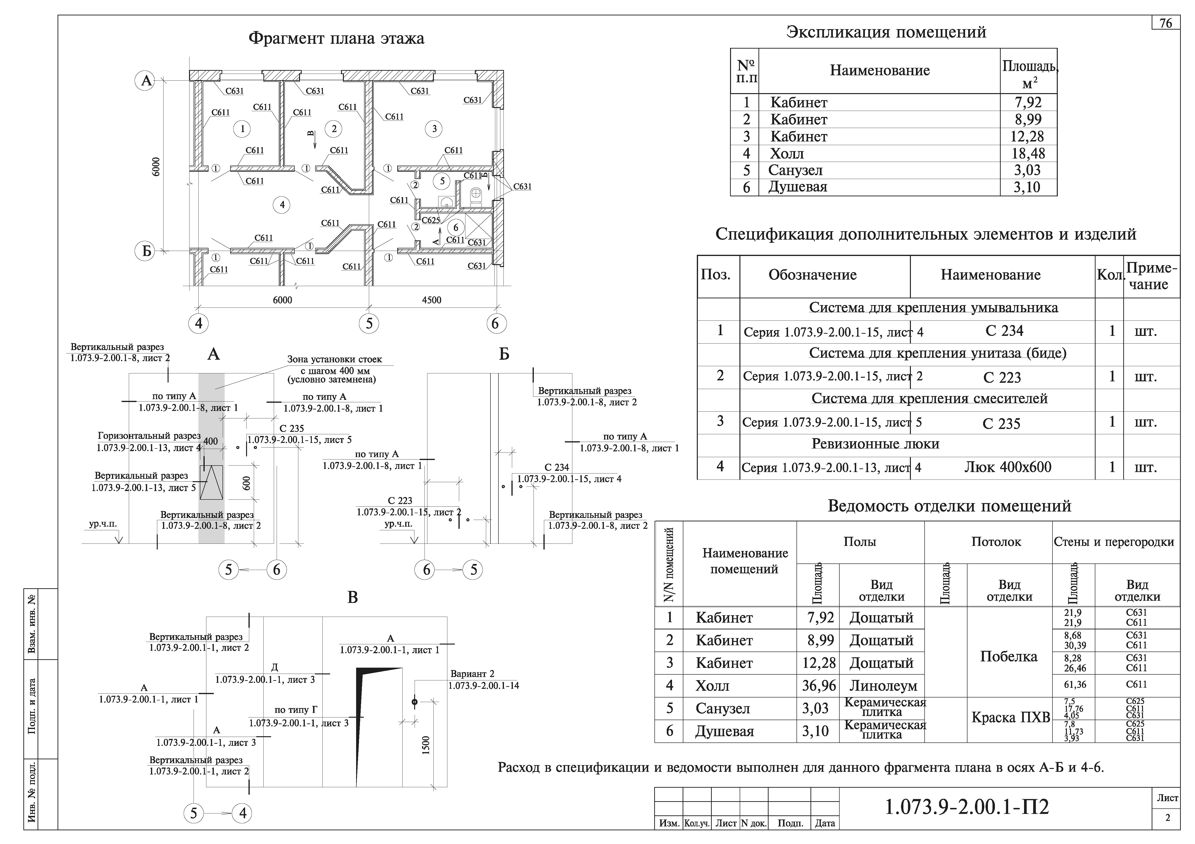
| Оглавление: | 1.073.9-2.00.1-ПЗ Пояснительная записка 1.073.9-2.00.1-1 Облицовка С611 (вариант А) 1.073.9-2.00.1-2 Облицовка С611 (вариант Б) 1.073.9-2.00.1-3 Облицовка С611 (вариант В) 1.073.9-2.00.1-4 Облицовка С631 (вариант А) 1.073.9-2.00.1-5 Облицовка С631 (вариант Б) 1.073.9-2.00.1-6 Облицовка С612 (облицовка конструкций 1.073.9-2.00.1-7 Облицовка С23 1.073.9-2.00.1-8 Облицовка С25 1.073.9-2.00.1-9 Крепление стоечных профилей к облицовываемой стене, удлинение вертикальных профилей 1.073.9-2.00.1-10 Облицовка С626 1.073.9-2.00.1-11 Формирование угла для обрамления коммуникаций 1.073.9-2.00.1-12 Варианты устройства облицовки сантехнических коммуникаций 1.073.9-2.00.1-13 Сопряжение облицовок с коммуникационными трассами 1.073.9-2.00.1-14 Установка коробок под электрооборудование 1.073.9-2.00.1-15 Системы для крепления навесного оборудования 1.073.9-2.00.1-П1 Приложение 1 1.073.9-2.00.1-П2 Приложение 2 |
| Разработан: | ООО Стройпроект-XXI Фирма KNAUF СП ООО Кубань-КНАУФ |
| Утверждён: | 04.10.2000 Департамент по строительству и архитектуре администрации Краснодарского края (Department of Construction and Architecture, Administration of Krasnodar Territory 45-пр) |
| Принят: | 06.09.2000 ВНИИПО МВД РФ (VNIIPO, Russian Federation Ministry of Internal Affairs 43/3.2/840ф) |
| Издан: | ГУП ЦПП (CPP GUP 2001 г. ) |

















































































