Скачать Серия 5.904-41 Клапаны обратные общего назначения. Рабочие чертежиДата актуализации: 01.01.2021
|
| Обозначение: | Серия 5.904-41 |
| Обозначение англ: | Series 5.904-41 |
| Статус: | не определен законодательством |
| Название рус.: | Клапаны обратные общего назначения. Рабочие чертежи |
| Дата добавления в базу: | 01.09.2013 |
| Дата актуализации: | 01.01.2021 |
| Дата введения: | 01.09.1987 |
| Дата окончания срока действия: | 30.06.2003 |
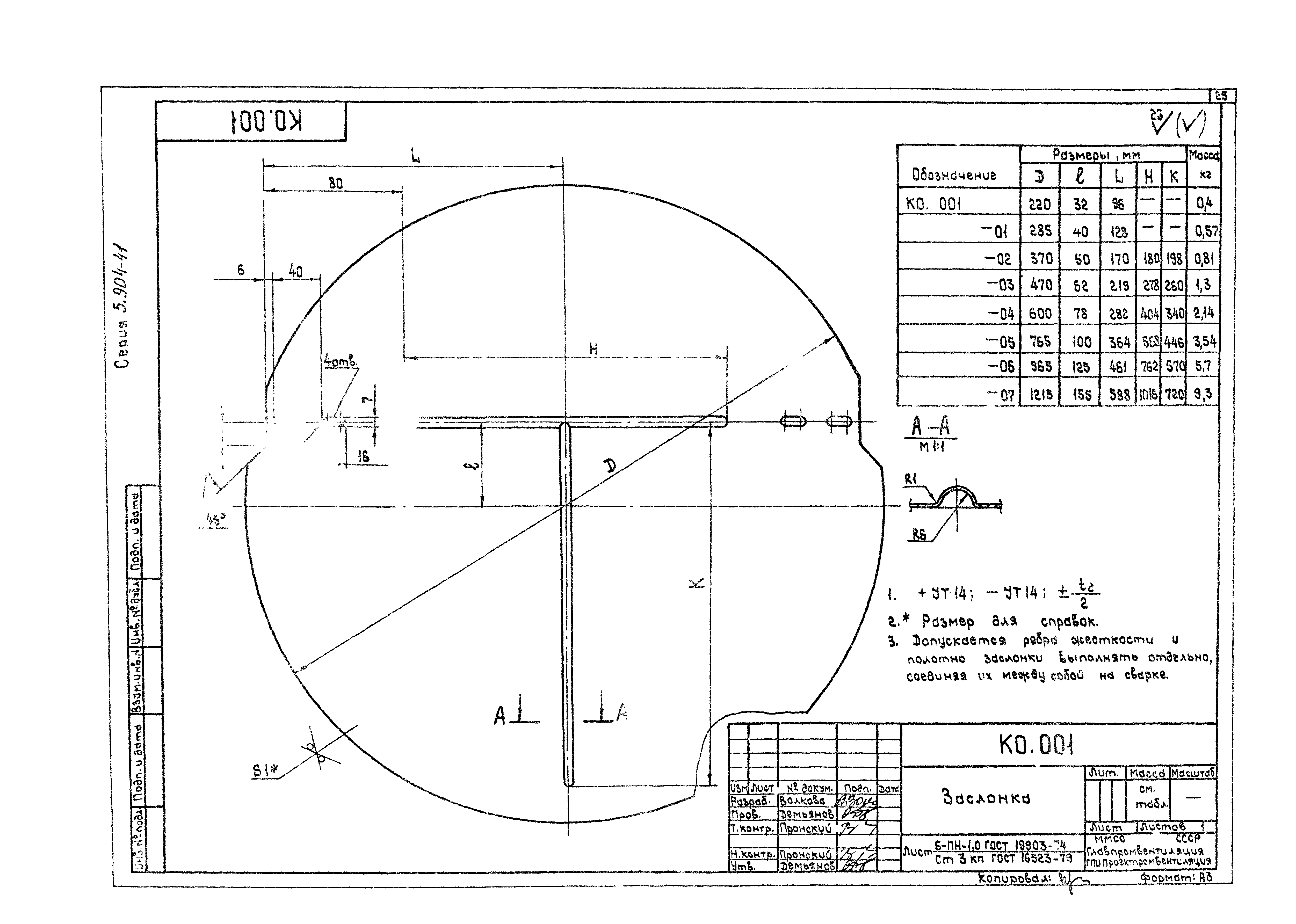
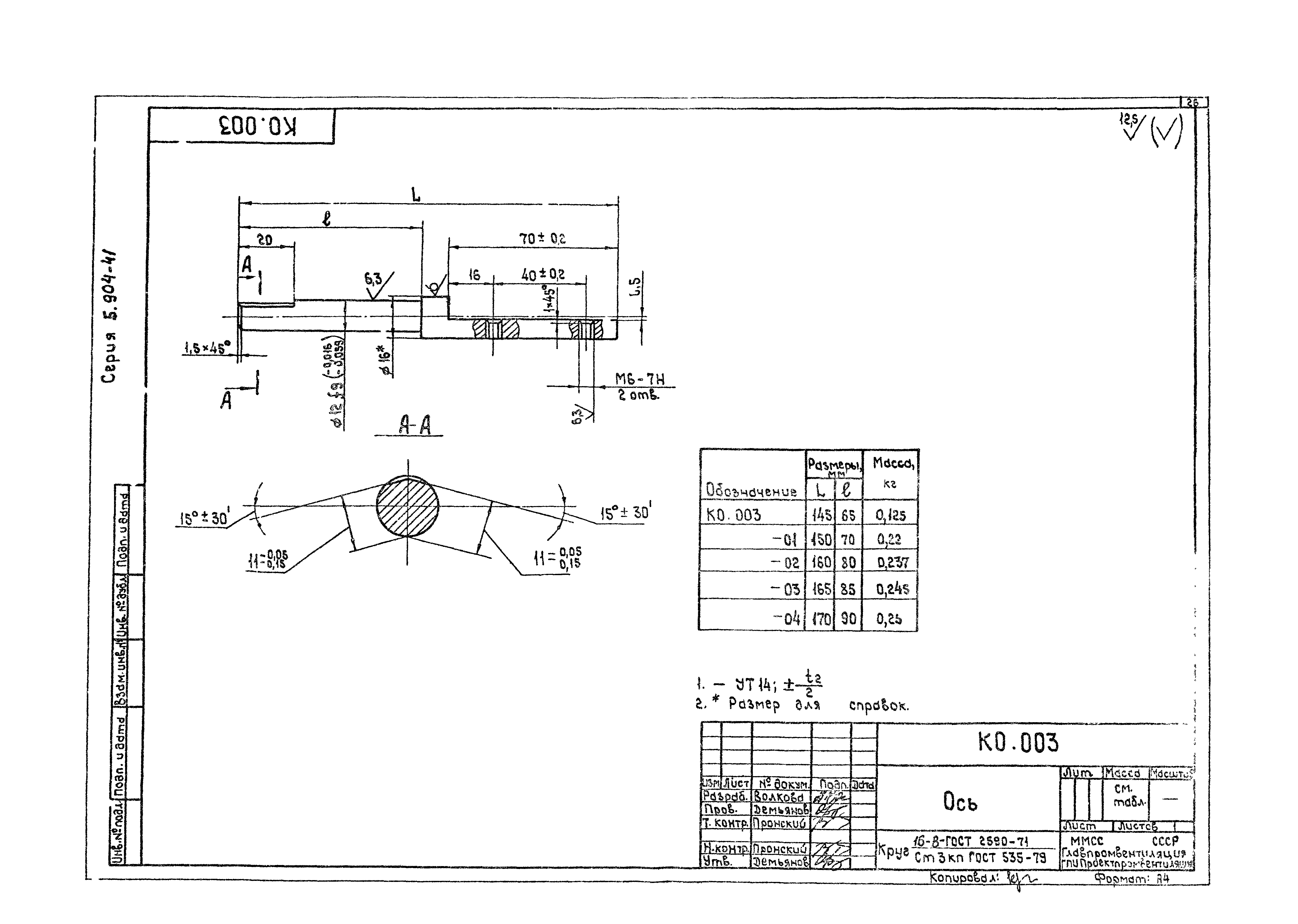
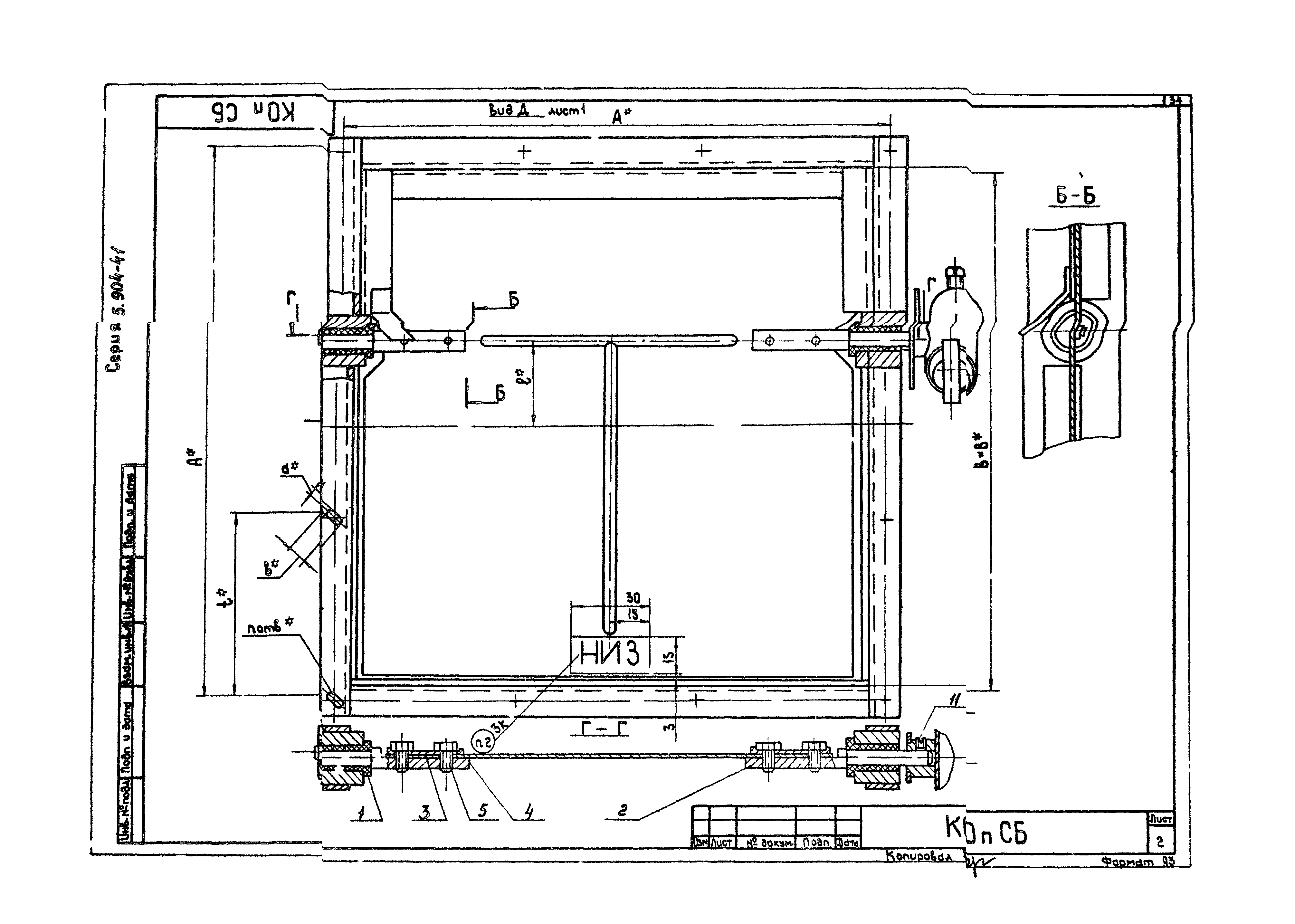
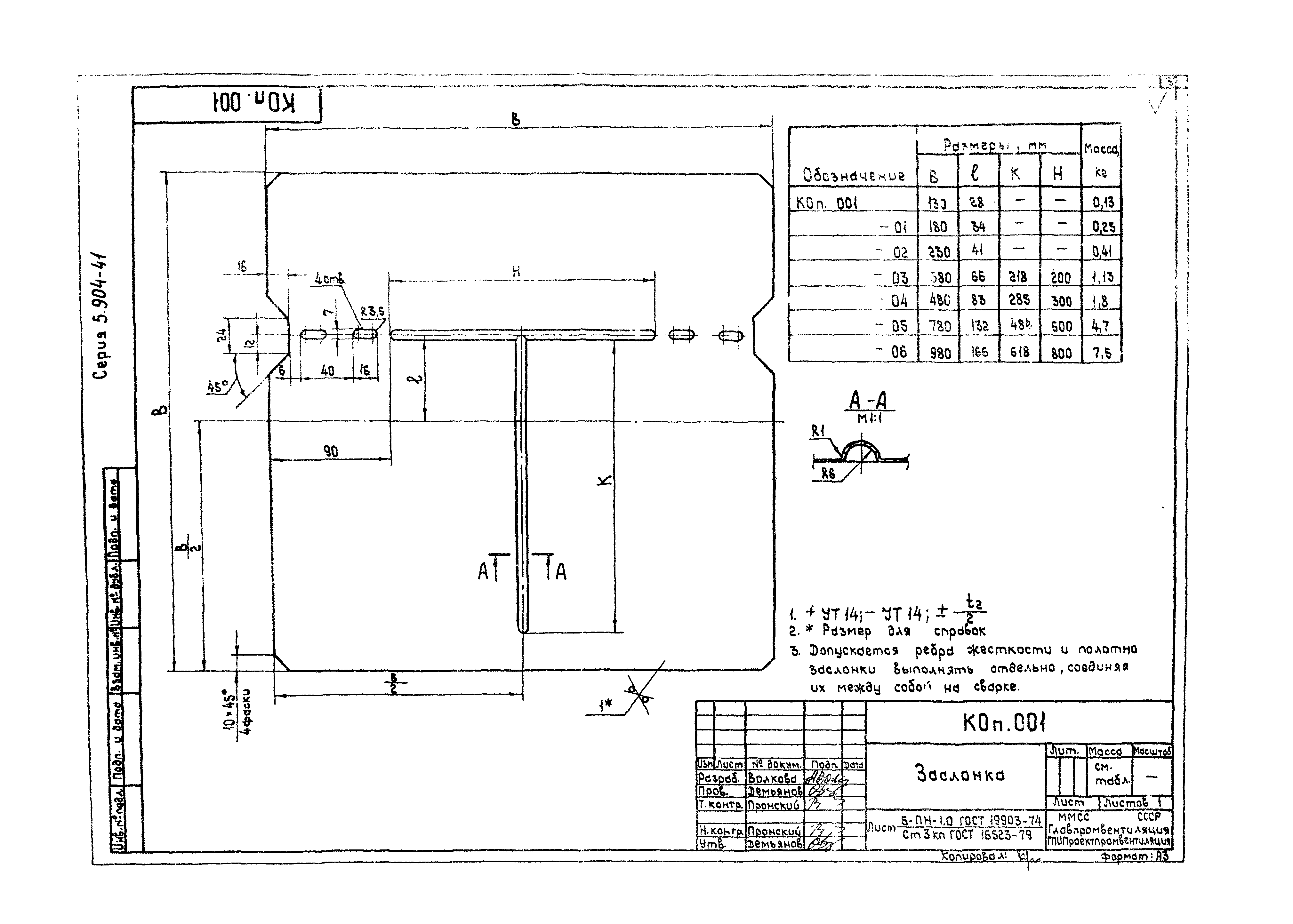
| Оглавление: | Титульный лист Содержание КО.Д Указания по выбору и расчету КО.ТУ Технические условия КО Клапан обратный круглый. Спецификация КО.100 Корпус. Спецификация КО.СБ Клапан обратный круглый. Сборочный чертеж КО.100СБ Корпус. Сборочный чертеж КО.101 Фланец. Деталь КО.102 Упор. Деталь КО.103 Упор. Деталь КО.201 Труба. Деталь КО.104 Втулка. Деталь КО.105 Упор. Деталь КО.004 Планка. Деталь КО.200 Цилиндр. Спецификация КО.200СБ Цилиндр. Спецификация КО.204 Планка. Деталь КО.202 Планка. Деталь КО.203 Втулка. Деталь КО.002 Втулка. Деталь КО.005 Ось. Деталь КО.205 Стрелка. Деталь КО.001 Заслонка. Деталь КО.003 Ось. Деталь Коп Клапан обратный прямоугольного сечения. Спецификация Коп.100 Корпус. Спецификация Коп.СБ Клапан обратный прямоугольного сечения. Сборочный чертеж Коп.100СБ Корпус. Сборочный чертеж Коп.001 Заслонка. Деталь Коп.101 Упор. Деталь КО.106 Обечайка. Деталь |
| Разработан: | ГПИ Проектпромвентиляция |
| Утверждён: | 26.09.1986 Госстрой СССР (Государственный комитет Совета Министров СССР по делам строительства) (USSR Gosstroy 69) |
| Заменяет собой: |






































