Скачать Серия 3.503.1-81 Выпуск 5-1. Балки пролетного строения длиной 12 м цельноперевозимые с натяжением на упоры. Рабочие чертежиДата актуализации: 01.01.2021
|
| Обозначение: | Серия 3.503.1-81 |
| Обозначение англ: | Series 3.503.1-81 |
| Статус: | не определен законодательством |
| Название рус.: | Выпуск 5-1. Балки пролетного строения длиной 12 м цельноперевозимые с натяжением на упоры. Рабочие чертежи |
| Дата добавления в базу: | 01.09.2013 |
| Дата актуализации: | 01.01.2021 |
| Дата введения: | 01.11.1988 |
| Дата окончания срока действия: | 30.06.2003 |
| Область применения: | Действуют кроме указаний в части изготовления балок для разрезных пролетных строений. |
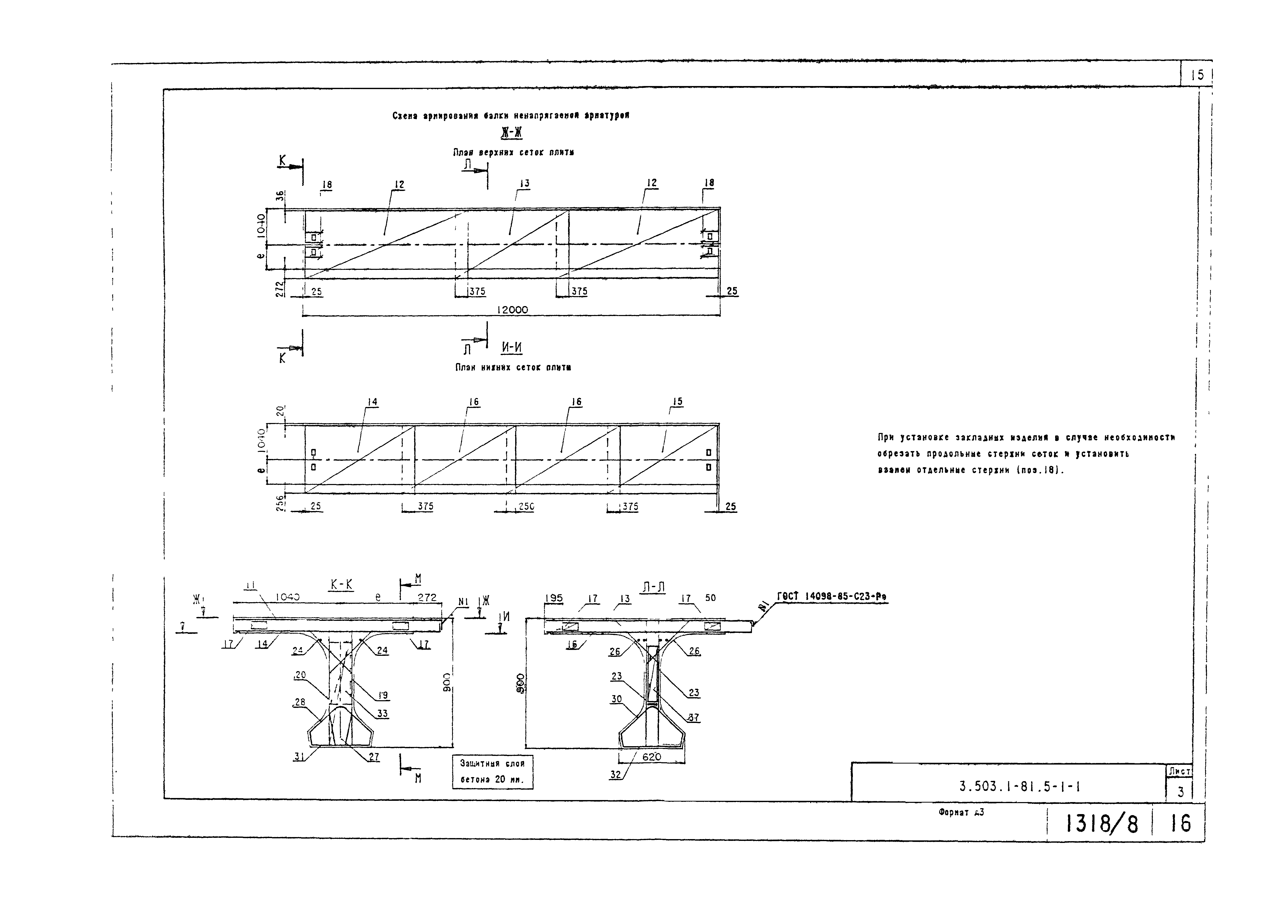
| Оглавление: | 3.503.1-81.5-1-ТТ Технические требования 3.503.1-81.5-1-1ФЧ Балка пролетного строения Б 1200.174.90, Б 1200.194.90. Опалубочный чертеж 3.503.1-81.5-1-1 Балка пролетного строения Б 1200.174.90, Б 1200.194.90 3.503.1-81.5-1-2 Изделие закладное балки Б 1200.174.90, Б 1200.194.91 3.503.1-81.5-1-3 Напрягаемая арматура. Пучки из стали класса В-ll 3.503.1-81.5-1-4 Напрягаемая арматура. Канаты К-7 3.503.1-81.5-1-5 Плита балки Б 1200.174.90. Ненапрягаемая арматура класса А-lll 3.503.1-81.5-1-6 Плита балки Б 1200.174.90. Ненапрягаемая арматура класса А-ll 3.503.1-81.5-1-7 Плита балки Б 1200.174.90. Ненапрягаемая арматура класса А-lll 3.503.1-81.5-1-8 Плита балки Б 1200.174.90. Ненапрягаемая арматура класса А-ll 3.503.1-81.5-1-9 Ребро балки. Ненапрягаемая арматура класса А-lll 3.503.1-81.5-1-10 Ребро балки. Ненапрягаемая арматура класса А-ll 3.503.1-81.5-1-11ФЧ Балка пролетного строения Б 1200.140.90, Б 1200.180.90. Опалубочный чертеж 3.503.1-81.5-1-11 Балка пролетного строения Б 1200.140.90, Б 1200.180.90. Опалубочный чертеж 3.503.1-81.5-1-12 Изделие закладное балки Б 1200.140.90, Б 1200.180.90. Опалубочный чертеж 3.503.1-81.5-1-13 Плита балки Б 1200.140.90. Ненапрягаемая арматура класса А-lll 3.503.1-81.5-1-14 Плита балки Б 1200.140.90. Ненапрягаемая арматура класса А-ll 3.503.1-81.5-1-15 Плита балки Б 1200.180.90. Ненапрягаемая арматура класса А-lll 3.503.1-81.5-1-16 Плита балки Б 1200.180.90. Ненапрягаемая арматура класса А-ll 3.503.1-81.5-1-17РС Ведомость расхода стали. Армирование пучками из стали класса В-ll и ненапрягаемой арматурой класса А-lll 3.503.1-81.5-1-18РС Ведомость расхода стали. Армирование пучками из стали класса В-ll и ненапрягаемой арматурой класса А-ll 3.503.1-81.5-1-19РС Ведомость расхода стали. Армирование канатами К-7 и ненапрягаемой арматурой класса А-lll 3.503.1-81.5-1-20РС Ведомость расхода стали. Армирование канатами К-7 и ненапрягаемой арматурой класса А-ll |
| Разработан: | Союздорпроект Минтрансстроя |
| Утверждён: | 11.05.1988 Минтрансстрой СССР (USSR Mintransstroy АВ-311) |
| Заменяет собой: |
































