Скачать Типовой проект 704-1-168.84 Альбом III. Основание и фундаменты. Крепежные узлыДата актуализации: 01.01.2021
|
| Обозначение: | Типовой проект 704-1-168.84 |
| Обозначение англ: | 704-1-168.84 |
| Статус: | не действует |
| Название рус.: | Альбом III. Основание и фундаменты. Крепежные узлы |
| Дата добавления в базу: | 01.09.2013 |
| Дата актуализации: | 01.01.2021 |
| Дата окончания срока действия: | 25.02.1998 |
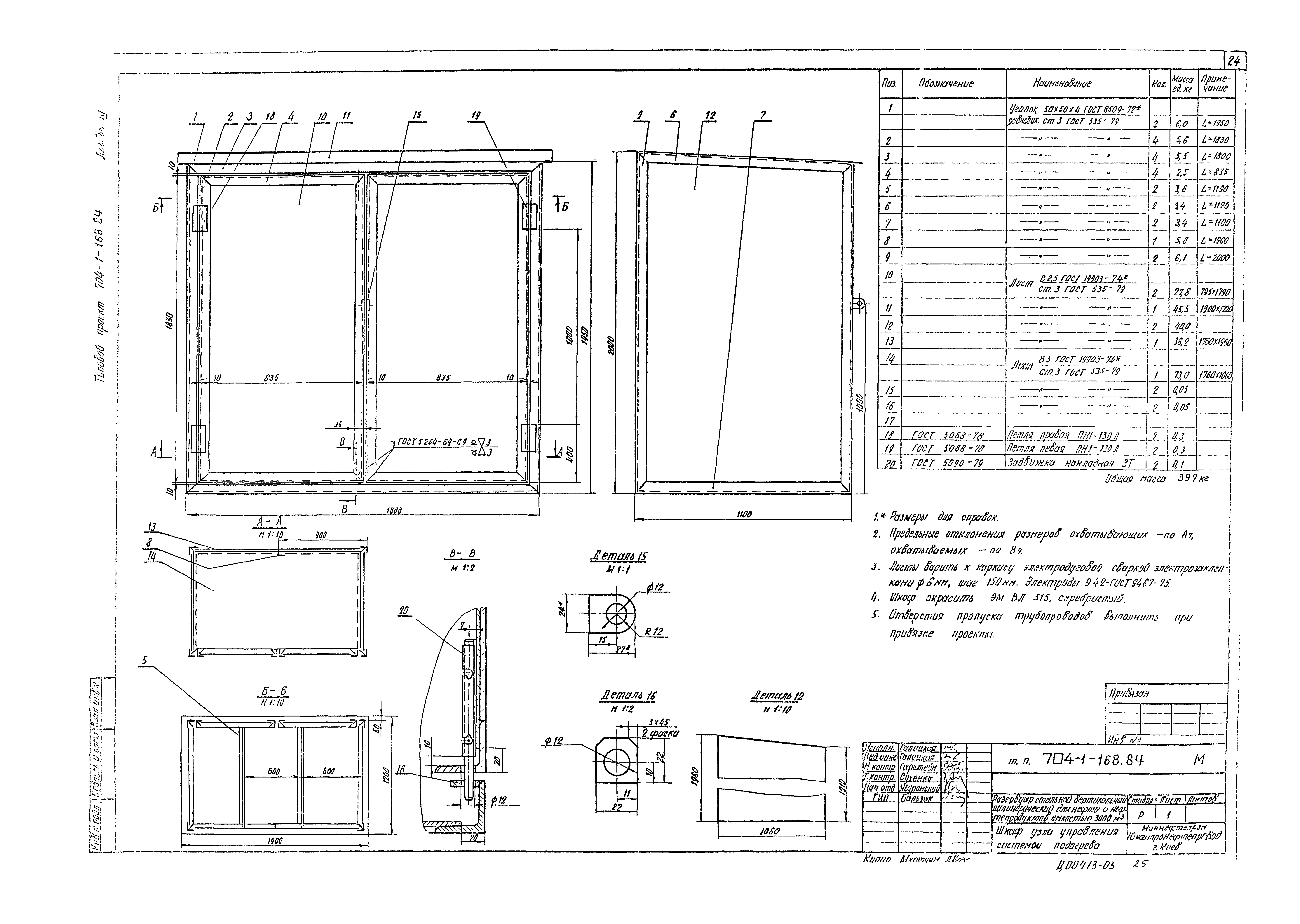
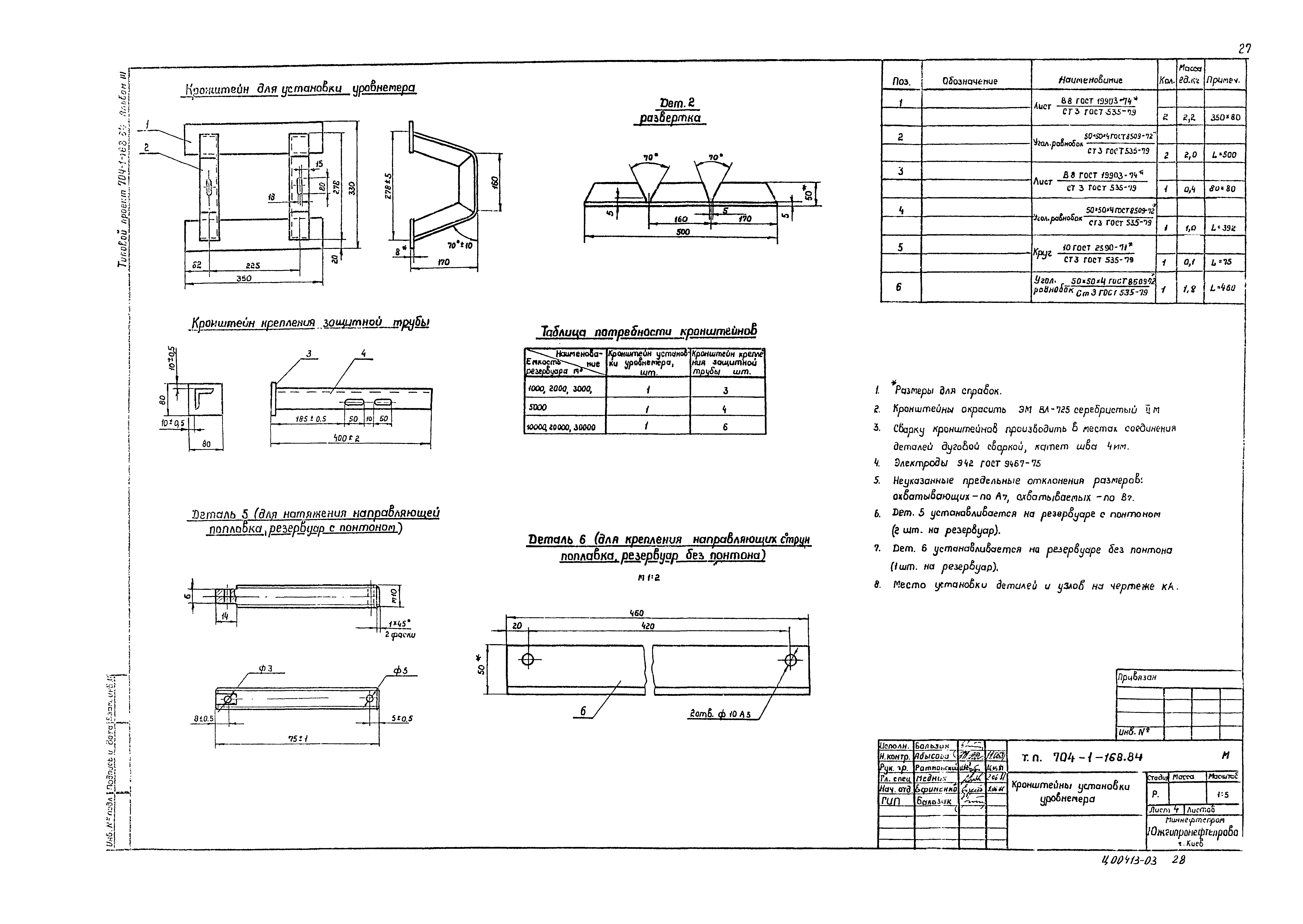
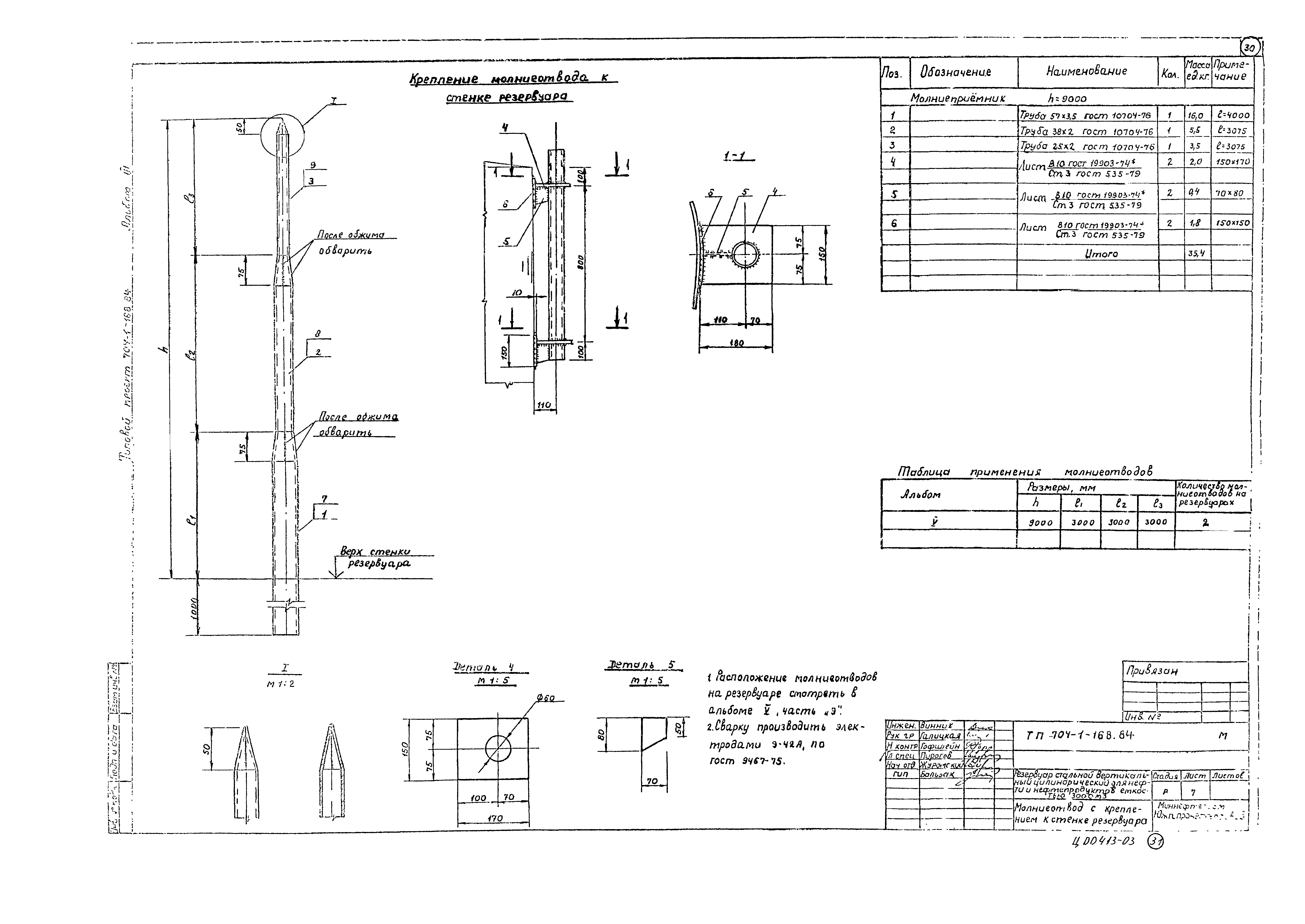
| Оглавление: | Конструкции железобетонные Общие данные Пояснительная записка Расчетный лист Схемы оснований №№1 - 6 Схемы оснований №№7 - 11 Общий вид основания. Основная таблица привязки оснований Площадка и фундаменты под шахтную лестницу Ф-1 Типы подушек, отмосток и покрытия площадок Узел А. Типы А-1; А-2; А-3 Узел А. Типы А-4; А-5; А-6 Узел Б. Типы Б-1; Б-2 Фундаментное кольцо КФ-1 Фундаментное кольцо КФ-2. Плита ПФ-1. Плита ПФ-1 Контрольный колодец КК-1 Плиты П-1, П-2 Фундамент под шкаф узла управления системой подогрева Крепежные узлы Шкаф узла управления системной подогрева Кронштейны крепления трубопроводов пожаротушения Кронштейн уровнемера Кронштейн установки уровнемера Люк уровнемера Молниеотвод с креплением к стенке резервуара |
| Разработан: | Южгипронефтепровод Миннефтепрома СССР |
| Утверждён: | 16.06.1983 Миннефтепром (Minnefteprom ) |






























