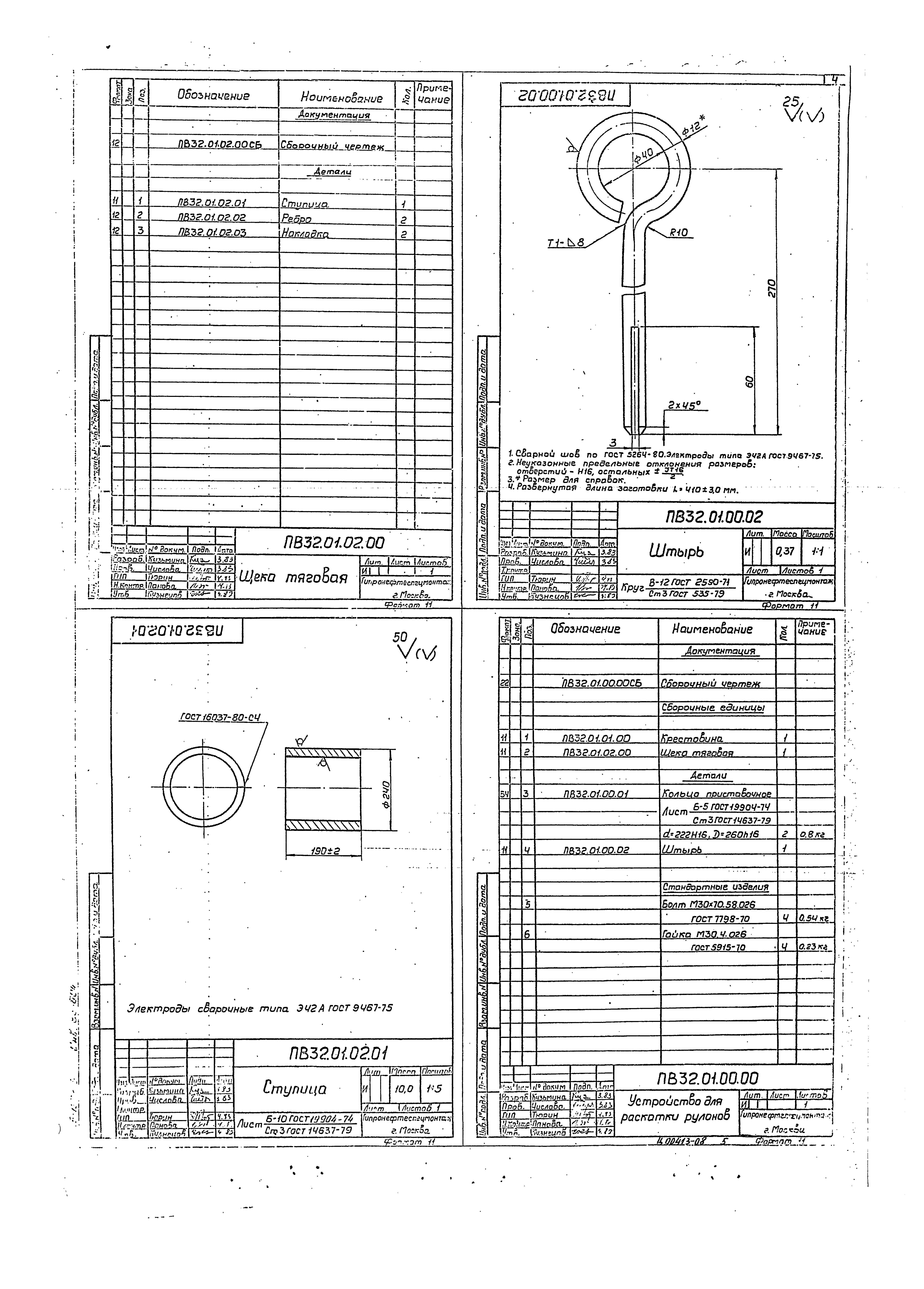
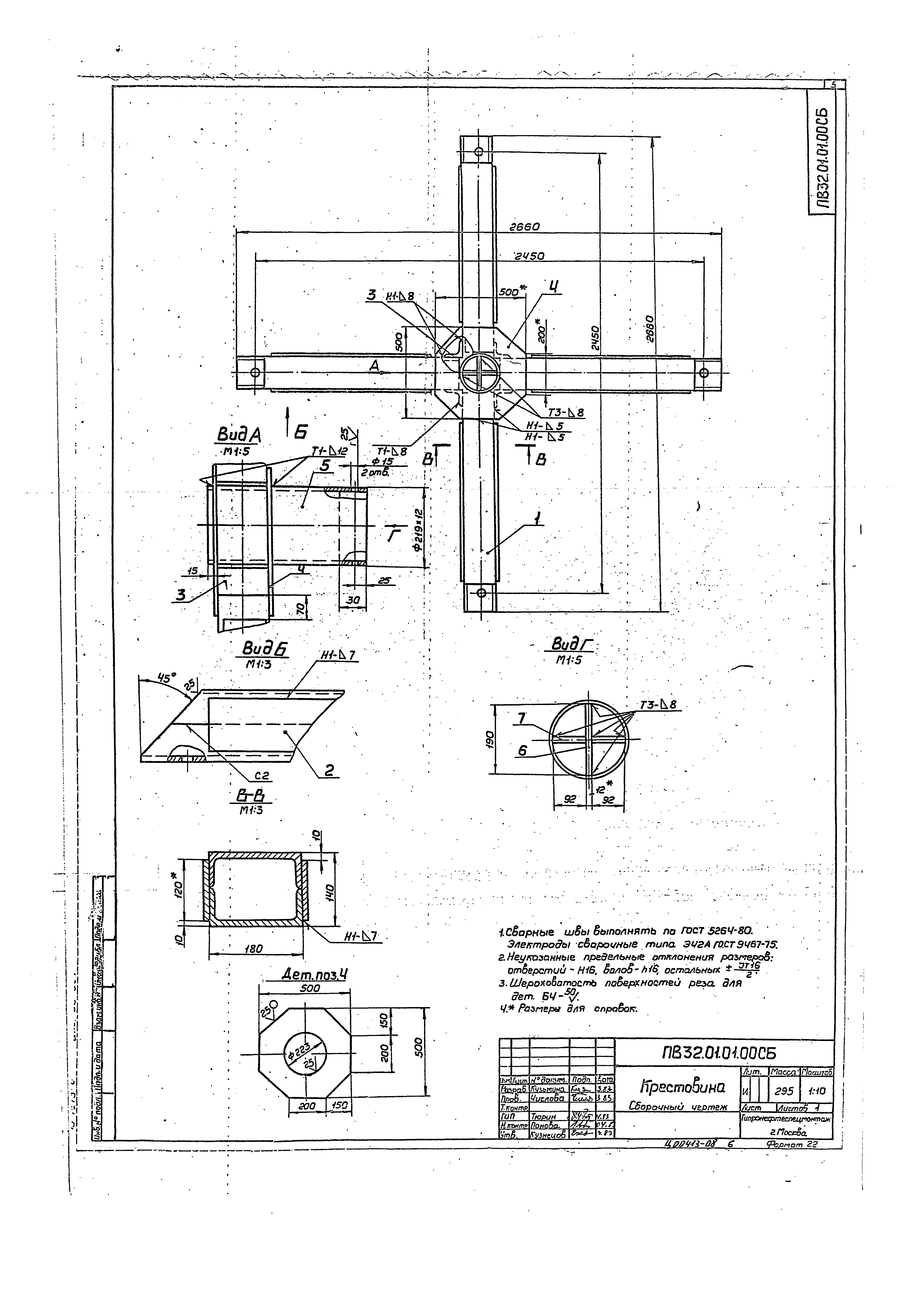
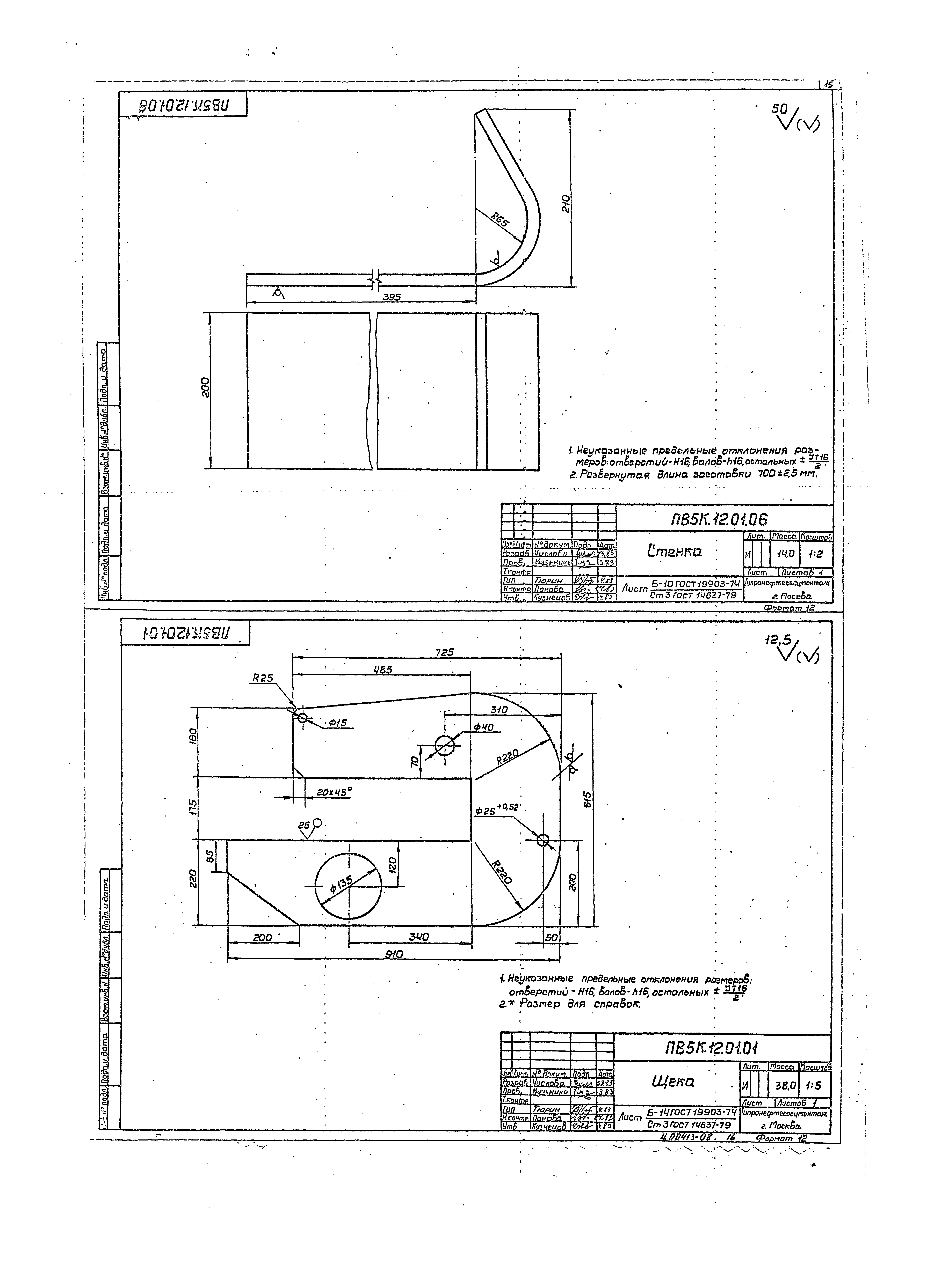
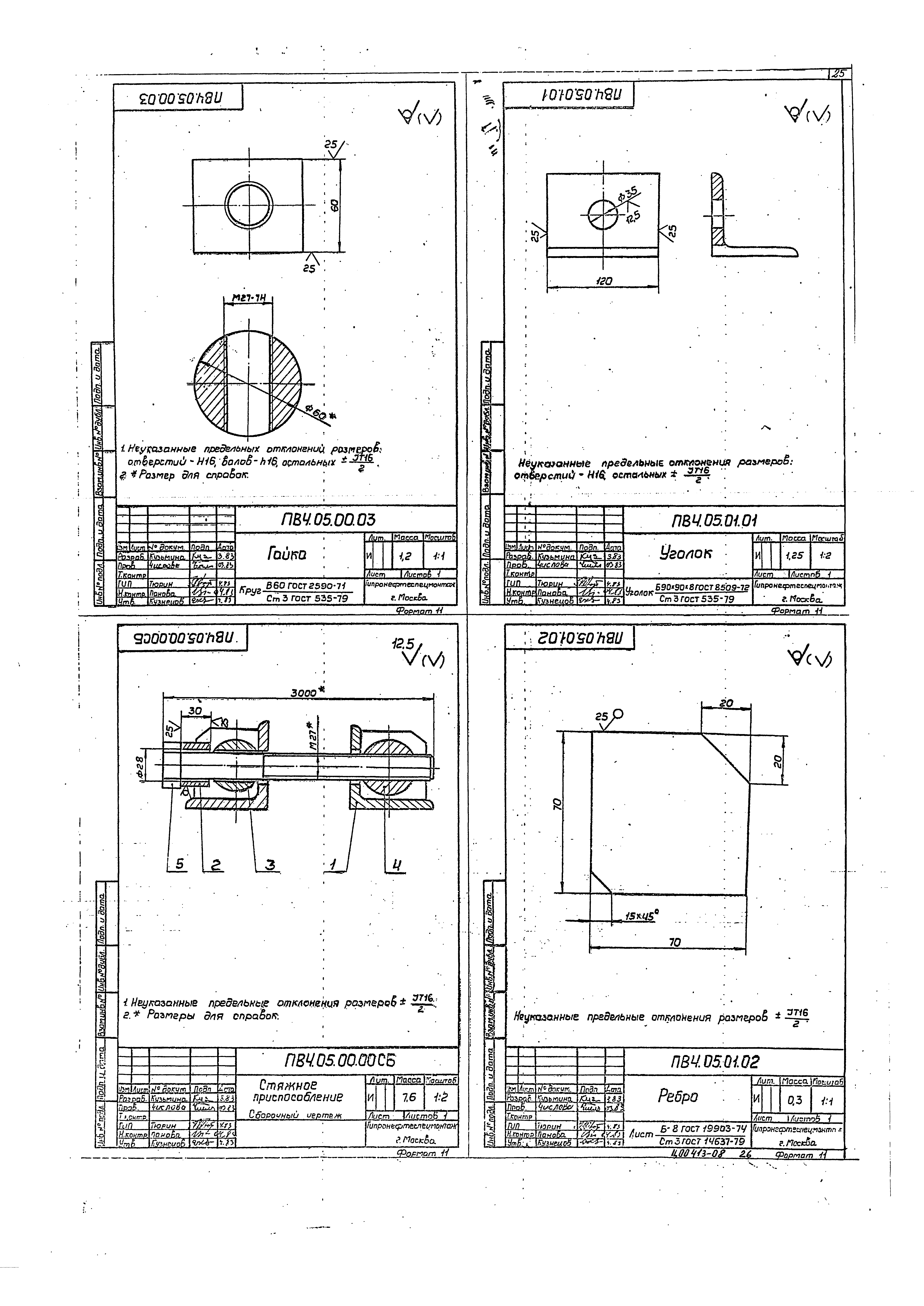
Скачать Типовой проект 704-1-168.84 Альбом VIII. Проект производства монтажных работ. Приспособления для монтажаДата актуализации: 01.01.2021
|
| Обозначение: | Типовой проект 704-1-168.84 |
| Обозначение англ: | 704-1-168.84 |
| Статус: | не действует |
| Название рус.: | Альбом VIII. Проект производства монтажных работ. Приспособления для монтажа |
| Дата добавления в базу: | 01.09.2013 |
| Дата актуализации: | 01.01.2021 |
| Дата окончания срока действия: | 25.02.1998 |
| Разработан: | Гипронефтеспецмонтаж Минмонтажспецстроя СССР (Giproneftespetsmontazh, Minmontazhspetsstroy (USSR) ) |
| Утверждён: | 23.05.1983 Миннефтепром (Minnefteprom ) |




















































































