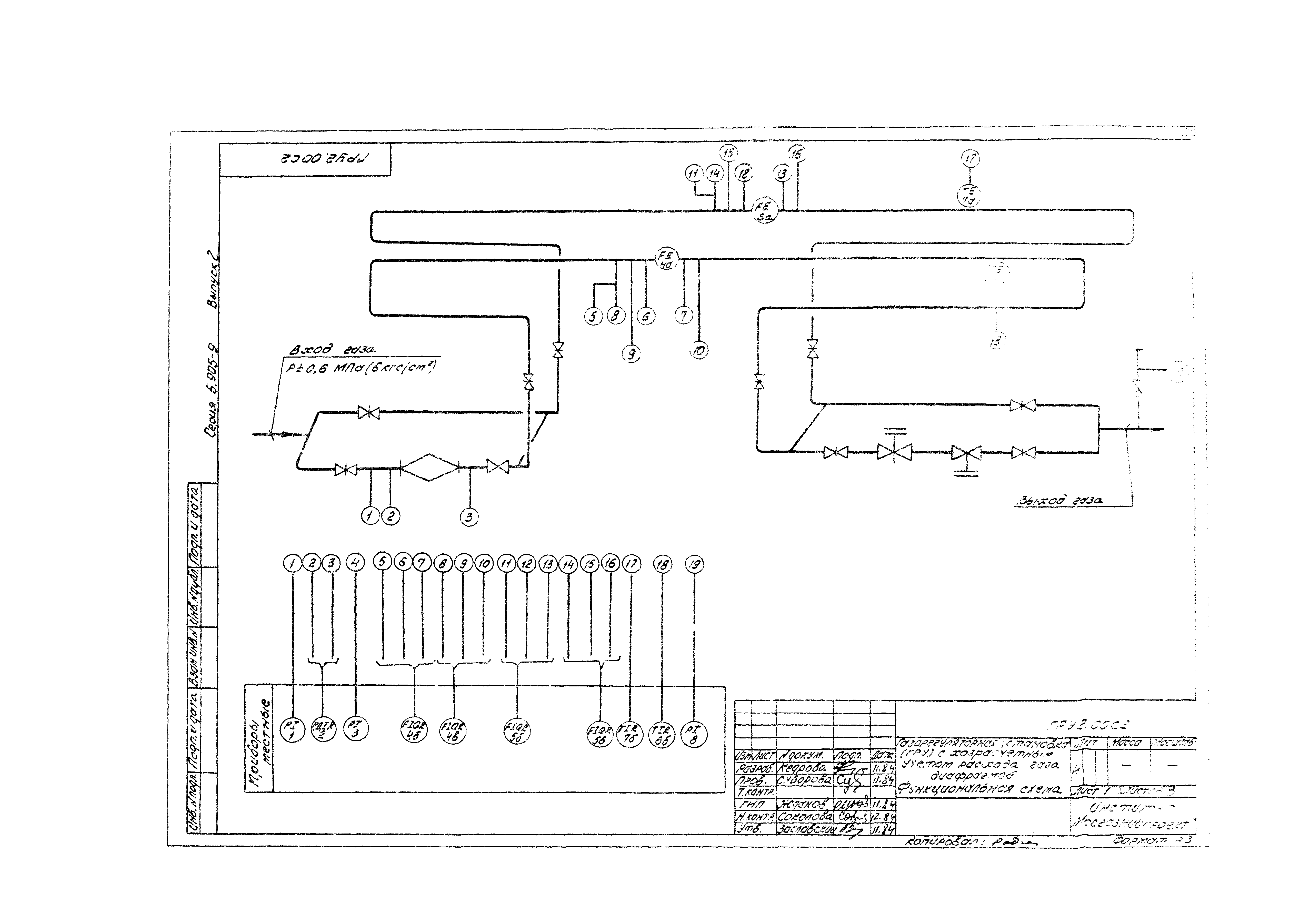
Скачать Серия 5.905-9 Выпуск 2. Газорегуляторная установка (ГРУ) с хозрасчетным учетом расхода газа диафрагмой ГРУ2.00. Рабочие чертежиДата актуализации: 01.01.2021
|
| Обозначение: | Серия 5.905-9 |
| Обозначение англ: | Series 5.905-9 |
| Статус: | не определен законодательством |
| Название рус.: | Выпуск 2. Газорегуляторная установка (ГРУ) с хозрасчетным учетом расхода газа диафрагмой ГРУ2.00. Рабочие чертежи |
| Дата добавления в базу: | 01.09.2013 |
| Дата актуализации: | 01.01.2021 |
| Дата введения: | 01.04.1985 |
| Дата окончания срока действия: | 30.06.2003 |
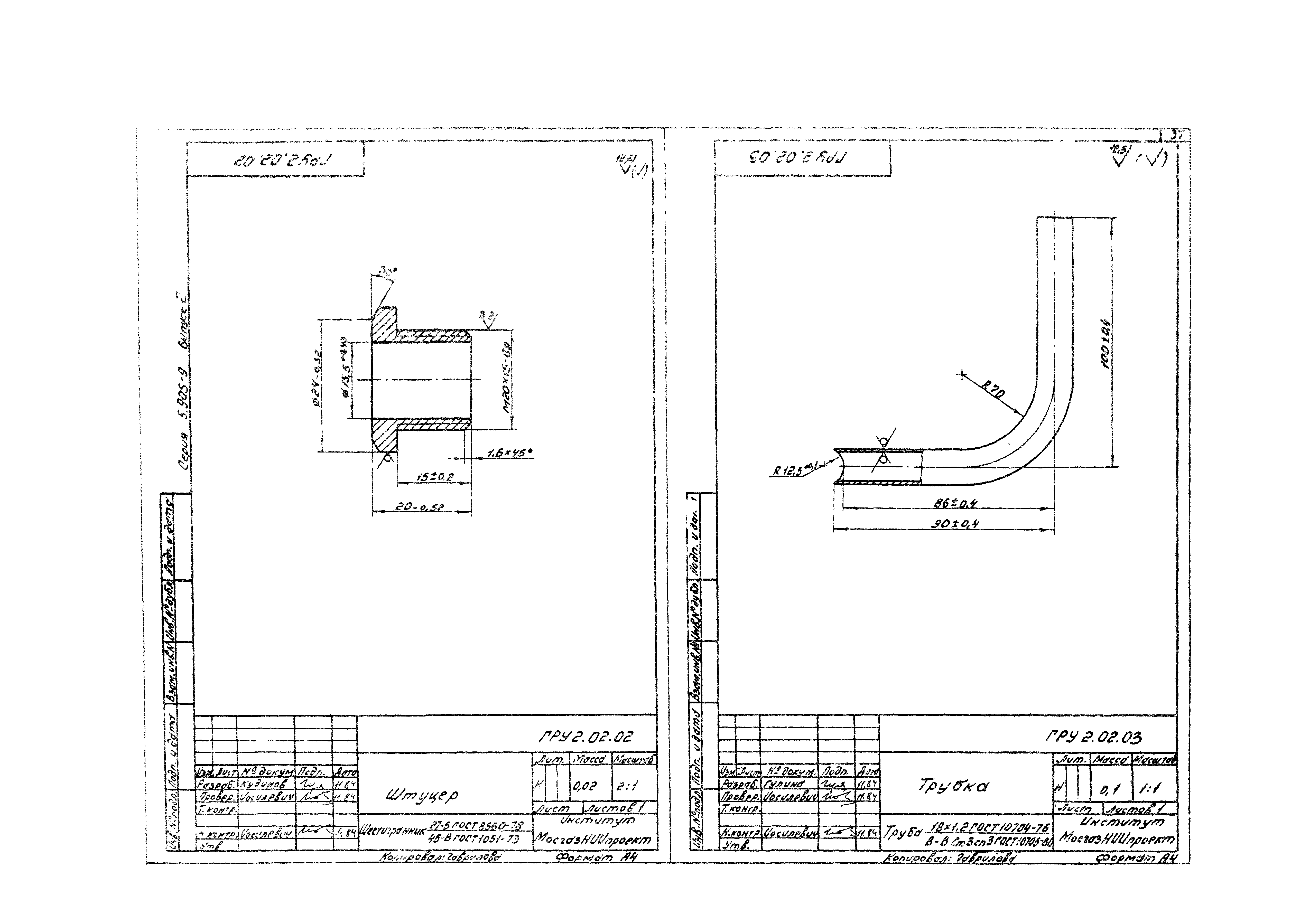
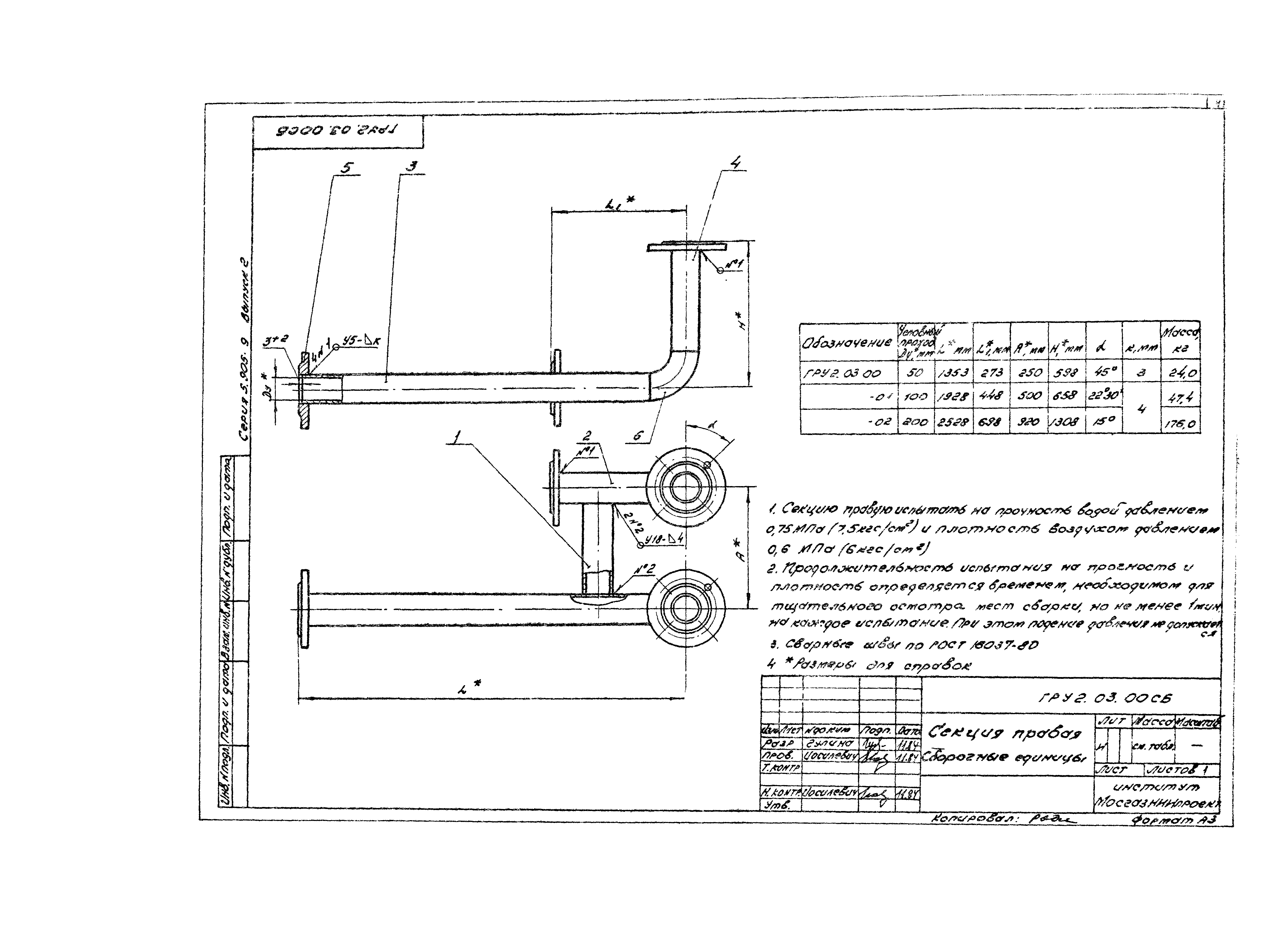
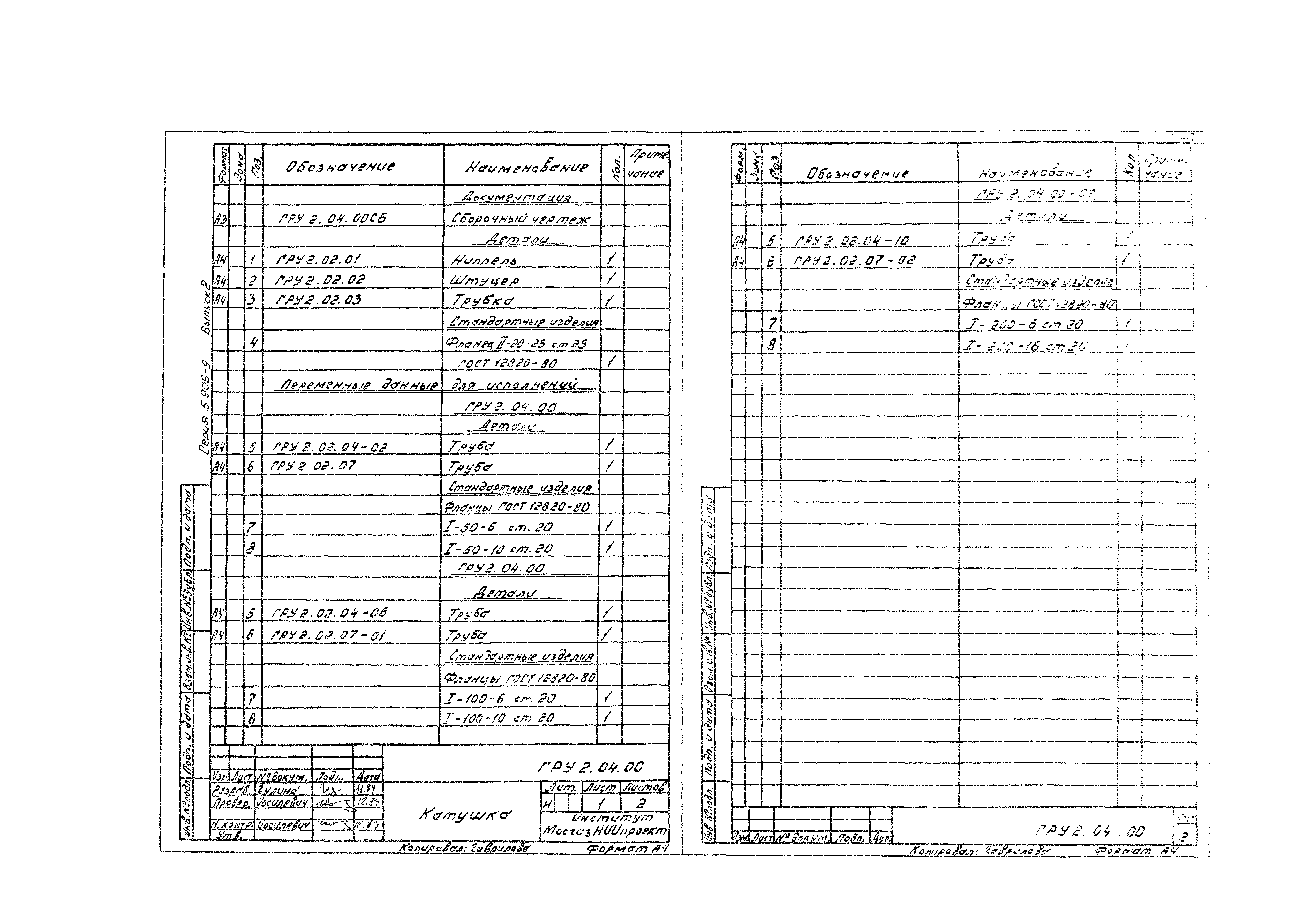
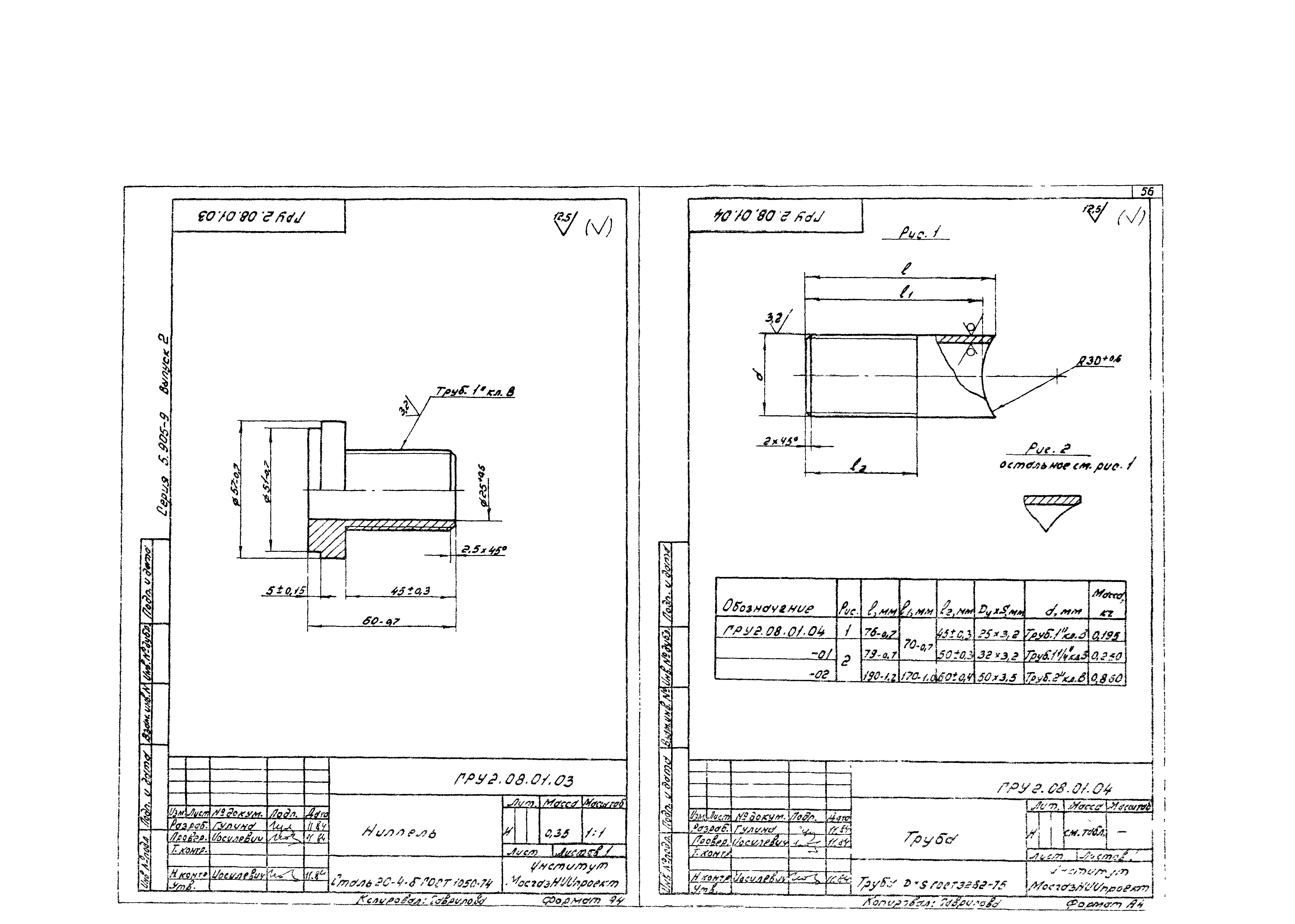
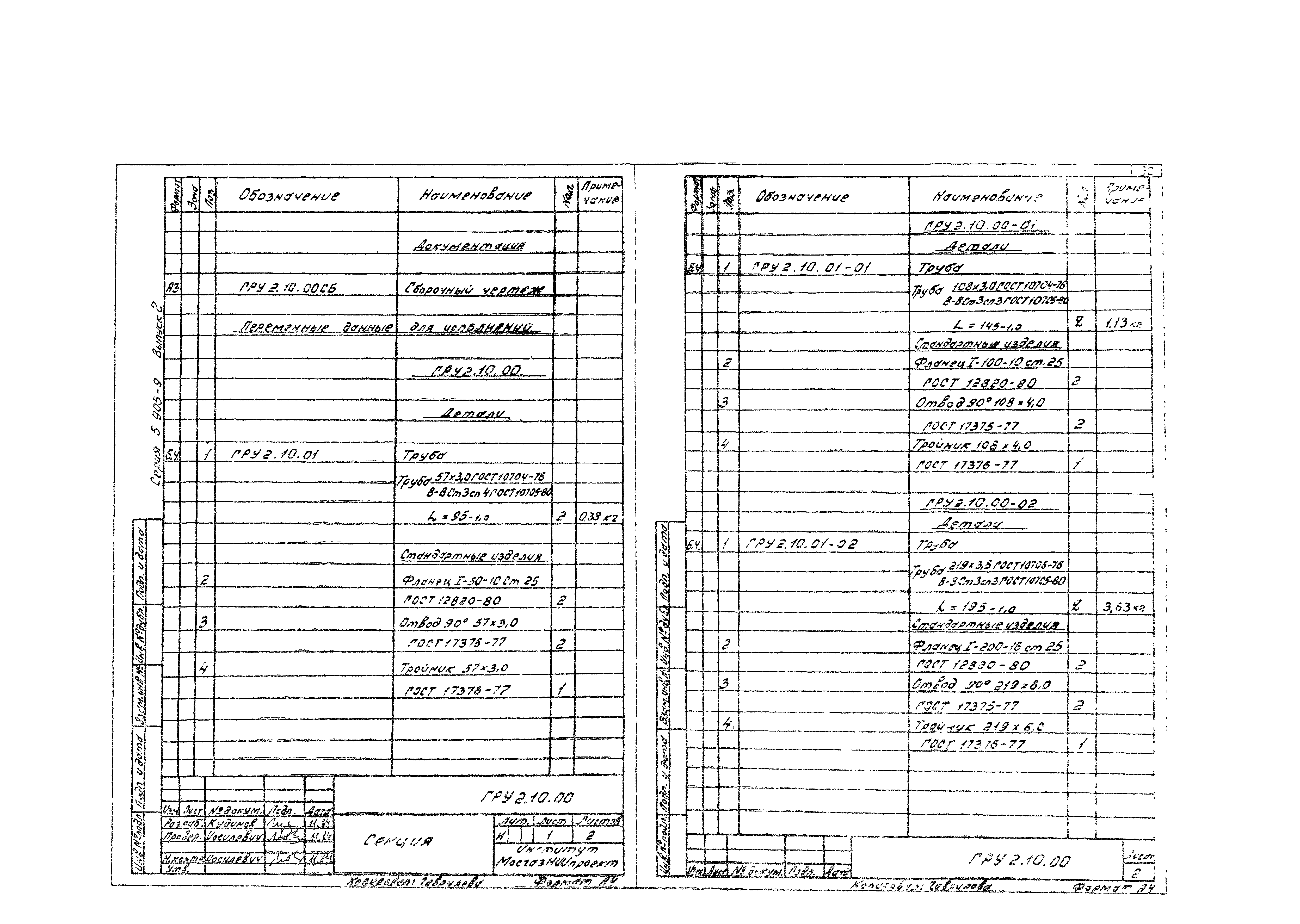
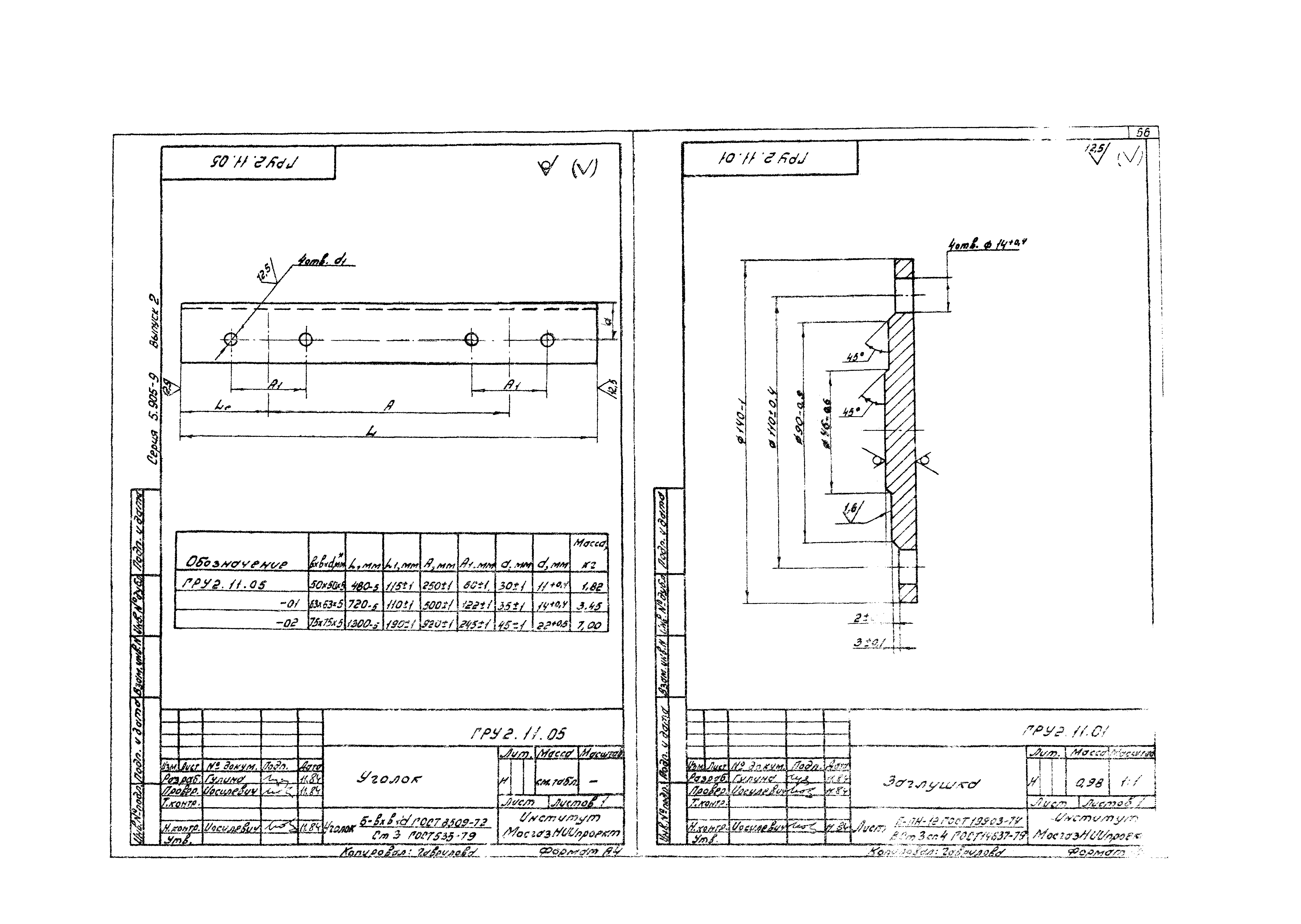
| Оглавление: | Титульный лист Содержание ГРУ2.00 Газорегуляторная установка (ГРУ) с хозрасчетным учетом расхода газа диафрагмой ГРУ2.00СБ Газорегуляторная установка (ГРУ) с хозрасчетным учетом расхода газа диафрагмой ГРУ2.ООД Газорегуляторная установка (ГРУ) с хозрасчетным учетом расхода газа диафрагмой. Общие указания ГРУ2.ООС2 Функциональная схема ГРУ2.0034 Схема внешних соединителей ГРУ2.14 Прокладка ГРУ2.01.00 Трубка импульсная ГРУ2.01.00СБ Трубка импульсная ГРУ2.01.01 Трубка ГРУ2.01.02 Гайка накидная ГРУ2.01.03 Ниппель ГРУ2.02.00 Секция левая ГРУ2.02.01 Ниппель ГРУ2.02.00СБ Секция левая ГРУ2.02.02 Штуцер ГРУ2.02.03 Трубка ГРУ2.02.04 Труба ГРУ2.02.05 Труба ГРУ2.02.07 Труба ГРУ2.03.01 Труба ГРУ2.03.00СБ Секция правая ГРУ2.04.00 Катушка ГРУ2.04.00СБ Катушка ГРУ2.05.00 Катушка ГРУ2.05.00СБ Катушка ГРУ2.06.00 Секция ГРУ2.06.00СБ Секция ГРУ2.07.00 Секция ГРУ2.07.00СБ Секция ГРУ2.07.01 Бобышка ГРУ2.07.04 Патрубок ГРУ2.08.00 Установка ПСК-50 ГРУ2.08.01.00 Установка ПСК-50 ГРУ2.08.01.00 Патрубок ГРУ2.08.01.00СБ Патрубок ГРУ2.08.01.01 Труба ГРУ2.08.01.02 Труба ГРУ2.08.01.03 Ниппель ГРУ2.08.01.04 Труба ГРУ2.08.02 Ниппель ГРУ2.08.03 Ниппель ГРУ2.08.04.00 Патрубок ГРУ2.08.04.01 Труба ГРУ2.08.04.00СБ Патрубок ГРУ2.09.00 Трубка импульсная ГРУ2.09.00СБ Трубка импульсная ГРУ2.10.00 Секция ГРУ2.10.00СБ Секция ГРУ2.11.00 Рама ГРУ2.11.00СБ Рама ГРУ2.11.01 Заглушка ГРУ2.11.05 Уголок ГРУ2.11.03 Скоба ГРУ2.19 Кольцо ГРУ2.22 Заглушка |
| Разработан: | Институт Мосгазниипроект Управления топливно-энергетического хозяйства Исполкома Московского городского Совета народных депутатов |
| Утверждён: | 26.12.1984 Главстройпроект Госстроя СССР (52) |
| Издан: | ЦИТП Госстроя СССР (CITP, Gosstroy (USSR) 1985 г. ) |
| Заменяет собой: |





































































