Скачать Серия 5.905-27.01 Выпуск 1. Дымовые и вентиляционные каналы. Рабочие чертежиДата актуализации: 01.01.2021
|
| Обозначение: | Серия 5.905-27.01 |
| Обозначение англ: | Series 5.905-27.01 |
| Статус: | заменен |
| Название рус.: | Выпуск 1. Дымовые и вентиляционные каналы. Рабочие чертежи |
| Дата добавления в базу: | 01.09.2013 |
| Дата актуализации: | 01.01.2021 |
| Дата окончания срока действия: | 01.03.2005 |
| Область применения: | Рабочие чертежи применяются при проектировании, строительстве и эксплуатации дымовых и вентиляционных каналов газифицируемых помещений, зданий и сооружений (жилых домов, коммунально-бытовых, общественных и промышленных объектов при установке бытовых теплогенераторов) с сейсмичностью не более 9 баллов, для районов с расчетной температурой наружного воздуха не ниже минус 40 градусов С. |
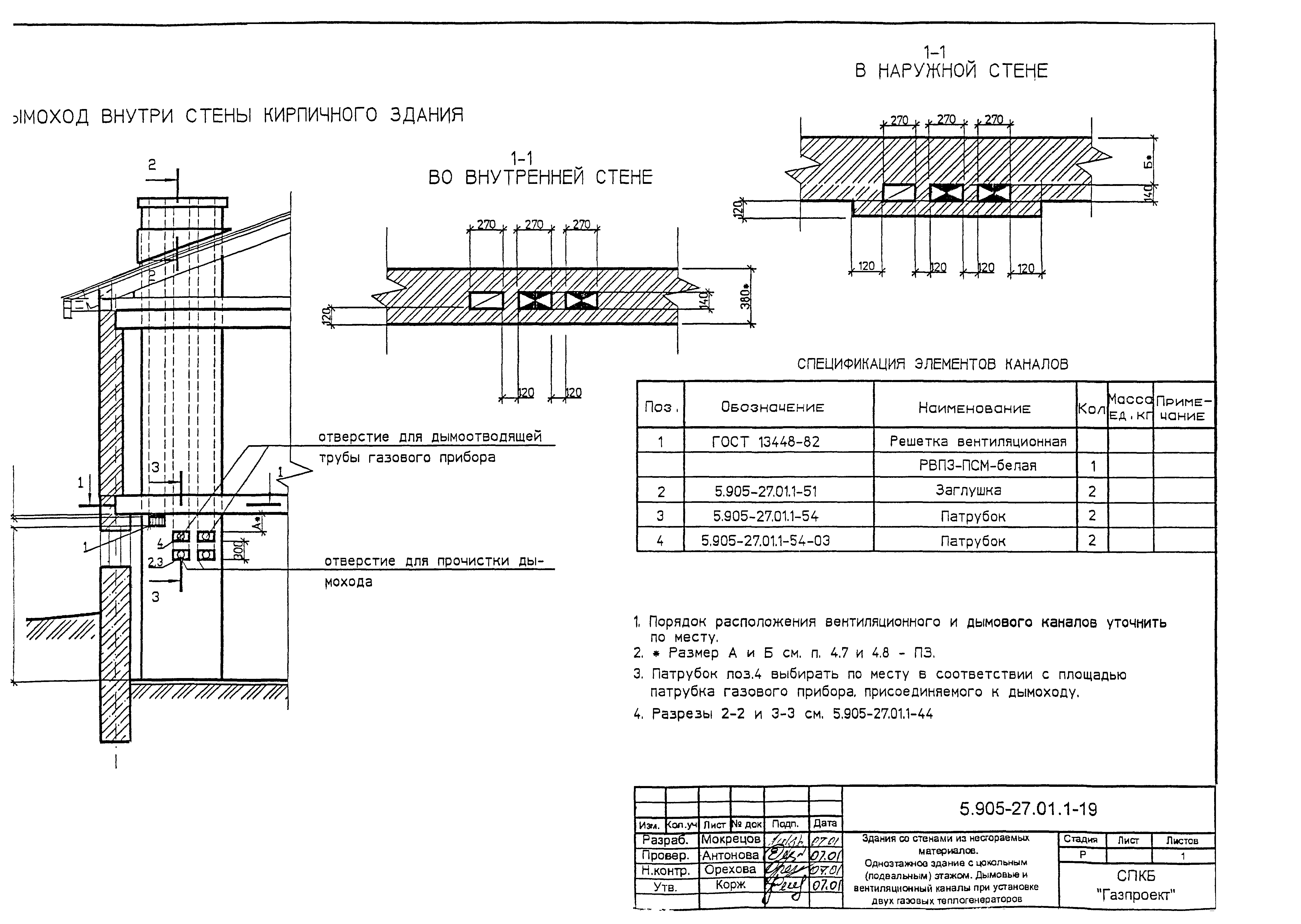
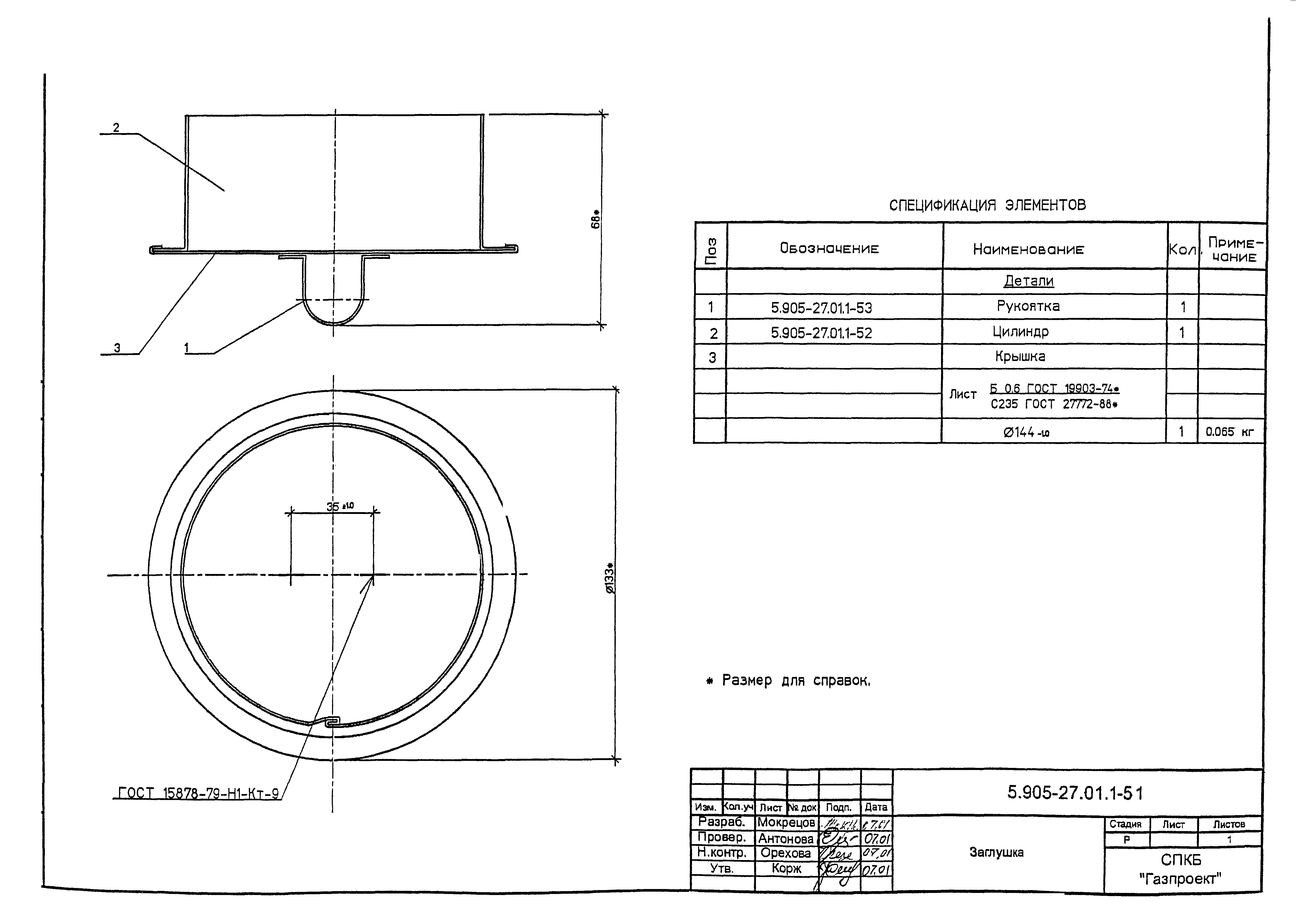
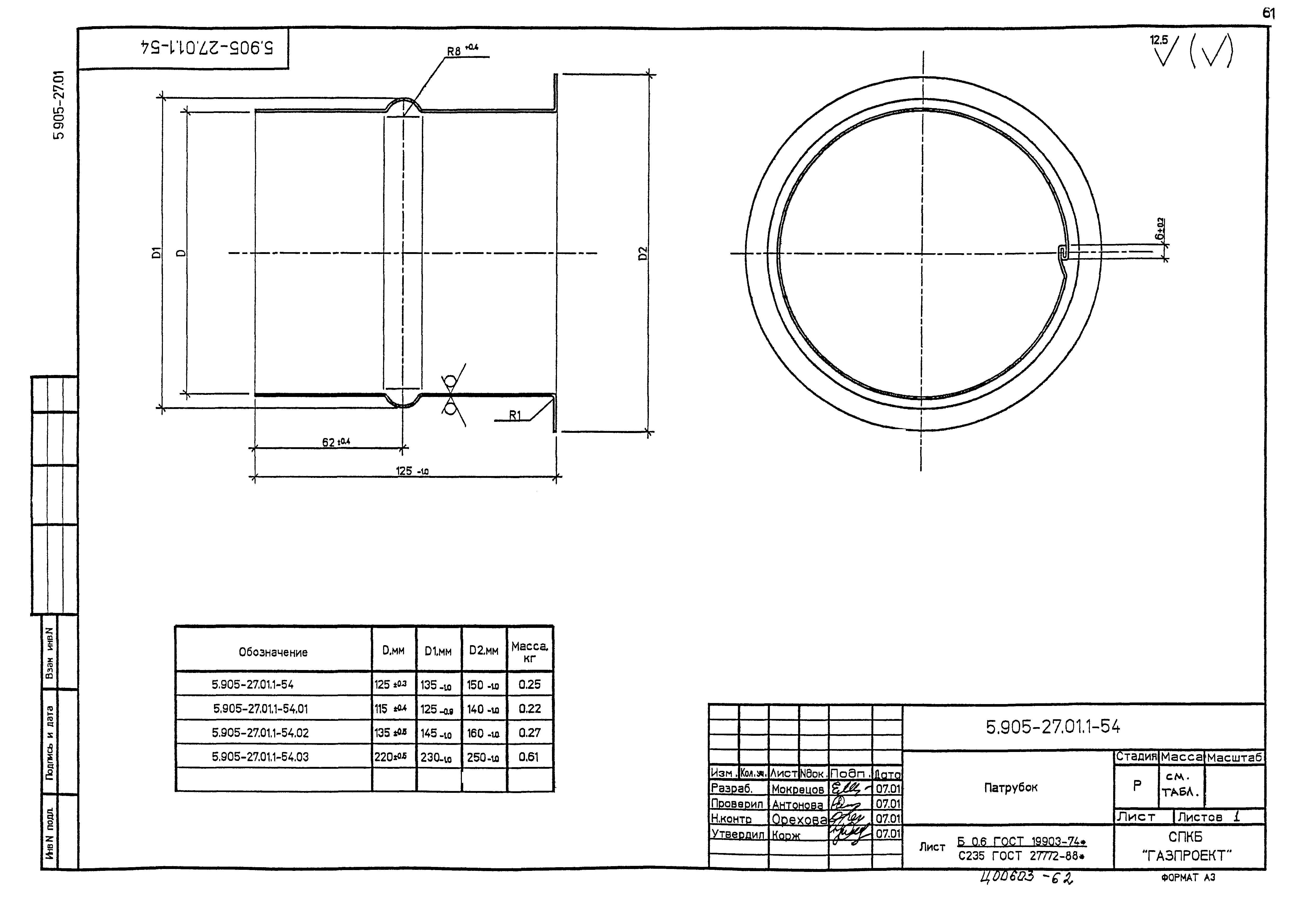
| Оглавление: | 5.905-27.01.1-ПЗ Пояснительная записка 5.905-27.01.1-1 Здания со стенами из несгораемых материалов. Одноэтажное здание. Дымовой и вентиляционный каналы при установке одного газового теплогенератора 5.905-27.01.1-2 Здания со стенами из несгораемых материалов. Одноэтажное здание. Приставные дымовой и вентиляционный каналы при установке одного газового теплогенератора 5.905-27.01.1-3 Здания со стенами из несгораемых материалов. Двухэтажное здание. Дымовой и вентиляционный каналы при установке одного газового теплогенератора 5.905-27.01.1-4 Здания со стенами из несгораемых материалов. Двухэтажное здание. Приставные дымовой и вентиляционный каналы при установке одного газового теплогенератора 5.905-27.01.1-5 Здания со стенами из несгораемых материалов. Трехэтажное здание. Дымовой и вентиляционный каналы при установке одного газового теплогенератора 5.905-27.01.1-6 Здания со стенами из несгораемых материалов. Трехэтажное здание. Приставные дымовой и вентиляционный каналы при установке одного газового теплогенератора 5.905-27.01.1-7 Здания со стенами из несгораемых материалов. Одноэтажное здание с цокольным (подвальным) этажом. Дымовой и вентиляционный каналы при установке одного газового теплогенератора 5.905-27.01.1-8 Здания со стенами из несгораемых материалов. Одноэтажное здание с цокольным (подвальным) этажом. Приставные дымовой и вентиляционный каналы при установке одного газового теплогенератора 5.905-27.01.1-9 Здания со стенами из несгораемых материалов. Двухэтажное здание с цокольным (подвальным) этажом. Дымовой и вентиляционный каналы при установке одного газового теплогенератора 5.905-27.01.1-10 Здания со стенами из несгораемых материалов. Двухэтажное здание с цокольным (подвальным) этажом. Приставные дымовой и вентиляционный каналы при установке одного газового теплогенератора 5.905-27.01.1-11 Здания со стенами из несгораемых материалов. Трехэтажное здание с цокольным (подвальным) этажом. Дымовой и вентиляционный каналы при установке одного газового теплогенератора 5.905-27.01.1-12 Здания со стенами из несгораемых материалов. Трехэтажное здание цокольным (подвальным) этажом. Приставные дымовой и вентиляционный каналы при установке одного газового теплогенератора 5.905-27.01.1-13 Здания со стенами из несгораемых материалов. Одноэтажное здание. Дымовые и вентиляционный каналы при установке двух газовых теплогенераторов 5.905-27.01.1-14 Здания со стенами из несгораемых материалов. Одноэтажное здание. Приставные дымовые и вентиляционный каналы при установке двух газовых теплогенераторов 5.905-27.01.1-15 Здания со стенами из несгораемых материалов. Двухэтажное здание. Дымовые и вентиляционный каналы при установке двух газовых теплогенераторов 5.905-27.01.1-16 Здания со стенами из несгораемых материалов. Двухэтажное здание. Приставные дымовые и вентиляционный каналы при установке двух газовых теплогенераторов 5.905-27.01.1-17 Здания со стенами из несгораемых материалов. Трехэтажное здание. Дымовые и вентиляционный каналы при установке двух газовых теплогенераторов 5.905-27.01.1-18 Здания со стенами из несгораемых материалов. Трехэтажное здание. Приставные дымовые и вентиляционный каналы при установке двух газовых теплогенераторов 5.905-27.01.1-19 Здания со стенами из несгораемых материалов. Одноэтажное здание с цокольным (подвальным) этажом. Дымовые и вентиляционный каналы при установке двух газовых теплогенераторов. 5.905-27.01.1-20 Здания со стенами из несгораемых материалов. Одноэтажное здание с цокольным (подвальным) этажом. Приставные дымовые и вентиляционный каналы при установке двух газовых теплогенераторов 5.905-27.01.1-21 Здания со стенами из несгораемых материалов. Двухэтажное здание с цокольным (подвальным) этажом. Дымовые и вентиляционный каналы при установке двух газовых теплогенераторов 5.905-27.01.1-22 Здания со стенами из несгораемых материалов. Двухэтажное здание с цокольным (подвальным) этажом. Приставные дымовые и вентиляционный каналы при установке двух газовых теплогенераторов 5.905-27.01.1-23 Здания со стенами из несгораемых материалов. Трехэтажное здание с цокольным (подвальным) этажом. Дымовые и вентиляционный каналы при установке двух газовых теплогенераторов 5.905-27.01.1-24 Здания со стенами из несгораемых материалов. Трехэтажное здание с цокольным (подвальным) этажом. Приставные дымовые и вентиляционный каналы при установке двух газовых теплогенераторов 5.905-27.01.1-25 Здания со стенами из несгораемых материалов. Одноэтажное здание. Дымовые и вентиляционный каналы при установке трех газовых теплогенераторов 5.905-27.01.1-26 Здания со стенами из несгораемых материалов. Одноэтажное здание. Приставные дымовые и вентиляционный каналы при установке трех газовых теплогенераторов 5.905-27.01.1-27 Здания со стенами из несгораемых материалов. Двухэтажное здание. Дымовые и вентиляционный каналы при установке трех газовых теплогенераторов 5.905-27.01.1-28 Здания со стенами из несгораемых материалов. Двухэтажное здание. Приставные дымовые и вентиляционный каналы при установке трех газовых теплогенераторов 5.905-27.01.1-29 Здания со стенами из несгораемых материалов. Трехэтажное здание. Дымовые и вентиляционный каналы при установке трех газовых теплогенераторов 5.905-27.01.1-30 Здания со стенами из несгораемых материалов. Трехэтажное здание. Приставные дымовые и вентиляционный каналы при установке трех газовых теплогенераторов 5.905-27.01.1-31 Здания со стенами из несгораемых материалов. Одноэтажное здание с цокольным (подвальным) этажом. Дымовые и вентиляционный каналы при установке трех газовых теплогенераторов 5.905-27.01.1-32 Здания со стенами из несгораемых материалов. Одноэтажное здание с цокольным (подвальным) этажом. Приставные дымовые и вентиляционный каналы при установке трех газовых теплогенераторов 5.905-27.01.1-33 Здания со стенами из несгораемых материалов. Двухэтажное здание с цокольным (подвальным) этажом. Дымовые и вентиляционный каналы при установке трех газовых теплогенераторов 5.905-27.01.1-34 Здания со стенами из несгораемых материалов. Двухэтажное здание с цокольным (подвальным) этажом. Приставные дымовые и вентиляционный каналы при установке трех газовых теплогенераторов 5.905-27.01.1-35 Здания со стенами из несгораемых материалов. Трехэтажное здание с цокольным (подвальным) этажом. Дымовые и вентиляционный каналы при установке трех газовых теплогенераторов 5.905-27.01.1-36 Здания со стенами из несгораемых материалов. Трехэтажное здание с цокольным (подвальным) этажом. Приставные дымовые и вентиляционный каналы при установке трех газовых теплогенераторов 5.905-27.01.1-37 Здания со стенами из сгораемых материалов. Одноэтажное здание. Дымовой и вентиляционный каналы при установке одного газового теплогенератора 5.905-27.01.1-38 Здания со стенами из сгораемых материалов. Одноэтажное здание. Дымовые и вентиляционный каналы при установке двух газовых теплогенераторов 5.905-27.01.1-39 Высота оголовка каналов над кровлей. 5.905-27.01.1-40 Узлы прохода двух каналов через сгораемое перекрытие. 5.905-27.01.1-41 Узлы прохода трех каналов через сгораемое перекрытие 5.905-27.01.1-42 Узлы прохода четырех каналов через сгораемое перекрытие 5.905-27.01.1-43 Узлы прохода каналов через железобетонное перекрытие и покрытие 5.905-27.01.1-44 Разрезы 2-2, 3-3, 4-4 5.905-27.01.1-45 Узел прохода каналов через кровлю 5.905-27.01.1-46 Узлы устройства дымовой трубы на два канала при сейсмичности 7-9 баллов 5.905-27.01.1-47 Узлы устройства дымовой трубы на три канала при сейсмичности 7-9 баллов 5.905-27.01.1-48 Узел устройства дымовой трубы на четыре канала при сейсмичности 7-9 баллов 5.905-27.01.1-49 План фундамента в мокрых грунтах 5.905-27.01.1-50 План фундамента в сухих грунтах 5.905-27.01.1-51 Заглушка 5.905-27.01.1-52 Цилиндр 5.905-27.01.1-53 Рукоятка 5.905-27.01.1-54 Патрубок 5.905-27.01.1-55 Сетка арматурная С-1 5.905-27.01.1-56 Сетка арматурная С-2 5.905-27.01.1-57 Сетка арматурная С-3 5.905-27.01.1-58 Стержни анкерные А-1, А-2, А-3, А-4, А-5, А-6 |
| Разработан: | ОАО СПКБ Газпроект -БТЦ |
| Утверждён: | 20.11.2001 Госстрой России (Russian Federation Gosstroy ВК-187/14) |

































































