Скачать Серия 5.905-28.01 Выпуск 1. Дымовые и вентиляционные каналы. Рабочие чертежиДата актуализации: 01.01.2021
|
| Обозначение: | Серия 5.905-28.01 |
| Обозначение англ: | Series 5.905-28.01 |
| Статус: | заменен |
| Название рус.: | Выпуск 1. Дымовые и вентиляционные каналы. Рабочие чертежи |
| Дата добавления в базу: | 01.09.2013 |
| Дата актуализации: | 01.01.2021 |
| Область применения: | Чертежи приме6няются при проектировании, строительстве и эксплуатации дымовых и вентиляционных каналов газифицируемых помещений, зданий и сооружений (жилых домов, коммунально-бытовых, общественных и промышленных объектов при установке бытовых теплогенераторов) в районах сейсмичностью не более 9 баллов и расчетной температурой наружного воздуха не ниже минус 40 градусов С. |
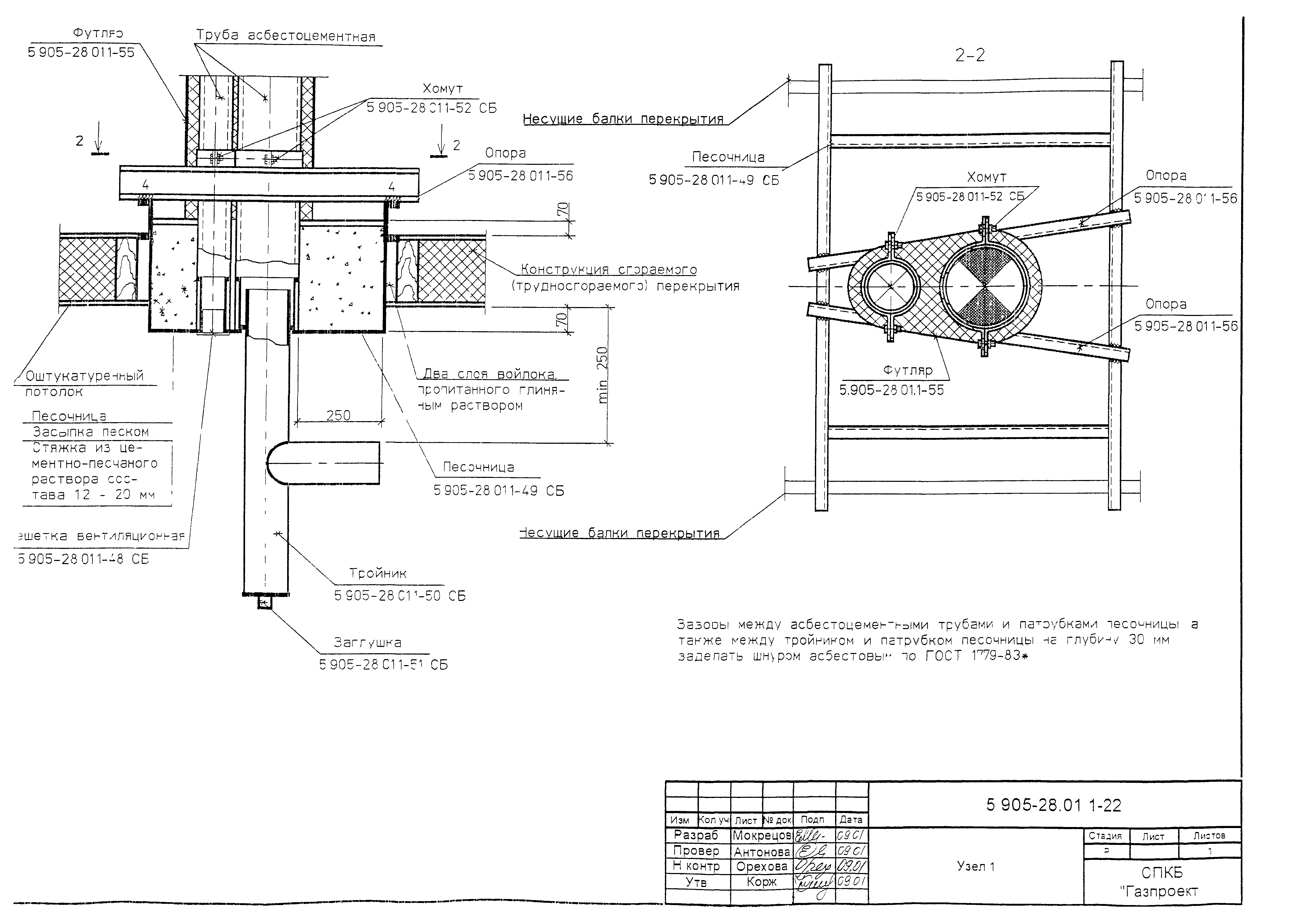
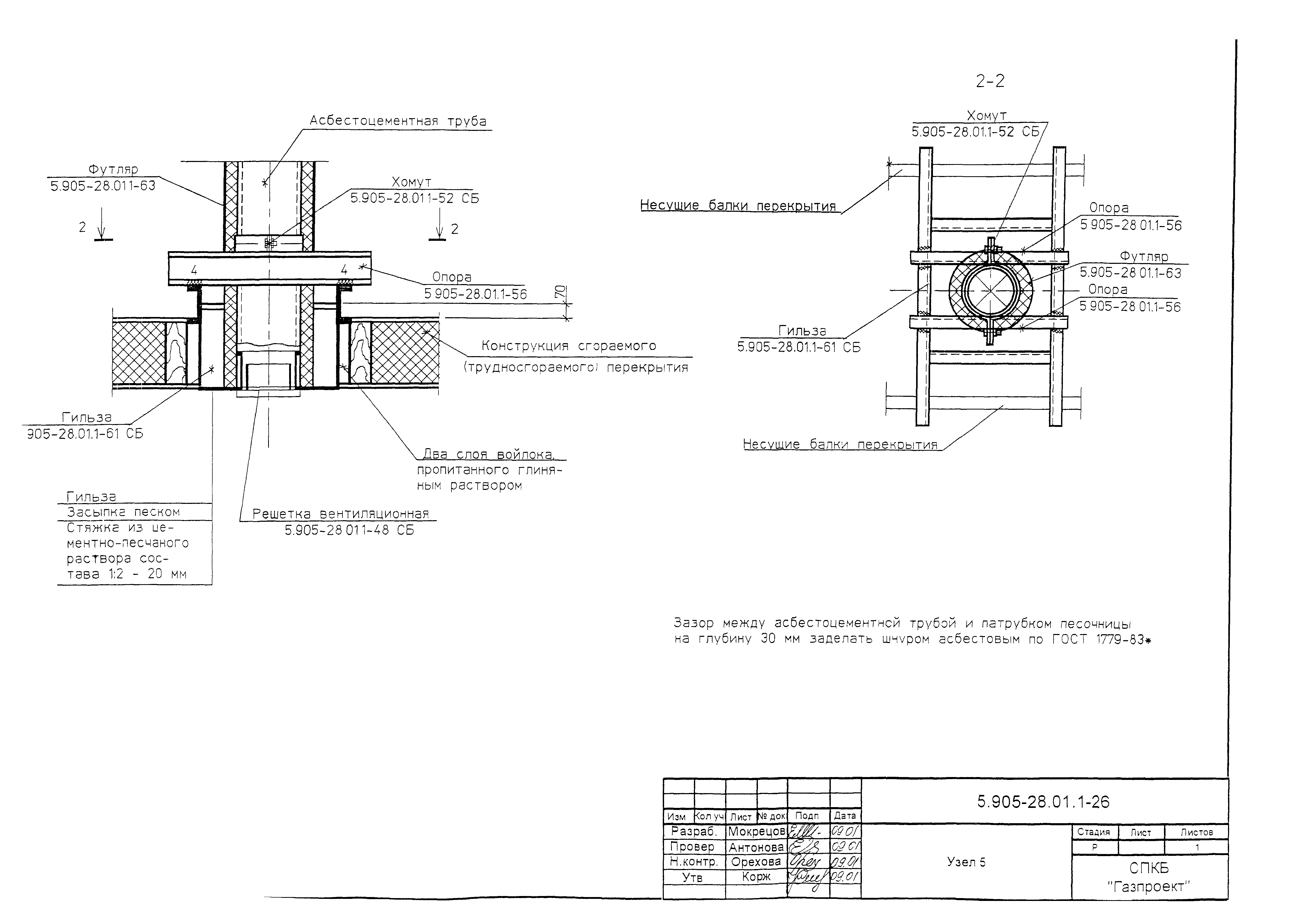
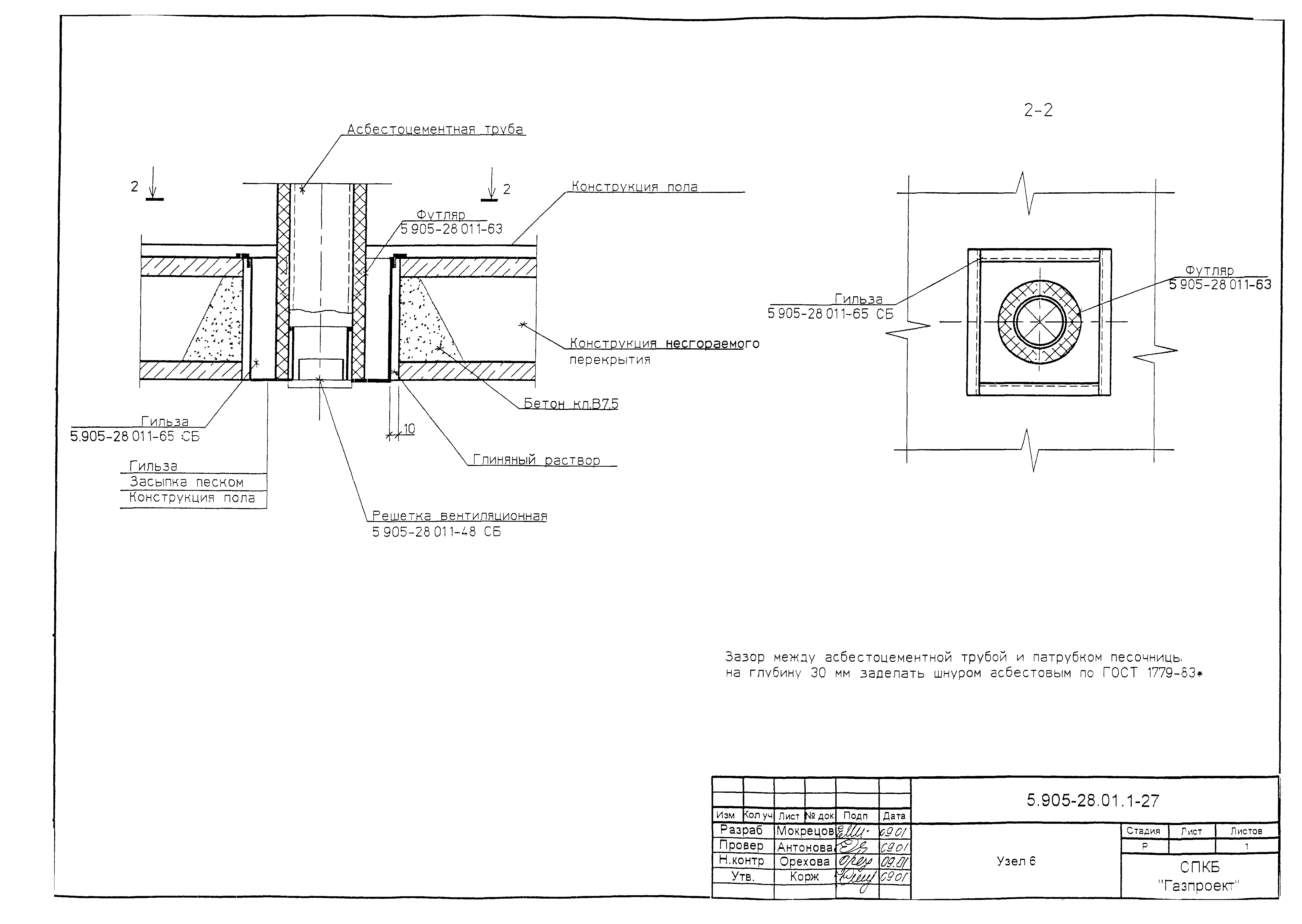
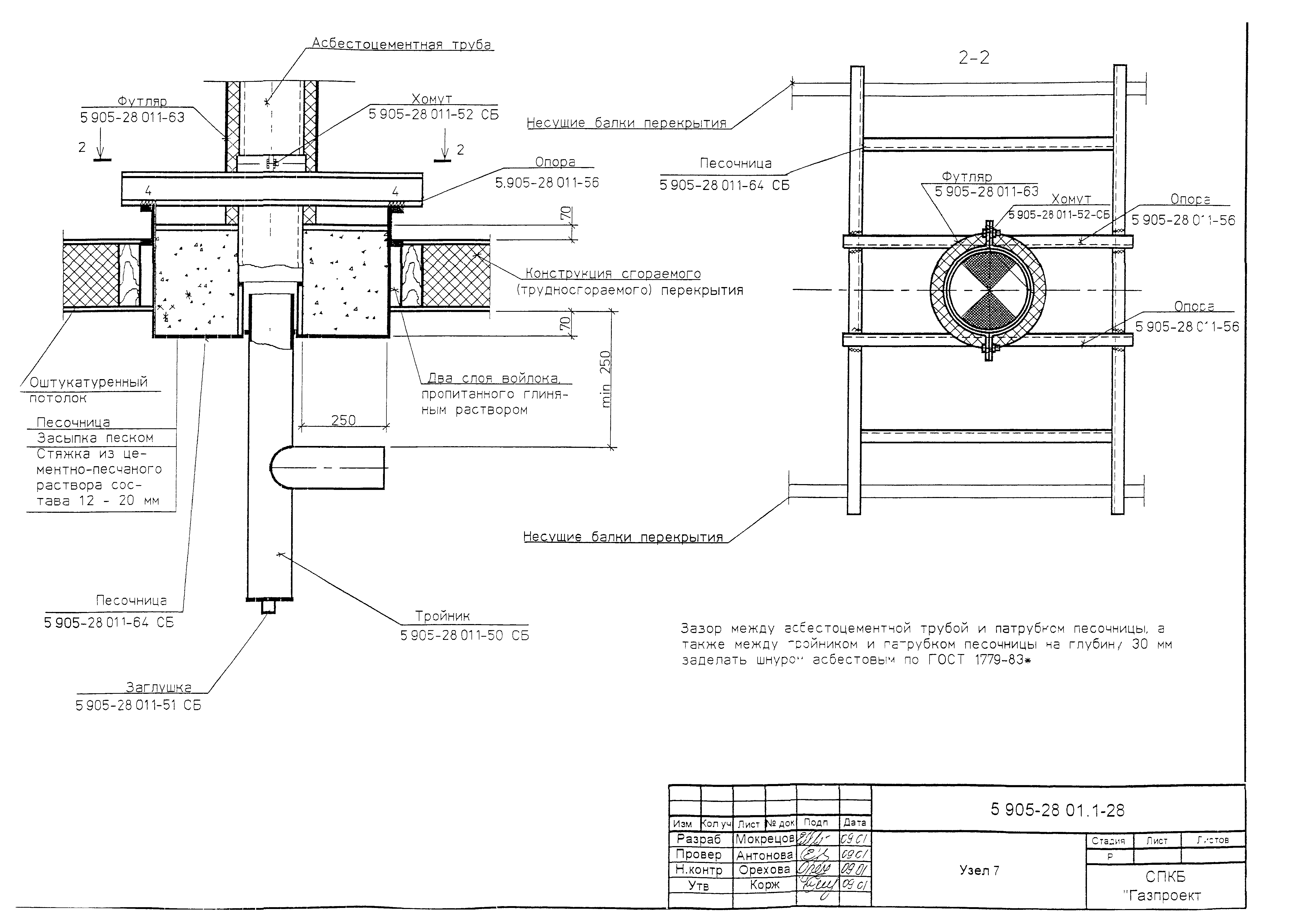
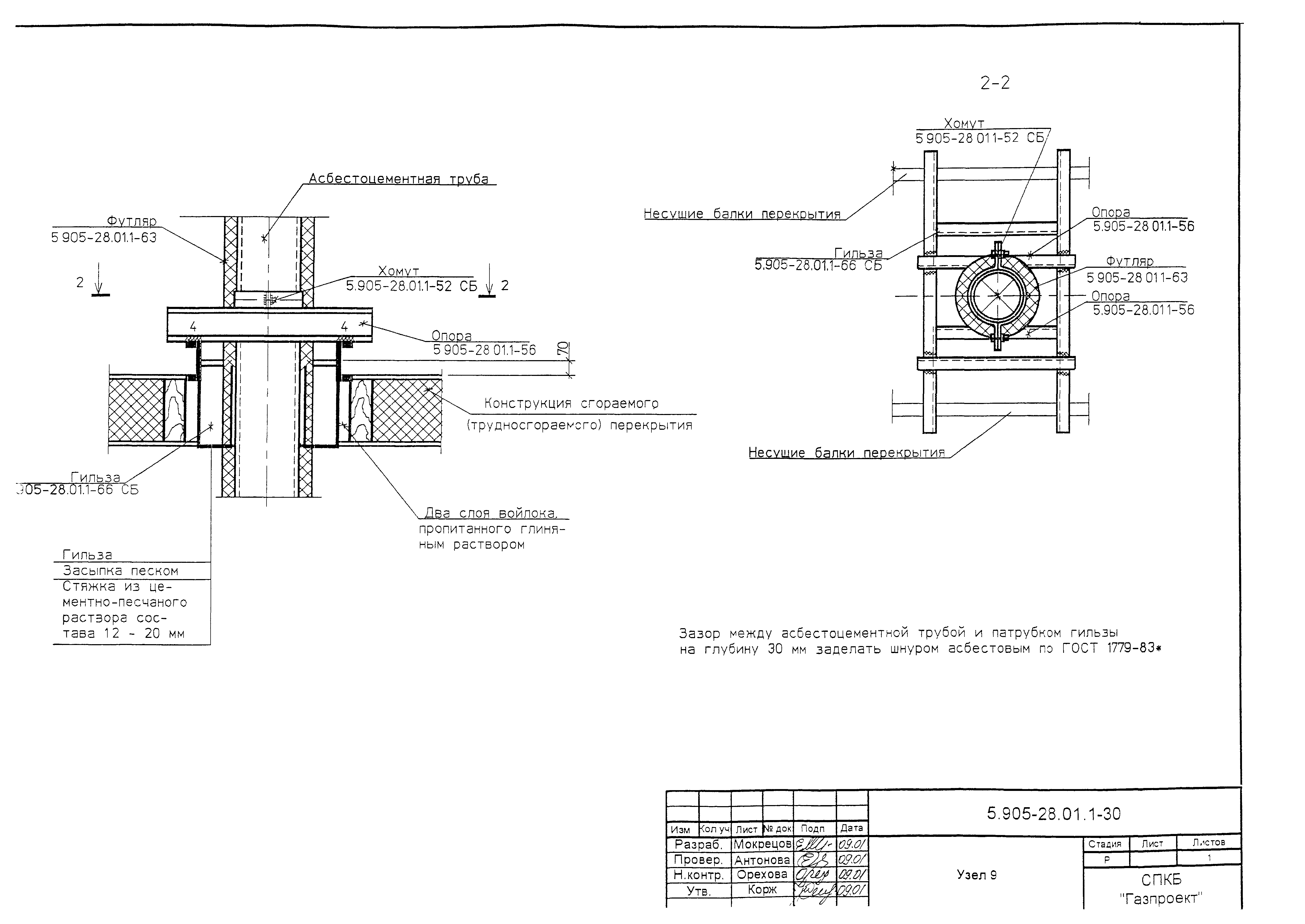
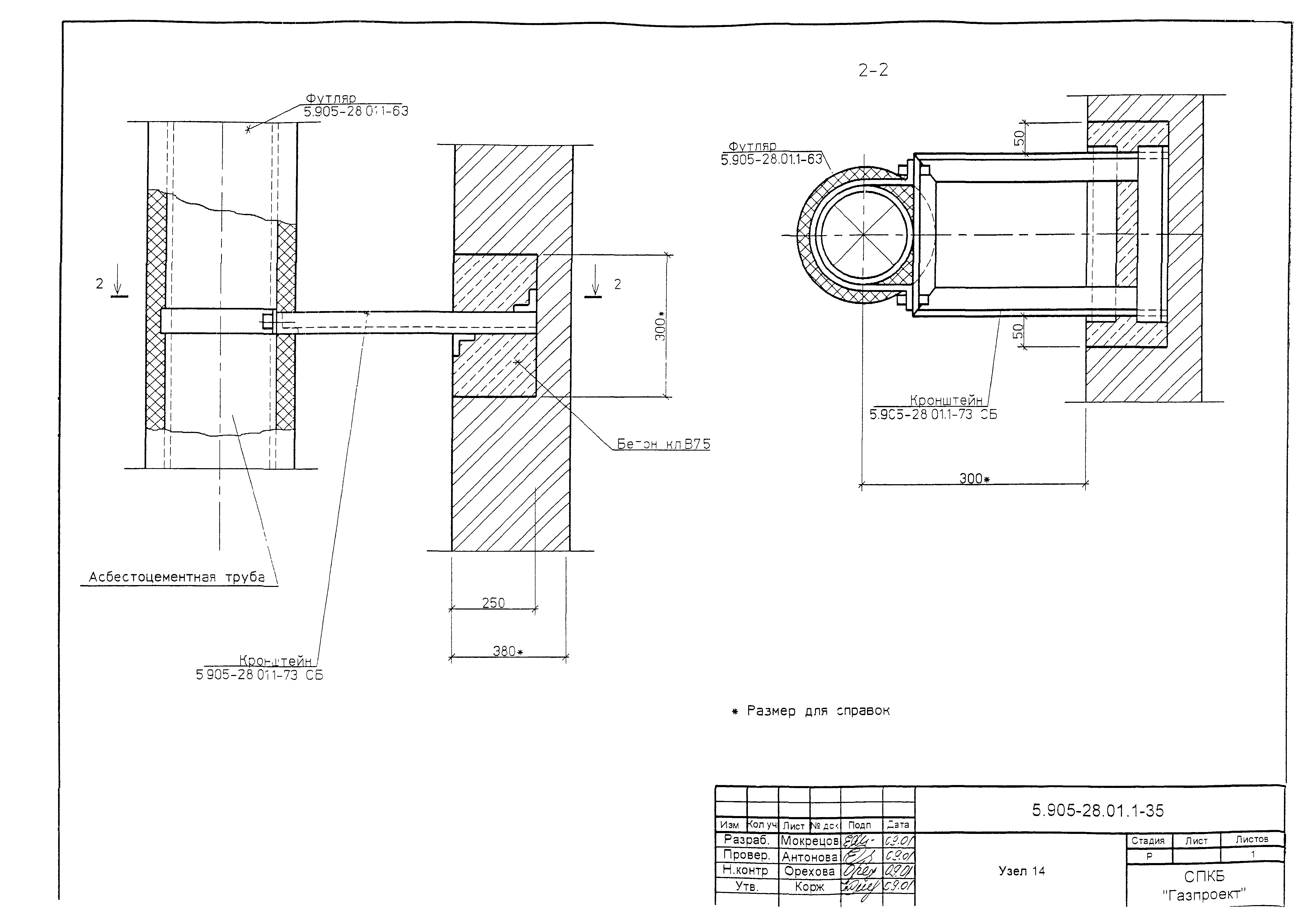
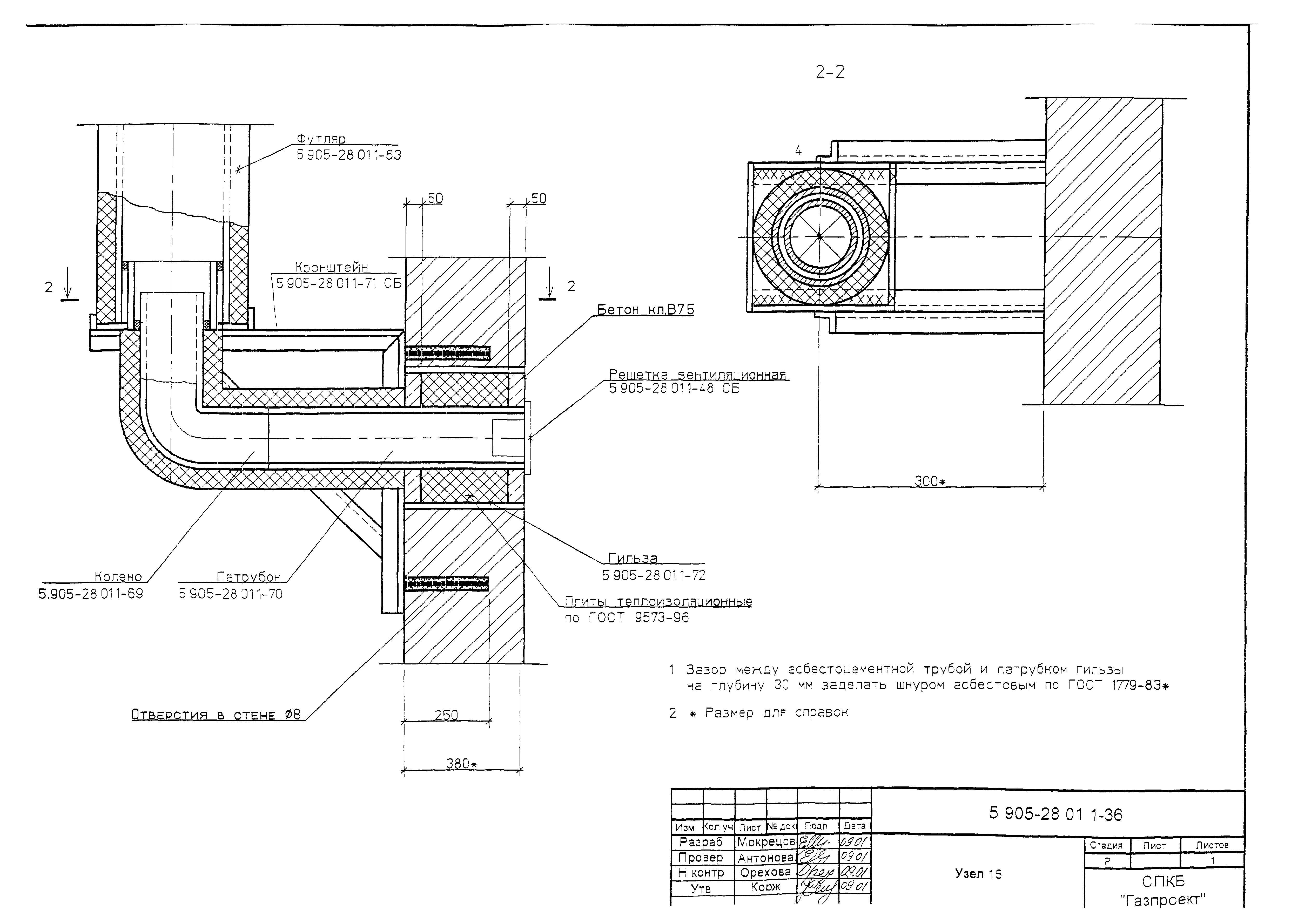
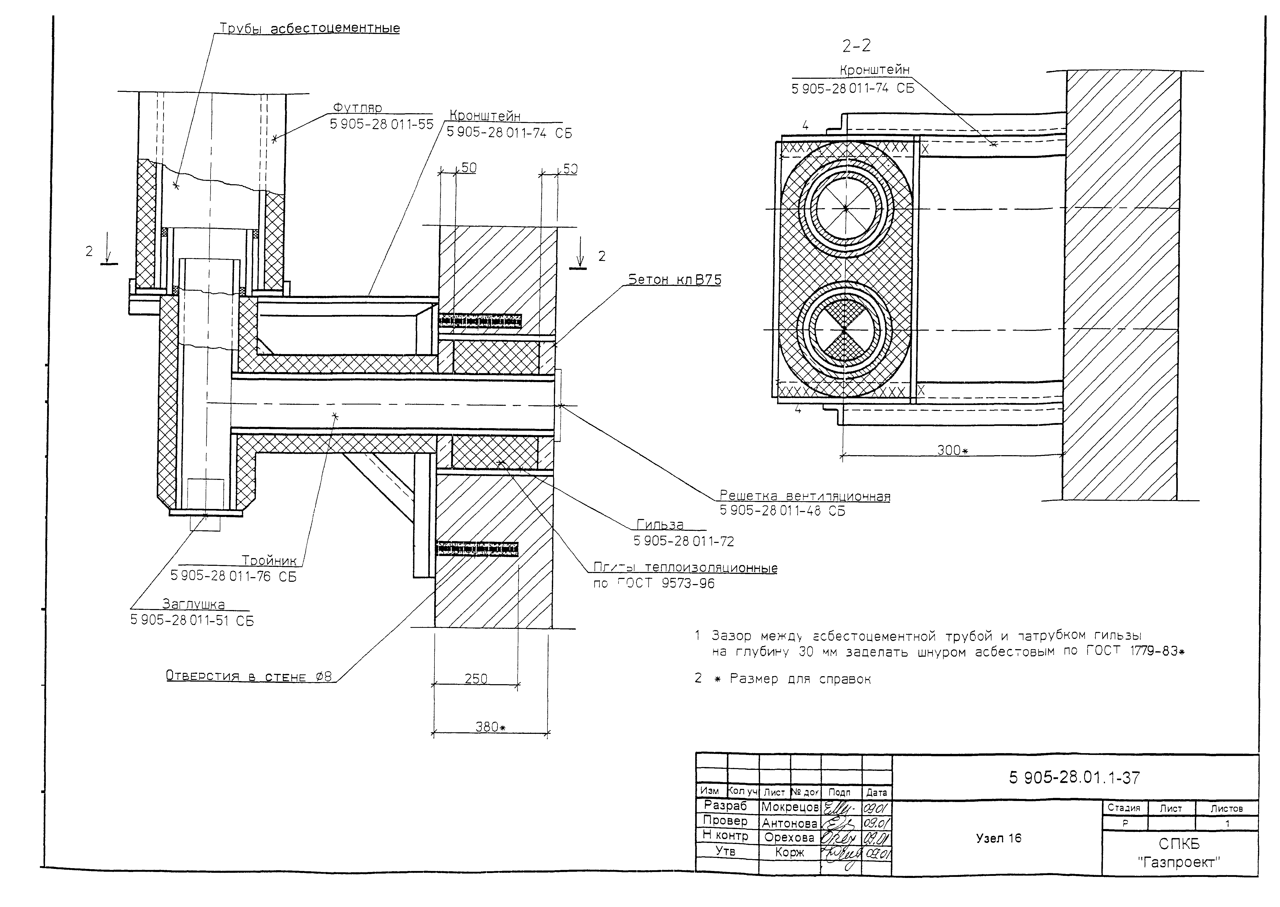
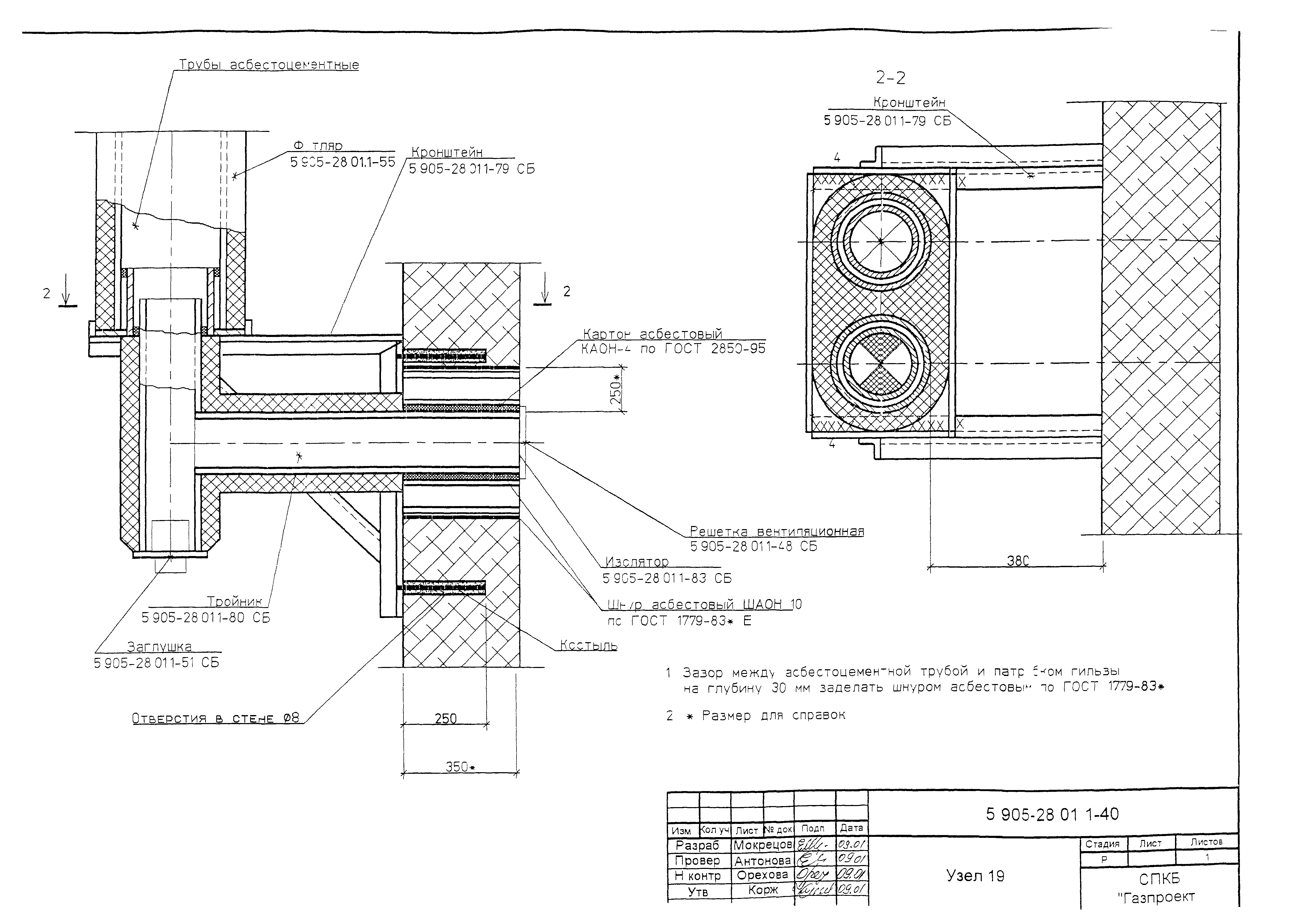
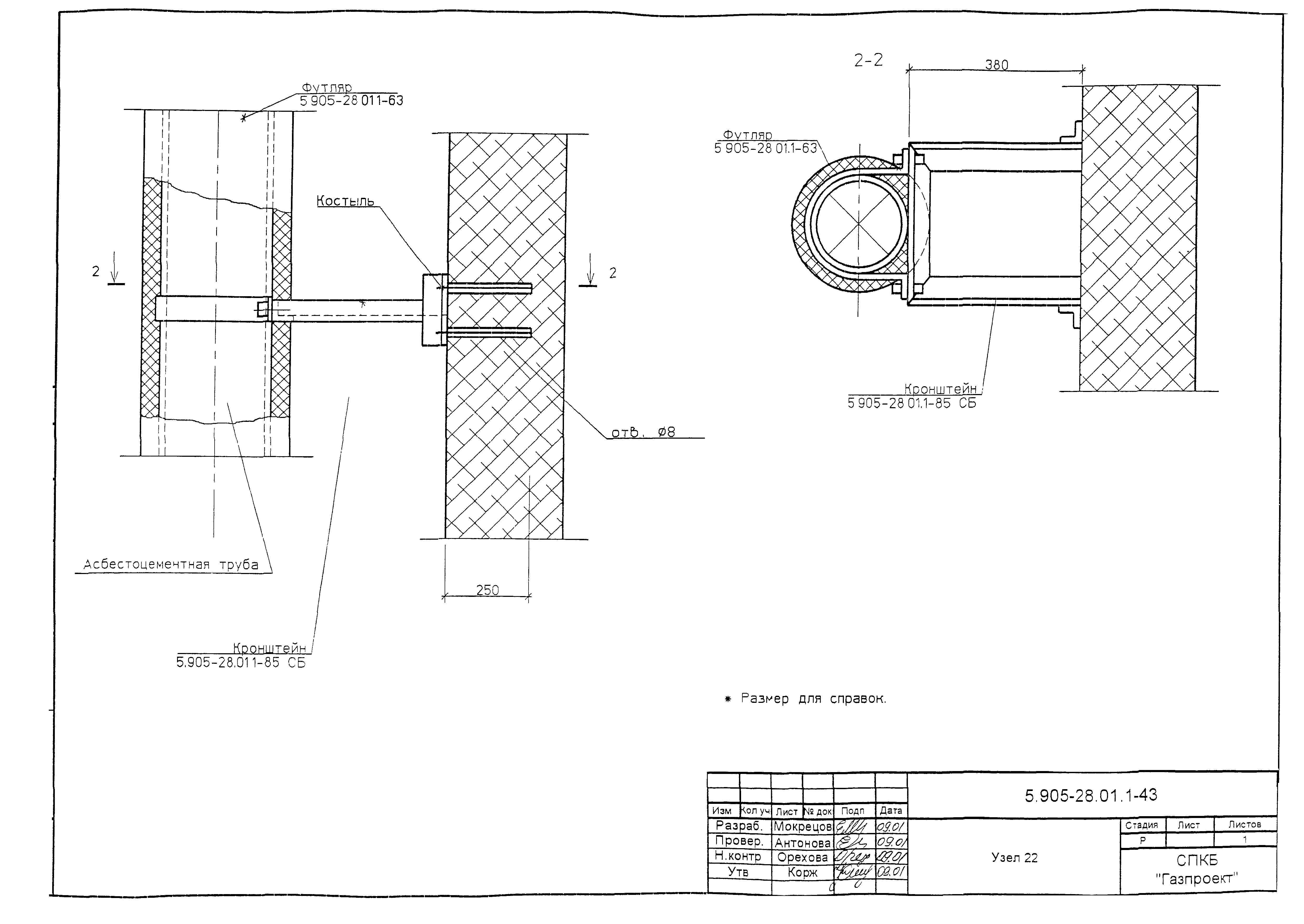
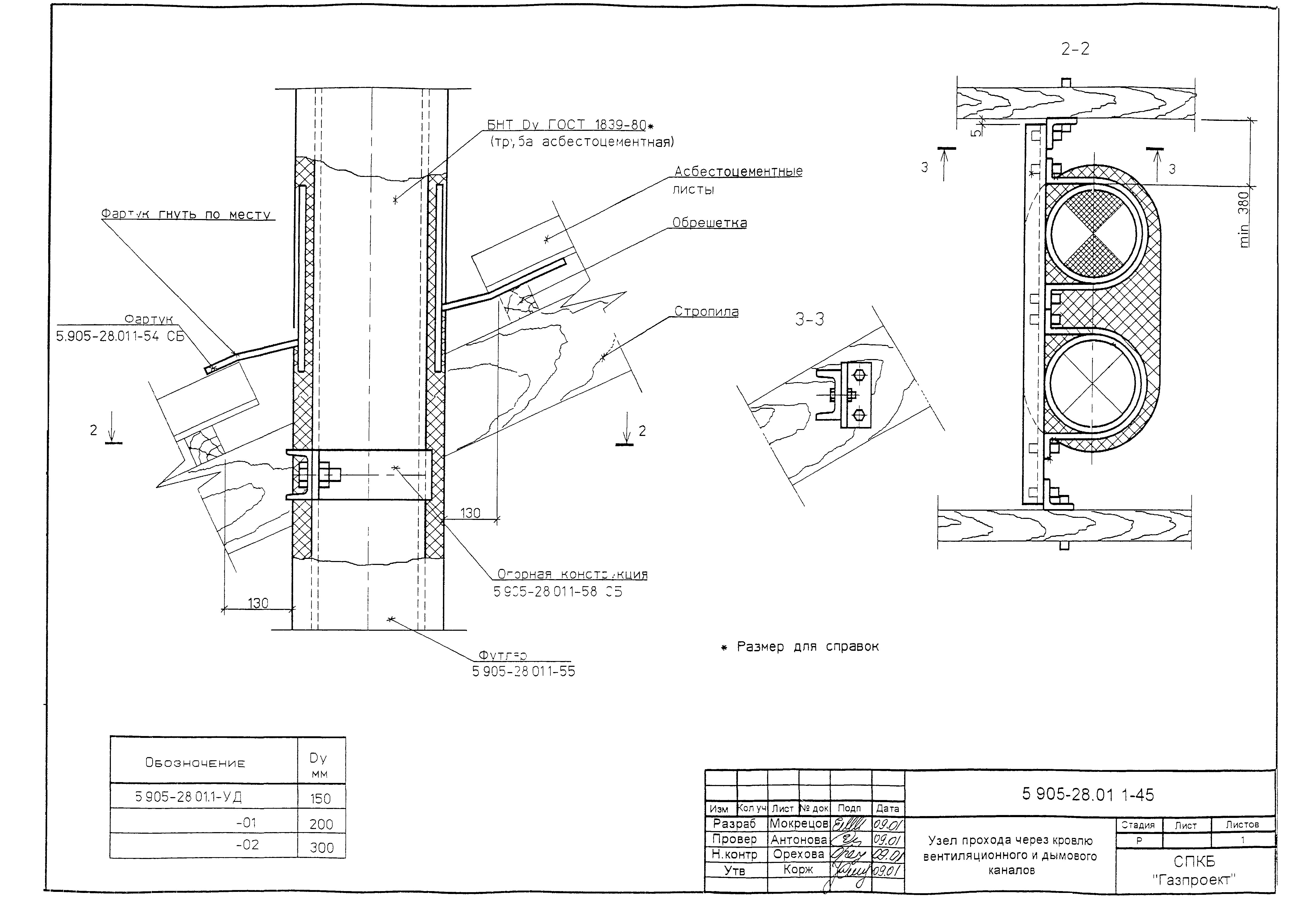
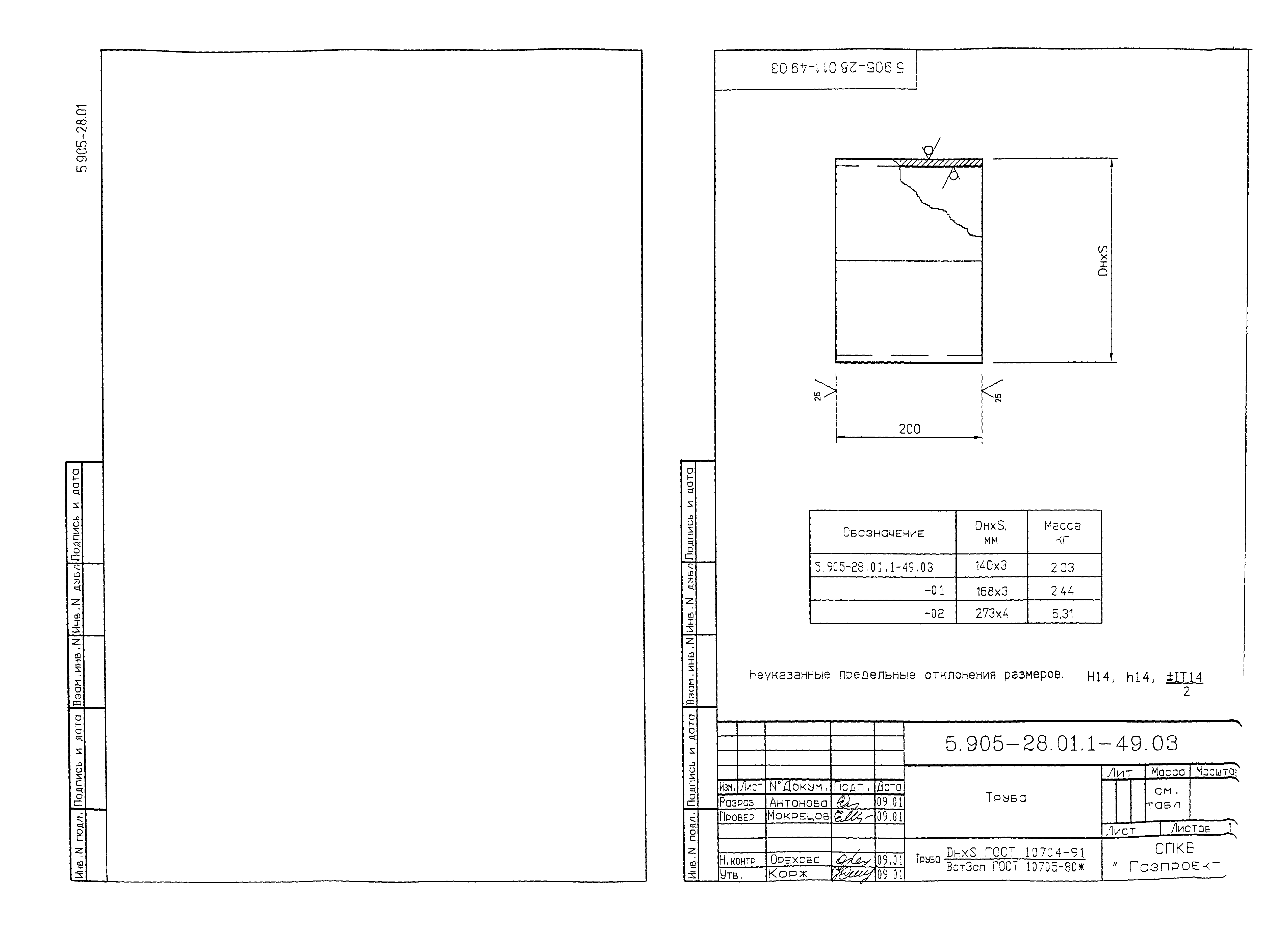
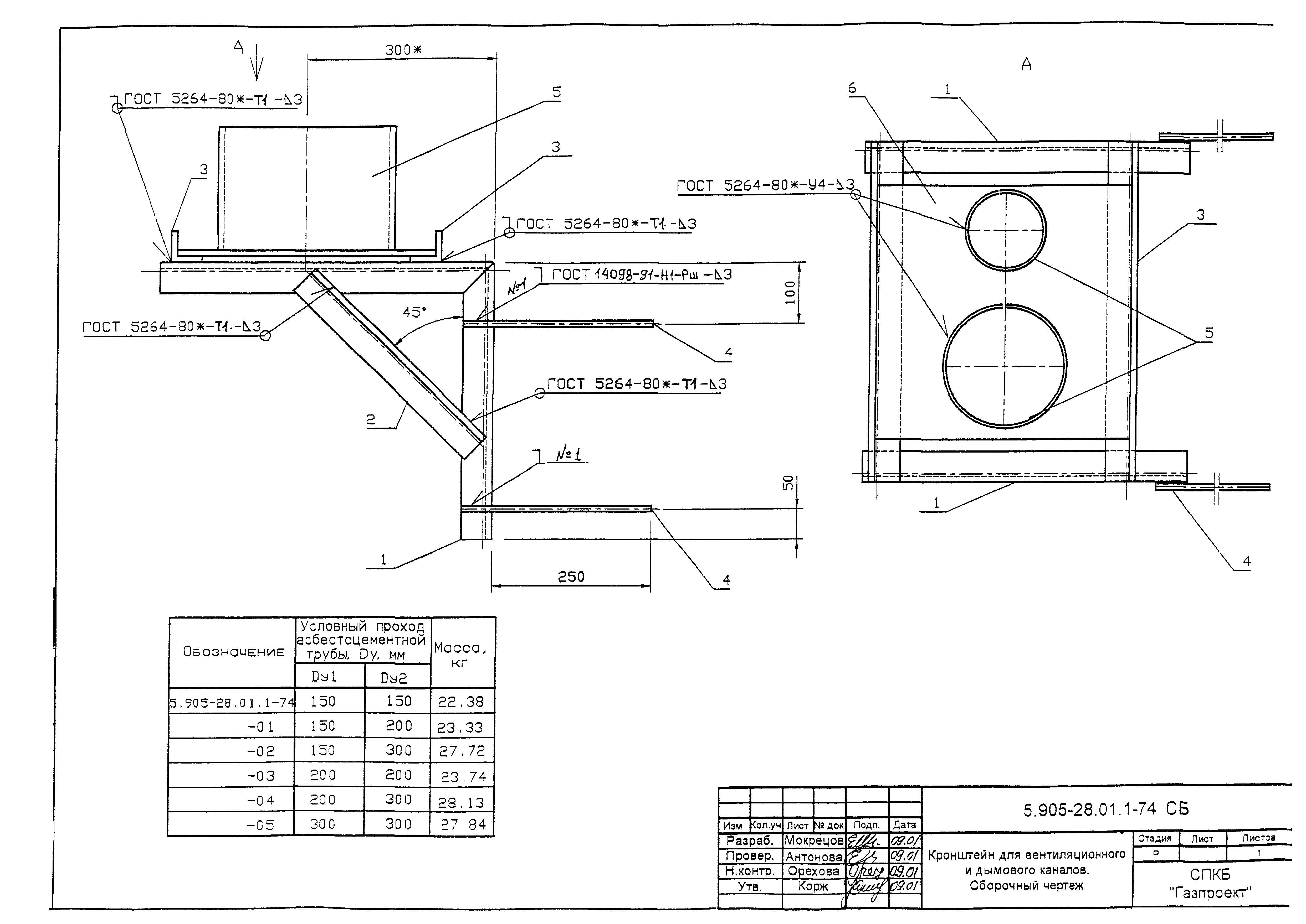
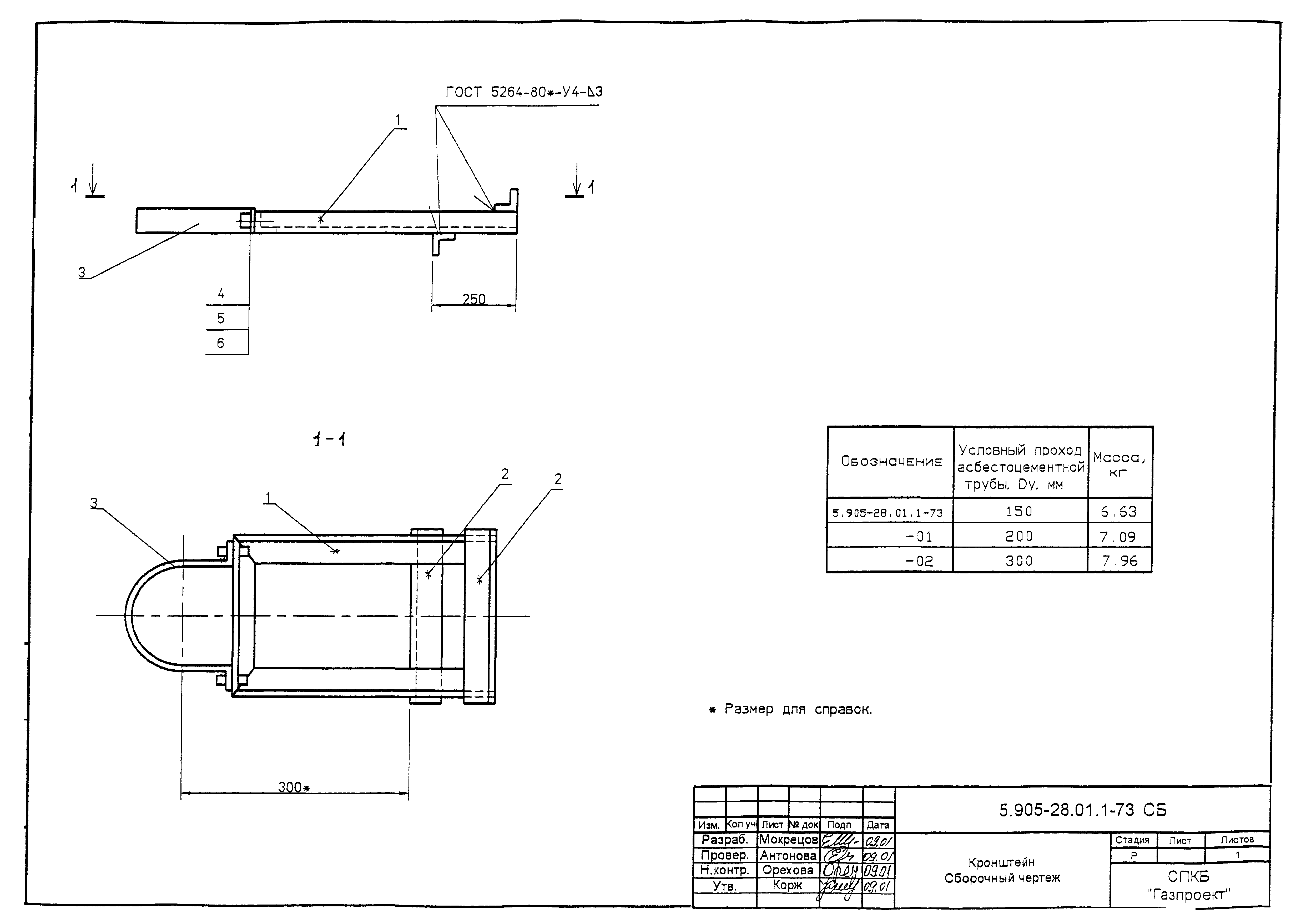
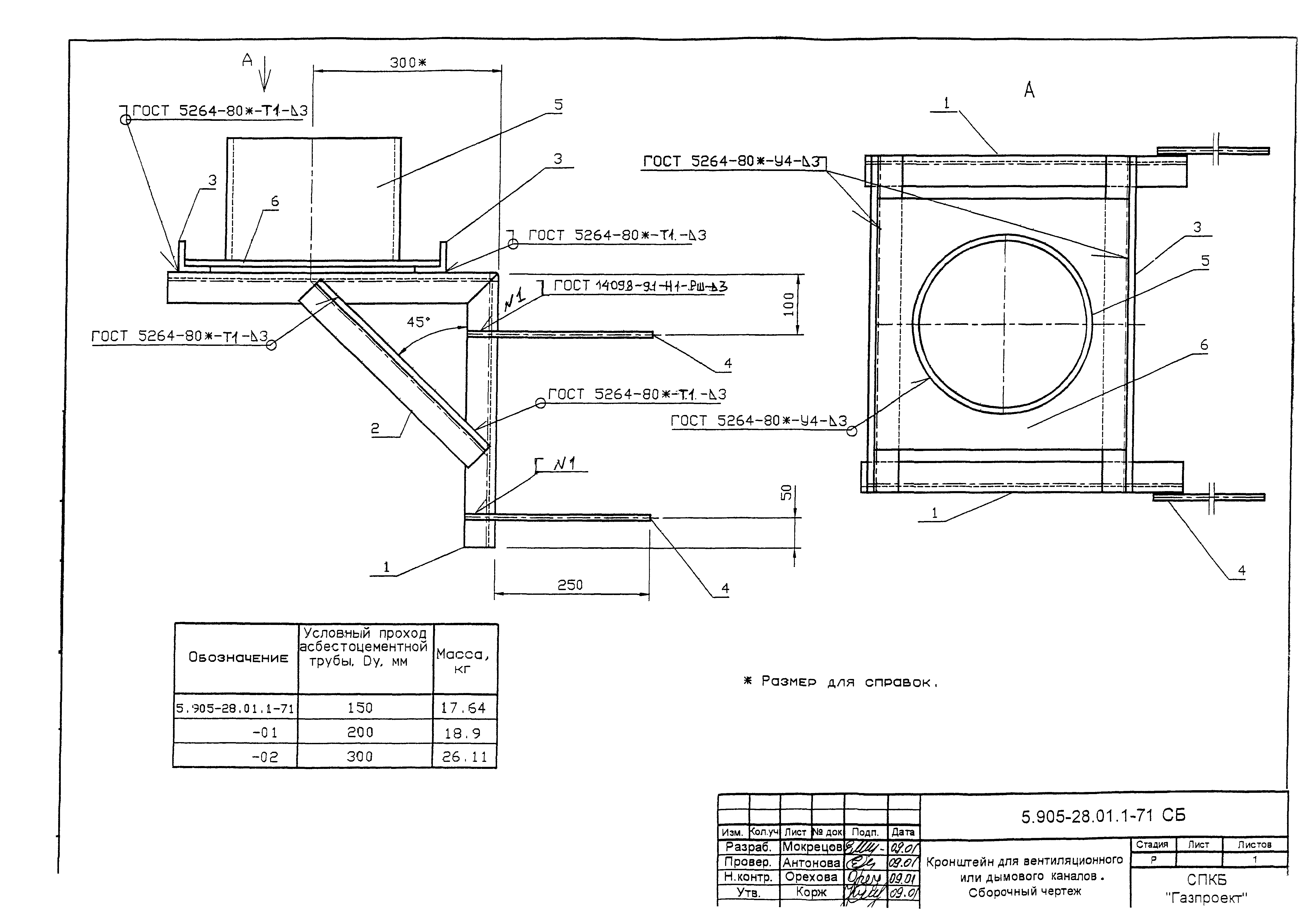
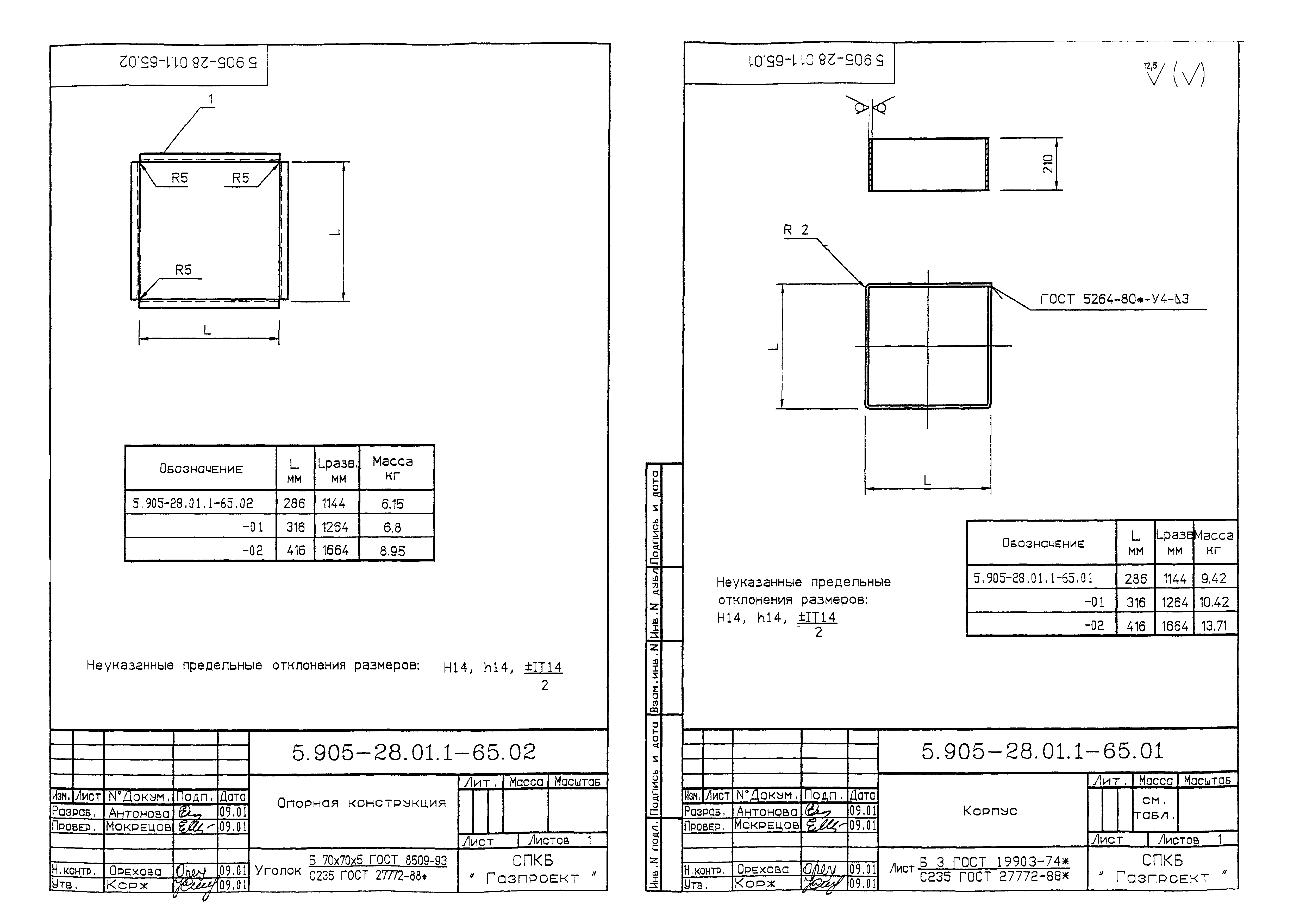
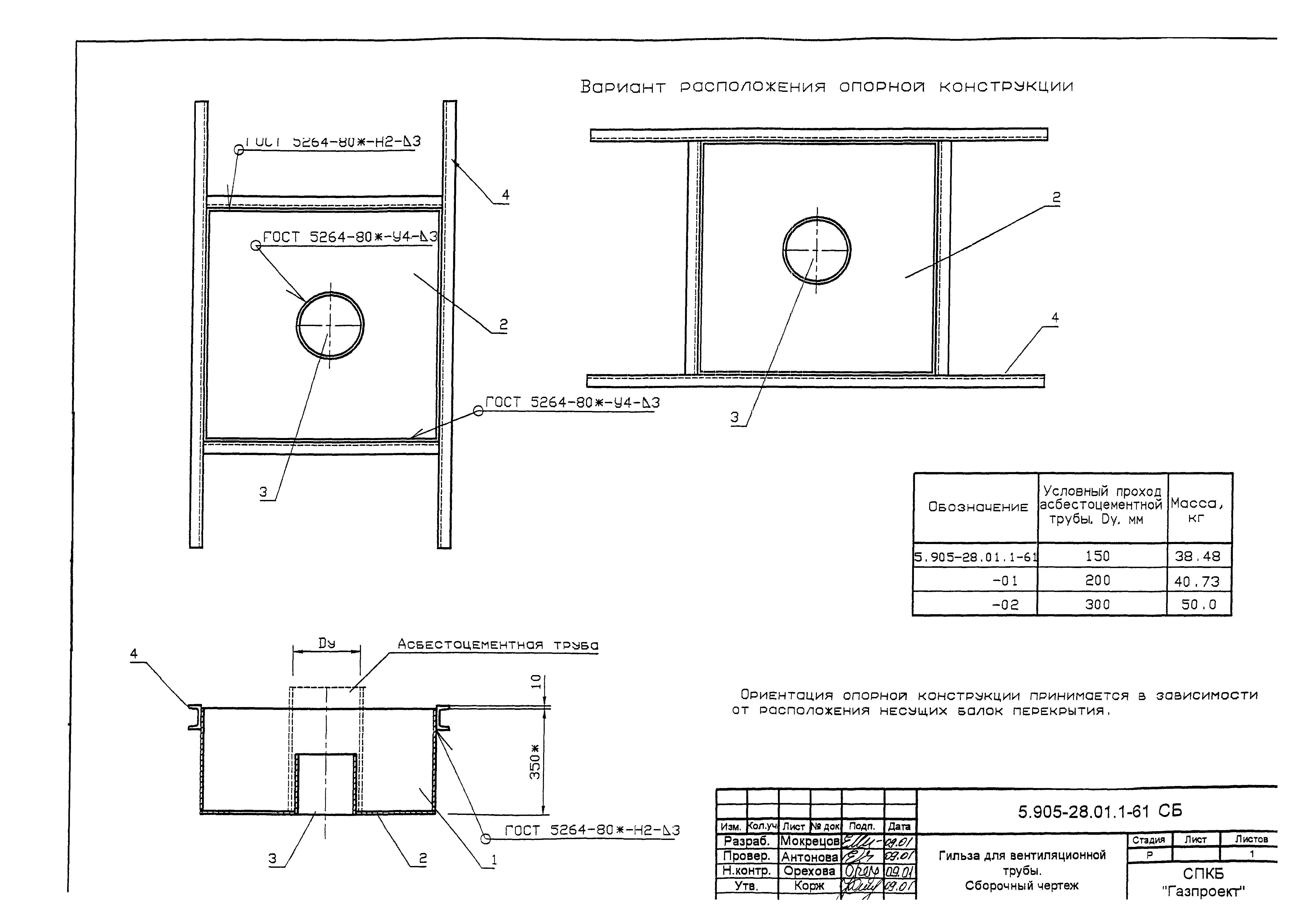
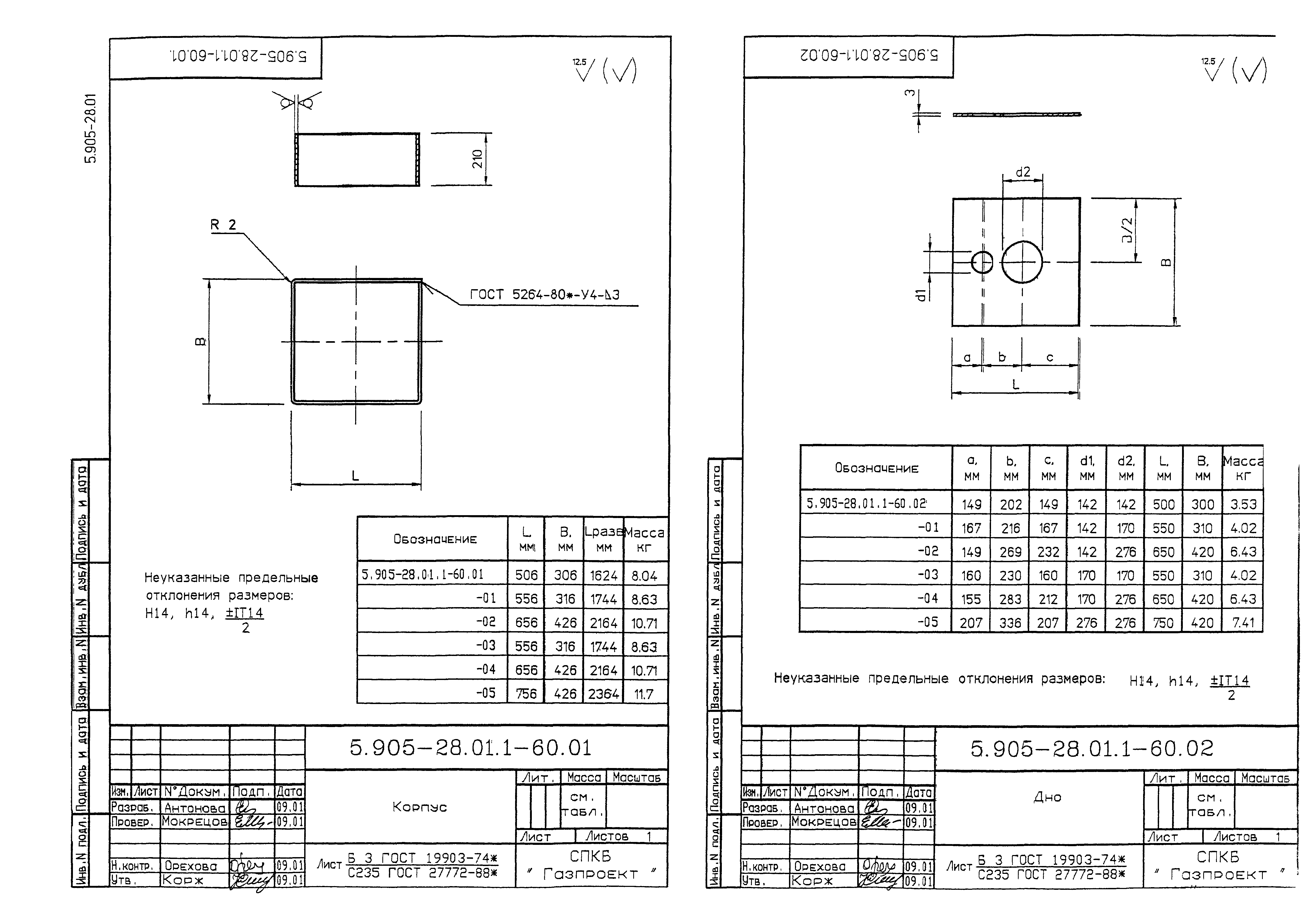
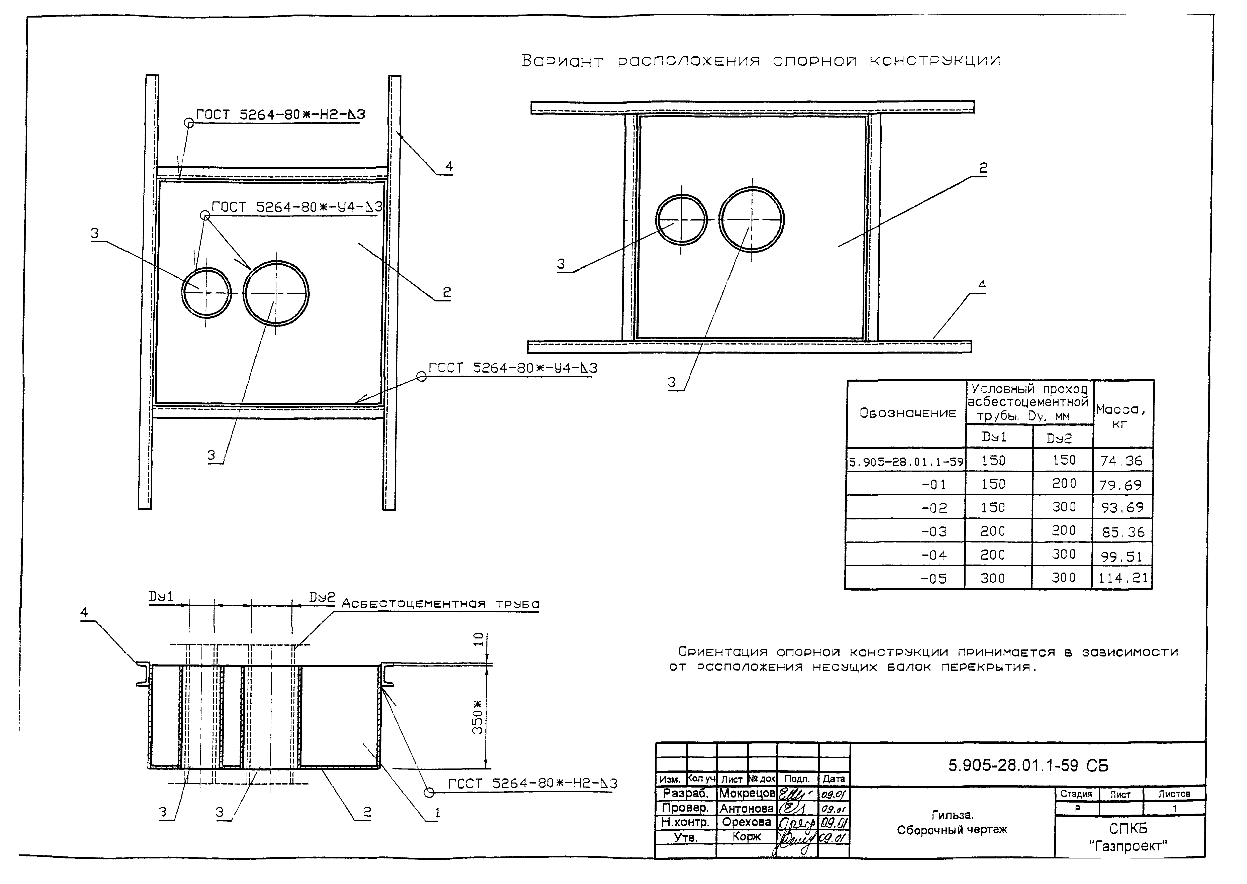
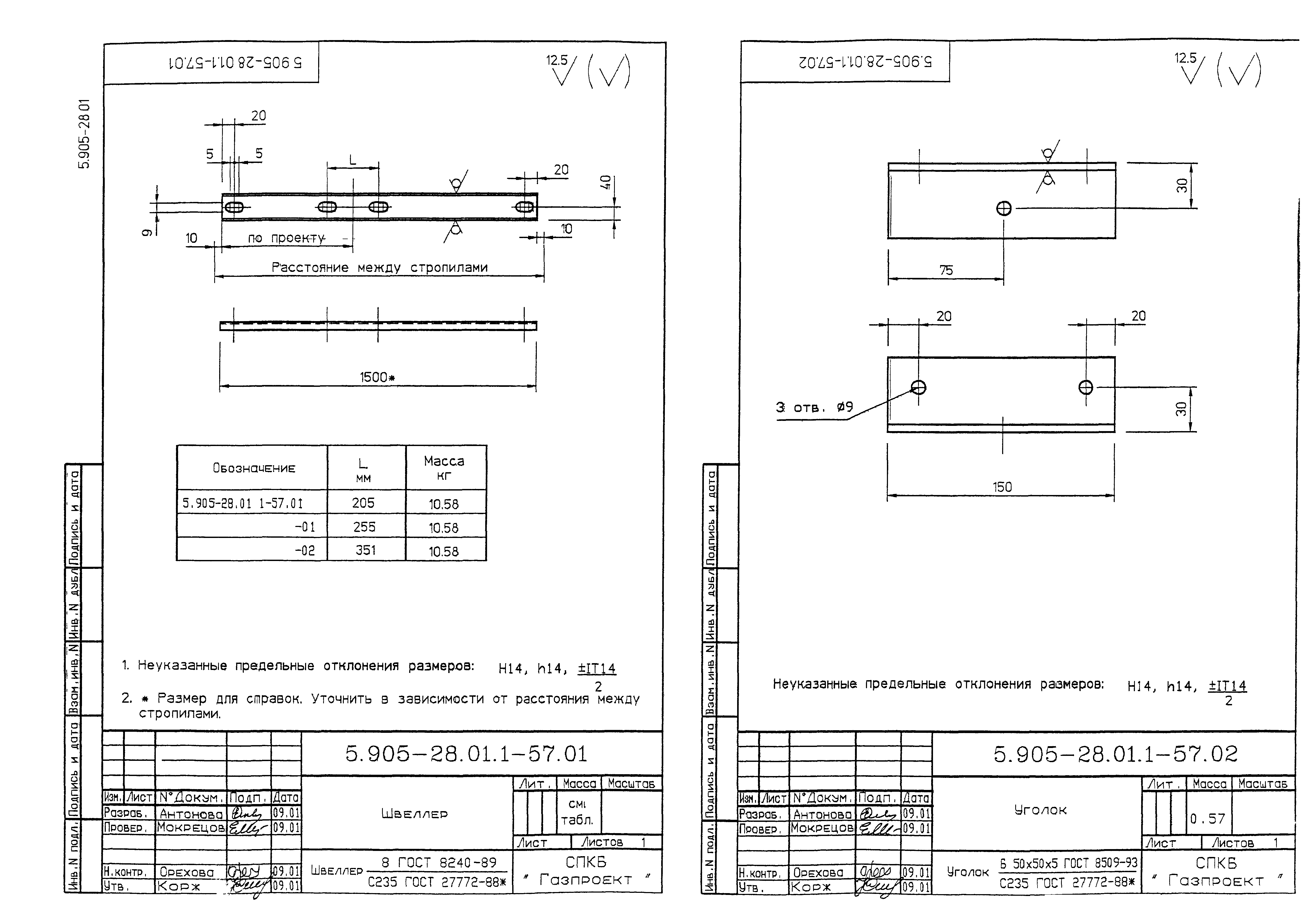
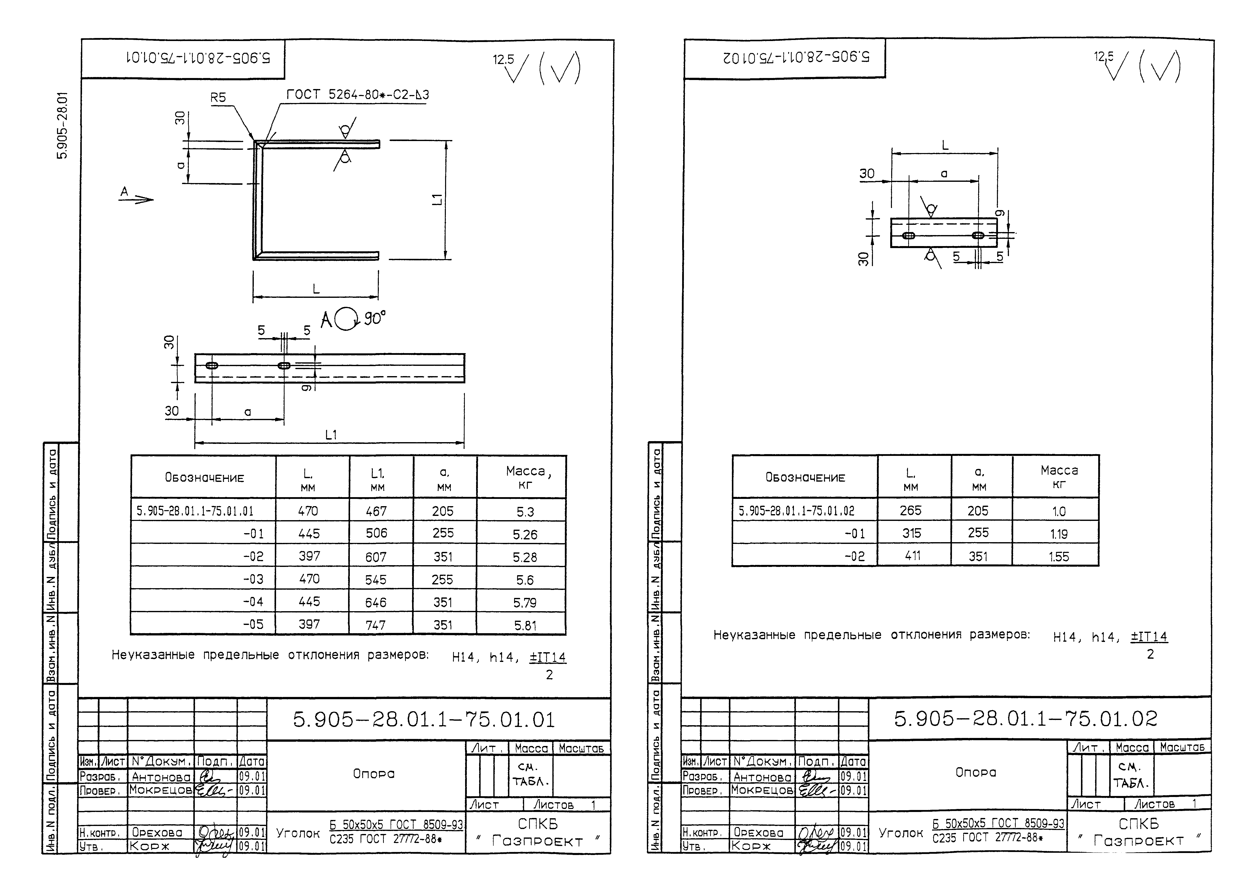
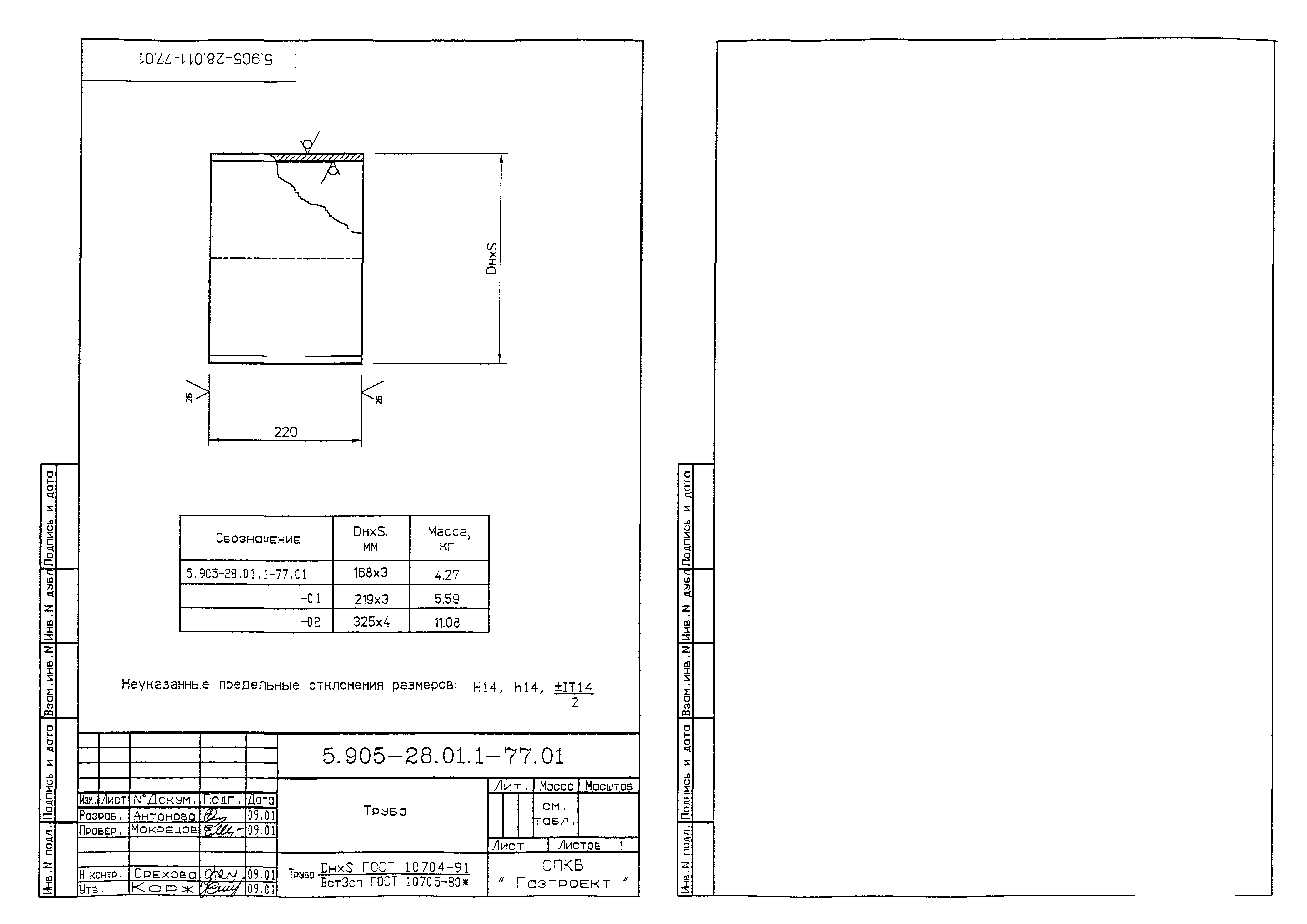
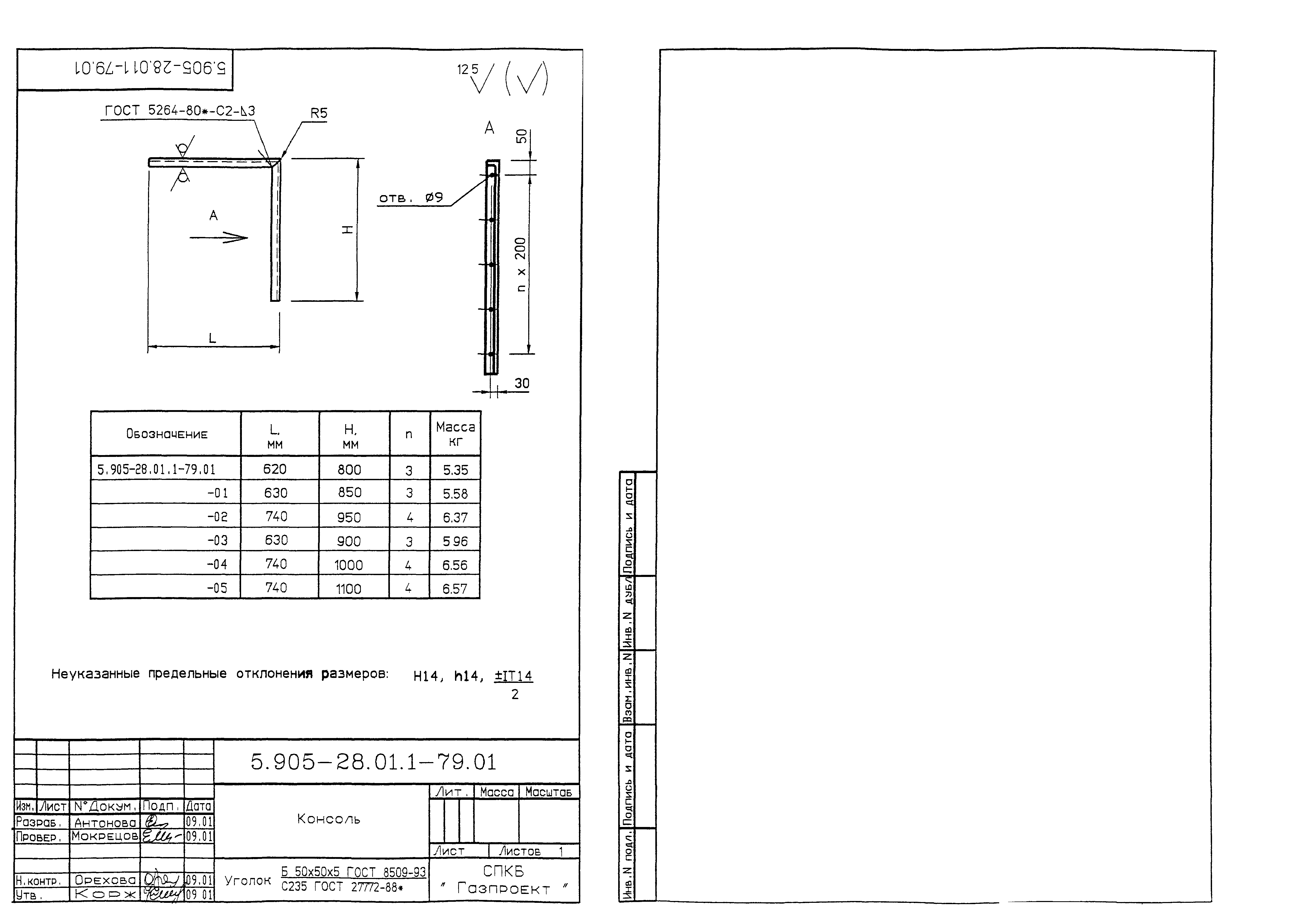
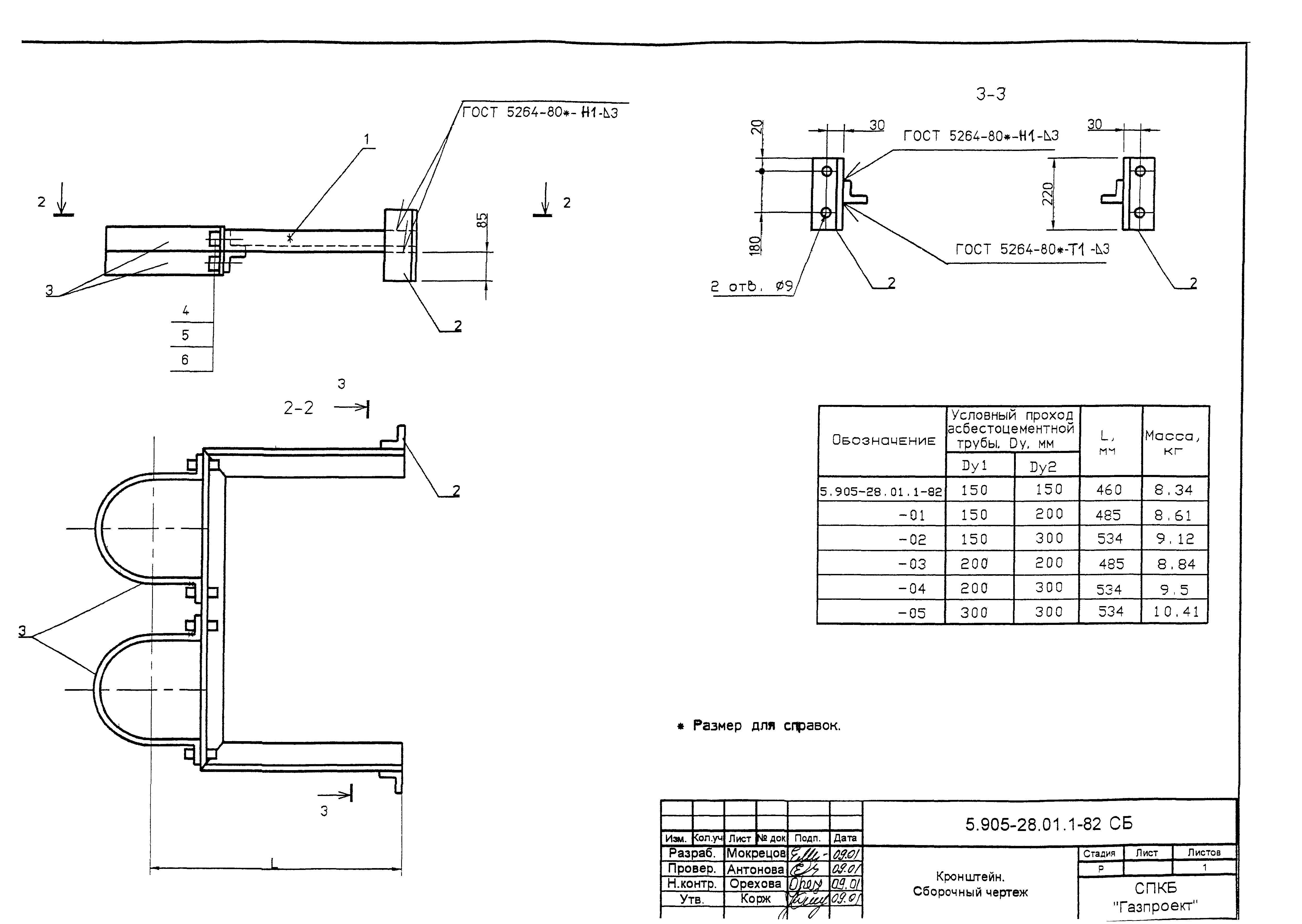
| Оглавление: | 5.905-28.01.1-ПЗ Пояснительная записка 5.905-28.01.1-1 Одноэтажное здание. Дымовой и вентиляционный каналы с выходом через перекрытие 5.905-28.01.1-2 Одноэтажное здание. Вентиляционный канал с выходом через перекрытие 5.905-28.01.1-3 Одноэтажное здание. Дымовой канал с выходом через перекрытие 5.905-28.01.1-4 Одноэтажное здание с цокольным (подвальным) этажом. Дымовой и вентиляционный каналы с выходом через перекрытие 5.905-28.01.1-5 Одноэтажное здание с цокольным (подвальным) этажом. Вентиляционный канал с выходом через перекрытие 5.905-28.01.1-6 Одноэтажное здание с цокольным (подвальным) этажом. Дымовой канал с выходом через перекрытие 5.905-28.01.1-7 Двухэтажное здание. Дымовой и вентиляционный каналы с выходом через перекрытие 5.905-28.01.1-8 Двухэтажное здание. Вентиляционньй канал с выходом через перекрытие 5.905-28.01.1-9 Двухэтажное здание. Дымовой канал с выходом через перекрытие 5.905-28.01.1-10 Двухэтажное здание с цокольным (подвальным) этажом. Дымовой и вентиляционный канал с выходом через перекрытие 5.905-28.01.1-11 Двухэтажное здание с цокольным (подвальным) этажом. Вентиляционный канал с выходом через перекрытие 5.905-28.01.1-12 Двухэтажное здание с цокольным (подвальным) этажом. Дымовой канал с выходом через перекрытие 5.905-28.01.1-13 Одноэтажное здание. Дымовой и вентиляционный каналы с выходом через стену 5.905-28.01.1-14 Одноэтажное здание. Вентиляционный канал с выходом через стену 5.905-28.01.1-15 Одноэтажное здание. Дымовой канал с выходом через стену 5.905-28.01.1-16 Двухэтажное здание. Дымовой и вентиляционный каналы с выходом через стену 5.905-28.01.1-17 Двухэтажное здание. Вентиляционный канал с выходом через стену 5.905-28.01.1-18 Двухэтажное здание. Дымовой канал снаружи кирпичного здания 5.905-28.01.1-19 Одноэтажное здание. Дымовой и вентиляционный каналы с выходом через стему из сгораемых материалов 5.905-28.01.1-20 Одноэтажное здание. Вентиляционный канал с выходом через стену из сгораемых материалов 5.905-28.01.1-21 Одноэтажное здание. Дымовой канал с выходом через стену из сгораемьх материалов 5.905-28.01.1-22 Узел 1 5.905-28.01.1-23 Узел 2 5.905-28.01.1-24 Узел 3 5.905-28.01.1-25 Узел 4 5.905-28.01.1-26 Узел 5 5.905-28.01.1-27 Узел 6 5.905-28.01.1-28 Узел 7 5.905-28.01.1-29 Узел 8 5.905-28.01.1-30 Узел 9 5.905-28.01.1-31 Узел 10 5.905-28.01.1-32 Узел 11 5.905-28.01.1-33 Узел 12 5.905-28.01.1-34 Узел 13 5.905-28.01.1-35 Узел 14 5.905-28.01.1-36 Узел 15 5.905-28.01.1-37 Узел 16 5.905-28.01.1-38 Узел 17 5.905-28.01.1-39 Высота оголовка каналов над кровлей. Узел стыковки асбестоцементных труб. Узел 18 5.905-28.01.1-40 Узел 19 5.905-28.01.1-41 Узел 20 5.905-28.01.1-42 Узел 21 5.905-28.01.1-43 Узел 22 5.905-28.01.1-44 Узел 23 5.905-28.01.1-45 Узел прохода через кровлю вентиляционного и дымового каналов 5.905-28.01.1-46 Узел прохода через кровлю вентиляционного и дымового каналов 5.905-28.01.1-47СБ Узел прохода через кровлю вентиляционного или дымового каналов 5.905-28.01.1-48СБ Решетка вентиляционная. Сборочный чертеж 5.905-28.01.1-48 Решетка вентиляционная 5.905-28.01.1-48.01 Цилиндр 5.905-28.01.1-49СБ Песочница. Сборочный чертеж 5.905-28.01.1-49 Песочница 5.905-28.01.1-49.01 Корпус 5.905-28.01.1-49.02 Дно 5.905-28.01.1-49.03 Труба 5.905-28.01.1-49.04СБ Опорная конструкция. Сборочный чертеж 5.905-28.01.1-49.04 Опорная конструкция 5.905-28.01.1-50СБ Тройник. Сборочный чертеж 5.905-28.01.1-50 Тройник 5.905-28.01.1-50.01 Труба 5.905-28.01.1-50.02 Труба 5.905-28.01.1-51СБ Заглушка. Сборочный чертеж 5.905-28.01.1-51 Заглушка 5.905-28.01.1-51.01 Цилиндр 5.905-28.01.1-51.02 Рукоятка 5.905-28.01.1-52СБ Хомут на асбестоцементные трубы. Сборочный чертеж 5.905-28.01.1-52 Хомут на асбестоцементные трубы 5.905-28.01.1-52.01 Полухомут 5.905-28.01.1-53СБ Изолятор для дымовой трубы. Сборочный чертеж 5.905-28.01.1-53 Изолятор для дымовой трубы 5.905-28.01.1-54СБ Фартук для двух труб. Сборочный чертеж 5.905-28.01.1-54 Фартук для двух труб 5.905-28.01.1-54.01 Ограждающий лист 5.905-28.01.1-54.02 Гильза 5.905-28.01.1-55 Футляр 5.905-28.01.1-56 Опора 5.905-28.01.1-57СБ Опорная конструкция. Сборочный чертеж 5.905-28.01.1-57 Опорная конструкция 5.905-28.01.1-57.01 Швеллер 5.905-28.01.1-57.02 Уголок 5.905-28.01.1-57.03 Полухомут 5.905-28.01.1-58СБ Опорная конструкция. Сборочный чертеж 5.905-28.01.1-58 Опорная конструкция 5.905-28.01.1-58.01 Швеллер 5.905-28.01.1-59СБ Гильза. Сборочный чертеж 5.905-28.01.1-59 Гильза 5.905-28.01.1-59.01 Дно 5.905-28.01.1-59.02 Труба 5.905-28.01.1-60СБ Песочница. Сборочный чертеж 5.905-28.01.1-60 Песочница 5.905-28.01.1-60.01 Корпус 5.905-28.01.1-60.02 Дно 5.905-28.01.1-60.03 Опорная конструкция 5.905-28.01.1-61СБ Гильза для вентиляционной трубы. Сборочный чертеж 5.905-28.01.1-61 Гильза для вентиляционной трубы 5.905-28.01.1-61.01 Корпус 5.905-28.01.1-61.02 Дно 5.905-28.01.1-61.03СБ Опорная конструкция. Сборочный чертеж 5.905-28.01.1-61.03 Опорная конструкция 5.905-28.01.1-62 Фартук для одной трубы 5.905-28.01.1-63 Футляр 5.905-28.01.1-64СБ Песочница для дымовой трубы. Сборочный чертеж 5.905-28.01.1-64 Песочница для дымовой трубы 5.905-28.01.1-64.01 Корпус 5.905-28.01.1-64.02 Дно 5.905-28.01.1-64.03СБ Опорная конструкция. Сборочный чертеж 5.905-28.01.1-64.03 Опорная конструкция 5.905-28.01.1-65СБ Гильза для вентиляционной трубы. Сборочный чертеж 5.905-28.01.1-65 Гильза для вентиляционной трубы 5.905-28.01.1-65.01 Корпус 5.905-28.01.1-65.02 Опорная конструкция 5.905-28.01.1-65СБ Гильза для вентиляционной трубы. Сборочный чертеж 5.905-28.01.1-66 Гильза для вентиляционной трубы 5.905-28.01.1-67СБ Гильза для дымовой трубы. Сборочный чертеж 5.905-28.01.1-67 Гильза для дымовой трубы 5.905-28.01.1-68СБ Гильза для дымовой трубы. Сборочный чертеж 5.905-28.01.1-68 Гильза для дымовой трубы 5.905-28.01.1-69 Колено 5.905-28.01.1-70 Патрубок 5.905-28.01.1-70СБ Кронштейн для вентиляционного или дымового каналов. Сборочный чертеж 5.905-28.01.1-71 Кронштейн для вентиляционного или дымового каналов 5.905-28.01.1-71.01 Консоль 5.905-28.01.1-72 Гильза 5.905-28.01.1-73СБ Кронштейн. Сборочный чертеж 5.905-28.01.1-73 Кронштейн 5.905-28.01.1-73.01 Консоль 5.905-28.01.1-74СБ Кронштейн для вентиляционного и дымового каналов. Сборочный чертеж 5.905-28.01.1-74 Кронштейн для вентиляционного и дымового каналов 5.905-28.01.1-74.01.00 Консоль 5.905-28.01.1-75.00СБ Кронштейн для вентиляционного и дымового каналов. Сборочный чертеж 5.905-28.01.1-75.00 Кронштейн для вентиляционного и дымового каналов 5.905-28.01.1-75.01.00СБ Консоль. Сборочный чертеж 5.905-28.01.1-75.01 Консоль 5.905-28.01.1-75.01.01.00 Опора 5.905-28.01.1-75.01.02.00 Опора 5.905-28.01.1-76.00СБ Тройник наружный. Сборочный чертеж 5.905-28.01.1-76 Тройник наружный 5.905-28.01.1-76.01.00 Труба 5.905-28.01.1-77.00СБ Гильза. Сборочный чертеж 5.905-28.01.1-77 Гильза 5.905-28.01.1-77.01.00 Труба 5.905-28.01.1-78.00СБ Гильза для вентиляционной или дымлвой трубы. Сборочный чертеж 5.905-28.01.1-78 Гильза для вентиляционной или дымлвой трубы 5.905-28.01.1-79.00СБ Кронштейн для вентиляционного и дымового каналов. Сборочный чертеж 5.905-28.01.1-79 Кронштейн для вентиляционного и дымового каналов 5.905-28.01.1-79.01.00 Консоль 5.905-28.01.1-80.00.СБ Тройник. Сборочный чертеж 5.905-28.01.1-80.00 Тройник 5.905-28.01.1-80.01.00 Труба 5.905-28.01.1-81.00 Патрубок 5.905-28.01.1-82.00СБ Кронштейн. Сборочный чертеж 5.905-28.01.1-82 Кронштейн 5.905-28.01.1-82.01.00СБ Консоль. Сборочный чертеж 5.905-28.01.1-82.01 Консоль 5.905-28.01.1-82.01.01.00 Опора 5.905-28.01.1-83.00СБ Изолятор. Сборочный чертеж 5.905-28.01.1-83 Изолятор 5.905-28.01.1-84СБ Кронштейн для вентиляционого или дымового каналов. Сборочный чертеж 5.905-28.01.1-84 Кронштейн для вентиляционого или дымового каналов 5.905-28.01.1-85.00СБ Кронштейн. Сборочный чертеж 5.905-28.01.1-85 Кронштейн 5.905-28.01.1-85.01.00 Консоль |
| Разработан: | ОАО СПКБ Газпроект -БТЦ |
| Утверждён: | 20.11.2001 Госстрой России (Russian Federation Gosstroy ВК-187/14) |
| Издан: | ГУП ЦПП (CPP GUP 2002 г. ) |



















































































































































