Скачать Типовые проектные решения 902-03-13 Альбом II. ЧертежиДата актуализации: 01.01.2021
|
| Обозначение: | Типовые проектные решения 902-03-13 |
| Обозначение англ: | 902-03-13 |
| Статус: | не определен законодательством |
| Название рус.: | Альбом II. Чертежи |
| Дата добавления в базу: | 01.09.2013 |
| Дата актуализации: | 01.01.2021 |
| Дата введения: | 20.02.1981 |
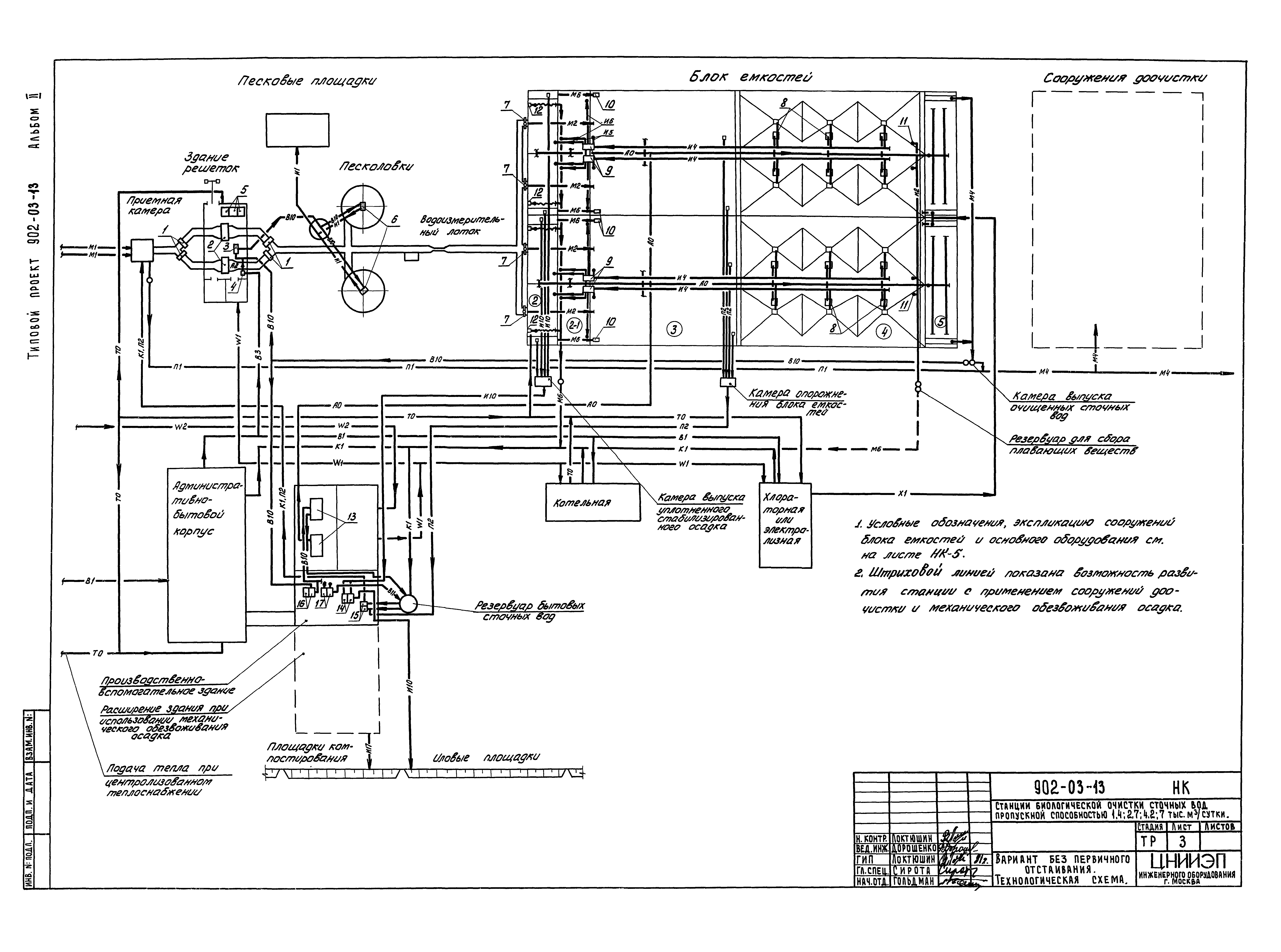
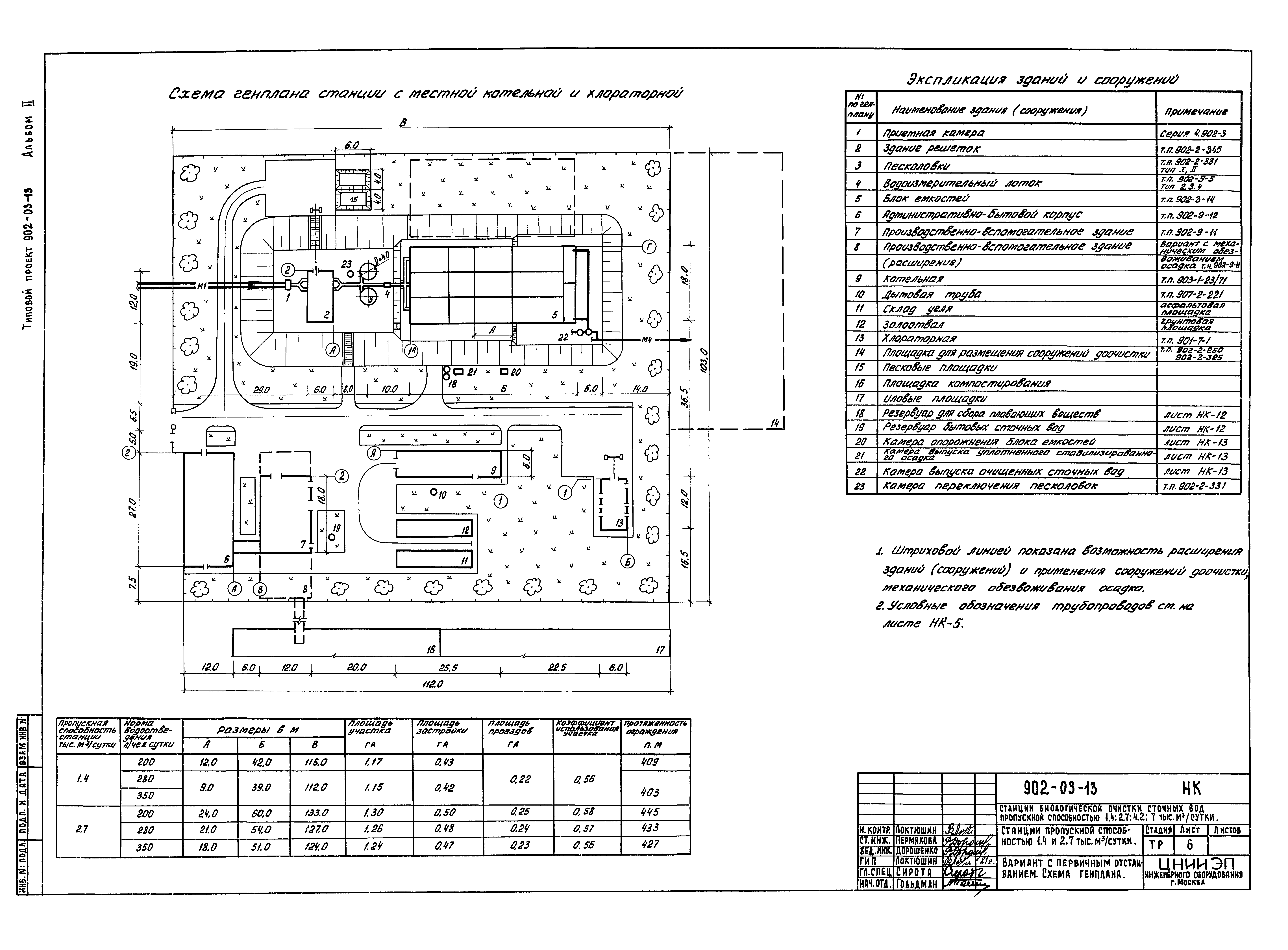
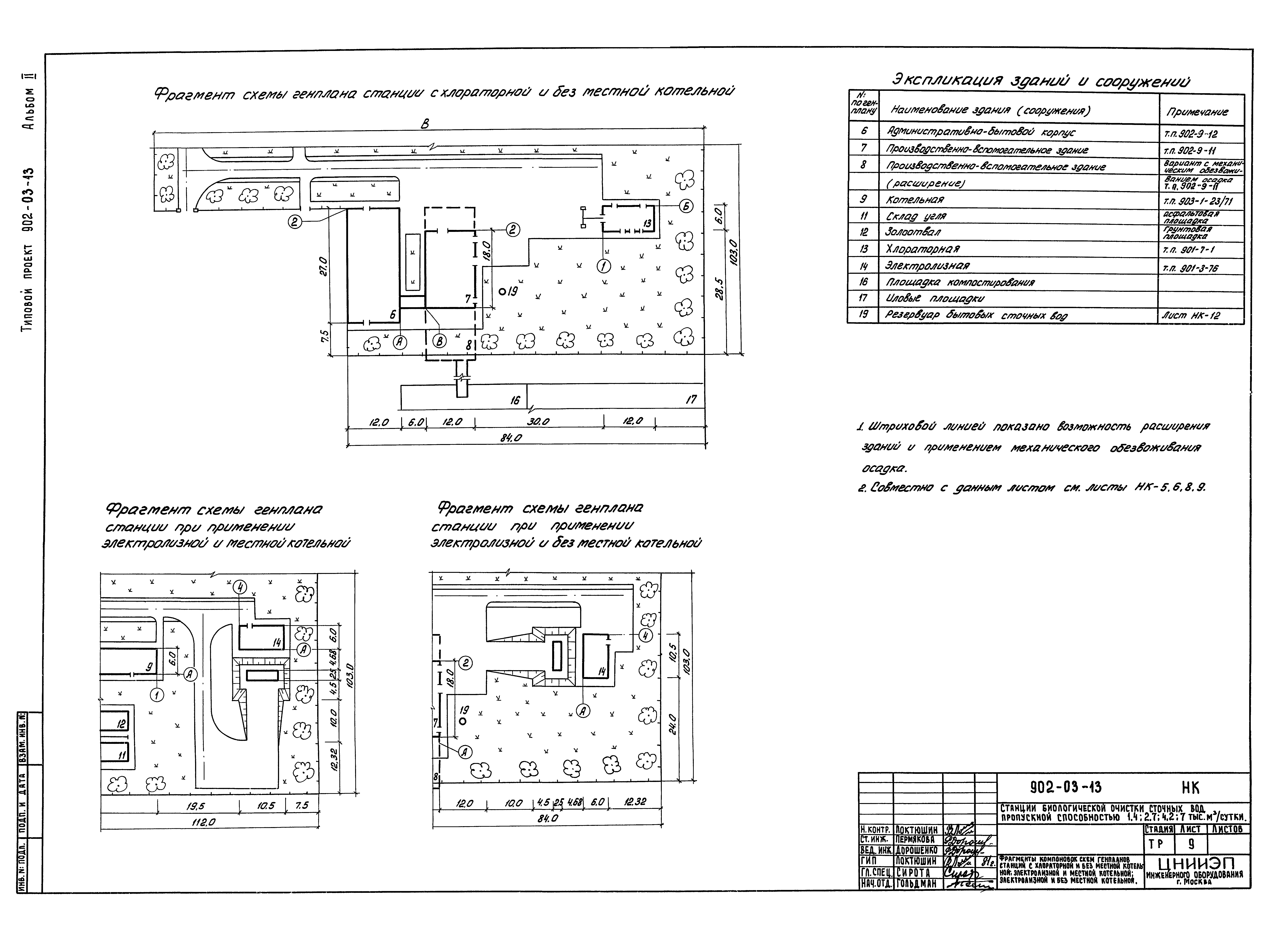
| Оглавление: | Содержание альбома Вариант с первичным отстаиванием. Технологическая схема Вариант без первичного отстаивания. Технологическая схема Вариант с первичным отстаиванием и сооружениями доочистки. Технологическая схема Условные обозначения, экспликации основного оборудования и сооружений блока емкостей Станции пропускной способностью 1,4 и 2,7 тыс. куб. м/сутки. Вариант с первичным отставанием. Схема генплана Станции пропускной способностью 4,2 и 7 тыс. куб. м/сутки. Вариант с первичным отставанием. Схема генплана Фрагменты схем генпланов станций без первичного отставания Фрагменты компоновок схем генпланов станций с хлораторной и без местной котельной; электролизной и местной котельной; электролизной и без местной котельной Станция пропускной способностью 7 тыс. куб. м/сутки. Схема генплана станции с местной котельной, хлораторной и сооружениями доочистки Станция пропускной способностью 7 тыс. куб. м/сутки. Вариант с первичным отставанием и сооружениями доочистки. Схема высотного расположения сооружений станции Резервуары для сбора плавающих веществ и бытовых сточных вод Камеры выпуска очищенных сточных вод, уплотненного стабилизированного осадка и опорожнения блоков емкостей Узлы и детали иловых площадок Детали иловых площадок. Конструкции дренажей и дренажных труб Детали иловых площадок. Колодец иловой воды |
| Разработан: | ЦНИИЭП инженерного оборудования |
| Утверждён: | 20.02.1981 Госгражданстрой (Gosgrazhdanstroy 59) |

















