Скачать Типовой проект 901-2-161.88 Альбом I. Пояснительная записка. Технологические решения. Отопление и вентиляция. Внутренние водопровод и канализация. Электротехническая часть. Технологический контрольДата актуализации: 01.01.2021
|
| Обозначение: | Типовой проект 901-2-161.88 |
| Обозначение англ: | 901-2-161.88 |
| Статус: | не определен законодательством |
| Название рус.: | Альбом I. Пояснительная записка. Технологические решения. Отопление и вентиляция. Внутренние водопровод и канализация. Электротехническая часть. Технологический контроль |
| Дата добавления в базу: | 01.09.2013 |
| Дата актуализации: | 01.01.2021 |
| Дата введения: | 14.04.1988 |
| Дата окончания срока действия: | 30.06.2003 |
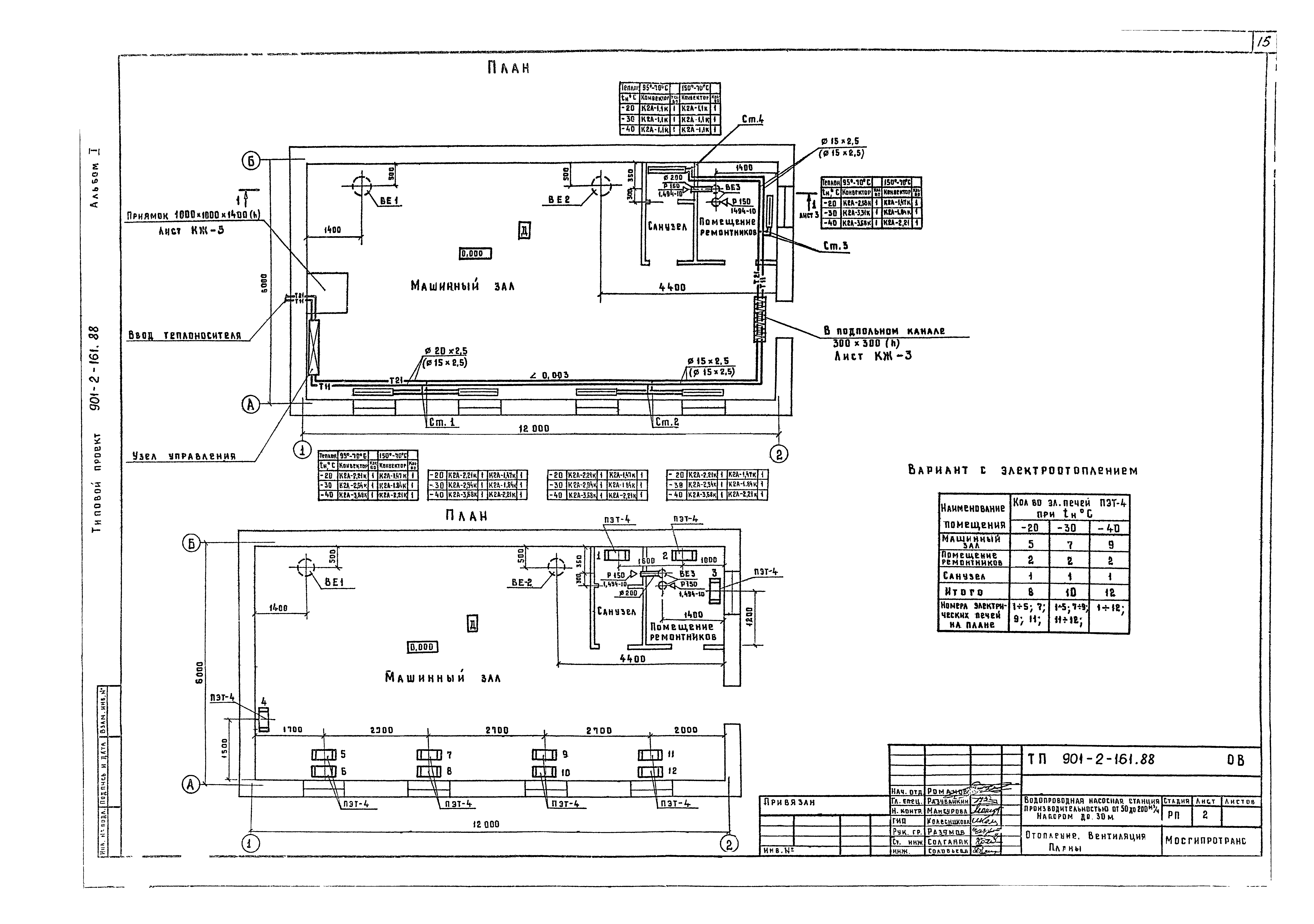
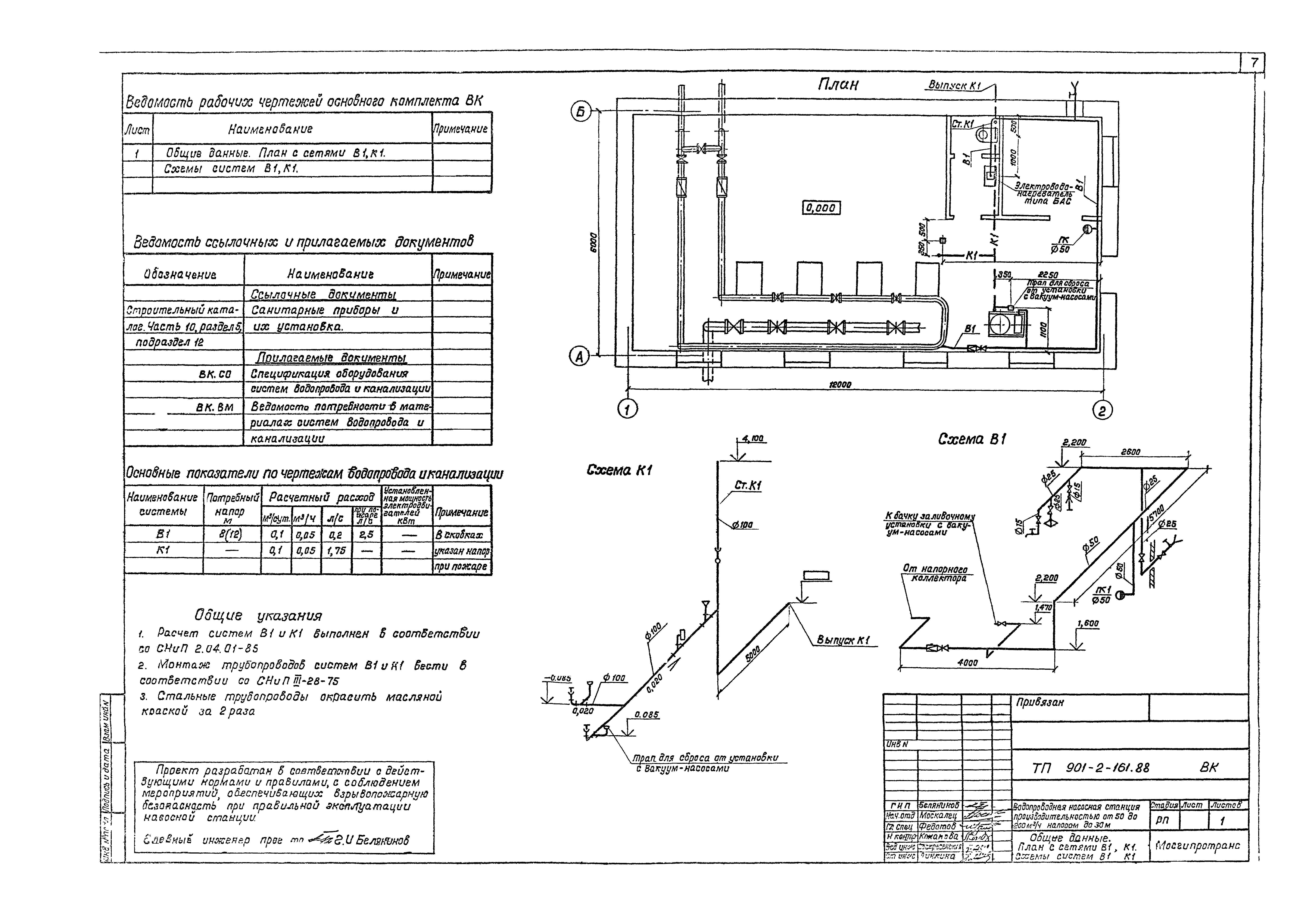
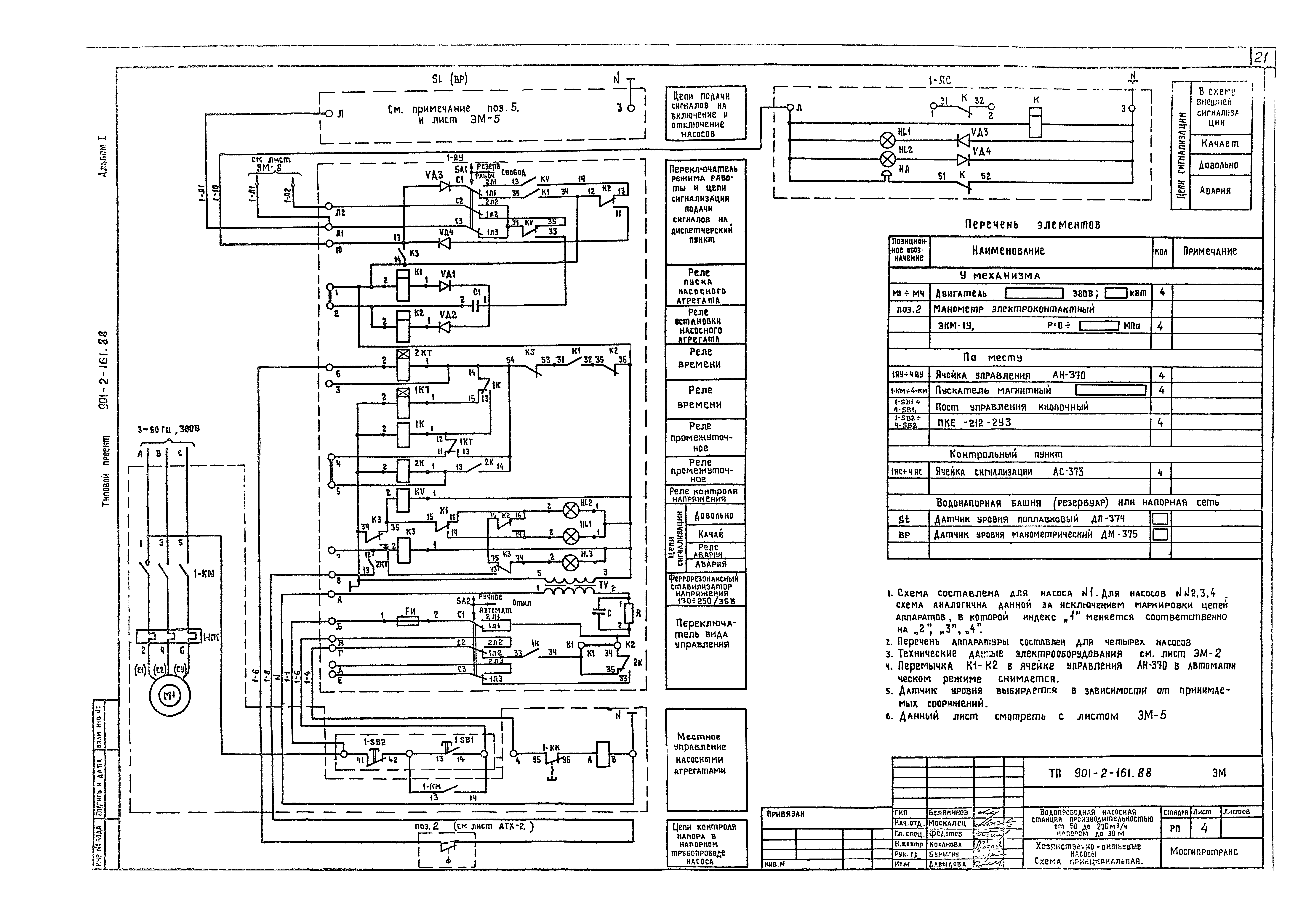
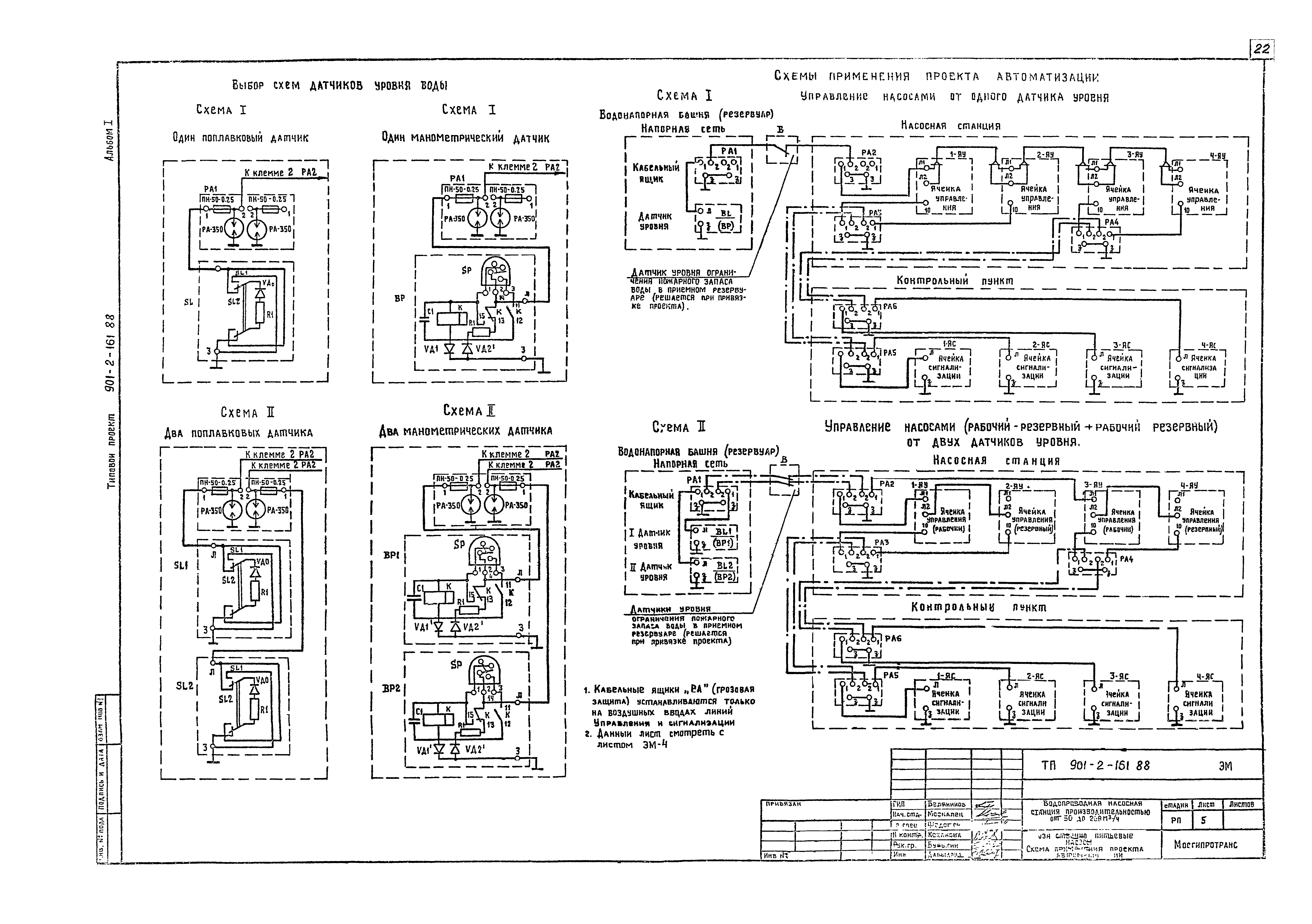
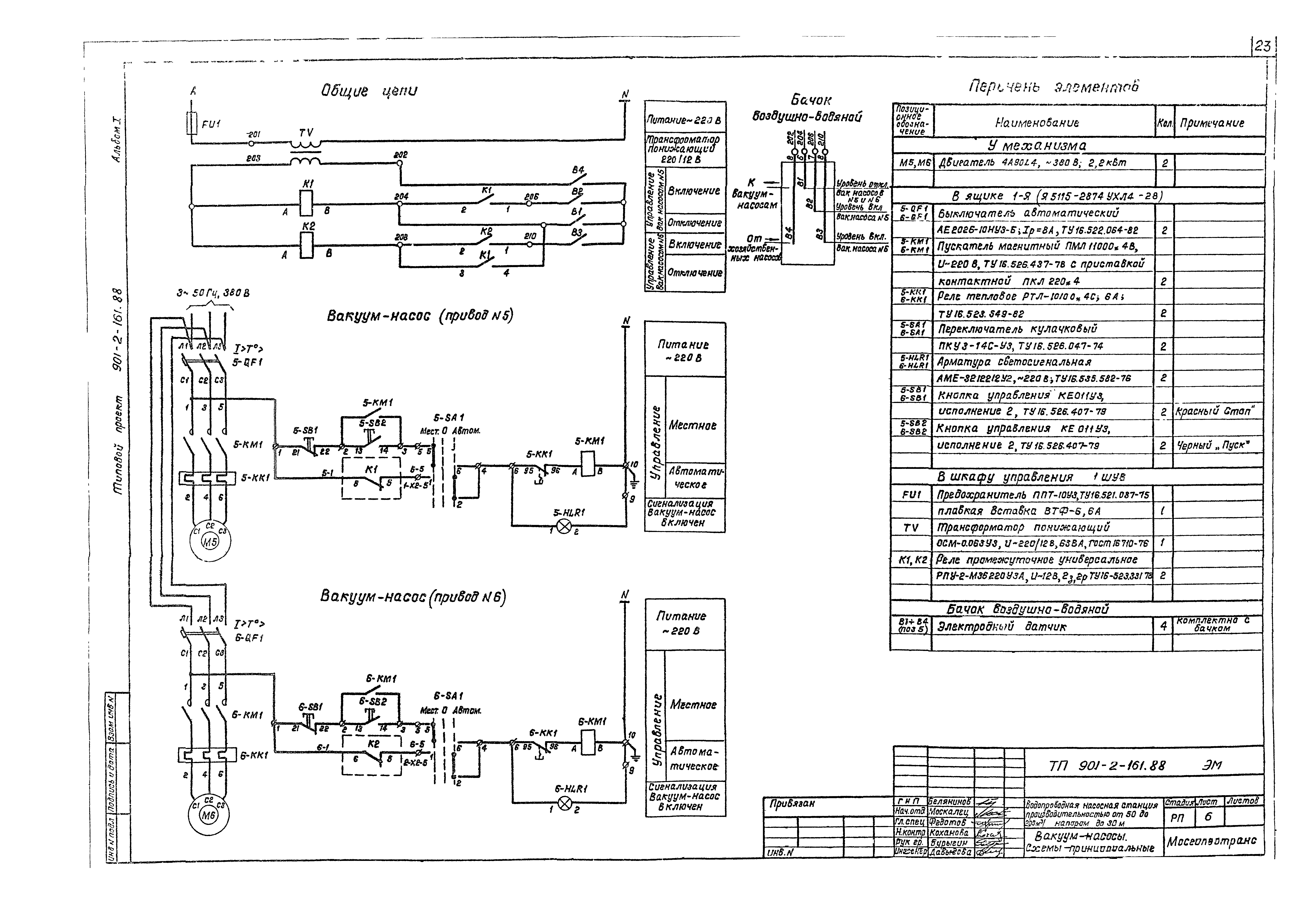
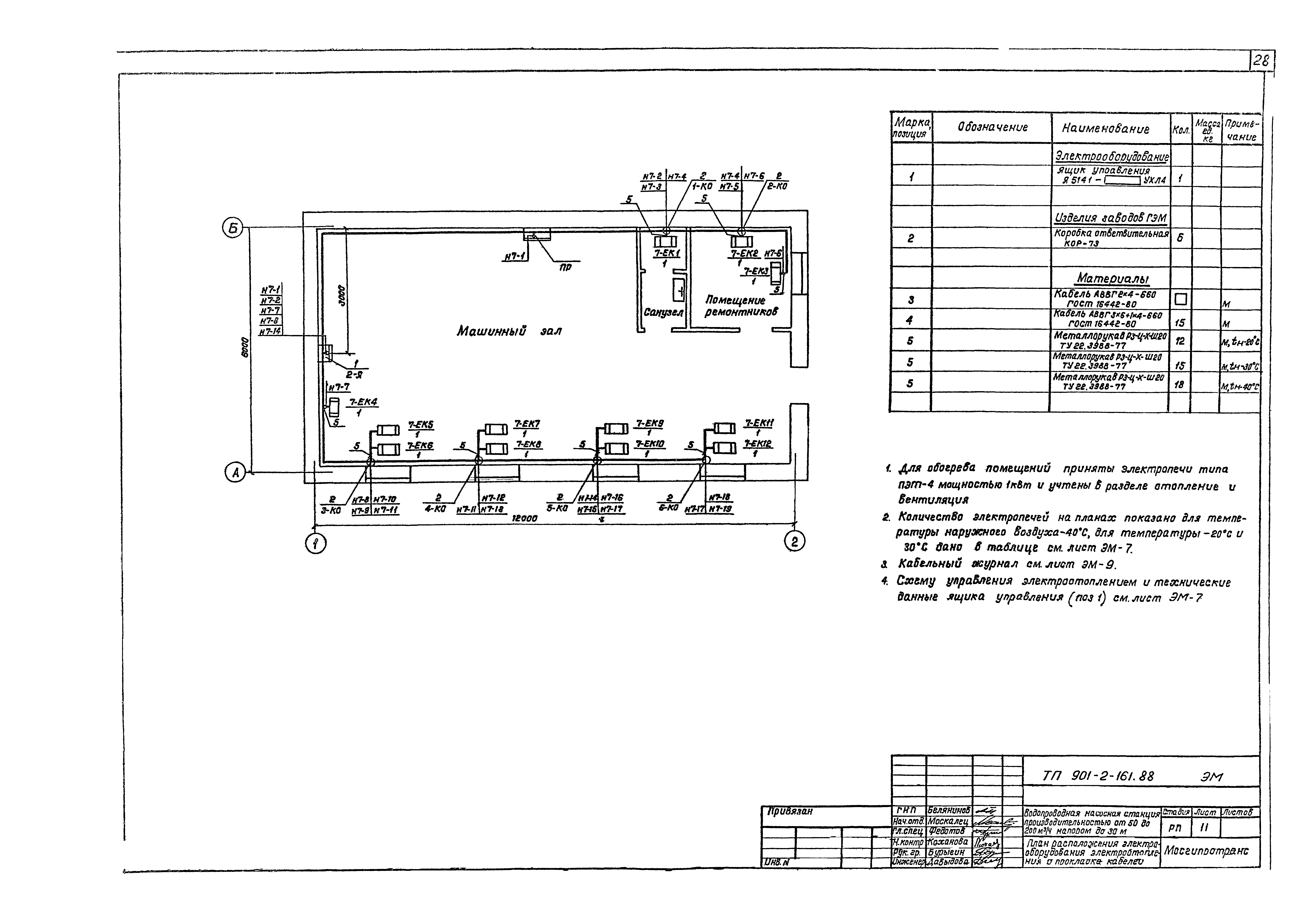
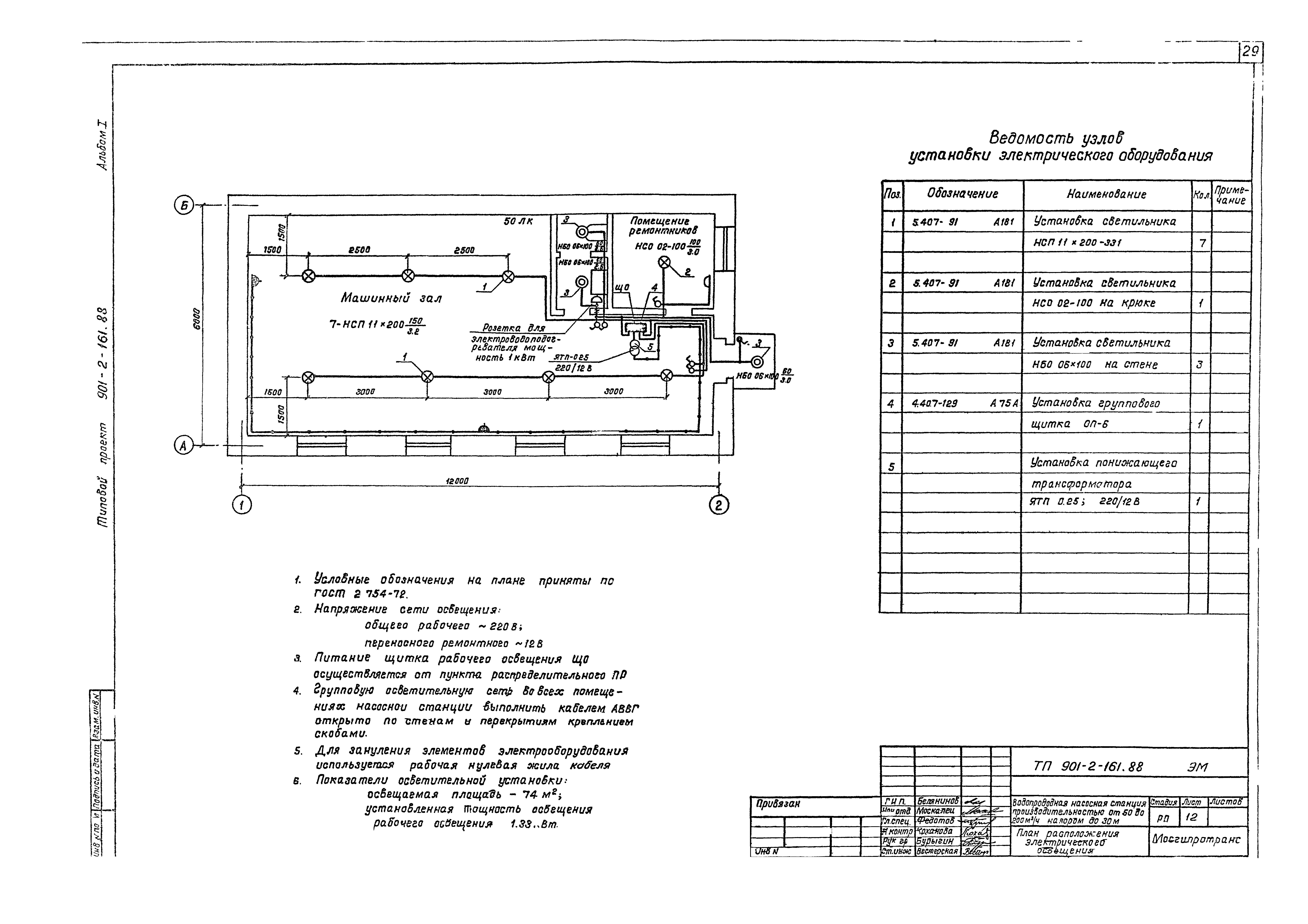
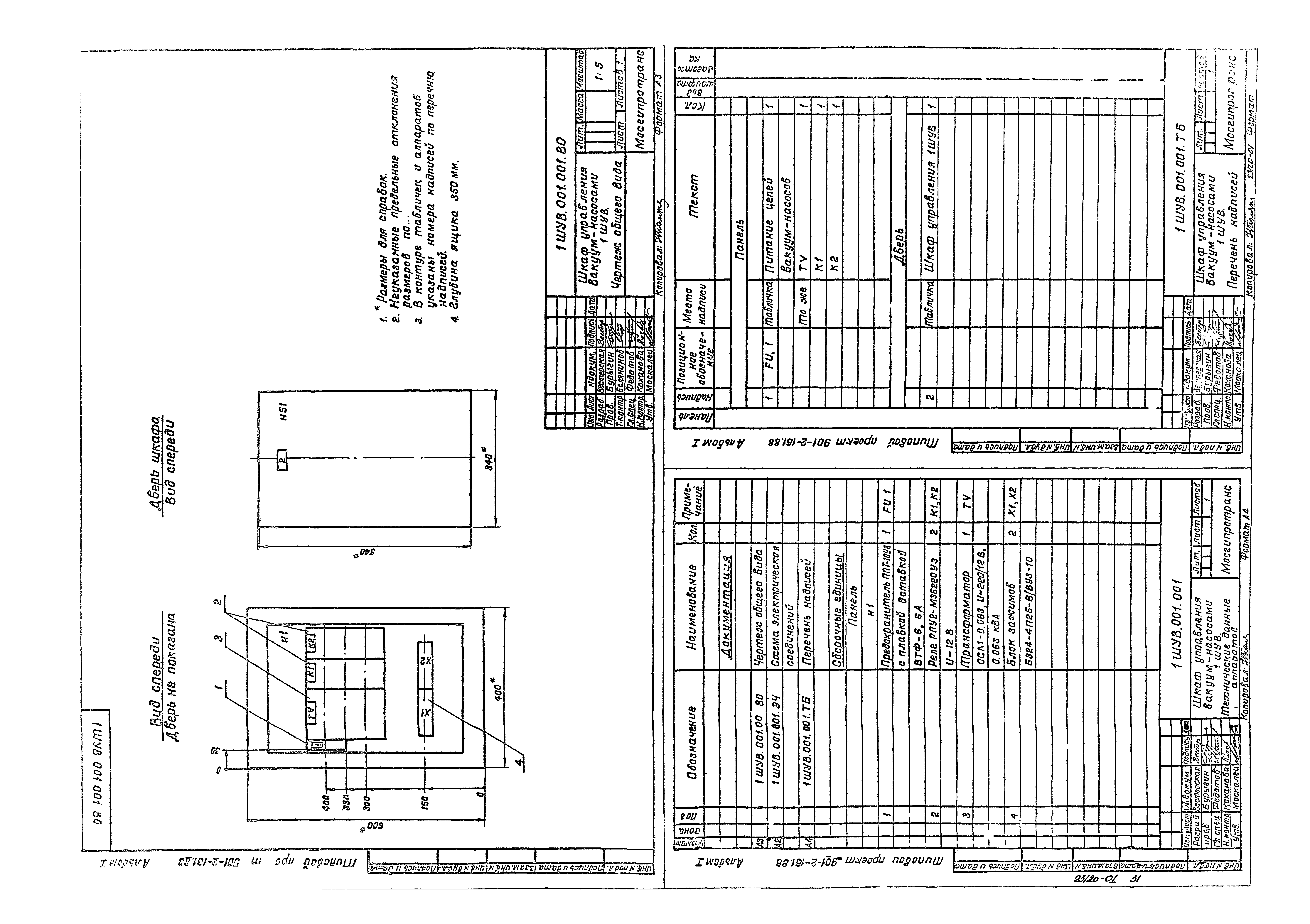
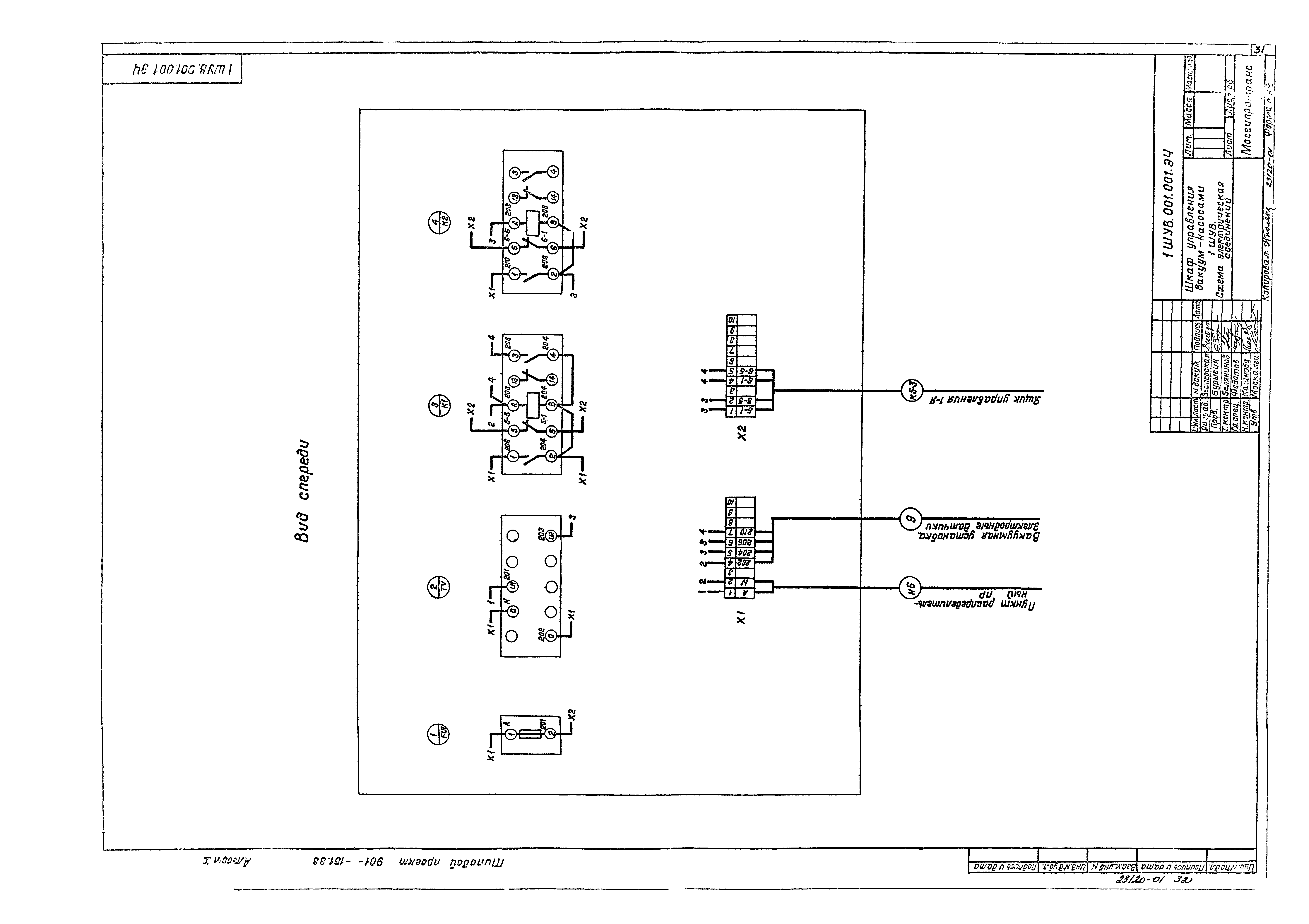
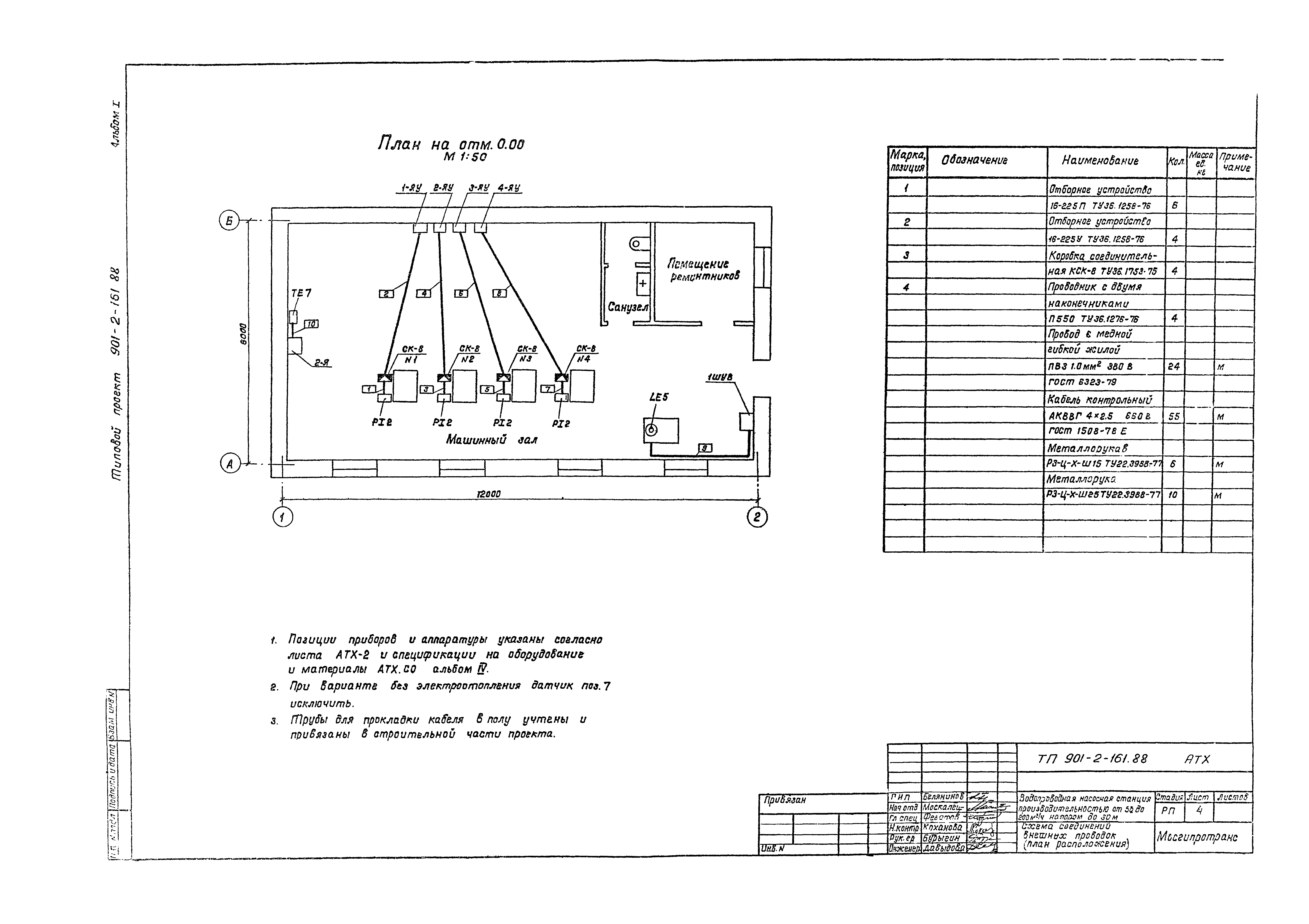
| Оглавление: | Пояснительная записка Технологические решения Общие данные Схемы установки системы ВО и установки с вакуум-насосами Таблица выбора оборудования План на отм. Разрезы Отопление и вентиляция Общие данные Отопление. Вентиляция. Планы Схема системы отопления. Узел управления. Схемы систем ВЕ1, ВЕ2, ВЕ3 Внутренние водопровод и канализация Общие данные. План с сетями В1, К1. Схемы систем В1, К1 Электротехническая часть Общие данные (начало) Общие данные (окончание) Распределительная сеть ~380/220В. Схема принципиальная Хозяйственно-питьевые насосы. Схема принципиальная Хозяйственно-питьевые насосы. Схемы применения проекта автоматизации Вакуум-насосы. Схемы принципиальные Электроотопление. Схемы принципиальные Вакуум-насосы. Электроотопление. Схемы подключения Кабельный журнал План расположения силового электрооборудования и прокладка кабелей План расположения электрооборудования электроотопления и прокладка кабелей План расположения электрического освещения Шкаф управления вакуум-насосами 1ШУВ. Чертеж общего вида Шкаф управления вакуум-насосами 1ШУВ. Технические данные аппаратов Шкаф управления вакуум-насосами 1ШУВ. Перечень надписей Шкаф управления вакуум-насосами 1ШУВ. Схема электрическая соединений Технологический контроль Общие данные Схема функционирования технологического контроля Схема соединений внешних проводок Схема соединений внешних проводок (план расположения) |
| Разработан: | Проектно-изыскательский институт Мосгипротранс |
| Утверждён: | 14.04.1988 Министерство транспортного строительства СССР (USSR Ministry of Transport Construction МО-259) |



































