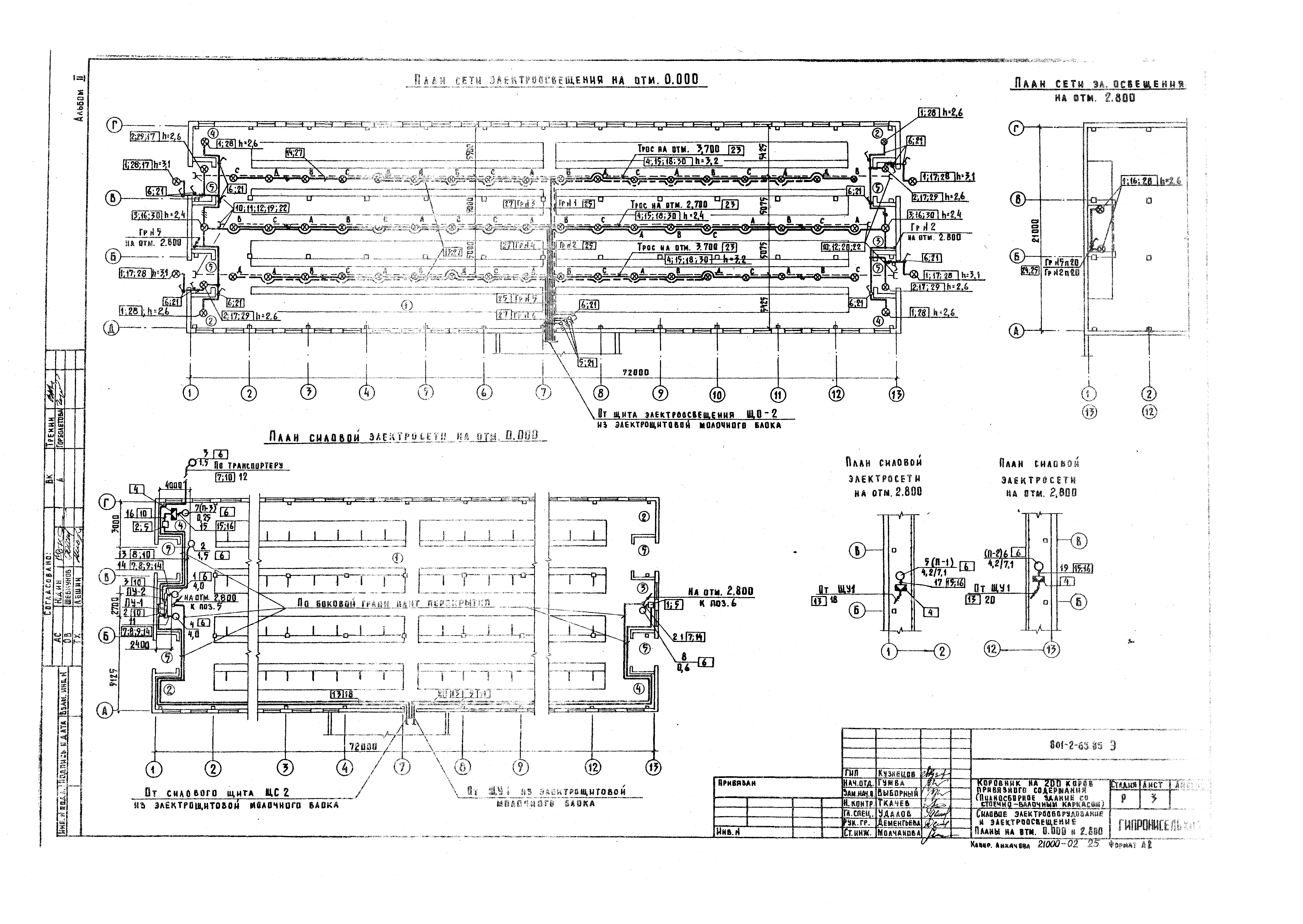
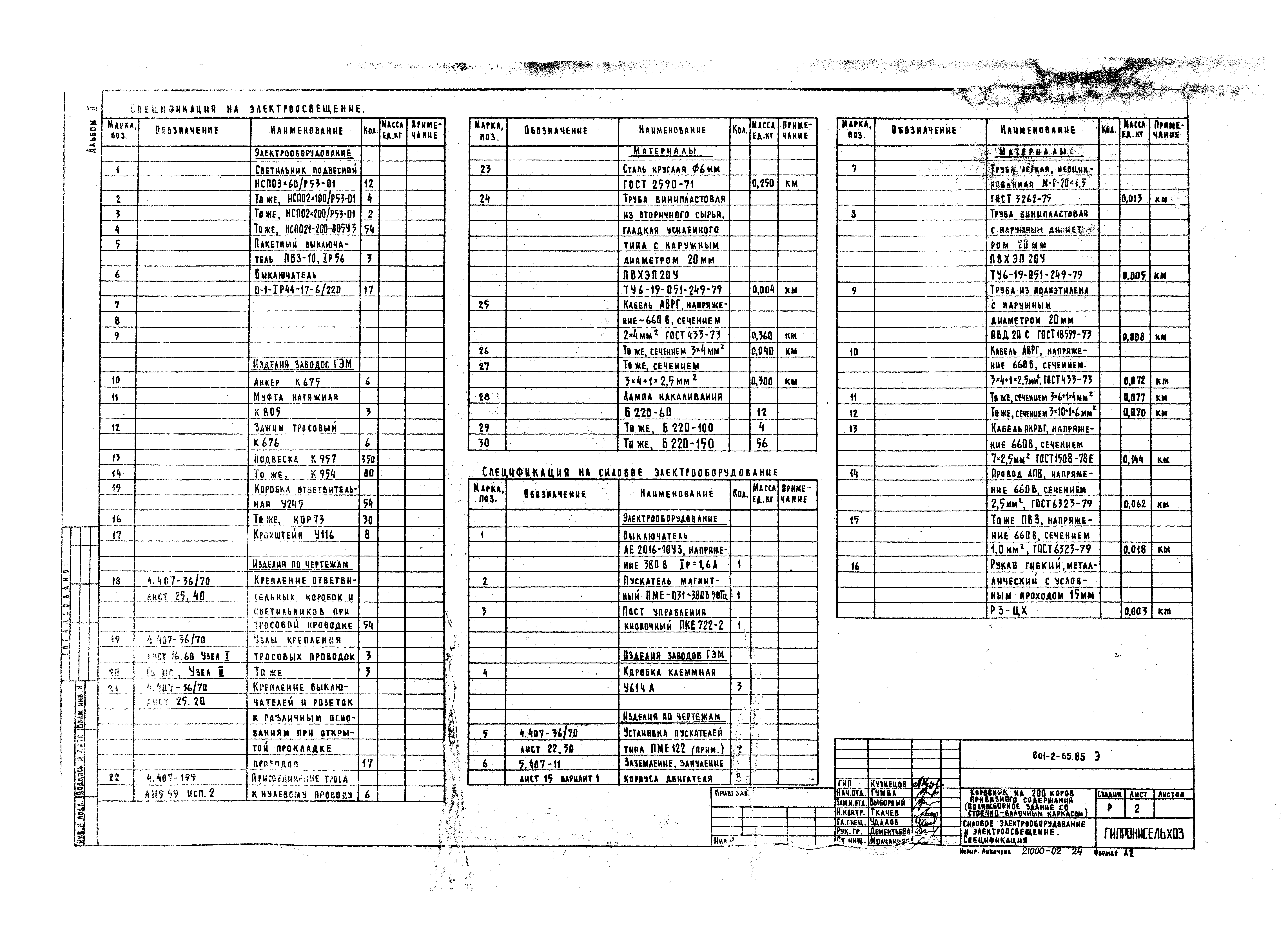
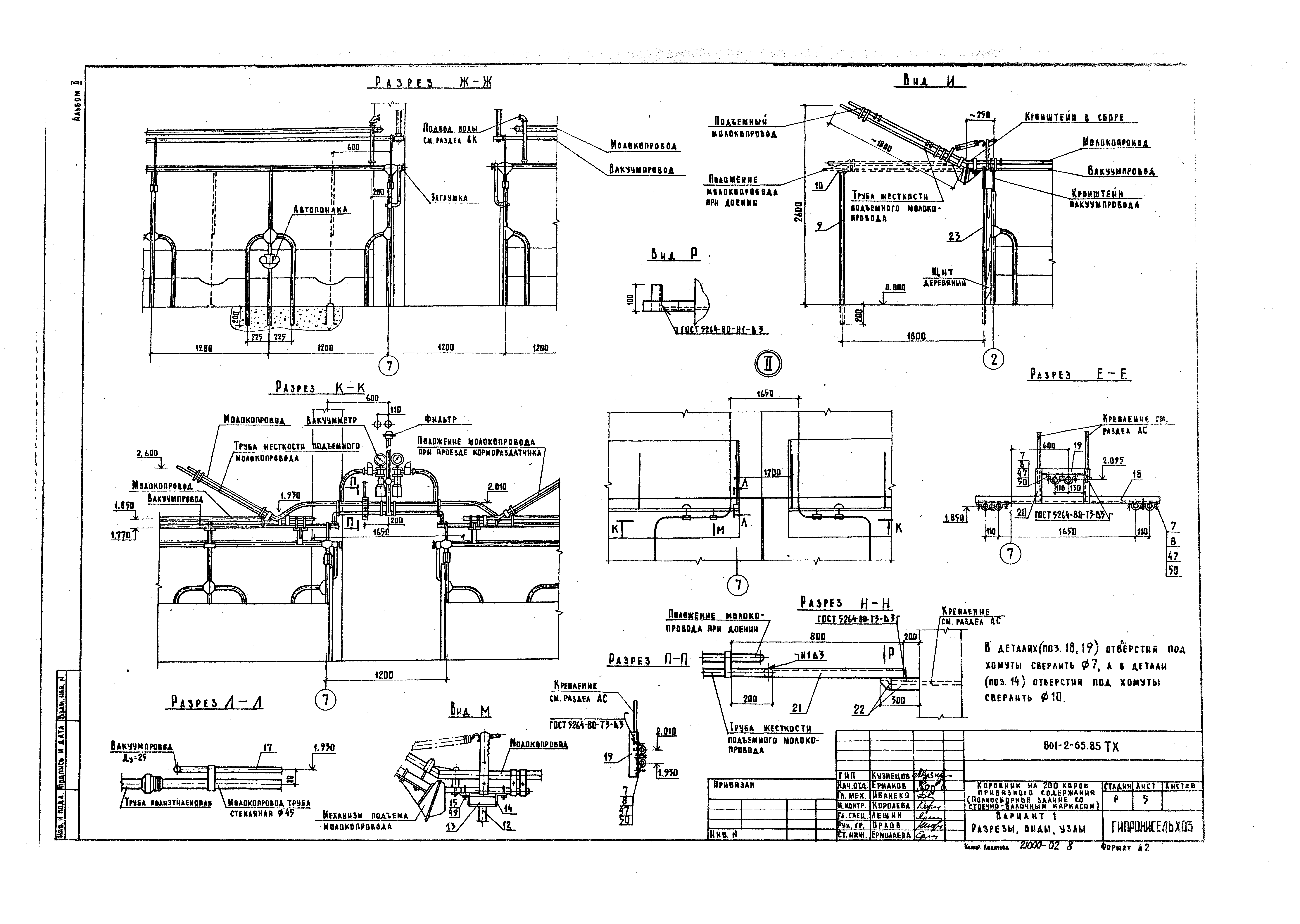
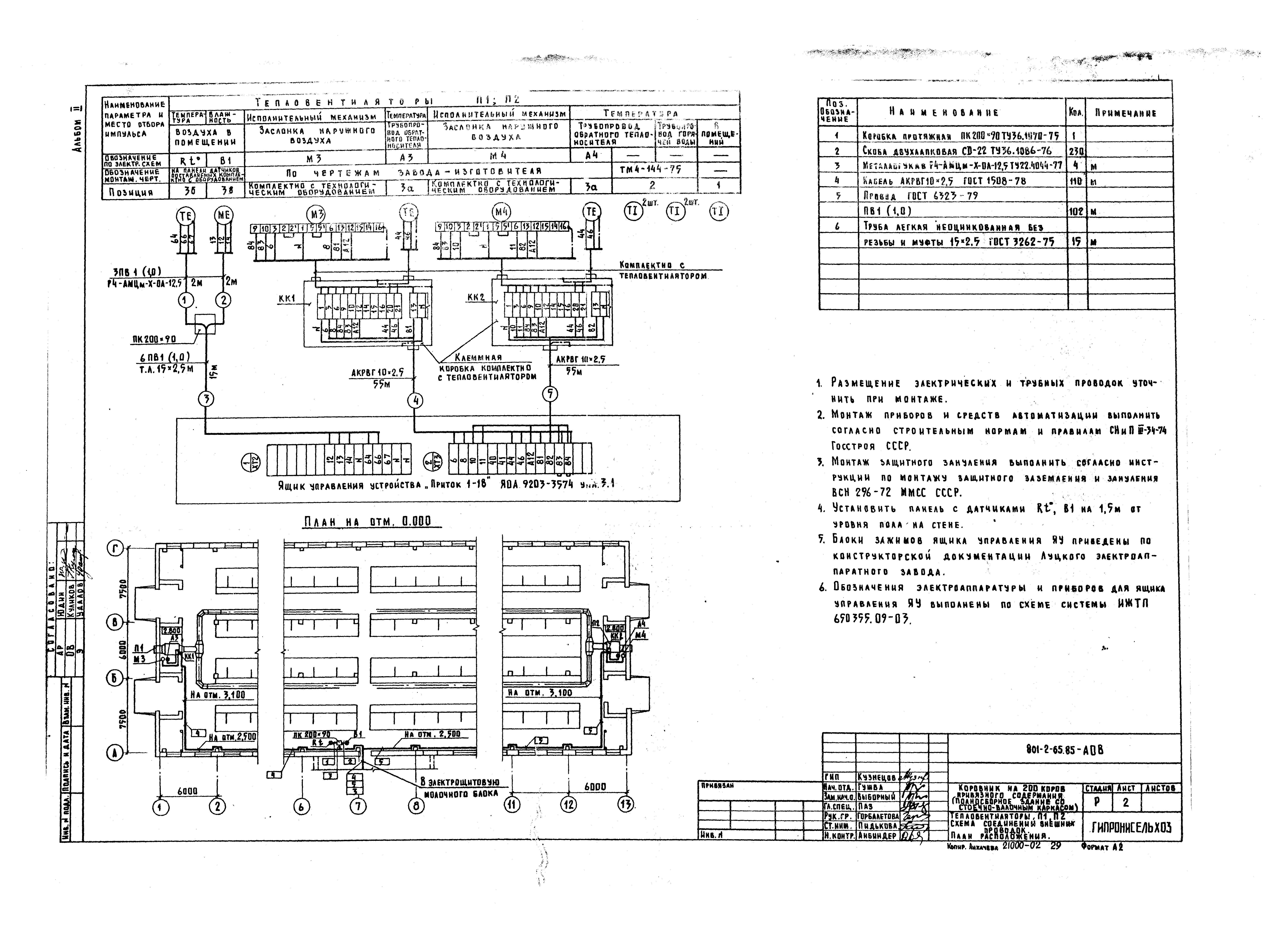
Скачать Типовой проект 801-2-64.85 Альбом II. Технология производства. Внутренние водопровод и канализация. Отопление и вентиляция. Электротехнические чертежи. Автоматизация систем отопления и вентиляции. Связь и сигнализация (из ТП 801-2-65.85)

Дата актуализации: 01.01.2021

Типовой проект 801-2-64.85

Альбом II. Технология производства. Внутренние водопровод и канализация. Отопление и вентиляция. Электротехнические чертежи. Автоматизация систем отопления и вентиляции. Связь и сигнализация (из ТП 801-2-65.85)

Обозначение: Типовой проект 801-2-64.85
Обозначение англ: 801-2-64.85
Статус:не определен законодательством
Название рус.:Альбом II. Технология производства. Внутренние водопровод и канализация. Отопление и вентиляция. Электротехнические чертежи. Автоматизация систем отопления и вентиляции. Связь и сигнализация (из ТП 801-2-65.85)
Дата добавления в базу:01.09.2013
Дата актуализации:01.01.2021
Дата введения:19.07.1984
Дата окончания срока действия:30.06.2003
Разработан: Институт Гипронисельхоз
Утверждён:30.12.1983 Главсельстройпроект Минсельхоза СССР (Glavselstroyproject, USSR Minselkhoz 126)
Типовой проект 801-2-64.85Типовой проект 801-2-64.85Типовой проект 801-2-64.85Типовой проект 801-2-64.85Типовой проект 801-2-64.85Типовой проект 801-2-64.85Типовой проект 801-2-64.85Типовой проект 801-2-64.85Типовой проект 801-2-64.85Типовой проект 801-2-64.85Типовой проект 801-2-64.85Типовой проект 801-2-64.85Типовой проект 801-2-64.85Типовой проект 801-2-64.85Типовой проект 801-2-64.85Типовой проект 801-2-64.85Типовой проект 801-2-64.85Типовой проект 801-2-64.85Типовой проект 801-2-64.85Типовой проект 801-2-64.85Типовой проект 801-2-64.85Типовой проект 801-2-64.85Типовой проект 801-2-64.85Типовой проект 801-2-64.85Типовой проект 801-2-64.85Типовой проект 801-2-64.85Типовой проект 801-2-64.85Типовой проект 801-2-64.85Типовой проект 801-2-64.85Типовой проект 801-2-64.85