Скачать Типовой проект 801-2-65.85 Альбом II. Технология производства. Внутренние водопровод и канализация. Отопление и вентиляция. Электротехнические чертежи. Автоматизация систем отопления и вентиляции. Связь и сигнализацияДата актуализации: 01.01.2021
|
| Обозначение: | Типовой проект 801-2-65.85 |
| Обозначение англ: | 801-2-65.85 |
| Статус: | не определен законодательством |
| Название рус.: | Альбом II. Технология производства. Внутренние водопровод и канализация. Отопление и вентиляция. Электротехнические чертежи. Автоматизация систем отопления и вентиляции. Связь и сигнализация |
| Дата добавления в базу: | 01.09.2013 |
| Дата актуализации: | 01.01.2021 |
| Дата введения: | 19.07.1984 |
| Дата окончания срока действия: | 30.06.2003 |
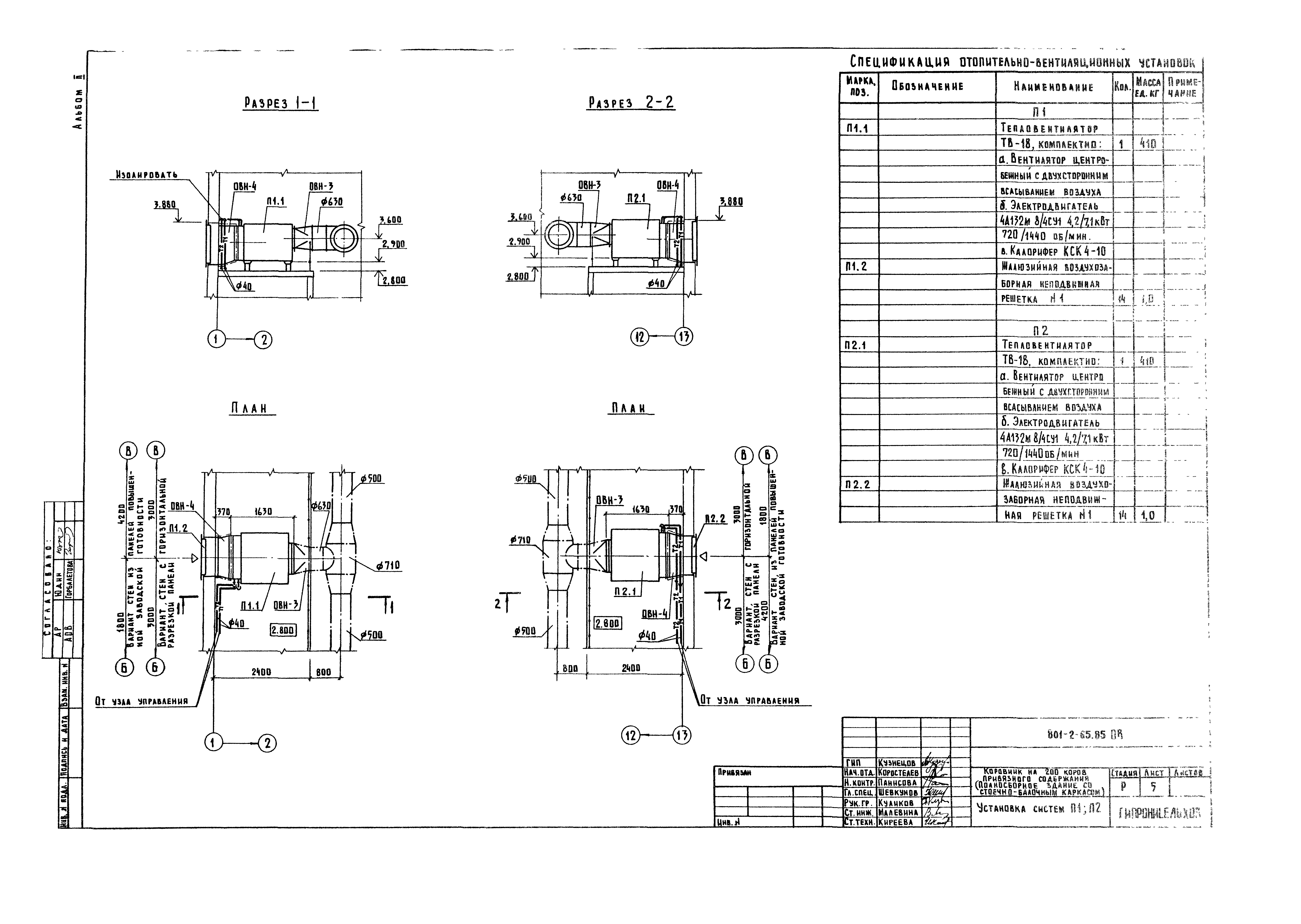
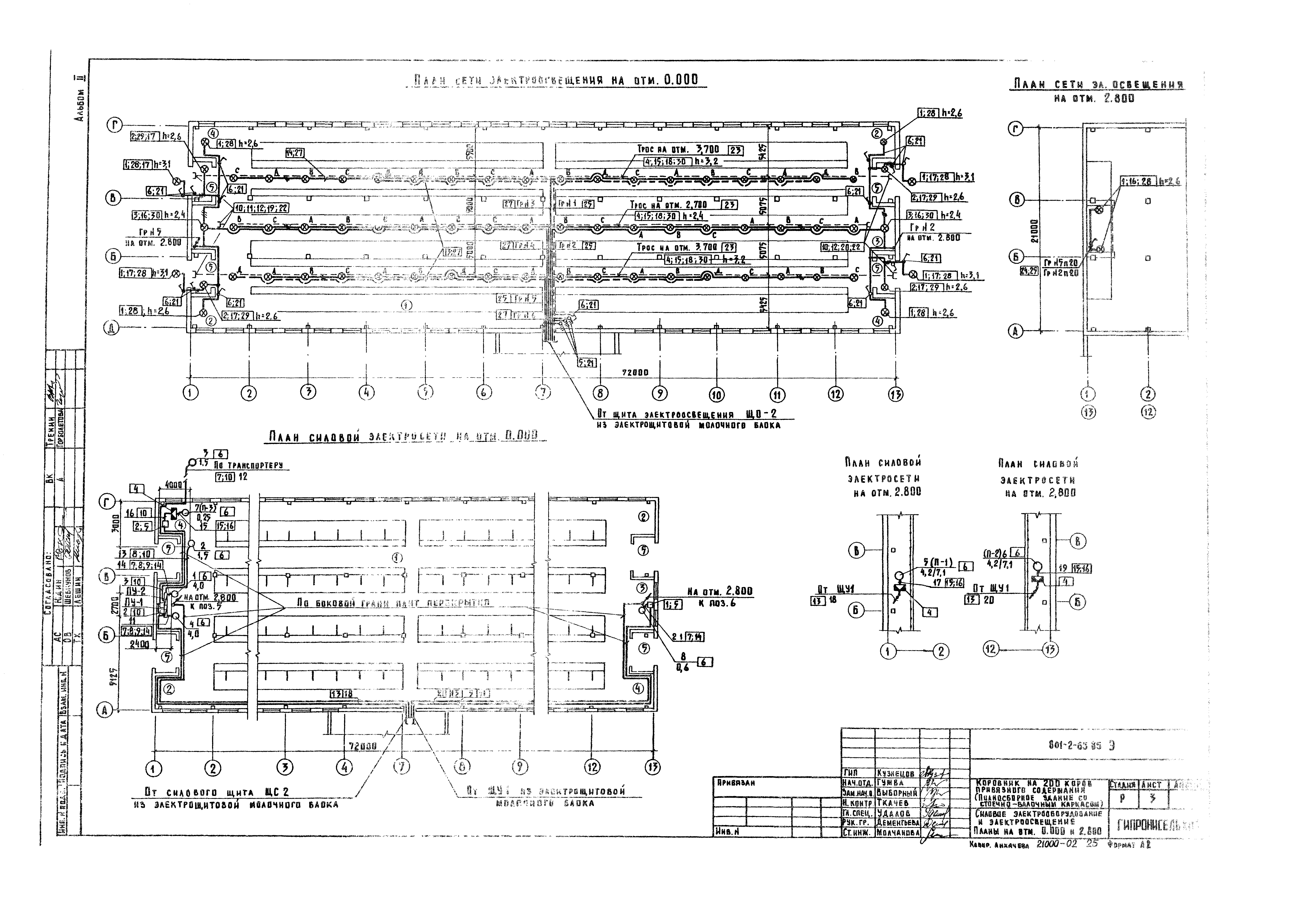
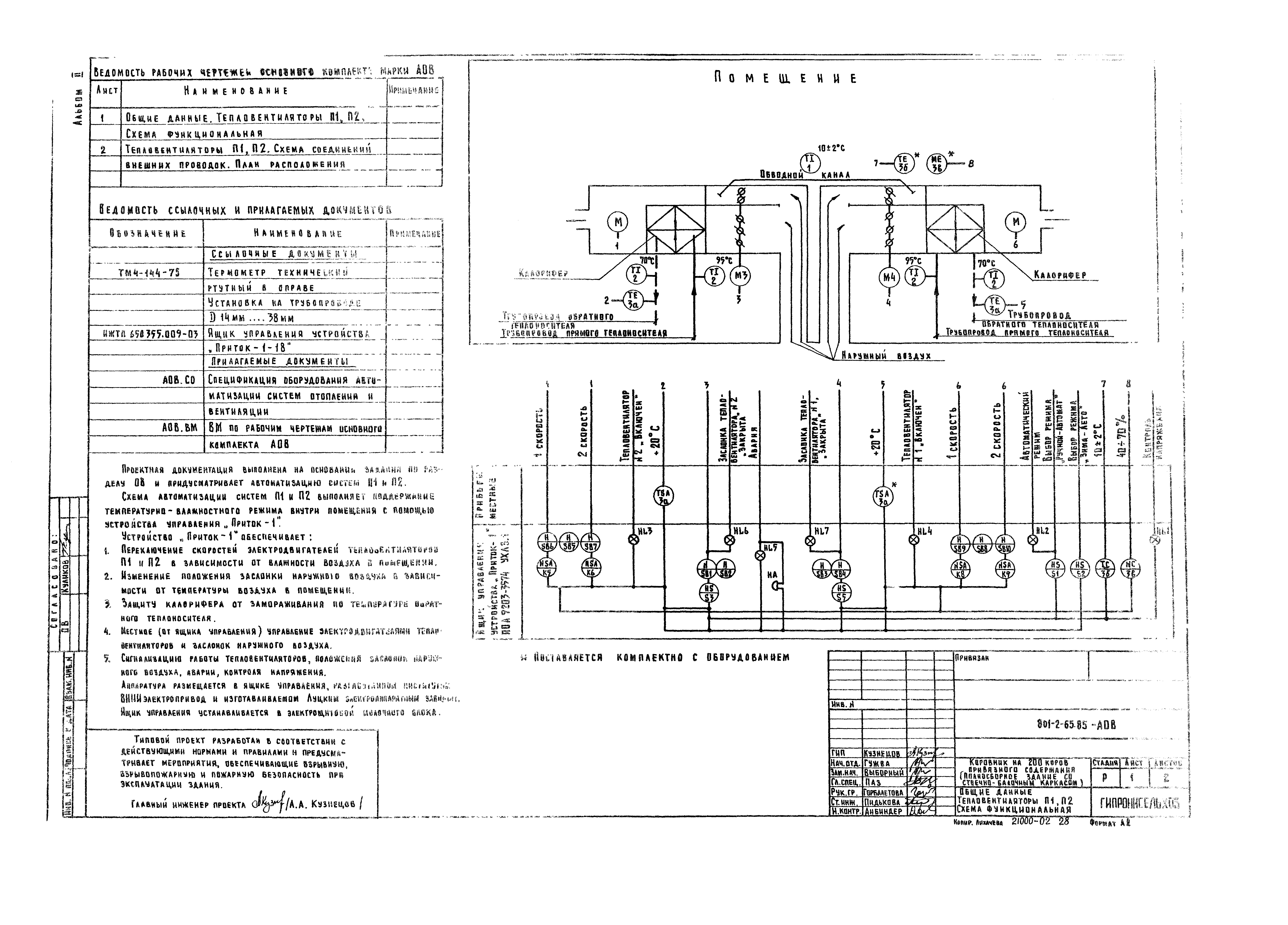
| Оглавление: | Содержание Основной комплект рабочих чертежей марки ТХ Общие данные (начало) Общие данные (окончание) Вариант 1. План, разрез Вариант 1. Схемы, разрезы, узел Вариант 1. Разрезы, виды, узлы Вариант 2. План, разрез Вариант 2. Схема, разрезы, узел Разрезы, узлы Основной комплект рабочих чертежей марки ВК Общие данные План на отм. 0,000. Схемы систем ВО, ТЗ, ТЗ1, КЗ Основной комплект рабочих чертежей марки ВО Общие данные (начало) Общие данные (окончание) План на отм. 0,000. Разрез 1-1, 2-2 Схемы систем П1, П2, П3. Схема системы теплоснабжения установок П1 и П2 Установка систем П1; П2. Чертежи общих видов нестандартных конструкций Общий вид полиэтиленового воздуховода и узлы Общий вид с разметкой перфорации на воздуховоде Переход Изоляция трубопроводов. Изоляция арматуры Основной комплект рабочий чертежей марки З Общие данные Силовое электрооборудование и электроосвещение. Спецификация Силовое электрооборудование и электроосвещение. Планы на отм. 0,000 и 2,800 Силовое электрооборудование. Расчетная схема сети 380/220 В Ведомость объемов электромонтажных и строительных работ. Расчетная схема сети электроосвещения 380/220 В Основной комплект рабочих чертежей марки АОВ Общие данные. Тепловентиляторы П1, П2. Схема функциональная Тепловентиляторы П1, П2. Схема соединений внешних проводок. План расположения Основной комплект рабочих чертежей марки СС Общие данные. План расположения сетей связи и сигнализации |
| Разработан: | Институт Гипронисельхоз |
| Утверждён: | 30.12.1983 Главсельстройпроект Минсельхоза СССР (Glavselstroyproject, USSR Minselkhoz 126) |





























