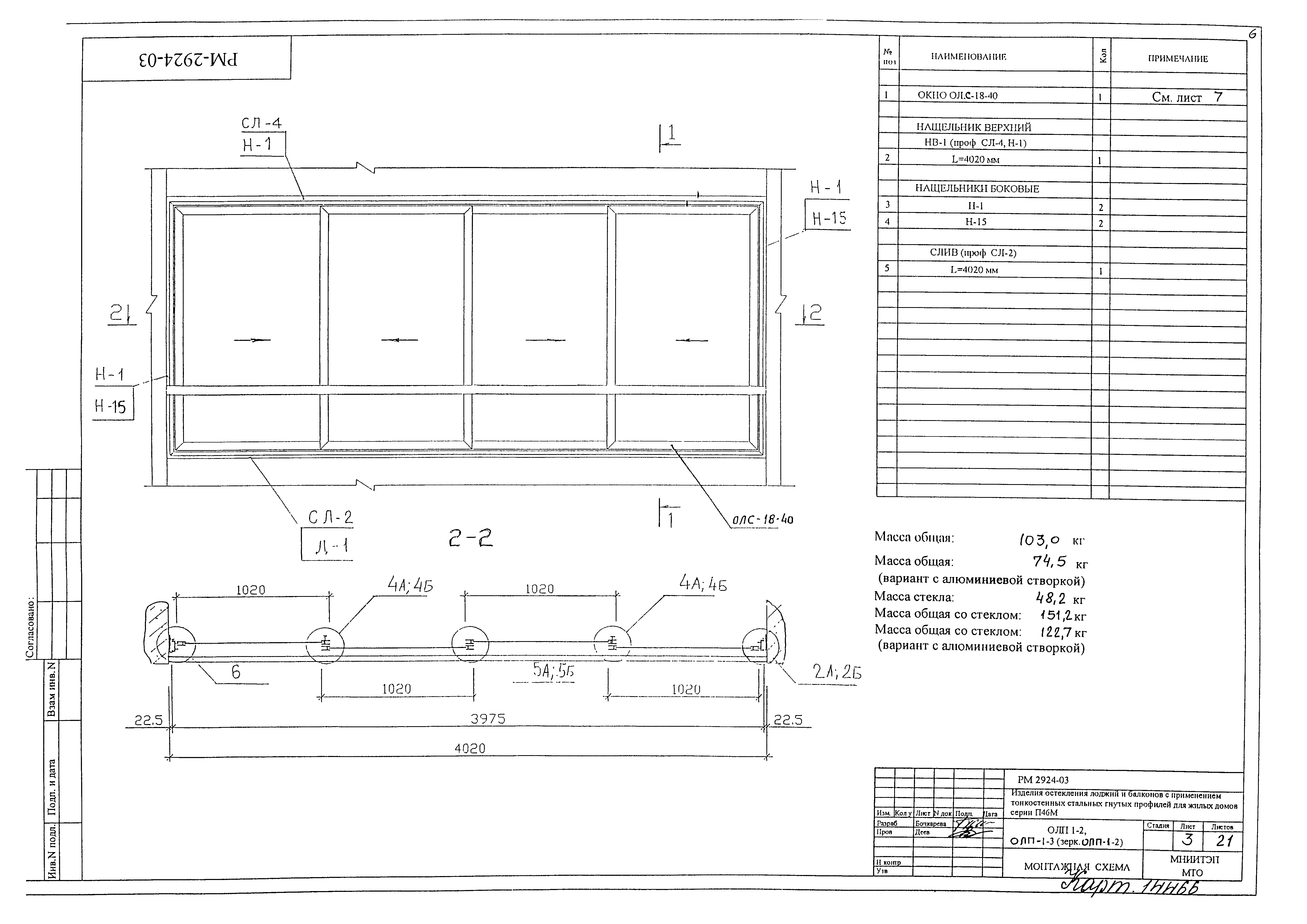
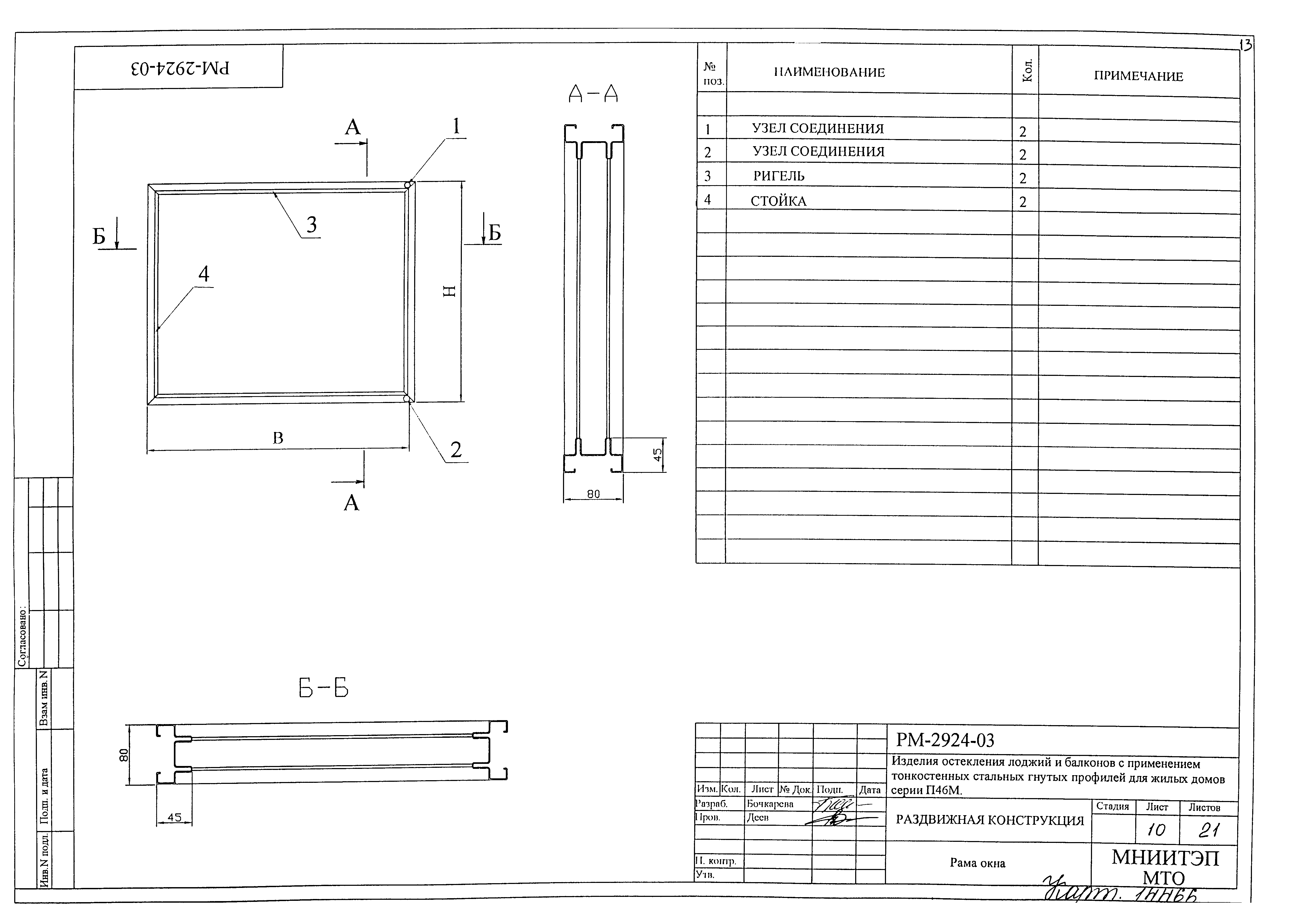
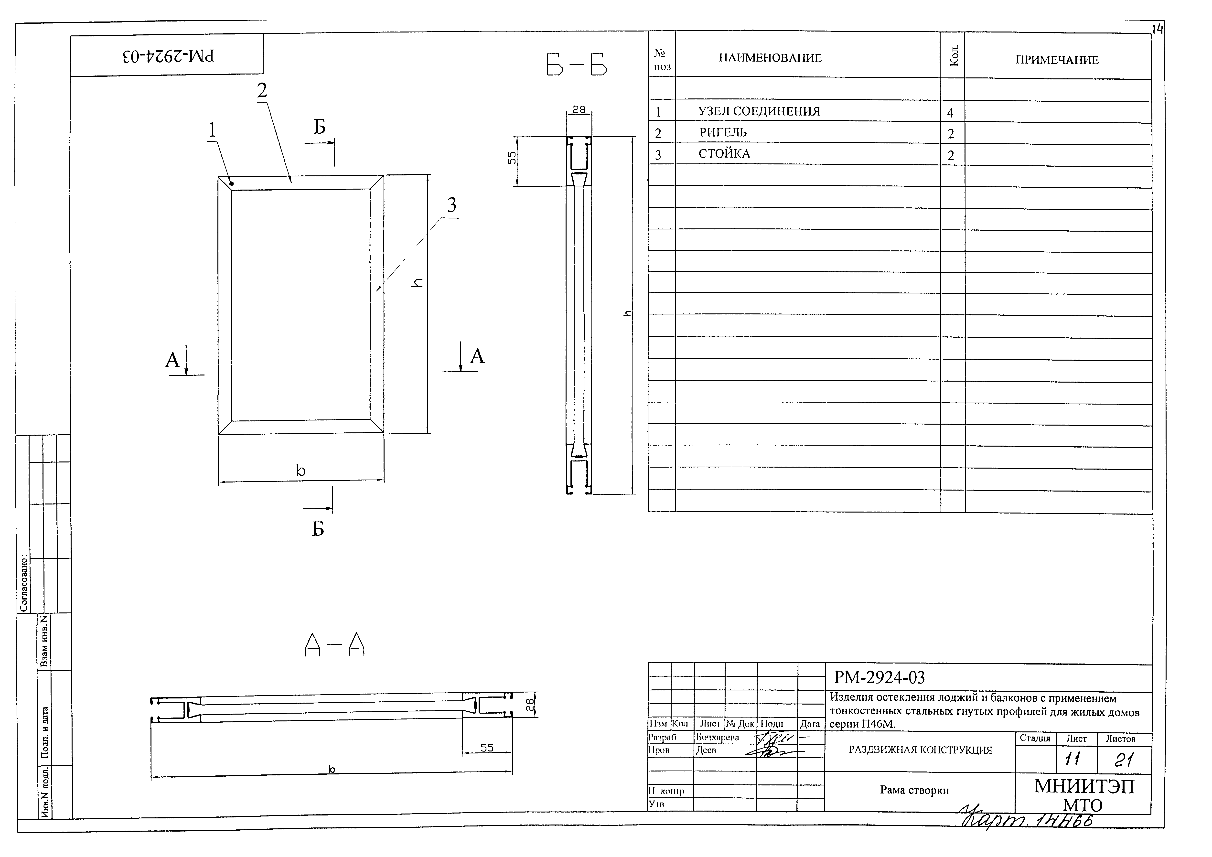
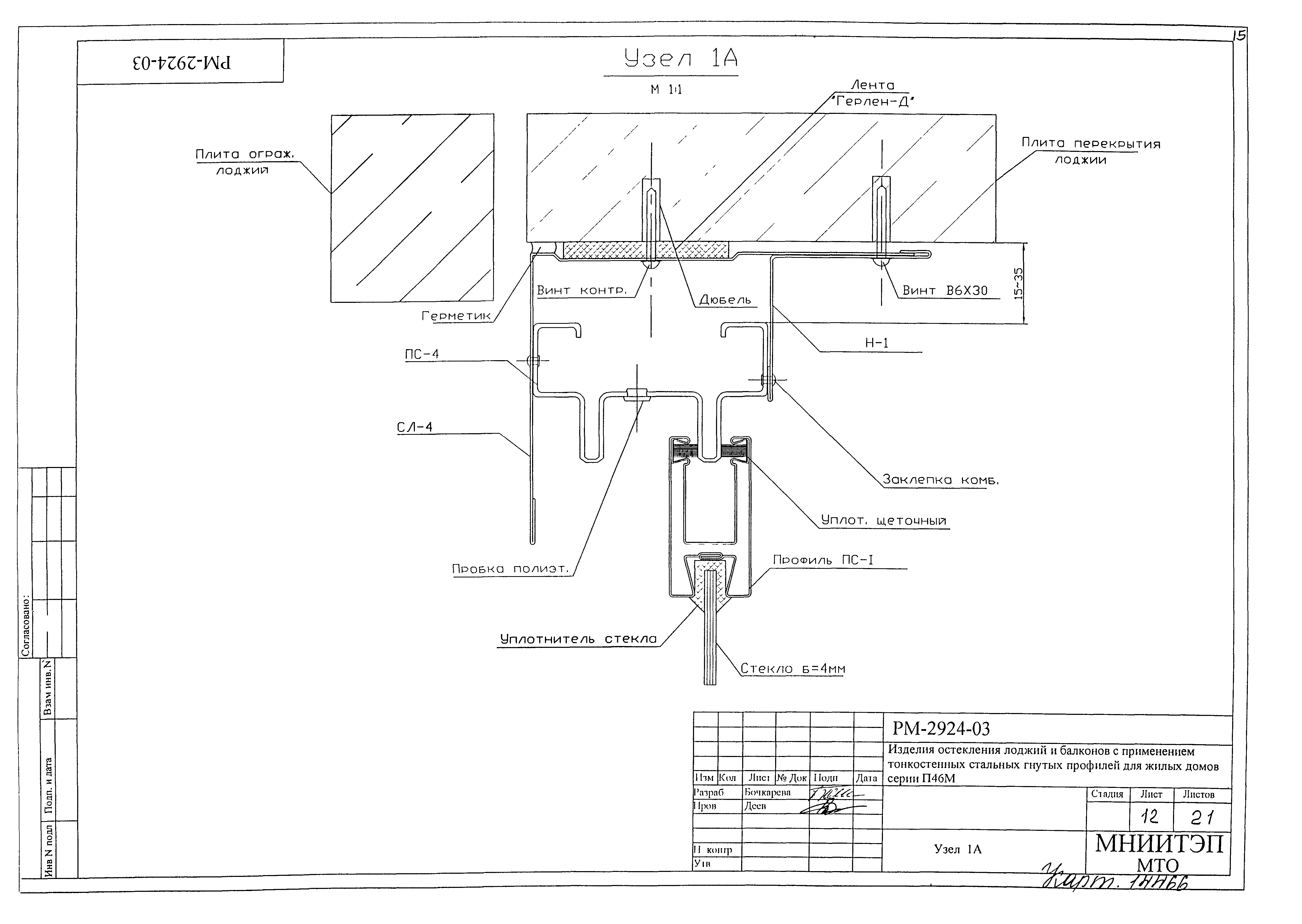
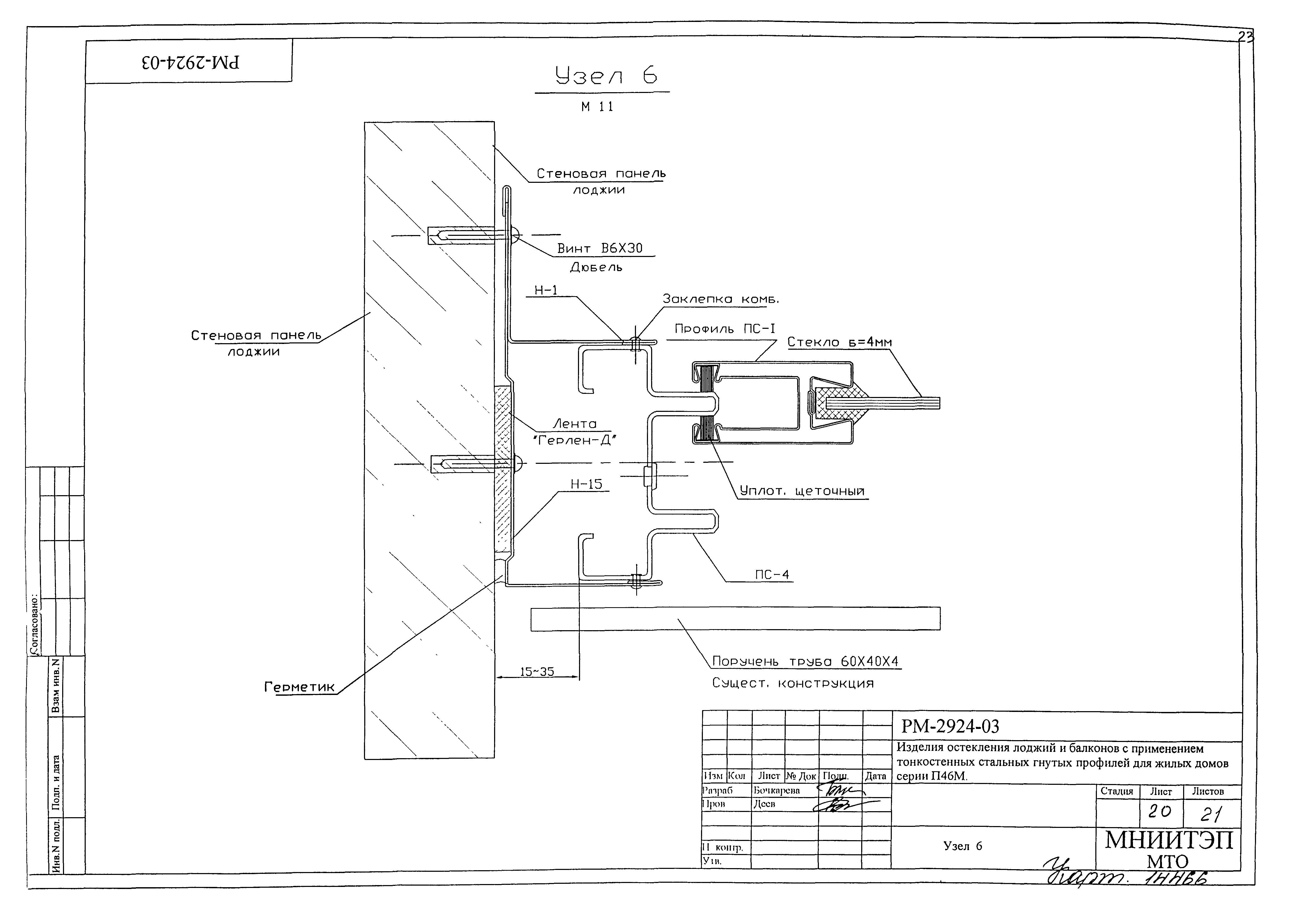
Скачать РМ-2924-03 Изделия остекления лоджий и балконов с применением тонкостенных стальных гнутых профилей для жилых домов серии П46МДата актуализации: 01.01.2021 РМ-2924-03
Изделия остекления лоджий и балконов с применением тонкостенных стальных гнутых профилей для жилых домов серии П46М| Обозначение: | РМ-2924-03 | | Обозначение англ: | РМ-2924-03 | | Статус: | не определен законодательством | | Название рус.: | Изделия остекления лоджий и балконов с применением тонкостенных стальных гнутых профилей для жилых домов серии П46М | | Дата добавления в базу: | 01.09.2013 | | Дата актуализации: | 01.01.2021 | | Дата введения: | 01.01.2004 | | Разработан: | МНИИТЭП
| | Утверждён: | 01.01.2004 МНИИТЭП (MNIITEP )
| | Принят: | ООО ИнжТехМаш сервис
|
                      
|