Скачать Типовой проект 801-2-54.85 Альбом I. Пояснительная записка. Технология производства. Архитектурно-строительные решения. Конструкции металлические. Внутренние водопровод и канализация. Отопление и вентиляция. Электротехнические чертежи. Автоматизация систем отопления и вентиляции. Связь и сигнализацияДата актуализации: 01.01.2021
|
| Обозначение: | Типовой проект 801-2-54.85 |
| Обозначение англ: | 801-2-54.85 |
| Статус: | не определен законодательством |
| Название рус.: | Альбом I. Пояснительная записка. Технология производства. Архитектурно-строительные решения. Конструкции металлические. Внутренние водопровод и канализация. Отопление и вентиляция. Электротехнические чертежи. Автоматизация систем отопления и вентиляции. Связь и сигнализация |
| Дата добавления в базу: | 01.09.2013 |
| Дата актуализации: | 01.01.2021 |
| Дата введения: | 19.09.1984 |
| Дата окончания срока действия: | 30.06.2003 |
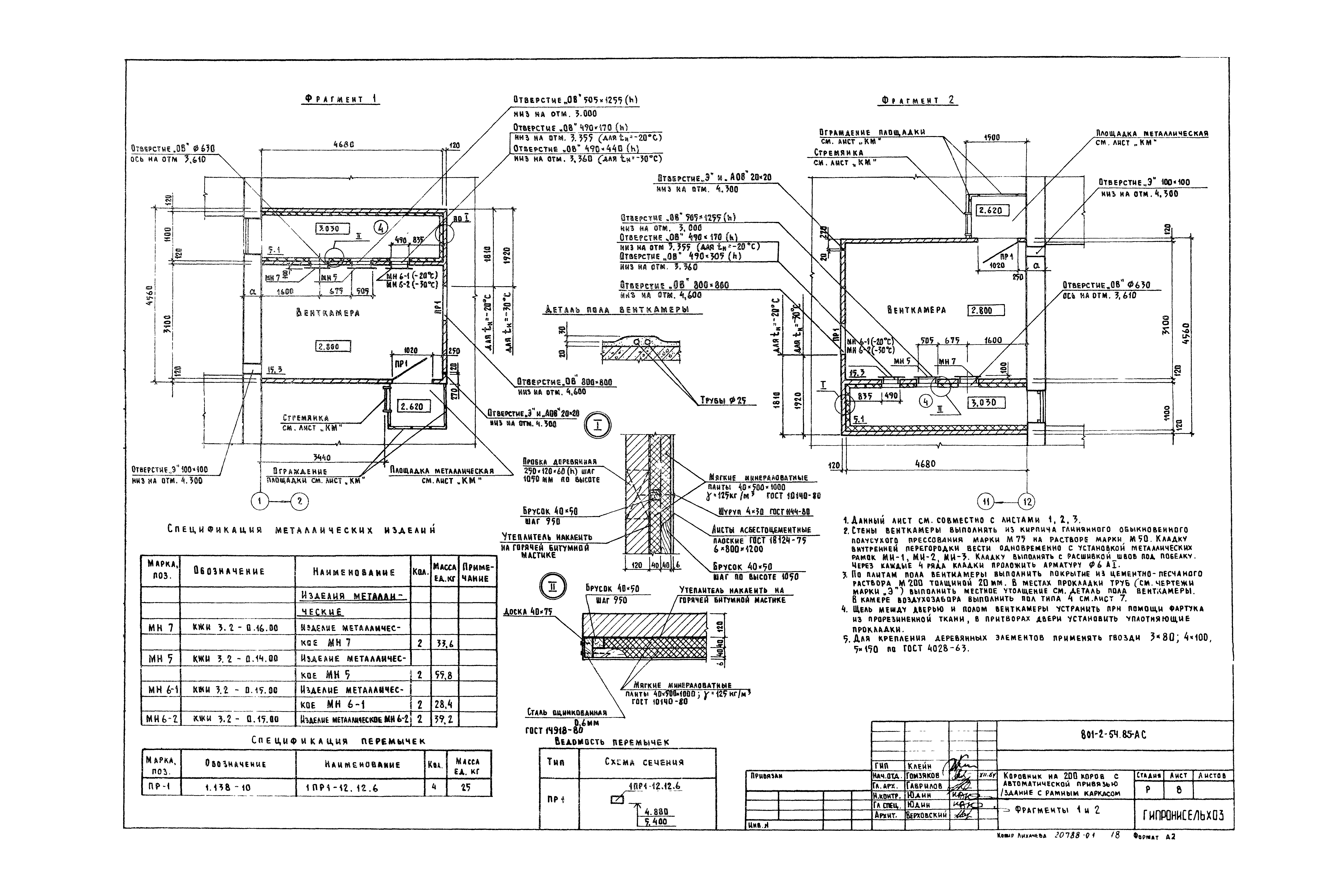
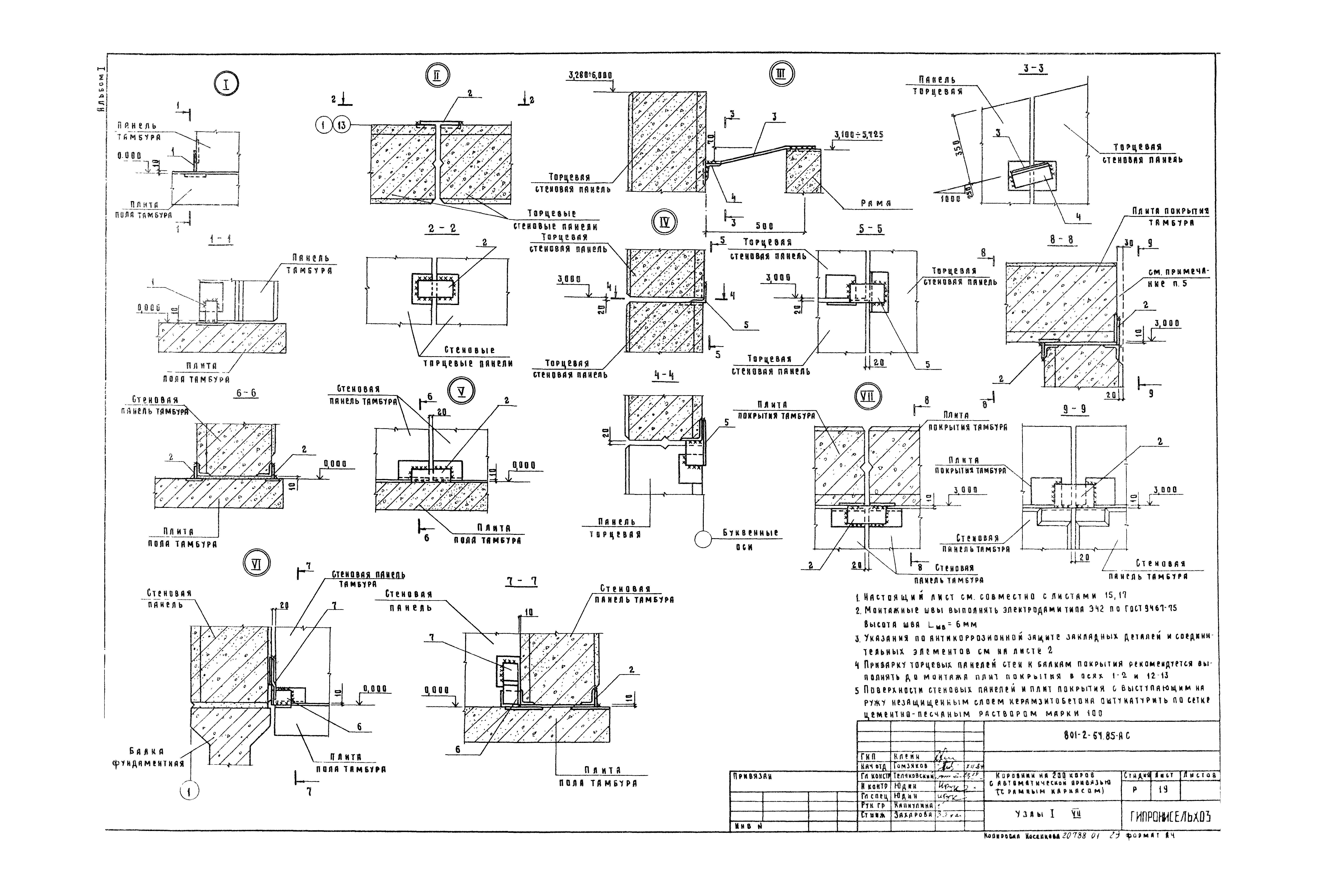
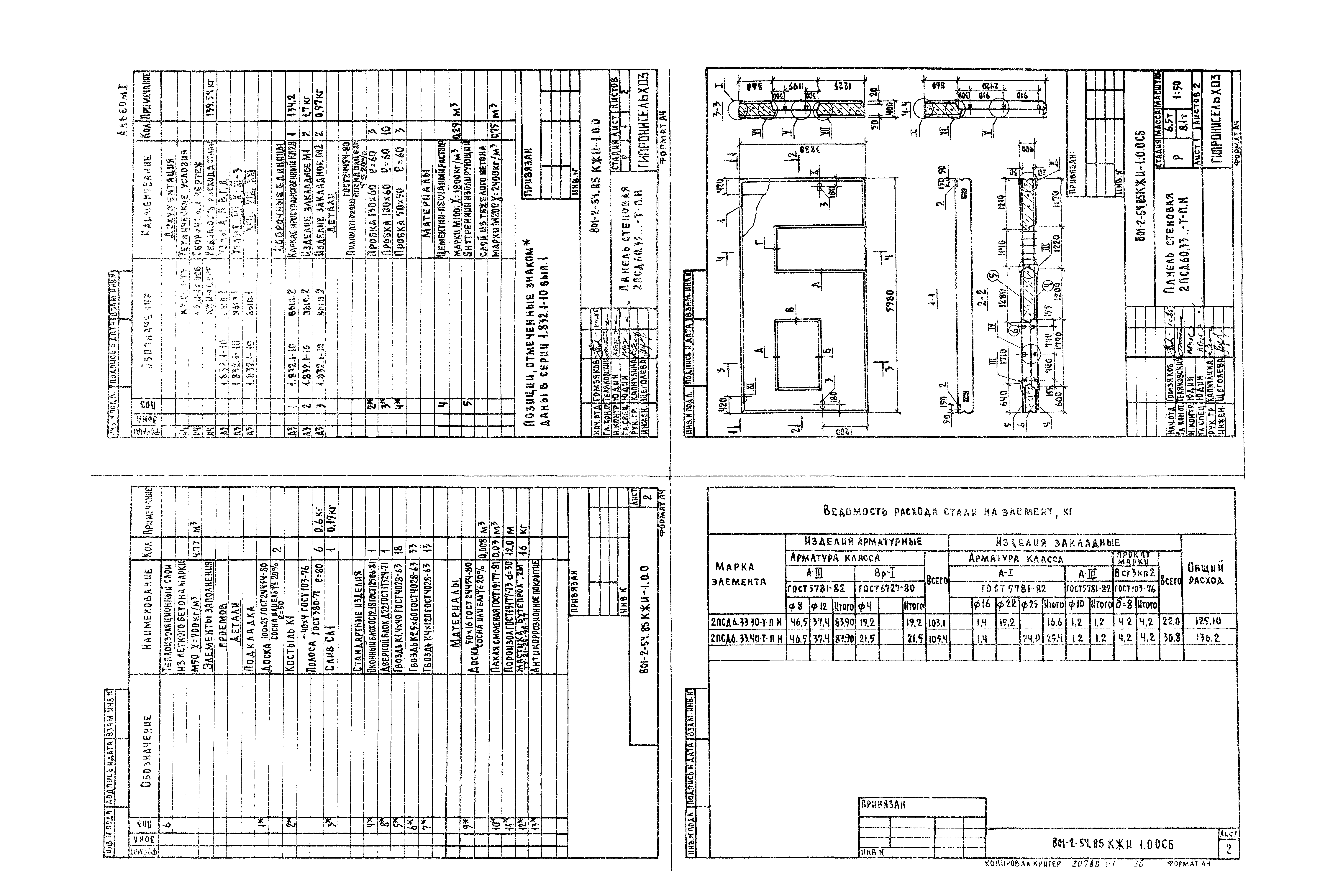
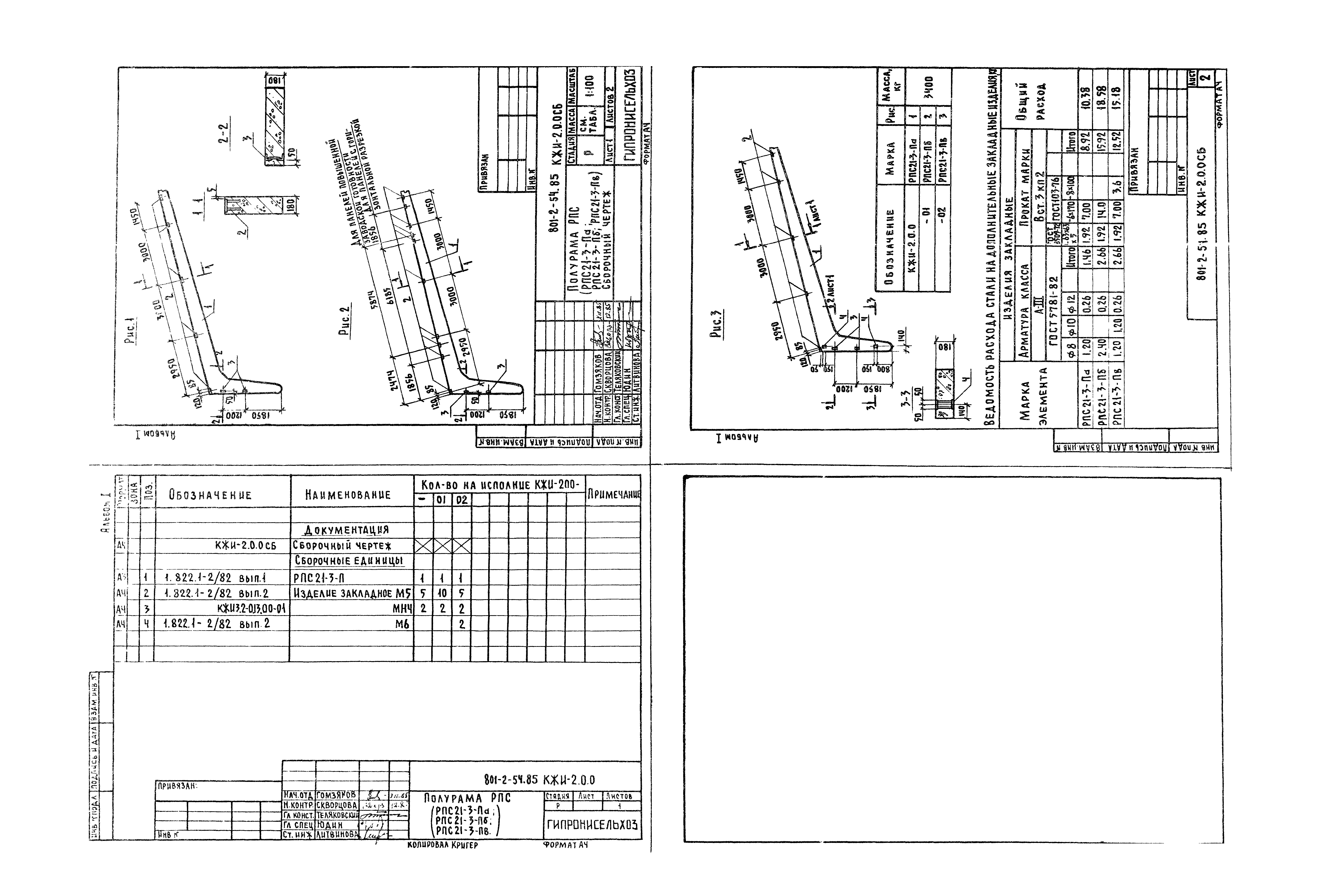
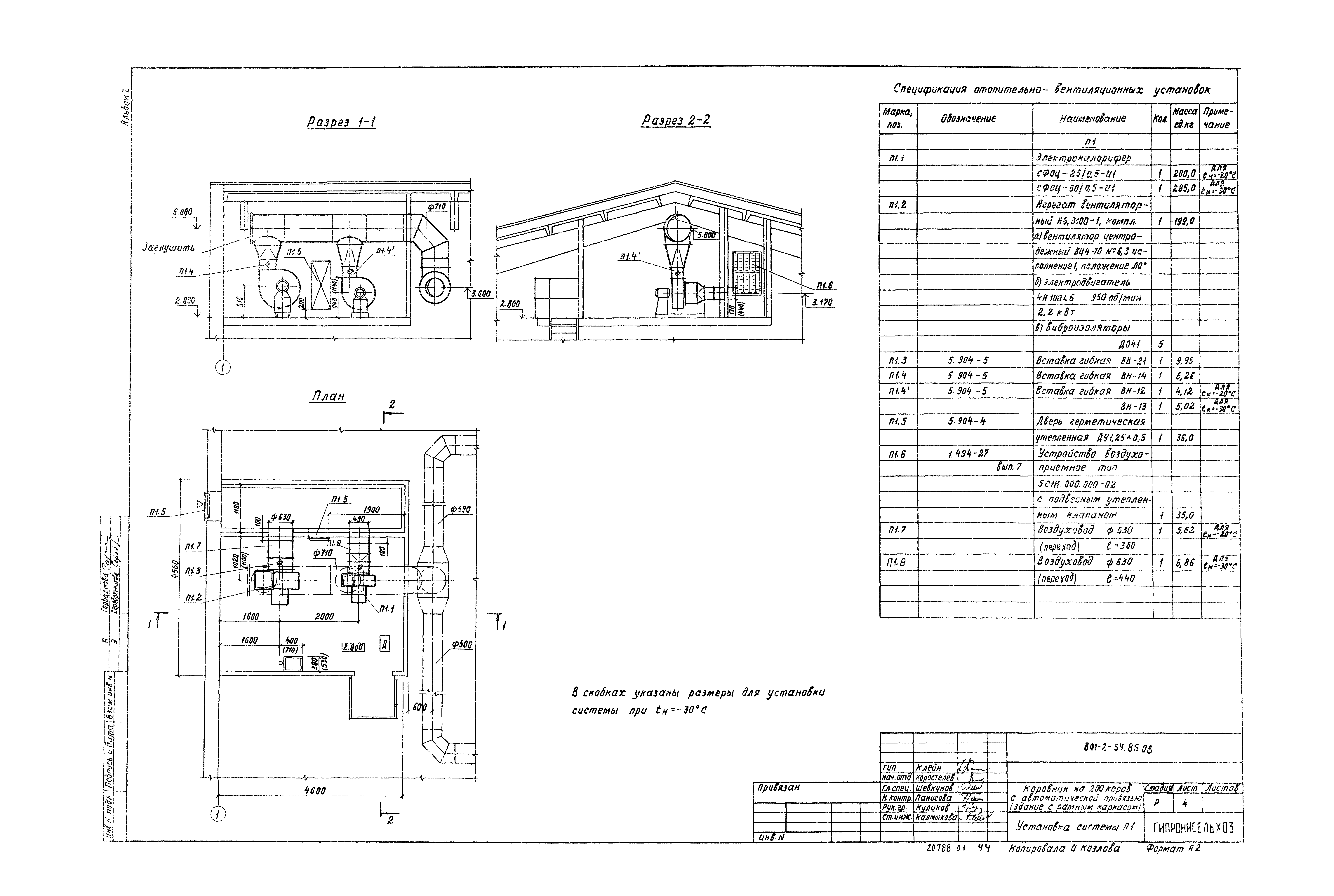
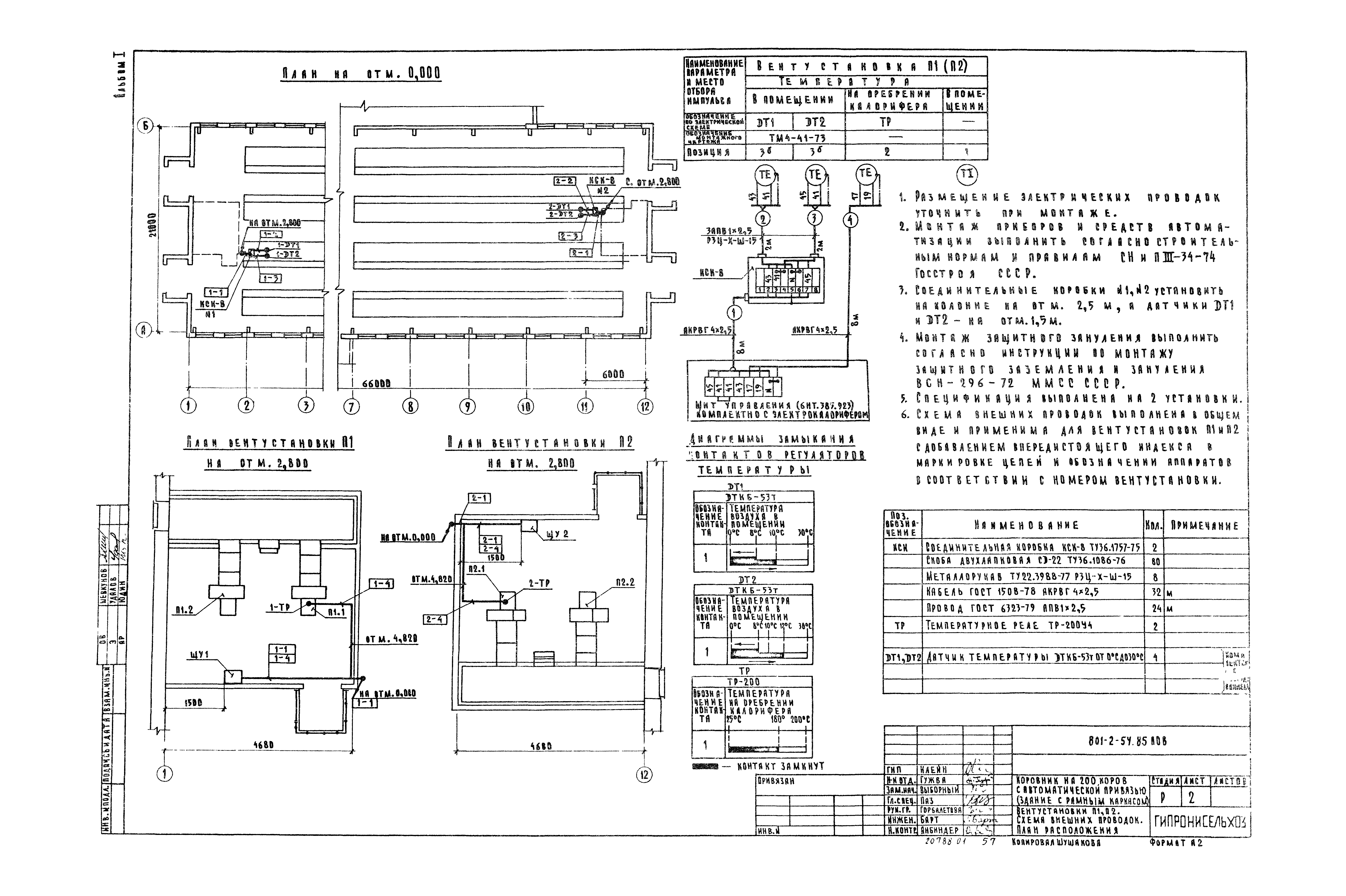
| Оглавление: | Содержание Пояснительная записка Основной комплект рабочих чертежей марки ТХ Общие данные План, разрез Разрезы, узлы Разрезы, виды, детали Основной комплект рабочих чертежей марки АС Общие данные Планы на отм. 0.000 и 2.800. Схема заполнения оконных проемов Разрезы 1-1, 2-2, 3-3, 4-4. План кровли Фасады 1 - 12, 12 - 1, А - Б, Б - А. Стены из панелей повышенной заводской готовности Фасады 1 - 12, 12 - 1, А - Б, Б - А. Стены из панелей с горизонтальной разрезкой План полов и схема расположения перегородок и ограждений, сечения 1-1…7-7 Фрагменты 1 и 2 Узлы I...V Узлы VI…ХI Схема расположения свайных фундаментов и фундаментальных балок. Фрагмент плана 1. Узел 1 Схема расположения элементов каналов навозоудаления, кормушек и полов. Узлы, сечения, фрагмент плана 1 Схемы расположения плит полов стойл, фрагмент плана 2, приямок ПЯм1. Узлы. Сечения Схемы расположения элементов каркаса и плит перекрытия Схемы расположения панелей (стены из панелей повышенной заводской готовности) Спецификация к схемам расположения стеновых панелей (стены из панелей повышенной заводской готовности) Схемы расположения панелей (стены из панелей с горизонтальной разрезкой) Спецификация к схемам расположения панелей (стены из панелей с горизонтальной разрезкой) Узлы I...VII Узлы VIII…ХV Узлы ХVI…ХХII Основной комплект рабочих чертежей марки КМ Общие данные Техническая спецификация стали Схемы расположения металлических элементов площадок на отм. 2.800, узлы, сечения Схема металлических балок и ограждений приямка ПЯм1. Узлы, сечения Строительные изделия Панель стеновая КЖИ-1.0.0.СБ. Панель стеновая КЖИ-1.0.0 Полурамы КЖИ-2.0.0.СБ; полурамы КЖИ 2.0.0 Основной комплект рабочих чертежей марки ВК Общие данные Коровник №1. План на отм. 0.000. Схемы систем В0, 73, 74, Т31 Коровник №1а. План на отм. 0.000. Схемы систем В0, Т31 Основной комплект рабочих чертежей марки ОВ Общие данные План на отм. 0.000. Разрез 1-1. Схемы систем П1, П2, ВЕ1 - ВЕ14 Установка системы П1 Установка системы П2 Эскизные чертежи общих видов нетиповых конструкций систем отопления и вентиляции Основной комплект рабочих чертежей марки Э Общие данные Электроосвещение и силовое электрооборудование. Спецификация Электроосвещение. План электросети Силовое электрооборудование. План электросети коровника №1. Фрагмент плана электросети коровника №1а Электроосвещение и силовое электрооборудование. План трубной разводки. Ведомости объемов электромонтажных и строительных работ Электроосвещение и силовое электрооборудование. Расчетная схема сети 380/220 В Основной комплект рабочих чертежей марки АОВ Общие данные. Вентустановка П1(П2). Схема функциональная Вентустановки П1, П2. Схема внешних проводок. План расположения Основной комплект рабочих чертежей марки СС Общие данные. План расположения сетей связи и сигнализации |
| Разработан: | ВИЭСХ Институт Гипронисельхоз |
| Утверждён: | 16.02.1984 Минсельхоз СССР (USSR Minselkhoz 7-ЭГ) |






















































