Скачать Типовой проект 801-2-54.85 Часть 1. Панели для варианта стен вертикальной разрезки (из типового проекта 801-2-55.85)Дата актуализации: 01.01.2021
|
| Обозначение: | Типовой проект 801-2-54.85 |
| Обозначение англ: | 801-2-54.85 |
| Статус: | не определен законодательством |
| Название рус.: | Часть 1. Панели для варианта стен вертикальной разрезки (из типового проекта 801-2-55.85) |
| Дата добавления в базу: | 01.09.2013 |
| Дата актуализации: | 01.01.2021 |
| Дата введения: | 19.09.1984 |
| Дата окончания срока действия: | 30.06.2003 |
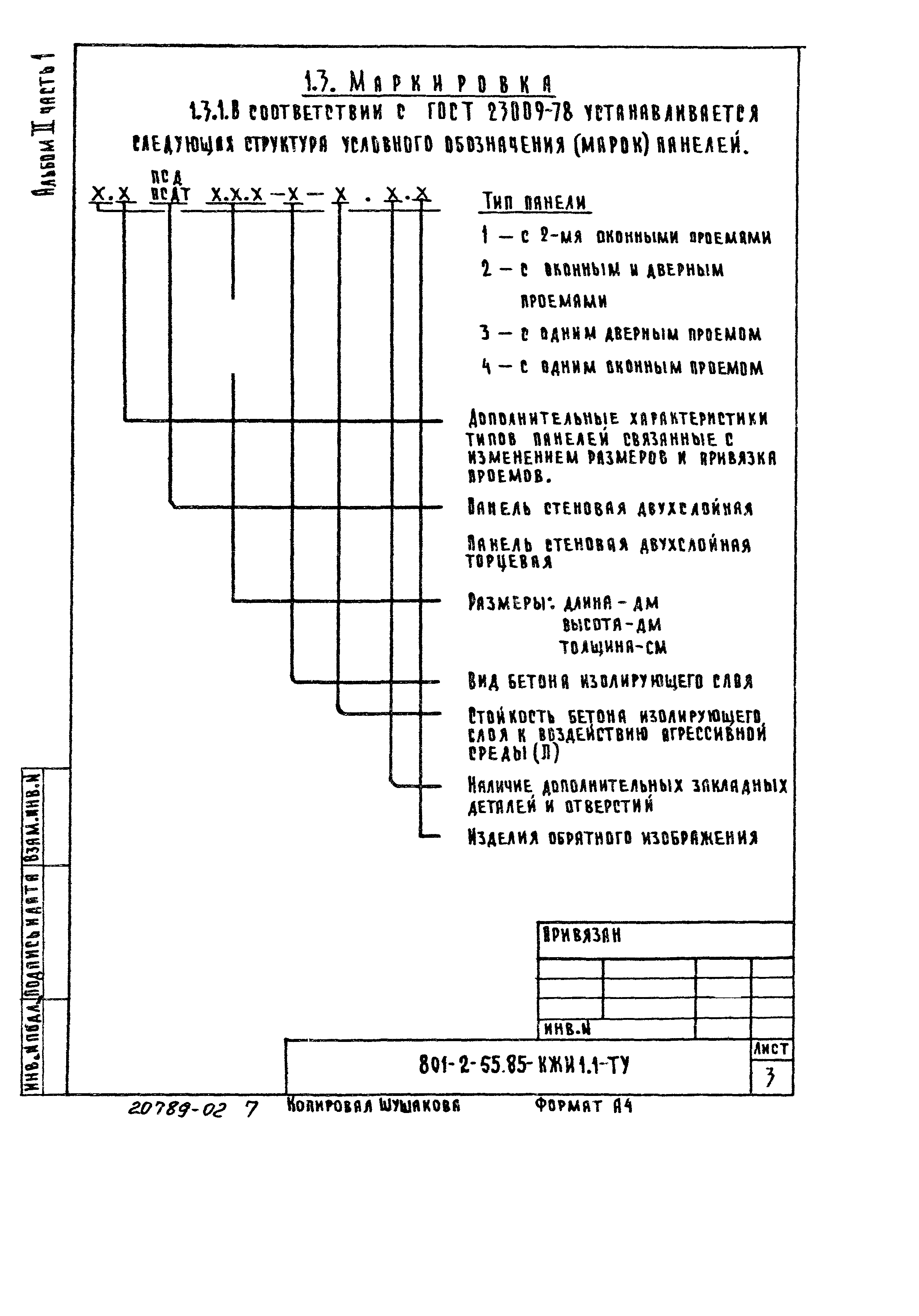
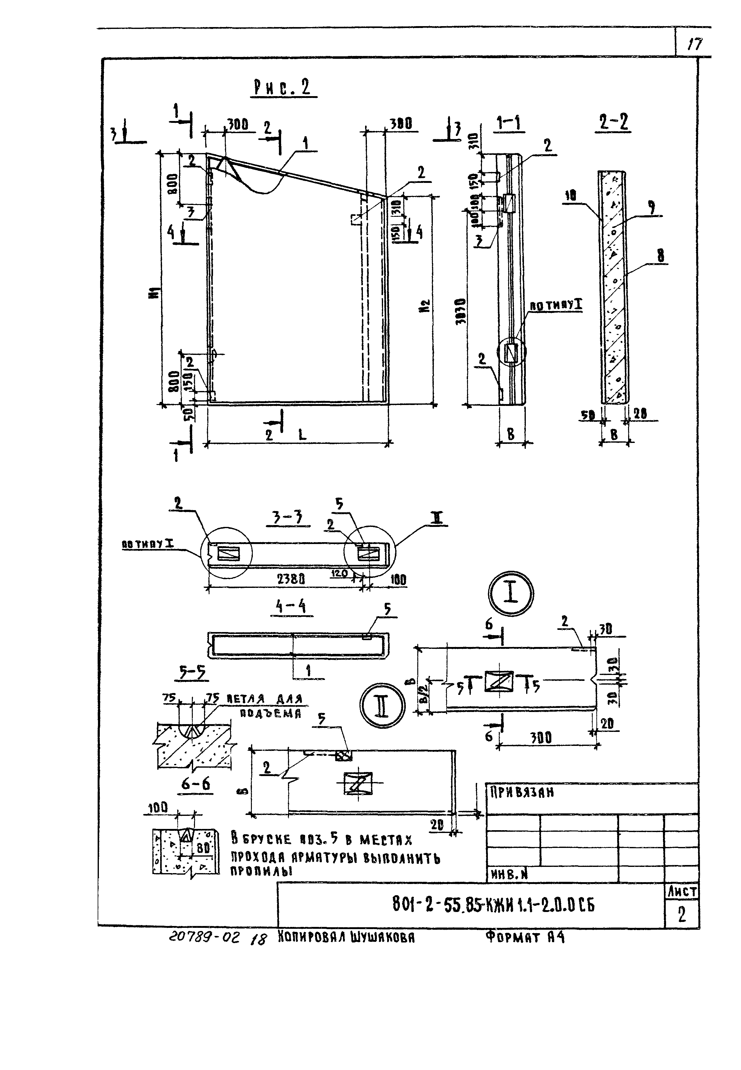
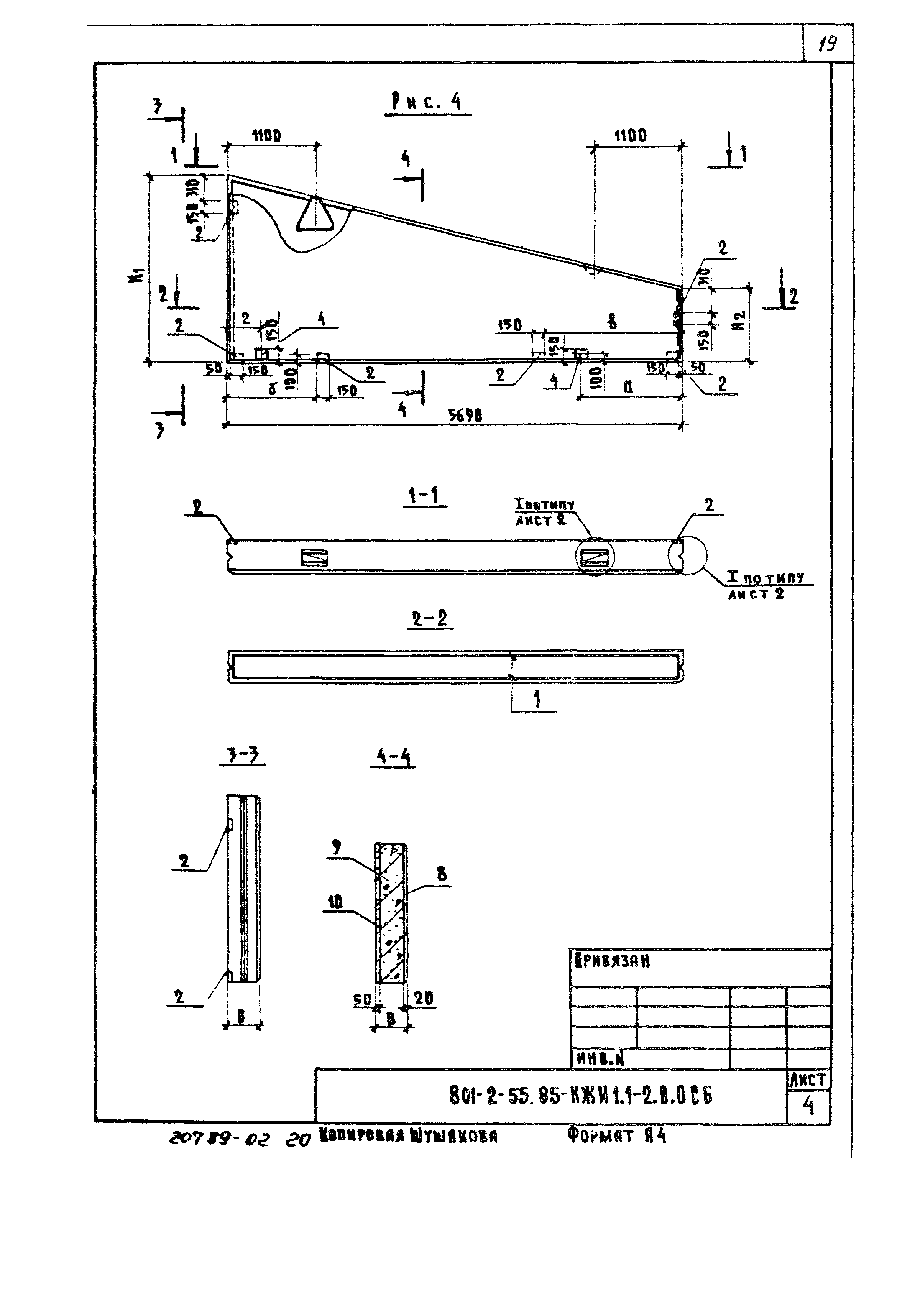
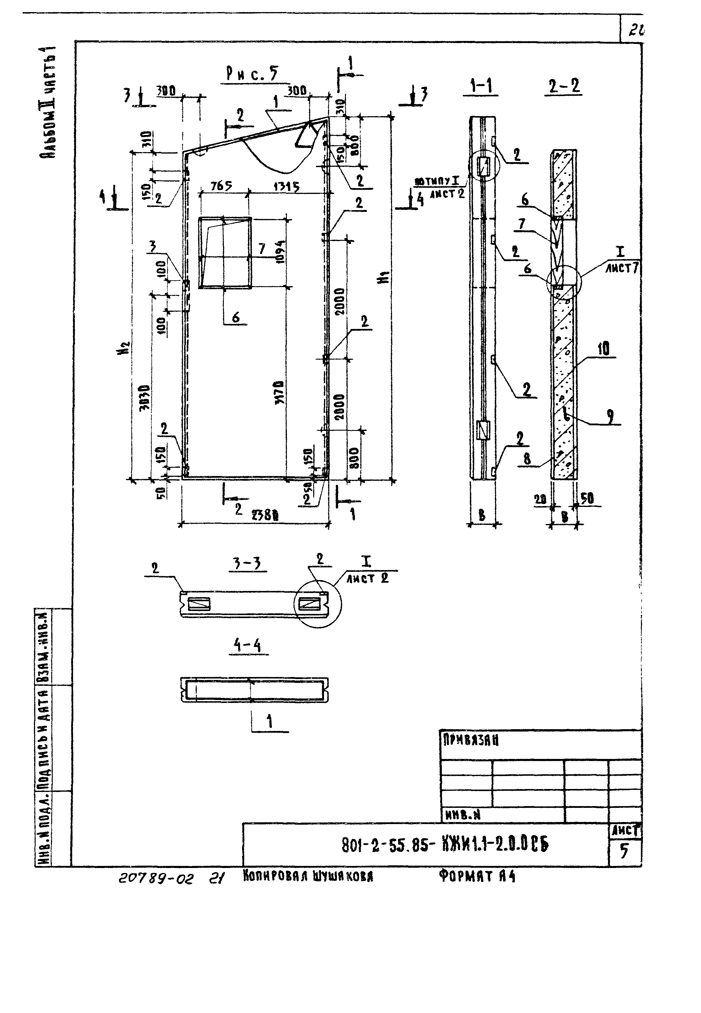
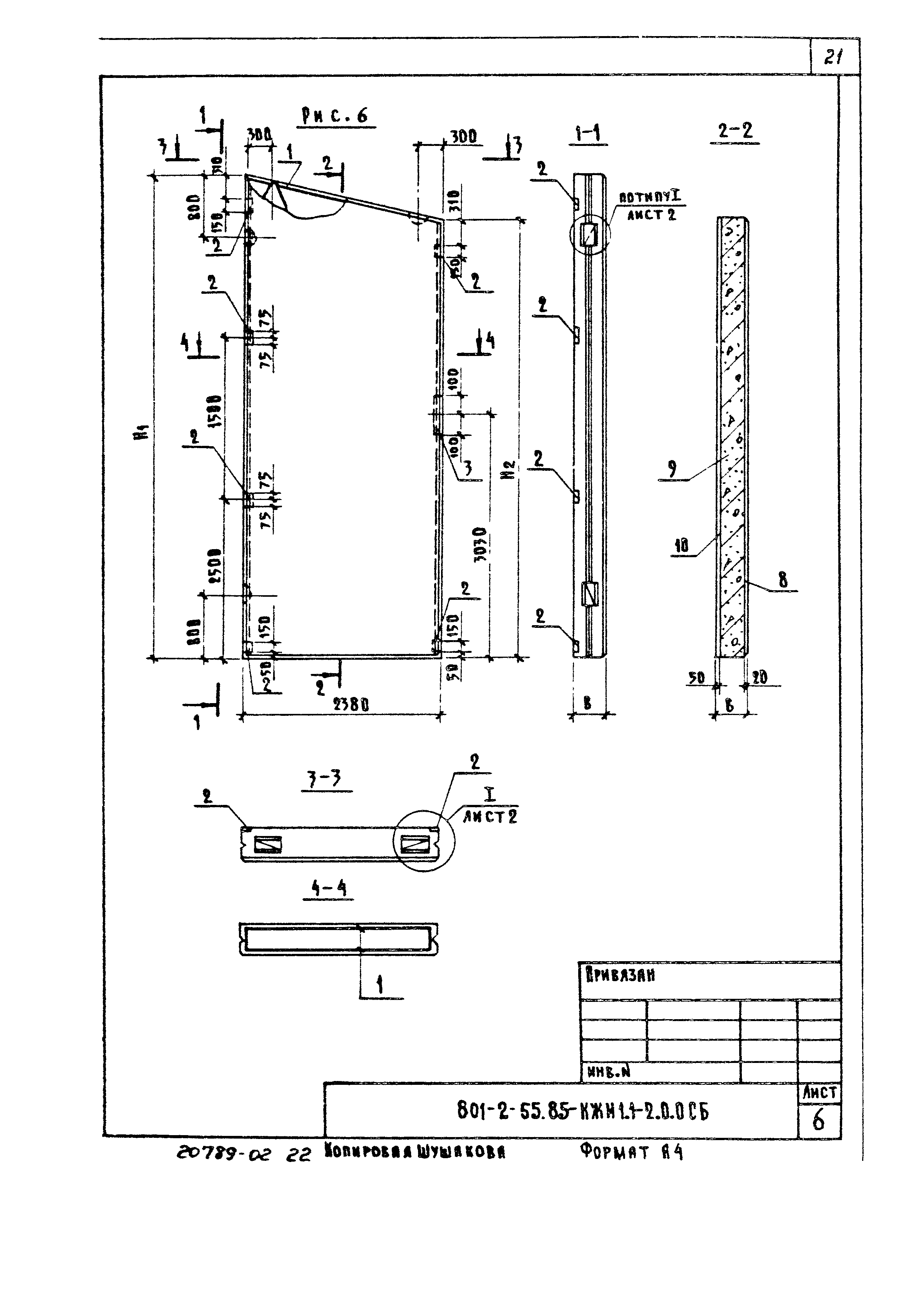
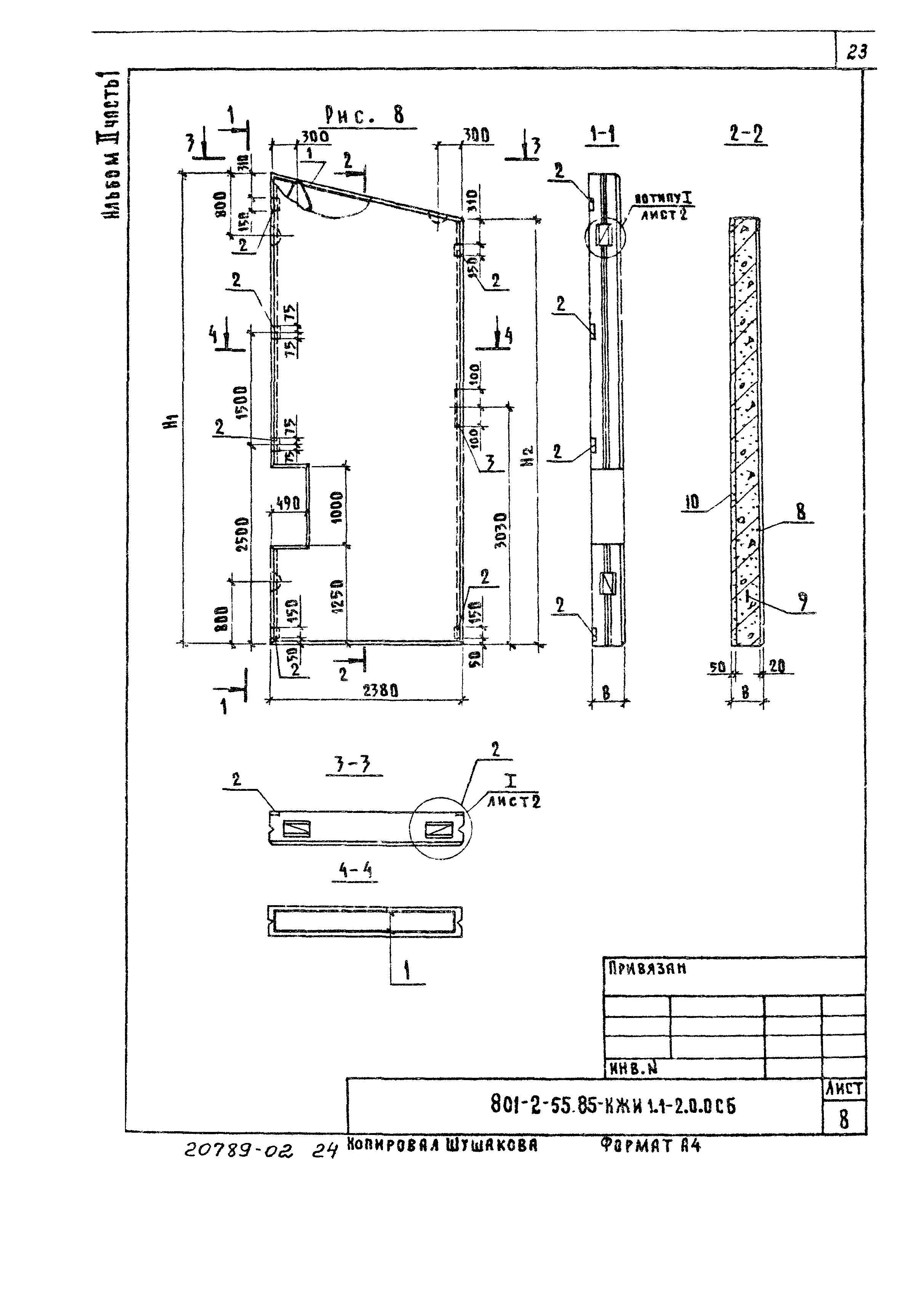
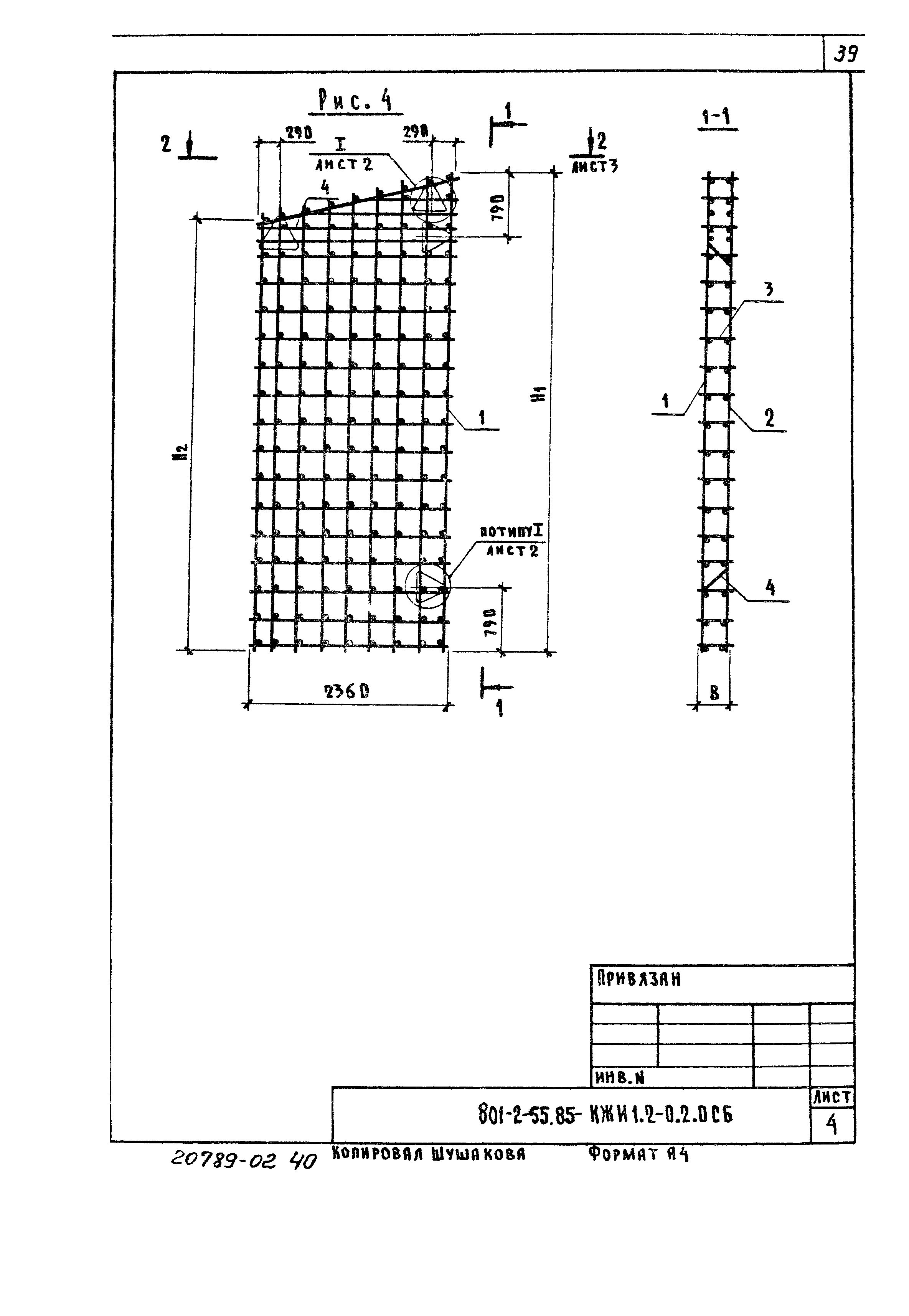
| Оглавление: | Содержание Часть 1.1. Опалубочные чертежи и армирование КЖИ1.1-ТУ Технические условия КЖИ1.1-1.0.0 Панель стеновая 4ПСД(4ПСД6.33…-т-п; 4ПСД6.33…-т-п.н) КЖИ1.1-1.0.0СБ Панель стеновая 4ПСД(4ПСД6.33…-т-п; 4ПСД6.33…-т-п.н). Сборочный чертеж КЖИ1.1-2.0.0 Панель стеновая ПСД(ПСД…40…-т-п; ПСД…40-т-п.н; ПСД57.24…-т-п; ПСД57.24…-т-п.н; 4ПСДТ24.60…-т-п; 4ПСДТ24.60…-т-п.1; ПСДТ24.60…-т-п; ПСДТ24.60…-т-п.1) КЖИ1.1-2.0.0СБ Панель стеновая ПСД(ПСД…40…-т-п; ПСД…40-т-п.н; ПСД57.24…-т-п; ПСД57.24…-т-п.н; 4ПСДТ24.60…-т-п; 4ПСДТ24.60…-т-п.1; ПСДТ24.60…-т-п; ПСДТ24.60…-т-п.1). Сборочный чертеж КЖИ1.1-РС Ведомость расхода стали Часть 1.2. Арматурные изделия КЖИ1.2-ТУ Технические условия КЖИ1.2-0.1.0 Каркас пространственный КП1 КЖИ1.2-0.1.0 Каркас пространственный КП1. Сборочный чертеж КЖИ1.2-0.2.0 Каркас пространственный (КП2…КП7) КЖИ1.2-0.2.0СБ Каркас пространственный (КП2…КП7). Сборочный чертеж КЖИ1.2-0.3.0 Сетка арматурная (С1…С3) КЖИ1.2-0.3.0СБ Сетка арматурная (С1…С3). Сборочный чертеж КЖИ1.2-0.4.0 Сетка арматурная (С1-1; С1-2; С1-1н; С1-2н; С2-1; С2-2; С2-1н; С2-2н; С3-1; С3-2; С3-1н; С3-2н) КЖИ1.2-0.4.0СБ Сетка арматурная (С1-1; С1-2; С1-1н; С1-2н; С2-1; С2-2; С2-1н; С2-2н; С3-1; С3-2; С3-1н; С3-2н). Сборочный чертеж |
| Разработан: | ВИЭСХ Институт Гипронисельхоз |
| Утверждён: | 16.02.1984 Минсельхоз СССР (USSR Minselkhoz 7-ЭГ) |



















































