Скачать Серия 1.494-24 Выпуск 2/90. Стальные стаканы с наружным диаметром 400, 720, 1020, 1220 и 1420 мм для установки на покрытия со стальным профилированным настилом. Чертежи КМДата актуализации: 01.01.2021
|
| Обозначение: | Серия 1.494-24 |
| Обозначение англ: | Series 1.494-24 |
| Статус: | действует |
| Название рус.: | Выпуск 2/90. Стальные стаканы с наружным диаметром 400, 720, 1020, 1220 и 1420 мм для установки на покрытия со стальным профилированным настилом. Чертежи КМ |
| Дата добавления в базу: | 01.09.2013 |
| Дата актуализации: | 01.01.2021 |
| Дата введения: | 01.09.1990 |
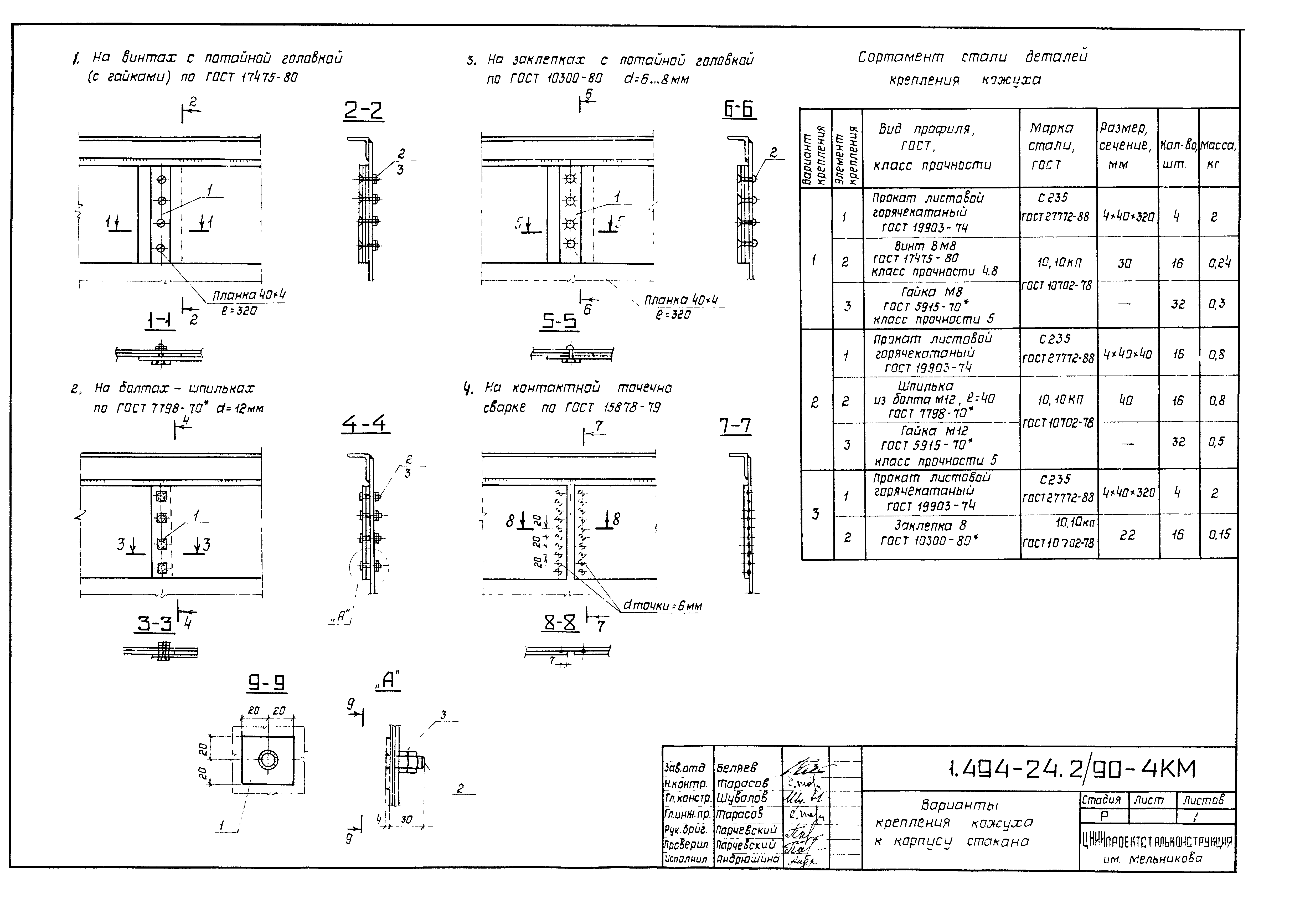
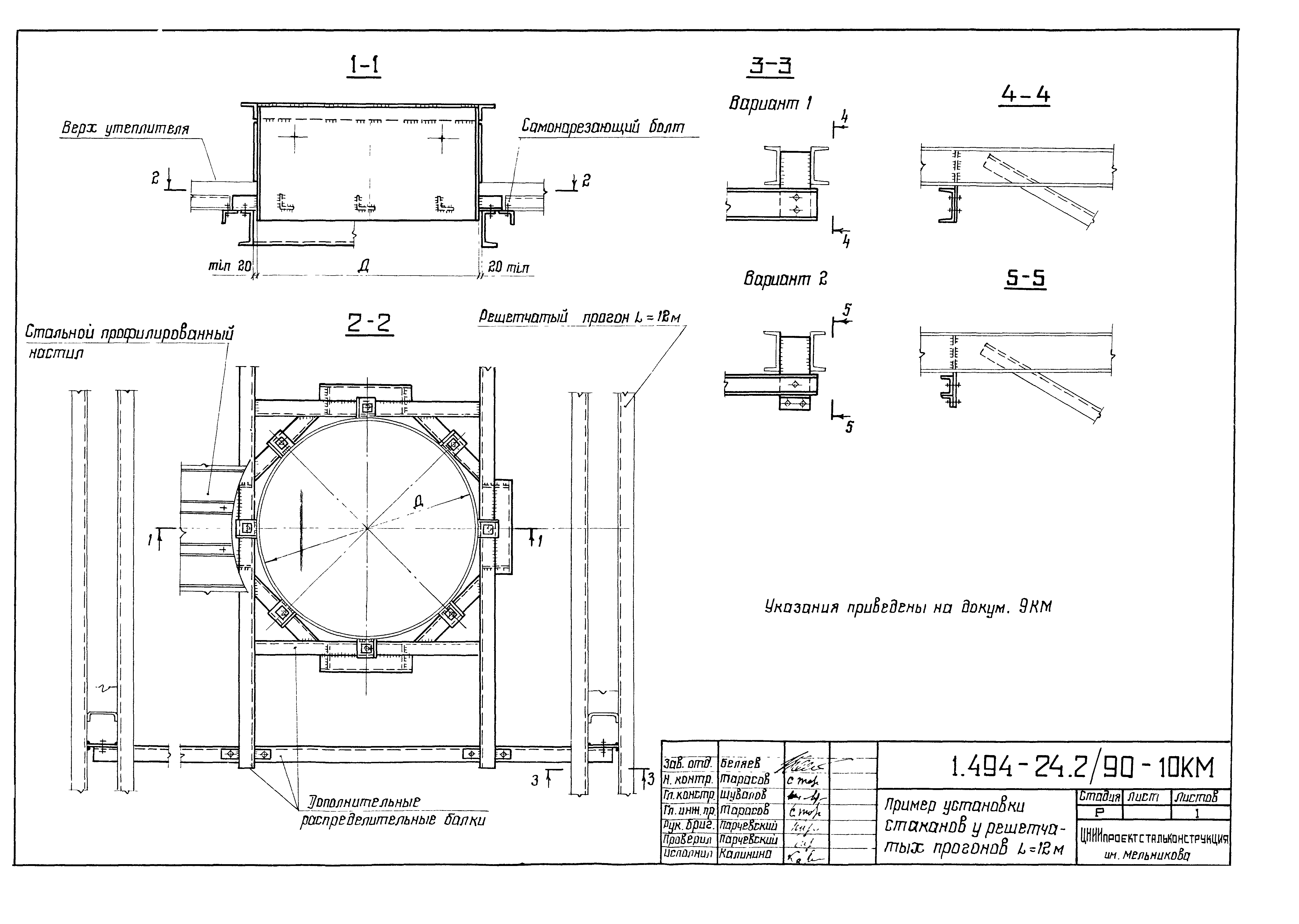
| Оглавление: | 1.494-24.2/90 Содержание 1.494-24.2/90-ПЗ Пояснительная записка 1.494-24.2/90-1КМ Стакан С1 1.494-24.2/90-2КМ Стакан С2 1.494-24.2/90-3КМ Стаканы С3, С4, С5 1.494-24.2/90-4КМ Варианты крапления кожуха к корпусу стакана 1.494-24.2/90-5КМ Позиции 1,2,3,4 стаканов 1.494-24.2/90-6КМ Сортамент стаканов 1.494-24.2/90-7КМ Спецификация стали стаканов 1.494-24.2/90-8КМ Пример креплений стаканов к дополнительным распределительным балкам 1.494-24.2/90-9КМ Пример установки стаканов у прогонов L=6м 1.494-24.2/90-10КМ Пример установки стаканов у решетчатых прогонов L=12м 1.494-24.2/90-11КМ Пример установки стаканов у сквозных прогонов L=12м |
| Разработан: | ЦНИИпроектстальконструкция |
| Утверждён: | 22.06.1989 Госстрой СССР (Государственный комитет Совета Министров СССР по делам строительства) (USSR Gosstroy ) |
| Издан: | ЦИТП Госстроя СССР (CITP, Gosstroy (USSR) 1990 г. ) |
| Заменяет собой: |
















