Скачать Серия 2.430-20 Выпуск 3. Узлы сопряжения стен из кирпича с железобетонным каркасом. Рабочие чертежиДата актуализации: 01.01.2021
|
| Обозначение: | Серия 2.430-20 |
| Обозначение англ: | Series 2.430-20 |
| Статус: | действует |
| Название рус.: | Выпуск 3. Узлы сопряжения стен из кирпича с железобетонным каркасом. Рабочие чертежи |
| Дата добавления в базу: | 01.09.2013 |
| Дата актуализации: | 01.01.2021 |
| Дата введения: | 01.10.1986 |
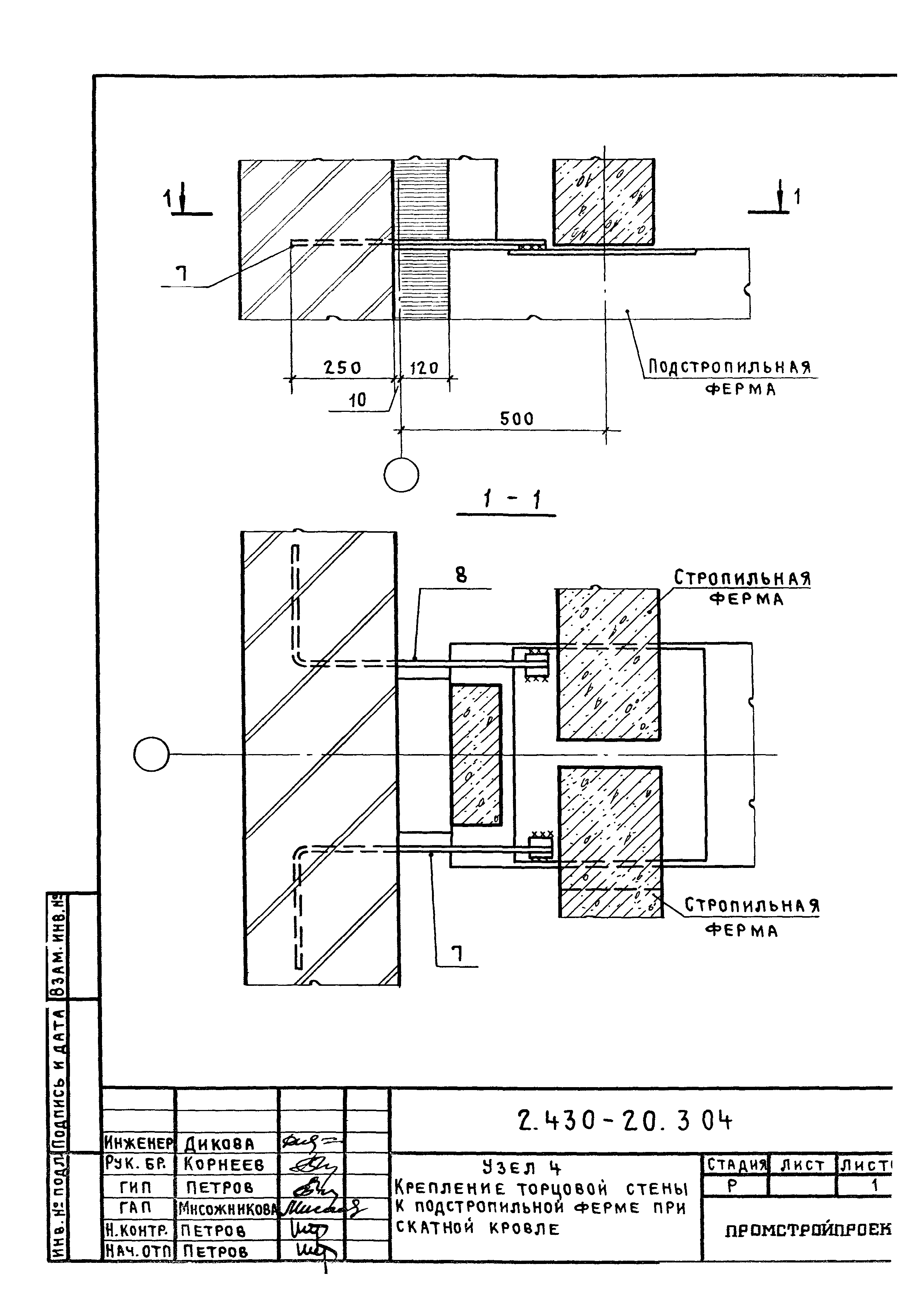
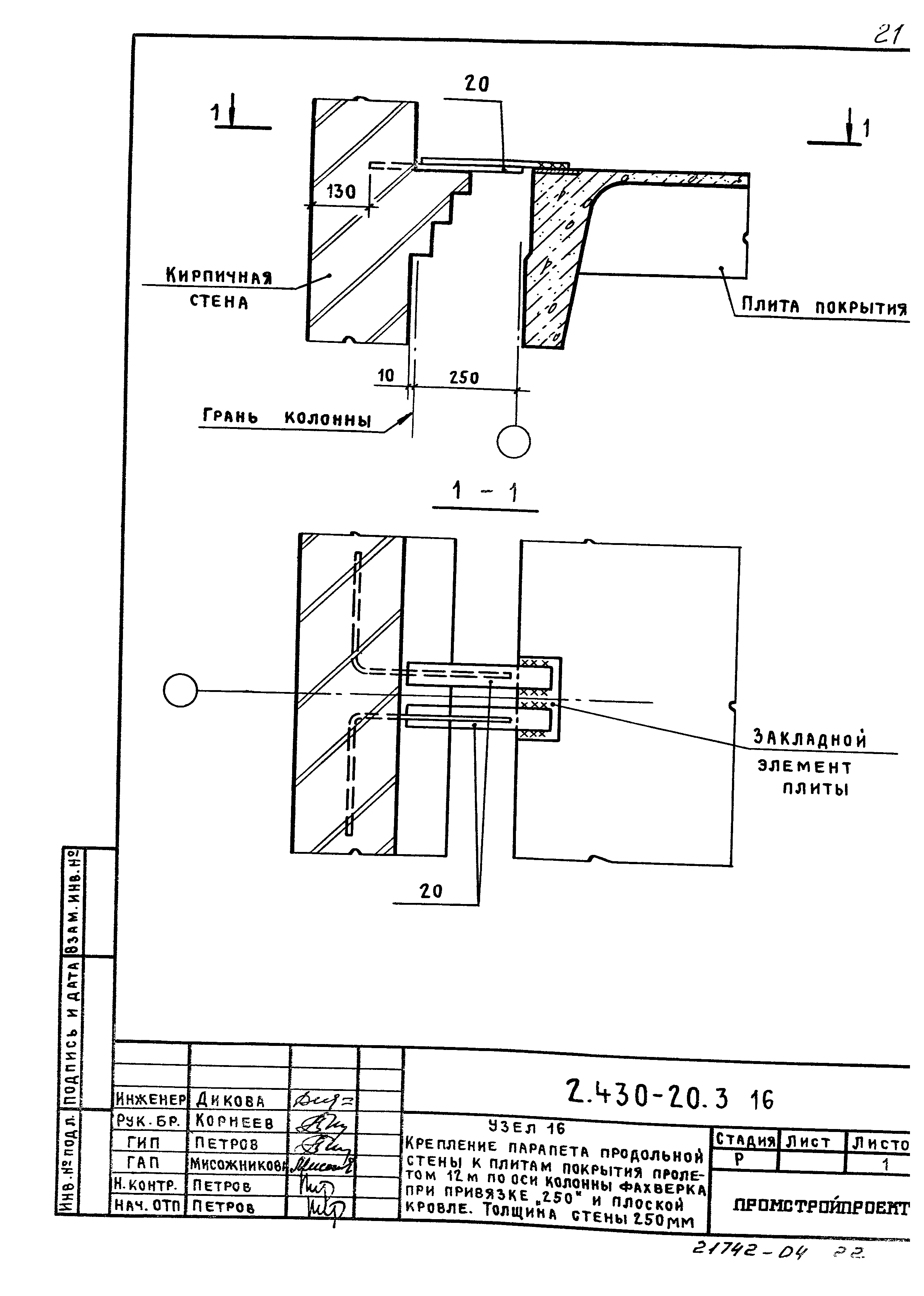
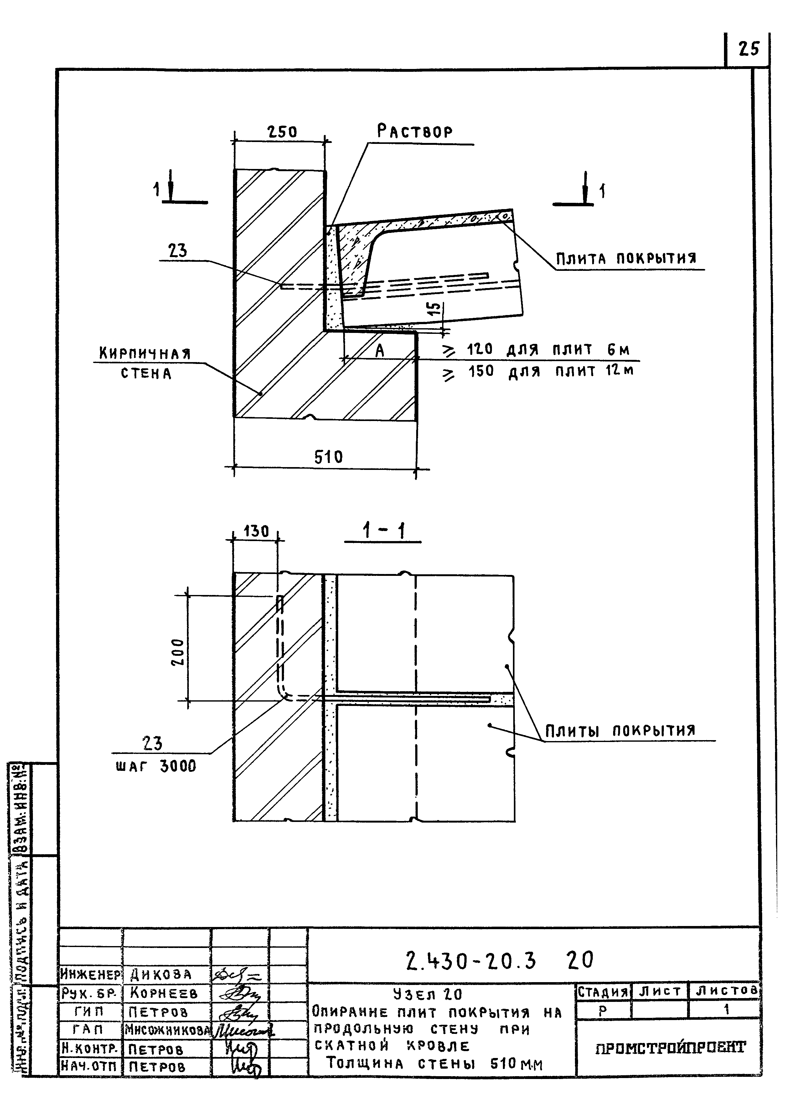
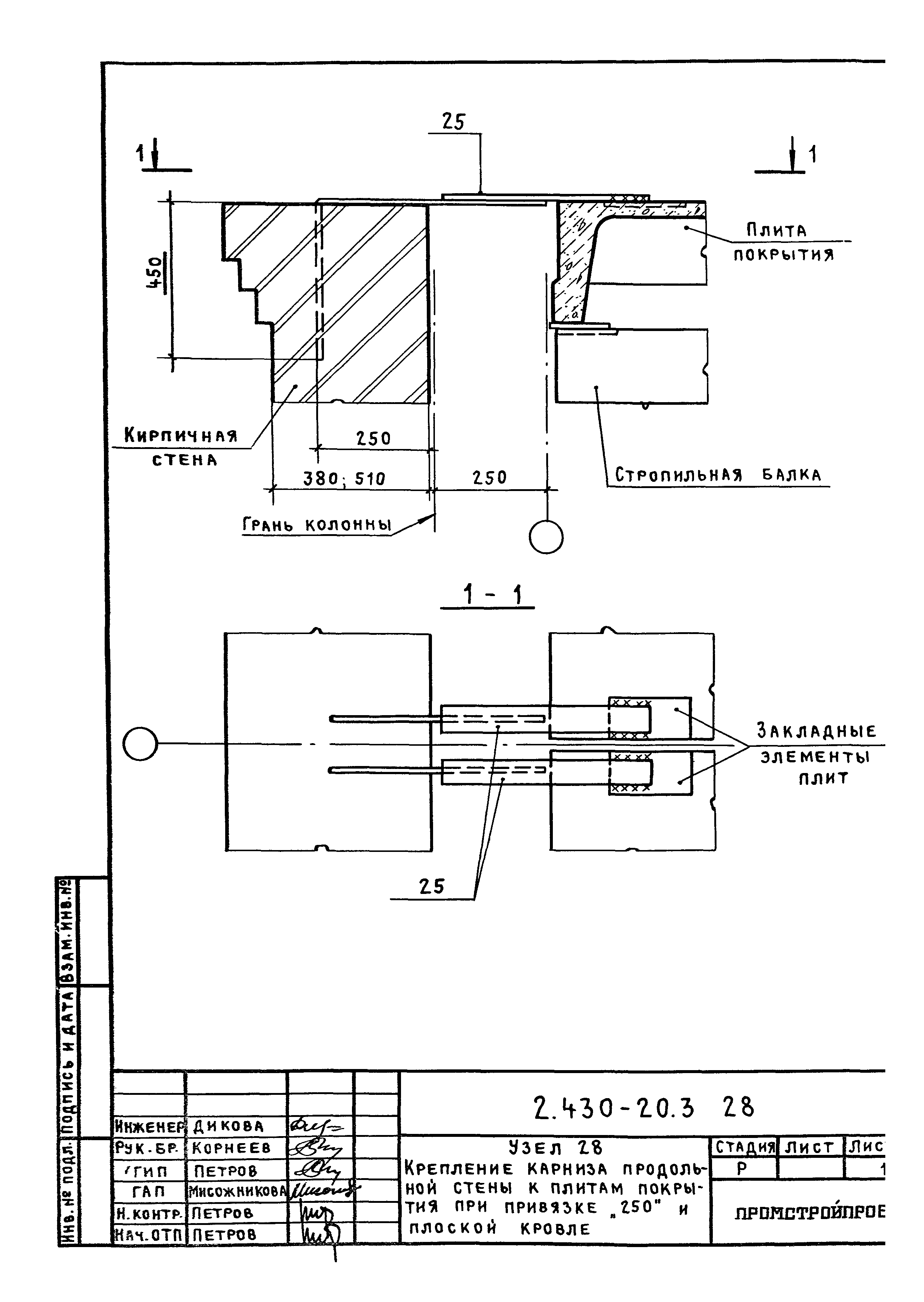
| Оглавление: | 2.430-20.3 00 ПЗ Пояснительная записка 2.430-20.3 01 Узел 1. Крепление продольной или торцевой стены к железобетонной колонне 2.430-20.3 02 Узел 2, 2а. Крепление торцевой стены к железобетонной прямоугольной колонне среднего ряда 2.430-20.3 03 Узел 3. Крепление торцевой стены к железобетонной двухветвевой колонне среднего ряда 2.430-20.3 04 Узел 4. Крепление торцевой стены к стропильной ферме при скатной кровле 2.430-20.3 05 Узел 5. Крепление продольной стены к стропильной ферме при привязке "0" и плоской кровле 2.430-20.3 06 Узел 6, 6а, 6б. Крепление парапета продольной стены к плитам покрытия при привязке "0" и скатной кровле 2.430-20.3 07 Узел 7. Крепление парапета продольной стены к плитам покрытия при привязке "250" и скатной кровле. Толщина стены 250 мм 2.430-20.3 08 Узел 8, 8а. Крепление парапета продольной стены к плитам покрытия при привязке "250" и скатной кровле. Толщина стены 380 и 510 мм 2.430-20.3 09 Узел 9, 9а, 9б. Крепление парапета продольной стены к плитам покрытия пролетом 12 м по оси колонны фахверка при привязке "0" и скатной кровле 2.430-20.3 10 Узел 10. Крепление парапета продольной стены к плитам покрытия при привязке "250" и скатной кровле. Толщина стены 250 мм 2.430-20.3 11 Узел 11, 11а. Крепление парапета продольной стены к плитам покрытия пролетом 12 м. При привязке "250" и скатной кровле. Толщина стены 380 и 510 мм 2.430-20.3 12 Узел 12, 12а, 12б. Крепление парапета продольной стены к плитам покрытия при привязке "0" и плоской кровле 2.430-20.3 13 Узел 13. Крепление парапета продольной стены к плитам покрытия при привязке "250" и плоской кровле. Толщина стены 250 мм 2.430-20.3 14 Узел 14, 14а. Крепление парапета продольной стены к плитам покрытия при привязке "250" и плоской кровле. Толщина стены 380 и 510 мм 2.430-20.3 15 Узел 15, 15а, 15б. Крепление парапета продольной стены к плитам покрытия пролетом 12 м по оси колонны фахверка при привязке "0" и плоской кровле 2.430-20.3 16 Узел 16. Крепление парапета продольной стены к плитам покрытия пролетом 12 м по оси колонны фахверка при привязке "250" и плоской кровле. Толщина стены 250 мм 2.430-20.3 17 Узел 17. Крепление парапета продольной стены к плитам покрытия пролетом 12 м по оси колонны фахверка при привязке "250" и плоской кровле. Толщина стены 380 и 510 мм 2.430-20.3 18 Узел 18. Крепление парапета торцовой стены к плитам покрытия 2.430-20.3 19 Узел 19. Опирание плит покрытия на продольную стену при скатной кровле. Толщина стены 380 мм 2.430-20.3 20 Узел 20. Опирание плит покрытия на продольную стену при скатной кровле. Толщина стены 510 мм 2.430-20.3 21 Узел 21. Опирание плит покрытия на продольную стену при плоской кровле. Толщина стены 380 мм 2.430-20.3 22 Узел 22. Опирание плит покрытия на продольную стену при плоской кровле. Толщина стены 510 мм 2.430-20.3 23 Узел 23. Опирание стропильной балки пролетом 12 м на пилястру 2.430-20.3 24 Узел 24. Крепление карниза продольной стены к плитам покрытия при привязке "0" и скатной кровле 2.430-20.3 25 Узел 25. Крепление карниза продольной стены к плитам покрытия при привязке "250" и скатной кровле 2.430-20.3 26 Узел 26. Крепление карниза торцевой стены к плитам покрытия 2.430-20.3 27 Узел 27. Крепление карниза продольной стены к плитам покрытия при привязке "0" и плоской кровле 2.430-20.3 28 Узел 28. Крепление карниза продольной стены к плитам покрытия при привязке "250" и плоской кровле 2.430-20.3 29 Узел 29. Крепление продольной или торцевой стены к оголовку ж. б. колонны фахверка 2.430-20.3 30 Узел 30. Спецификация |
| Разработан: | Промстройпроект Госстроя СССР |
| Утверждён: | 04.08.1986 Госстрой СССР (Государственный комитет Совета Министров СССР по делам строительства) (USSR Gosstroy 104) |
| Издан: | ЦИТП Госстроя СССР (CITP, Gosstroy (USSR) 1986 г. ) |








































