Скачать РМ-2825 Конструкции, изделия и узлы унифицированные производства СПК Стройсортмет для остекления лоджий и балконов жилых домов П55М. Рабочие чертежиДата актуализации: 01.01.2021 РМ-2825
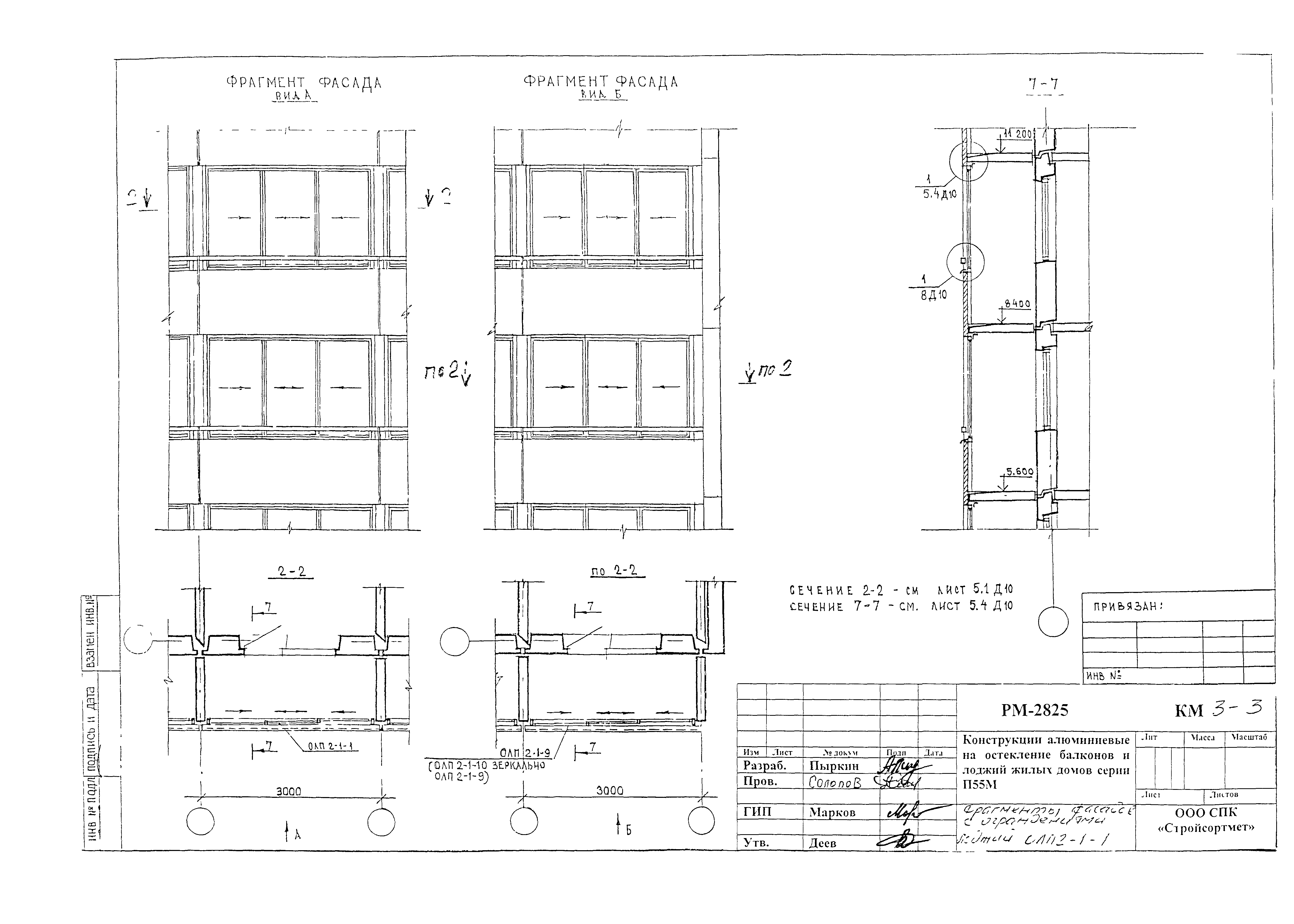
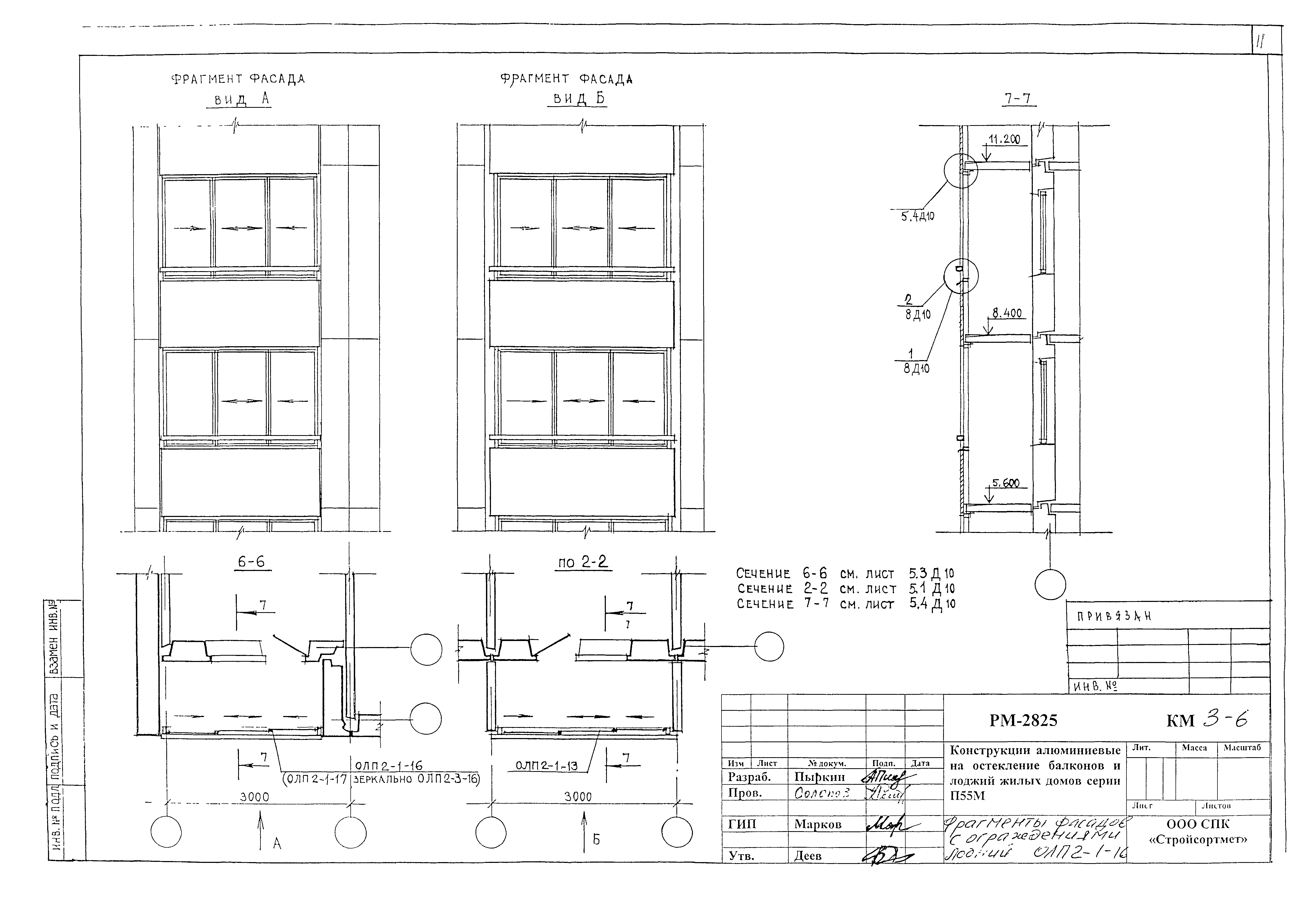
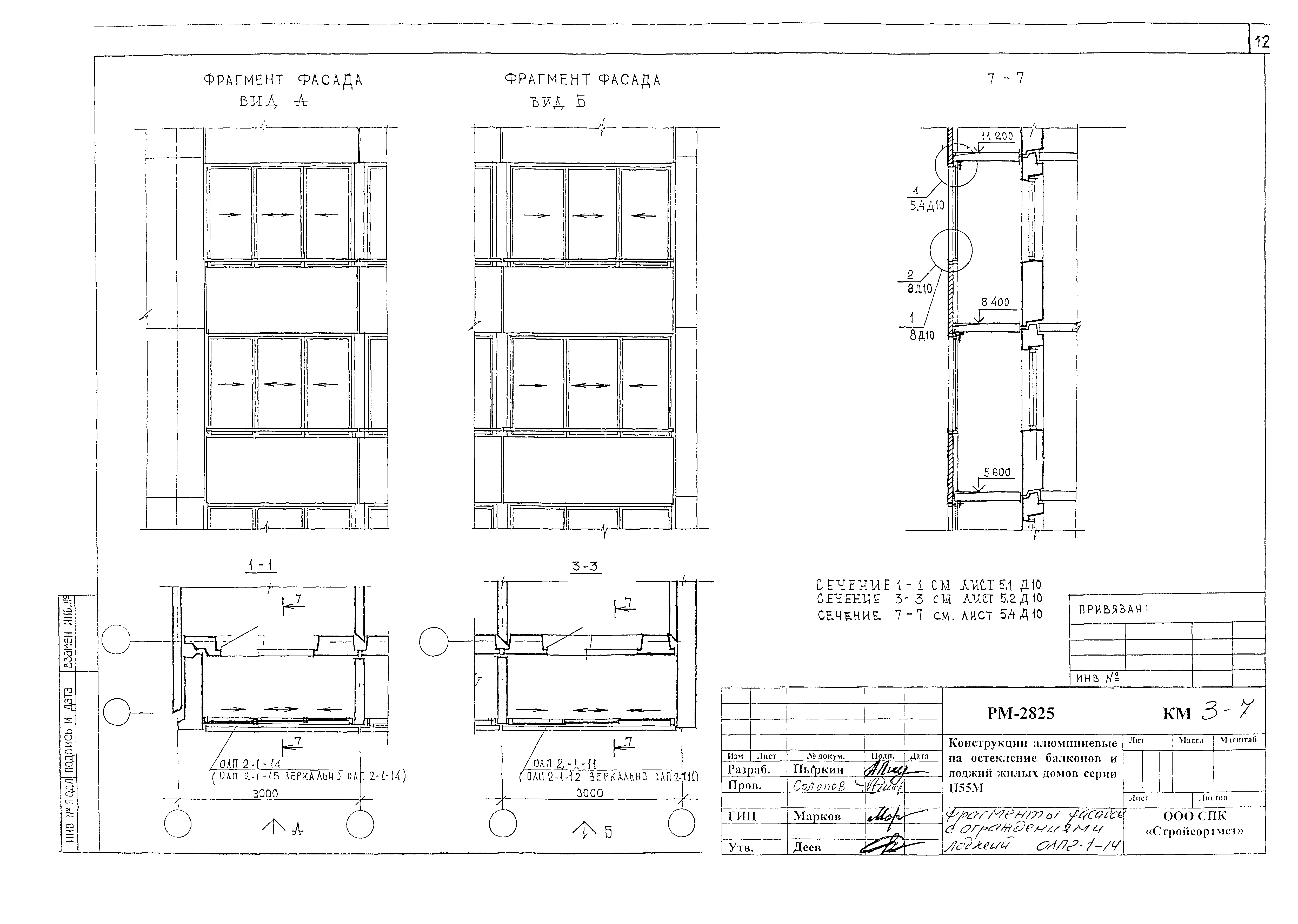
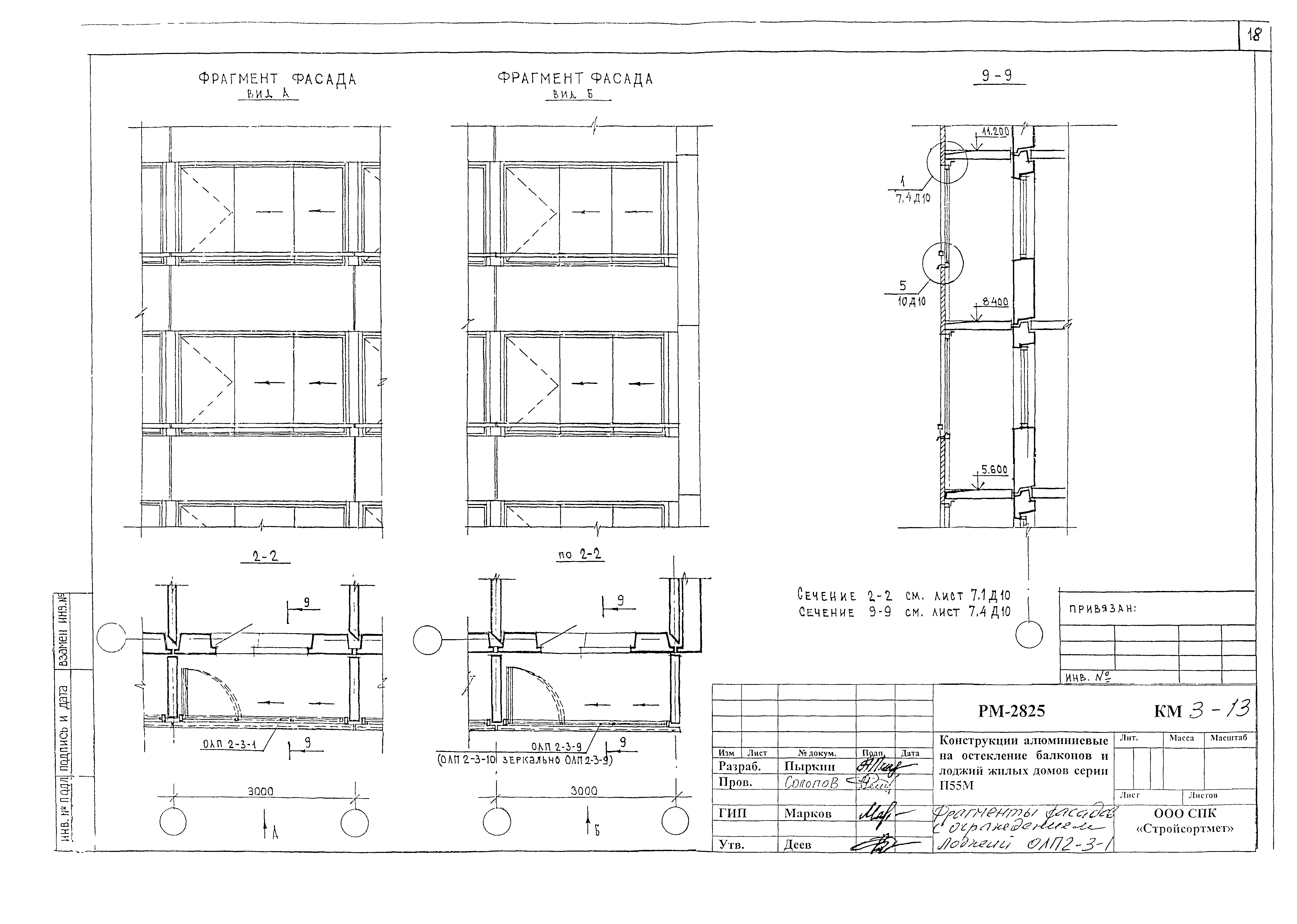
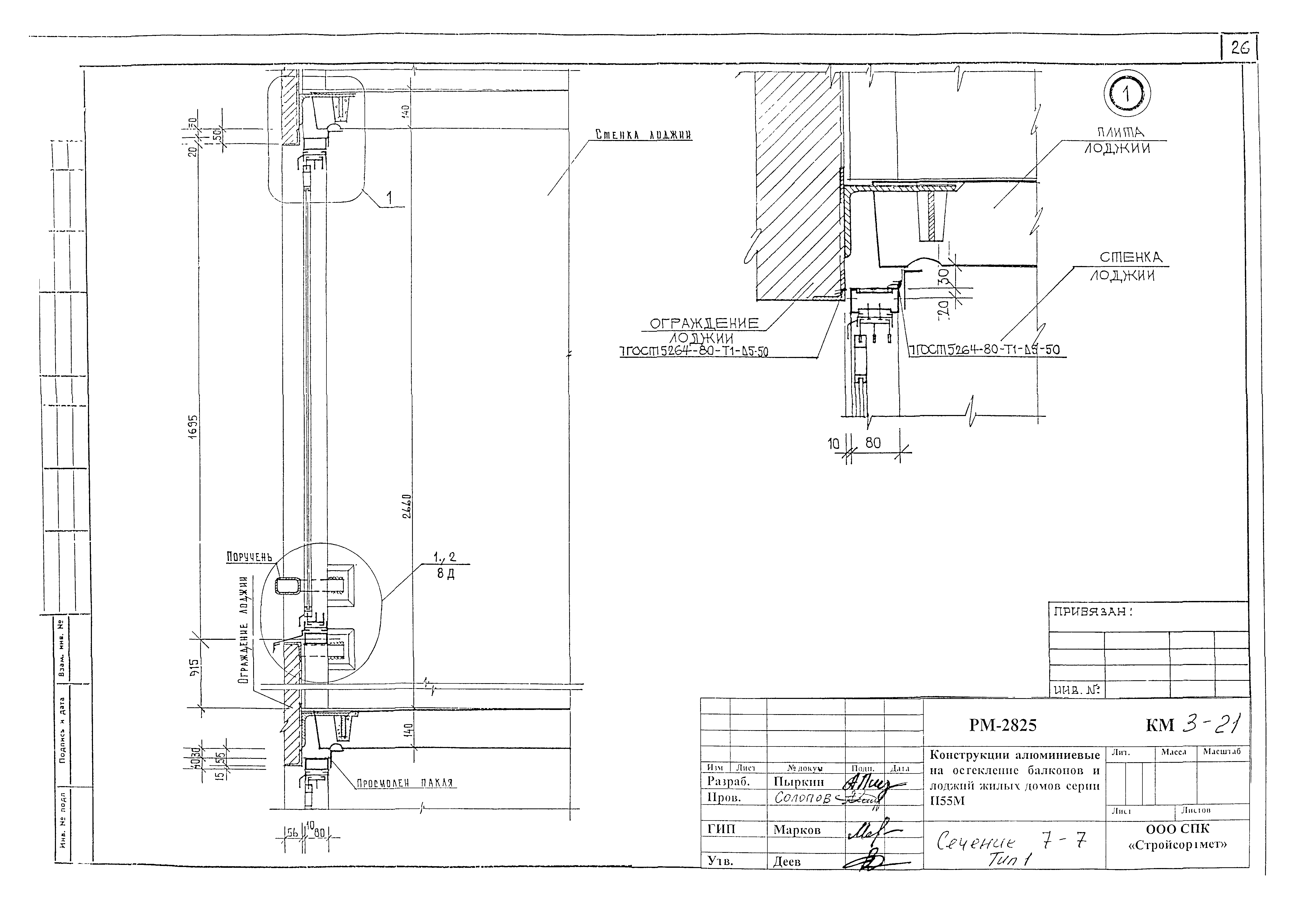
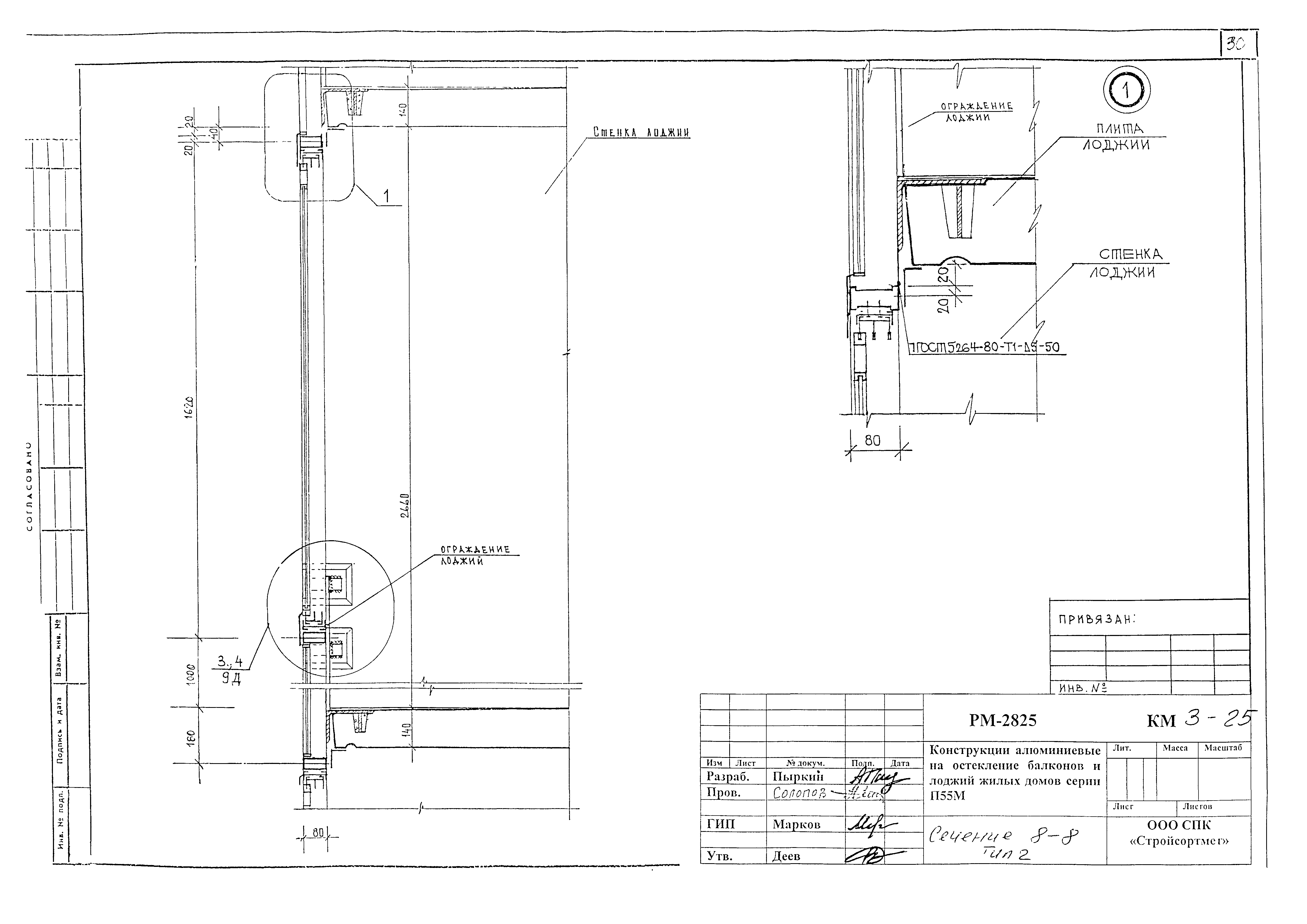
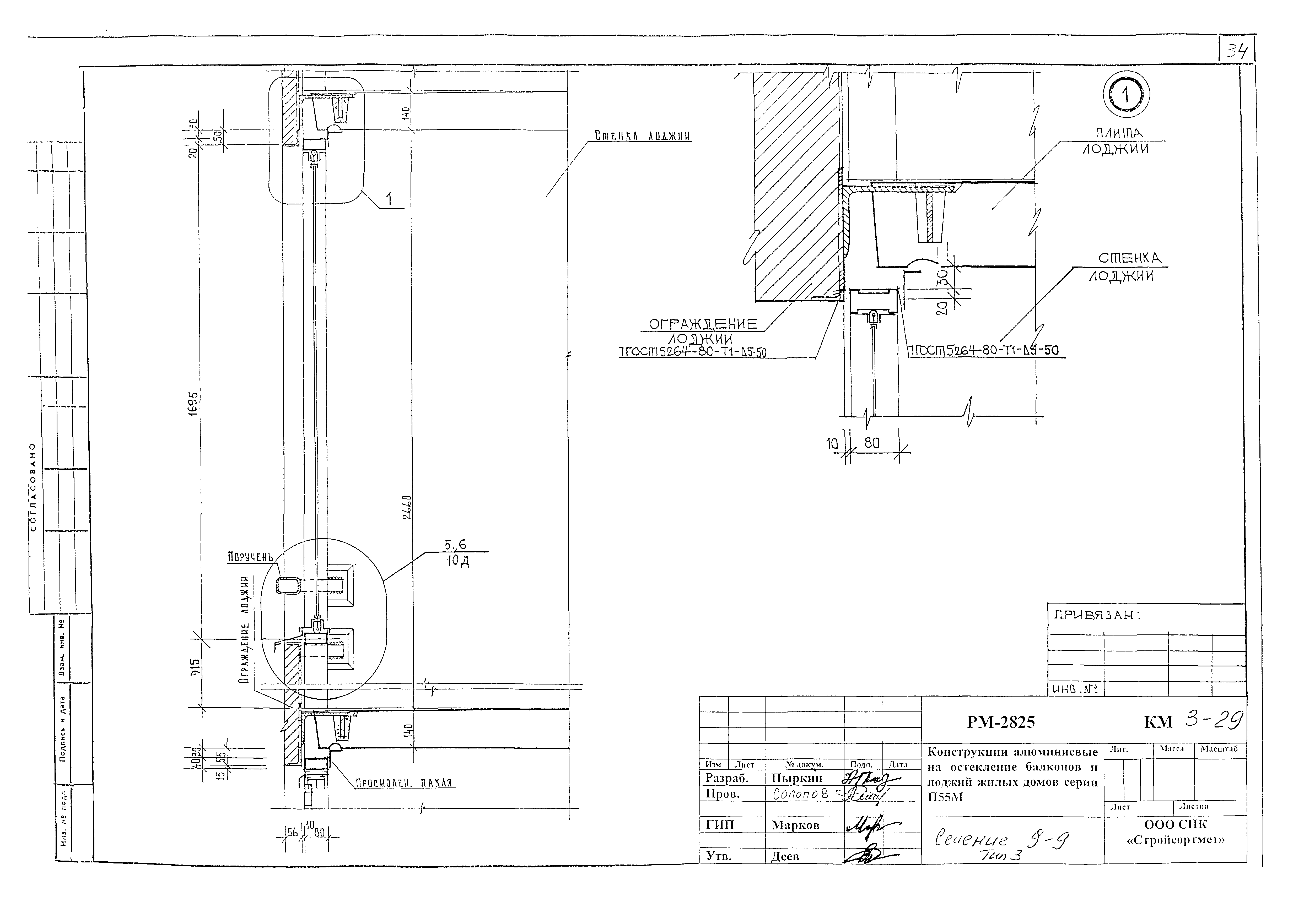
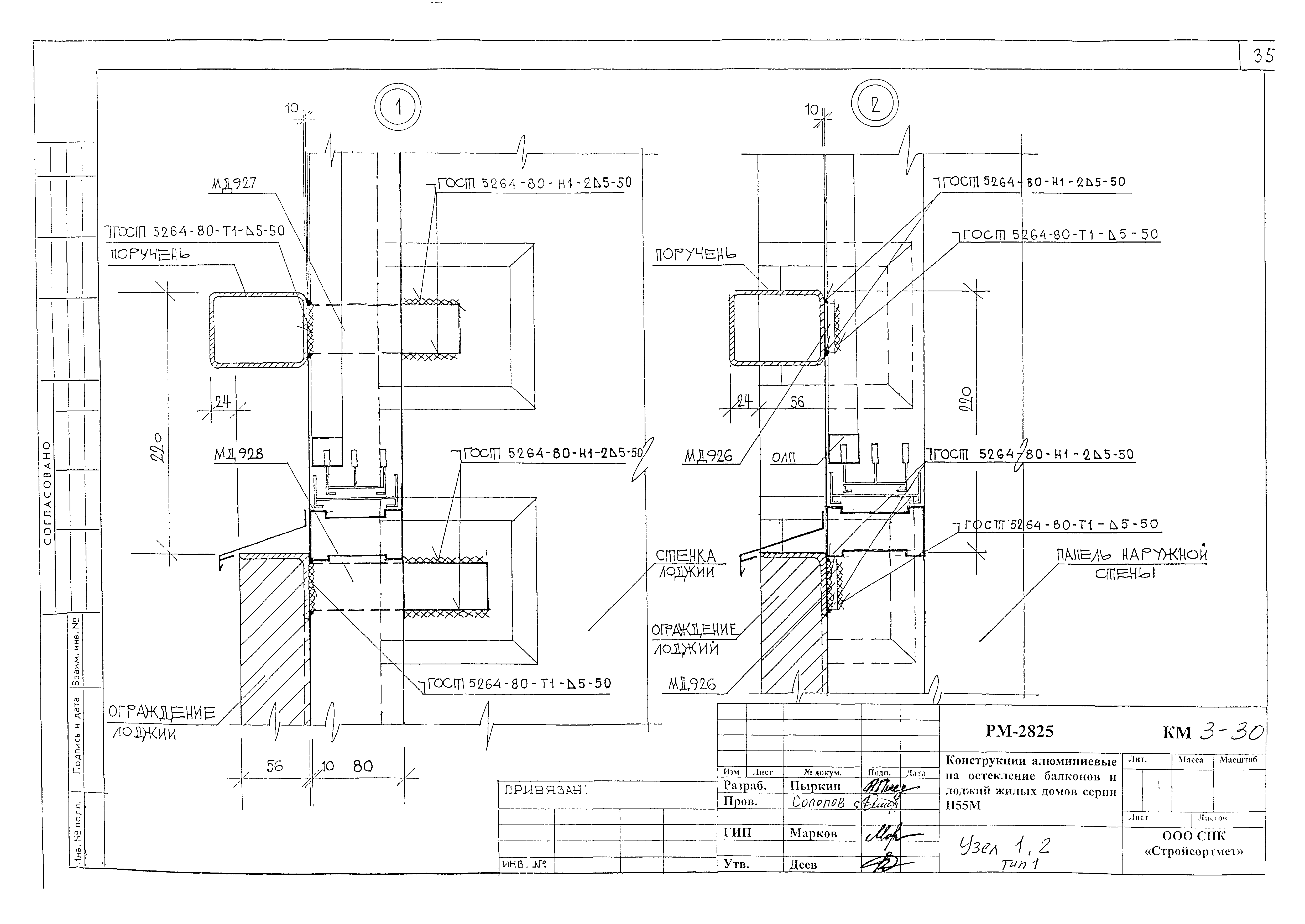
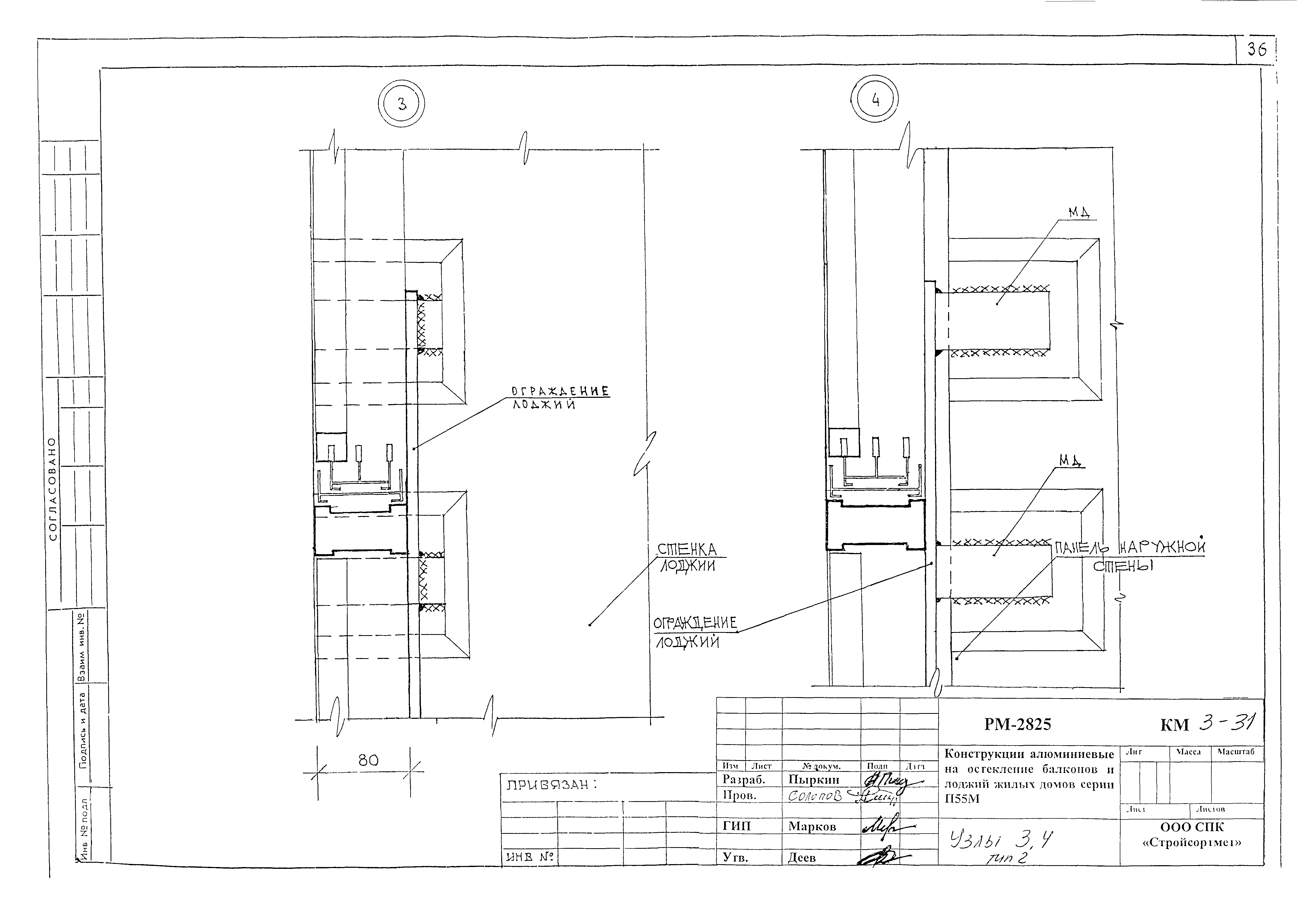
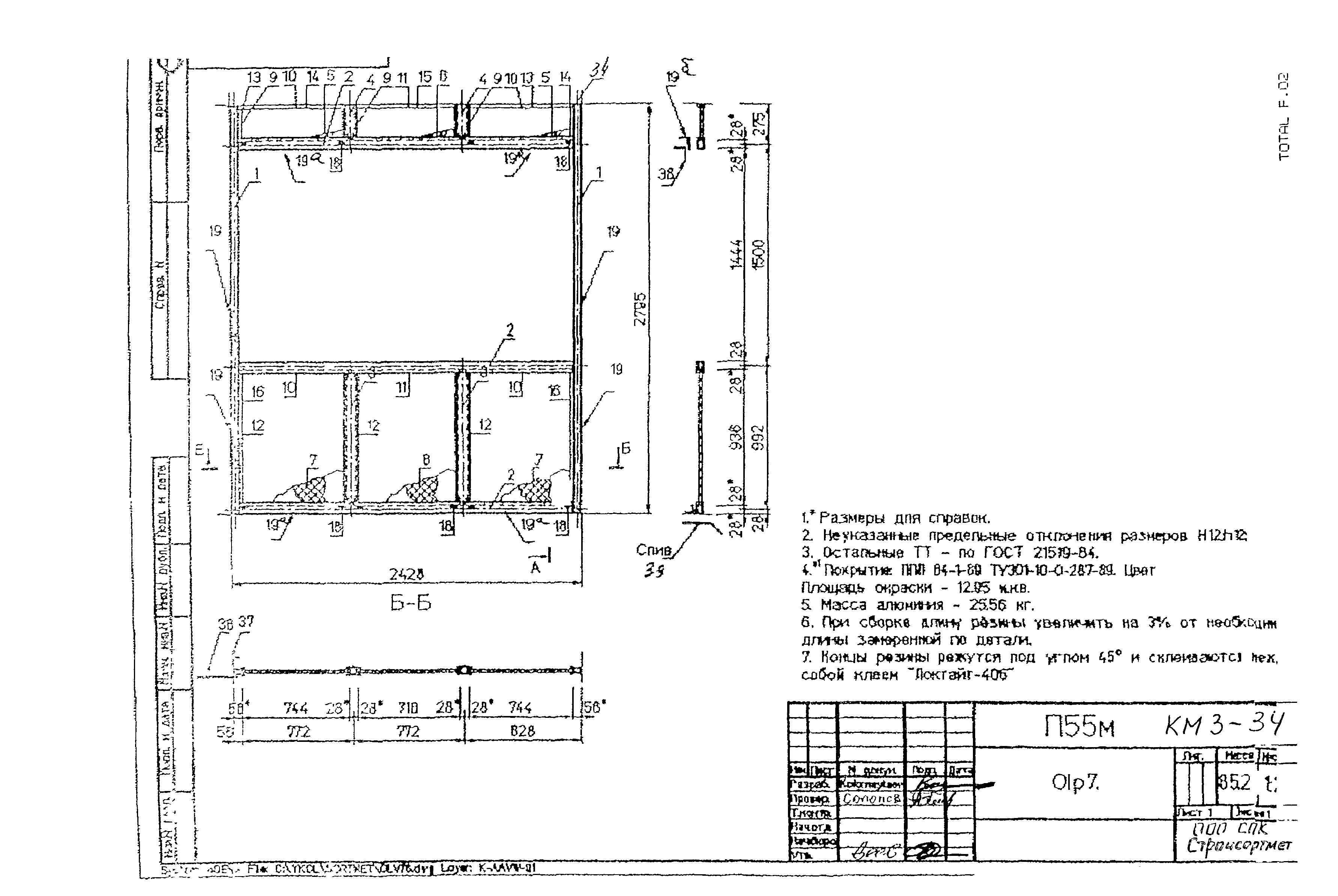
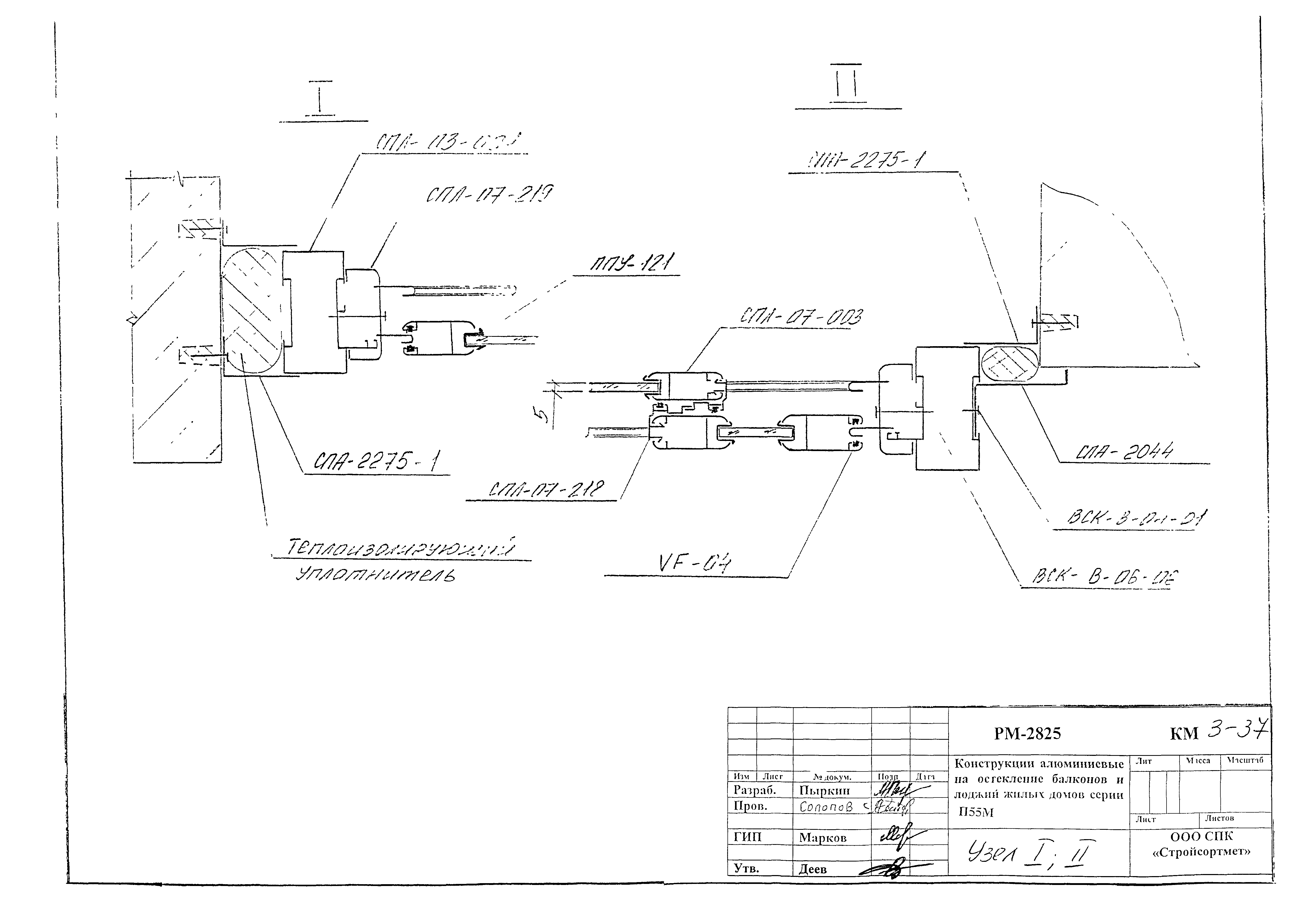
Конструкции, изделия и узлы унифицированные производства СПК "Стройсортмет" для остекления лоджий и балконов жилых домов П55М. Рабочие чертежи| Обозначение: | РМ-2825 | | Обозначение англ: | РМ-2825 | | Статус: | не определен законодательством | | Название рус.: | Конструкции, изделия и узлы унифицированные производства СПК "Стройсортмет" для остекления лоджий и балконов жилых домов П55М. Рабочие чертежи | | Дата добавления в базу: | 01.09.2013 | | Дата актуализации: | 01.01.2021 | | Дата введения: | 01.01.2001 | | Дата окончания срока действия: | 30.06.2003 | | Область применения: | Проект содержит рабочие чертежи в стадии кМ на алюминиевые конструкции ограждений лоджий и балконов жилых домов серии П55М. | | Разработан: | МНИИТЭП СПК Стройсортмет
| | Утверждён: | 01.01.2001 МНИИТЭП (MNIITEP )
|
                                              
|